巴黎110米焕新立面,法国 / Baumschlager Eberle Architekten
简介Brief
最初的计划是拆除现有建筑,但来自所有利益相关者——巴黎市、客户和建筑师——的反对意见,使得标致雪铁龙前总部位于Grande Armée大道上的重建项目转变为一个更新项目。这座建于1962年至1964年的前总部大楼,视野可达凯旋门,是宽阔大道上的标志性建筑之一。从形式上看,由Sainsaulieu建筑师在晚期现代(或国际)风格中设计的建筑,具有一个非常特殊的吸引力。一个三层、100米长的展览空间,位于110米长的立面后面,为汽车巨头提供了一个橱窗,并做出了明确的声明:消费社会已经到来。
The initial plan here was to demolish the existing building but objections from all the stakeholders – City of Paris, client and architects – saw the redevelopment of Peugeot Citroen’s former headquarters on the Avenue de la Grande Armée transform into a renewal project. Constructed between 1962 and 1964, this former head office building within view of the Arc de Triomphe is one of the defining structures on a wide boulevard. In formal terms, the design, devised by Sainsaulieu architects in the late-modern (or international) style, boasted a very special attraction. A three-storey, 100m-long exhibition space set behind the 110m-long facade that provided a shop window for the automobile giant and made a clear statement: the consumer society was here to stay.
▼项目概览,Overview of the project


这座雄心勃勃的翻新目标有三个方面:保留建筑的氛围,包括其身份和功能,创造一个公共聚会场所,并现代化引人注目的立面结构的技术和美学。公司目标及其建筑声明已调整以应对当今的挑战,该建筑现在从其城市立面到宽敞的景观屋顶露台,诉说着城市与自然的互联。
The ambitious renovation aims were threefold: retain the building’s atmosphere in both identity and function, create a public meeting place and modernise the technology and aesthetics of the striking facade structure. Both the company’s objectives and its architectural statement have been adjusted to meet the challenges of the day, and the building now speaks to the interconnectedness of city and nature, from its urban facade to the generous landscaped roof terraces.
▼沿街立面,Street-facing facade


“立面是我们概念的完美诠释。我们希望实现对原始结构的敏感但引人注目的重新诠释,”Baumschlager Eberle Architekten巴黎办公室的董事总经理Anne Speicher解释道。
“The facade is the perfect illustration of our concept. We wanted to achieve a sensitive but striking reinterpretation of the original structure,” explains Anne Speicher, Managing Director of Baumschlager Eberle Architekten’s Paris office.
▼立面细节,Facade detail


实现Realisation
所有现有体积均已保留。内部庭院已被重新设计,以创建公共花园和一个大型覆盖空间;俯瞰Grande Armée大道的画廊已被转换为一个透明的、100米长的大厅;曾经主导屋顶的设备和机械已被替换为景观露台和花园,向建筑用户开放。大自然已回归到工人放松和社交的区域。
All of the existing volumes have been retained. The interior courtyards have been reimagined to create public gardens and a large, covered space; the gallery overlooking the Avenue de la Grande Armée has been converted into a transparent, 100m-long lobby; and the plant and machinery that once dominated the roofs have been replaced with landscaped terraces and gardens open to the building’s users. Nature has returned to the areas where workers relax and socialise.
▼公共花园,Public gardens

▼景观露台和花园,Landscaped terraces and gardens


▼让自然回归空间,Nature has returned to the areas

立面——混凝土与青铜的结合The facade – a marriage of concrete and bronze
Grande Armée大道的立面已升级以符合当前的建筑标准,尽管结构保持不变。青铜色的凸出箱形窗户改善了现有窗户开口的热学和美学特性,不同的框架深度为街景带来了新的节奏。建筑的基本工具创造了可塑性和一个计算有序的立面,为建筑和整个“75, Avenue de la Grande Armée”项目赋予了强烈的身份。垂直青铜条也为翻新的内部和内庭院的立面提供了新的亮点。后面立面的白色熟料砖与建筑的工业过去相连,同时与住宅Rue Pergolèse的其余部分相连。
The Avenue de la Grande Armée facade has been upgraded to meet current building standards, though the structure remains unchanged. Projecting box windows in bronze improve the thermal and aesthetic characteristics of the existing window openings, with a variety of different frame depths bringing a new rhythm to the streetscape. The elementary tools of architecture create plasticity and a calculated order in a facade that lends a strong identity to the building and to the ”75, Avenue de la Grande Armée“ project as a whole. Vertical bronze strips also provide new accents in the refurbished interiors and on the facade of the inner courtyard. The white clinker brick of the rear facade makes a connection to the building’s industrial past as well as linking to the rest of the residential Rue Pergolèse.
▼凸出箱形窗,Projecting box windows

特点Features
地面层和地下1层的一部分,容纳餐厅、咖啡馆、健身工作室和一个200座的礼堂,向公众开放建筑。回收概念在这里的细节中可见。从原始建筑立面直接取下的花岗岩块已被加工成画廊的地板,其引人注目的混凝土柱和高天花板让人联想到教堂的中殿。各种入口核心已调整以满足当前需求;主入口现在设有全景电梯和开放楼梯。
The ground floor and parts of basement level 1, which house restaurants, cafés, fitness studios and a 200-seat auditorium, open the building up to the general public. The recycling concept is visible in the detail here. Granite blocks taken straight from the facade of the original building have been worked into the floor of the gallery, its striking concrete columns and high ceilings reminiscent of a church nave. The various access cores have been adapted to meet current needs; the main entrance now features panoramic lifts and an open staircase.
▼混凝土柱和高天花板,Concrete columns and high ceilings

内部The interior
面向Grande Armée大道的九层和面向Rue Pergolèse的五层被用于办公空间。高度灵活的设计意味着每层可容纳多达三个不同的租户,同时塑造新的工作环境。原始混凝土结构已被揭示,一些选定的材料现在决定了内部设计:几种类型的混凝土、青铜、用于地板覆盖的木材以及不同的金属天花板饰面提供了细节上的多样性。而且不仅仅是地面层和地下1层被重新发明:屋顶现在是景观露台而不是设备和机械。总体而言,这些变化无疑产生了一个提升巴黎生活体验的建筑。
Nine floors facing the Avenue de la Grande Armée and five facing Rue Pergolèse are given over to office space. The highly flexible design means that up to three different tenants can be accommodated per floor while at the same time shaping new working environments. The original concrete structure has been revealed and a few selected materials now determine the interior design: several types of concrete, bronze, wood for the floor coverings and different metal ceiling finishes offer diversity in detail. And it is not only the ground floor and basement level 1 that have been reinvented: the roof is now home to landscaped terraces rather than plant and equipment. Taken as a whole, there can be no doubt that the changes made have produced a building that enhances the experience of living in Paris.
▼办公空间,The office space

▼大厅内景,Interior view of the lobby

▼会客空间,Public lounge space


循环经济Circular economy
重组现有事物而非建造新事物的想法贯穿了建设过程,并重复使用某些材料。资源高效的循环经济成为项目的总体主题,虽然仍有5,615吨碎石从现场移除,但其中5,165吨——令人印象深刻的92%——被回收。
The idea of reorganising what was already there rather than building something new was carried through to construction with the reuse of certain materials. A resource-efficient circular economy became the overarching theme of the project, and though 5,615 tonnes of rubble were still removed from the site, 5,165 tonnes of them – an impressive 92% – were recycled.
▼夜景,Nightview


Anne Speicher总结了她在这个巴黎中心挑战性项目中的经验如下:“循环经济不仅仅是关于材料。这个项目清楚地证明,没有必要从头建造来更新功能和内容。还有一个概念性的循环经济在起作用,正如旧标致总部大楼所示。可以为各种不同的、吸引人的用途创造一个新的语境,以满足当前和未来的要求。”
Anne Speicher sums up her experience on this challenging project in central Paris as follows: “The circular economy is about more than just materials. The project clearly demonstrates that there is really no need to build from scratch to bring function and content up-to-date. There is also a conceptual circular economy at play, as the old Peugeot headquarters building shows. It is possible to create a new context for a range of different, attractive uses that meets both current and future requirements. ”
▼场地图,Site plan

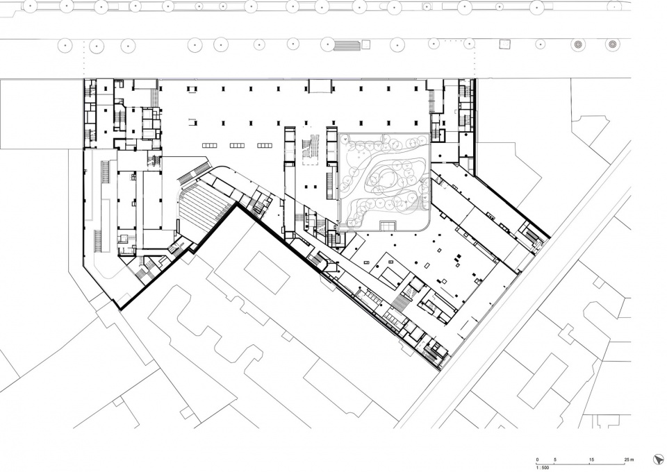
▼总平面图,Master plan

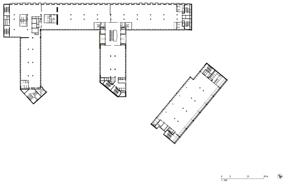
▼平面图,Floor plan

▼立面图,Elevation


▼剖面图,Section


Typology Mixed use
Site 75 avenue de la Grande Armée Paris,France
Client Gecina,SCI Avenir Grande Armée
Site area 6,946m²
Area of building 4,400m²
Start of planning phase 2017
Start of construction 2019
Competition/Award
Landscape design USUS Landscape architecture
Gross floor area 33,434m²
Completion 2022
Interiordesign Baumschlager Eberle Architekten
Building volume 150,994m³
Construction cost EUR117 million
VisualisationAlexandre Besson
Floor area 33434 m²














