无锡和风实验小学,江苏无锡 / 米丈建筑
学校占地面积约3.7万平方米,设计规模为60个班,可以容纳2700名学生。用地规则,周边是新建城区,设计的开始就是寻找一个合适的叙事语境,为建筑赋予深层次的意义。这种意义与建筑师的个人经验相关,也与建筑师对于城市、地域、环境的认知相关。
The school covers a total area of approximately 37,000 square meters, designed to accommodate 60 classes and 2,700 students. Situated on a regularly shaped site in a newly developed urban area, the design began with seeking a fitting narrative context to endow the architecture with profound meaning—meaning rooted in the architect’s personal experiences and perceptions of the city, region, and environment.
▼ 总体鸟瞰,Overall bird’s-eye view



“层峦叠翠”之法是传统中国画景色与人物描写技法之一。在相同空间或时间中,相继展现多个人物或事件,写意寻趣,在方寸间展现欣欣然的生机,也是中国文人画的表现手法精髓。以绘画的叙事性和技法,来介入建筑的表达,目的是让新建建筑,藉由空间的变化,展现更多的文学属性。当建筑具有了和文学一样的抽象表达的时候,建筑的意义就会丰富起来,与不同人的情绪和感受,加以连接,成为一个可以交流和对话的场所,在人与建筑之间,也在人与人之间。
▼ 体块概念图,Massing conceptual diagram


▼ 爆炸分析图,Exploded view

“Ceng Luan Die Cui” (Layered Peaks & Emerald Layers) is a technique in traditional Chinese painting for depicting landscapes and figures. It sequentially presents multiple characters or events within the same space or time, conveying spirit and seeking charm to reveal vibrant vitality within a confined space—an essence of literati painting. By integrating the narrative and technicality of painting into architectural expression, the goal is to infuse the new building with greater literary attributes through spatial variations. When architecture achieves the abstract expression akin to literature, its significance enriches, connecting with people’s emotions and perceptions to become a space for communication and dialogue—between humans and architecture, as well as among humans themselves.
▼ 局部鸟瞰,Partial bird’s-eye view

▼ 从运动场看向建筑群,Viewing the architectural complex from the sports field



层峦 Layered Peaks
“层”本质上是一个时间的概念。无锡位于太湖盆地,是长江下游冲积平原的典型地貌,在自然地理上,具有强烈的层叠属性。而在文化上的累积,也是无锡最重要的特点之一。层和时间的关系,是在时间的进程当中逐渐完成对具象物质和抽象精神的累积,从而形成当下的面貌,这与教育的本质是一样的。我们的建筑型体采用层层叠加的抽象的形式,用来呼应无锡的自然条件和文化特质。在教育的演进过程当中,每一个先验的步骤都是构成日后结果的途径。层序分明的态势会在时间的过程当中逐渐呈现,通过突变、重组和选择,产生于几乎无限的多样性。
“Layer” is inherently a concept of time. Wuxi, located in the Taihu Lake Basin, is a typical landform of the alluvial plain in the lower Yangtze River, boasting distinctive layered characteristics in physical geography. Cultural accumulation is also one of Wuxi’s most defining traits. The relationship between layers and time lies in the gradual accumulation of tangible substances and abstract spirits over time, shaping the present—mirroring the essence of education. Our architectural form adopts an abstract design of overlapping layers, echoing Wuxi’s natural conditions and cultural identity. In the evolution of education, every prior step paves the way for future outcomes. A clear hierarchical order gradually unfolds over time, generating nearly infinite diversity through mutation, reorganization, and selection.
▼ 层叠的建筑体,Stacked buildings

建筑体一如沉积岩形成的结构特征,重叠的楼板以在重叠部分之间产生差异的方式将不同的大小和范围合并在一起。在某些部分应用了类似的重叠策略(例如:以 900 的模数相互搭建与交融),不同的空间汇集在一起,彼此之间建立了体积关系。
The building mimics the structural characteristics of sedimentary rock formations: overlapping floor slabs merge different sizes and scopes by creating variations between the overlapping sections. A similar overlapping strategy is applied in certain areas (e.g., interlocking and integrating with a 900mm module), where diverse spaces converge to establish volumetric relationships.
▼层叠建筑体创造出的虚实空间,The virtual and real spaces created by stacked buildings



这种基于严谨秩序下面的丰富变化,是解决高密度校园建筑性格塑造的重要途径。在高效率功能需求的先决条件下,利用有限的空间实现最丰富的变化,才能够在功能性和精神性之间搭建一座相融的路径。
This rich variation within a rigorous order is a key approach to shaping the character of high-density campus architecture. Under the prerequisite of efficient functional demands, maximizing spatial diversity within limited space bridges the gap between functionality and spirituality.
▼错动的形体诞生出丰富的活动空间,The staggered form gives birth to rich activity spaces


以一条放大的公共带,区分动静,定义属性。以统一的生成逻辑,简洁的构成手法,创建一个相生的体积,交搭而成大小相间,前后相掩,有起伏,有隐现,参伍错综,主宾顾盼的活跃空间。
An expanded public zone separates dynamic and static functions while defining spatial attributes. Guided by a unified generative logic and concise compositional techniques, interconnected volumes are created—alternating in size, overlapping front and back, undulating, appearing and disappearing, intricate yet harmonious, with primary and secondary spaces complementing each other to form a vibrant environment.
▼ 建筑形体在街道上形成丰富的界面,The architectural form forms rich interfaces on the street


▼ 变化形体自然形成的建筑主入口灰空间,
The grey space at the main entrance of a building naturally formed by changes in form

叠翠 Emerald Layers
在我们的理想中,建筑不应该是隔断人与自然的壁垒,而是人与自然关系的交织。层板的错动形成了很多明亮和灰色的空间,在这些空间中,将自然的元素引入,如同层层叠叠的山脉中那时隐时现的绿色。多层次的自然元素,不仅是植物、风和阳光,被引入坚硬的建筑体当中,此时的建筑体不再成为一种封闭的壁垒,而是成为一个舒适的交流空间。
Ideally, architecture should not be a barrier separating humans from nature, but a fusion of their relationship. The staggered layers create numerous bright and semi-shaded spaces, where natural elements are integrated—like the flickering greenery amid layered mountains. Multi-dimensional natural elements, including plants, wind, and sunlight, are woven into the rigid architectural structure, transforming it from a closed barrier into a comfortable space for communication.
▼ 内外统一的形体逻辑创造出庭院的丰富界面,
The unified internal and external form logic creates a rich interface for the courtyard

▼ 由庭院看层叠的建筑,Viewing the stacked buildings from the courtyard


未来的社会竞争不像现在的单纬度和浅层次,而更加强调人与人,人与机器的多维度的竞争,其中涉及到最重要的要求就是彼此的协作和团结。因此,教育空间中除了掌握基础类的知识体系之外,培养协作共赢,多维交流的基本素质,是教育的重要的方向,我们的建筑也必须为此服务。
Future social competition will move beyond the current single-dimensional and superficial model, emphasizing multi-faceted interactions between humans and humans, as well as humans and machines. A core requirement thereof is collaboration and unity. Therefore, in addition to mastering basic knowledge systems, fostering the essential qualities of collaborative win-win and multi-dimensional communication is a crucial direction of education—and our architecture must serve this purpose.
▼ 形体的丰富带来空间的多样,The richness of form brings diversity of space

▼ 内在逻辑带来的外在表现,External manifestations brought by internal logic

▼ 层峦叠翠,Range upon range of green hills

意趣 Intrigue
中国的文化艺术讲究以抽象的简单元素来反映多层次的意义,在这个建筑当中,我们运用了最直白和简洁的手法,使之建造容易,将简单空间以多重组合来呈现丰富性,达到“写意寻趣”的目的。建筑是时间和记忆的场所,对于其中成长的个体而言,最重要的是培养其感知和理解不同抽象元素的能力,简洁的形体,丰富的构成,提供了体验这个世界不同的方法和路径,这是我们设计这个有别于传统的学校重要的着手点。意义和趣味深藏于建筑形体和空间的组合变化中,不在场的抽象交流形成了教育过程当中重要的一个体验过程。
Chinese culture and art emphasize using simple abstract elements to reflect multi-layered meanings. In this building, we employ straightforward and concise techniques to facilitate construction, while creating richness through multiple combinations of simple spaces—achieving the goal of “conveying spirit and seeking charm.” Architecture is a space of time and memory. For the individuals growing within it, the most important thing is to cultivate their ability to perceive and understand various abstract elements. The concise form and rich composition offer diverse ways to experience the world—this is the key starting point for designing a school distinct from traditional ones. Meaning and intrigue lie deep within the combinations and variations of architectural form and space, and the abstract communication beyond physical presence constitutes a vital part of the educational experience.
▼ 由下沉庭院接送系统进入建筑体,
Entering the building through the sunken courtyard shuttle system

▼ 公共活动带中的贯通空间,
Connecting spaces within the public activity zone

▼ 基于生成逻辑的丰富性,Richness based on generative logic

盎然 Vitality
盎然是“盈溢和充满”的意思。在生命的成长阶段,我们需要塑造一种积极向上的环境气氛,建筑希望将这种充满正量的概念植入其中。采用浅色的外墙和木色的装饰,营造更加温暖的氛围,空间的流动性和处处的来自于阳光和风的自然惊喜,蕴藏在不同的行进和发现当中,这是一种来自于生命的乐趣。课间的10分钟,在教室周边都能找到精心设置的活动区域,屋顶一反乏味的消极,形成了接触自然的良好平台。操场和建筑也不是单纯并置的关系,而是结合为一体。不同方向光线和影子的引入,将建筑变得层次丰富。任何一个角度都能够看到不经意的自然和人工的秀丽。在越来越艰苦的时代竞争当中,我们希望这个新的校园建筑能成为一个成长过程中的精神堡垒。
“Ang Ran” (Vitality) signifies abundance and overflow. During the formative stages of life, we need to create a positive and uplifting atmosphere—and the architecture seeks to embed this concept of positive energy. Light-colored exterior walls and wood-toned finishes foster a warmer ambiance. The fluidity of space and unexpected natural delights (from sunlight and wind) are woven into every step and discovery, embodying the joy of life. During the 10-minute break between classes, thoughtfully designed activity areas are accessible around classrooms. The roof, breaking away from monotony, becomes an excellent platform for engaging with nature. The playground and buildings are not merely placed side by side but integrated as a whole. The introduction of light and shadows from different directions enriches the building’s layers. From any angle, one can encounter the unexpected beauty of nature and human creation. Amidst the increasingly fierce competition of the times, we hope this new campus will become a spiritual anchor for growth.
▼ 悬浮于建筑顶部的活动空间,The activity space suspended at the top of the building

▼ 建筑中设置大量不同尺度的学生活动空间,
Set up a large number of student activity spaces of different scales in the building

▼ 室内运动场与自然采光系统,Indoor sports field and natural lighting system

▼ 夜景鸟瞰,Bird’s-eye night view

▼ 总平面图,Master plan

▼ 地下二层平面图,
Basement second floor plan

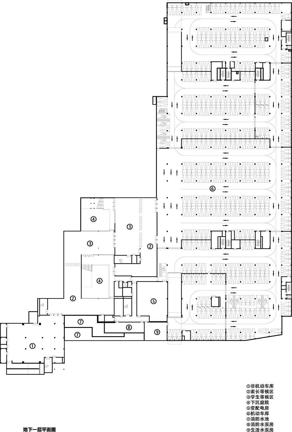
▼ 地下一层平面图,
Basement first floor plan

▼ 一层平面图,First floor plan

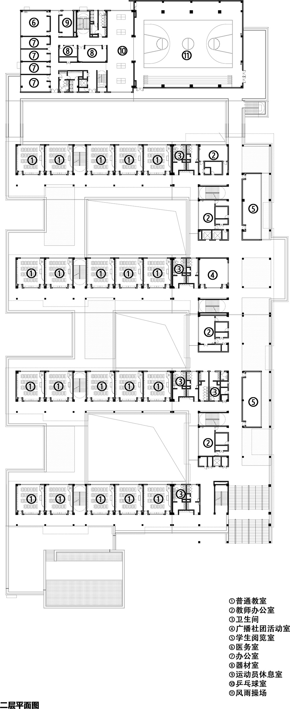
▼ 二层平面图,
Second floor plan

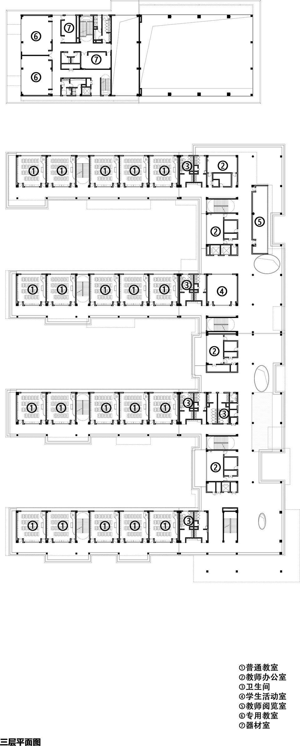
▼ 三层平面图,
Third floor plan

▼ 四层平面图,
Fourth floor plan

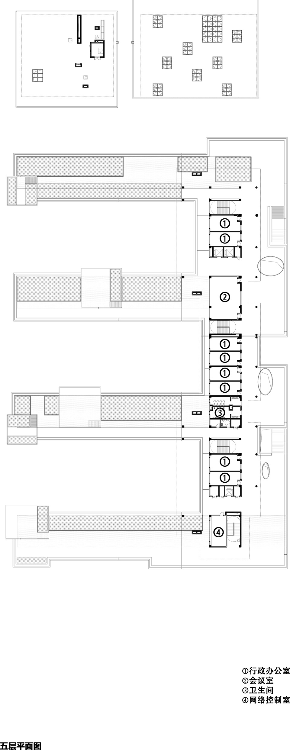
▼ 五层平面图,
Fifth floor plan

▼ 剖透视图,Sectional view




Architectural Design & Interior Design & Landscape Design:
MINAX Architects
Gross Floor Area: 59481 m²
Project Year: 2020-2025 (Anticipated Completion)
Photographer: Shan-jian images
Principal Architect: Lu Zhigang
Design Team: Huang Congyi, Xu Zhanhang, Liu Zhirui, Chen Ziwei, Zhao Xue, Husile, Li Xiaolin, Zhu Lin, Yang Huxu, Li Zhe,Zhou junchi,Chen jian,Hao tong
Construction Document Development: Jiangsu Bosen Architectural Design Co., Ltd.
Client: Wuxi Economic Development Zone Development Center, Jiangsu
Text: Lu Zhigang
City: Wuxi
Country: China
Address: No. 189, Hefeng Road, Wuxi Economic Development Zone














