尖端技术研究开发中心,上海 / 日建设计
“创新园区” “Innovation Park”
本项目是丰田汽车技术研发(上海)有限公司在中国上海市嘉定区建设的研发基地,以实现移动出行社会为目标,致力于自动驾驶等前沿技术研究。项目旨在打造一个向自然和社会开放、人与环境和谐共生、研究人员等工作人员实现共创的公园般的空间——“创新园区”。
▼项目概念,project concept

This R&D facility, established by Toyota Motor Engineering & Manufacturing (Shanghai) Co., Ltd. in Jiading District, Shanghai, China, is a research and development hub dedicated to advancing cutting-edge research in areas such as autonomous driving in order to realize a “mobility society” in China. The facility is designed as an ‘innovation park’—a park-like environment that embraces both nature and society, fostering harmony between people and the environment while enabling collaboration among researchers and other workers.
▼项目概览,overview of the project



该地块周边是上海汽车产业与技术的集聚地,正在向自动驾驶、燃料电池技术创新区转型,是一个通过招商引资推动再开发的区域。特别是该区积极推进自动驾驶技术的研发与引进,区内还设有公共道路实证实验行驶区域。毗邻的同济大学在燃料电池氢能领域位居中国顶尖水平,正在推进支撑中国氢能社会的产官学(企业、政府、教育研究机构)合作与研发。在建筑退界的前方设置了广阔的绿色广场,这样既能满足严格的绿化标准,又可从亲生物设计理念出发,打造出可供人们有效利用的多功能空间——既能容纳餐车进驻,又能举办体育赛事,同时兼具休闲、集会和避难等多重功能。
▼建筑概念,architectural concept

The surrounding area serves as a hub for Shanghai’s automotive and technology sectors and is now undergoing redevelopment to attract businesses and evolve into an innovation district focused on autonomous driving and fuel cell (FC) technology. The district is particularly proactive in developing and attracting autonomous driving tech and features a dedicated public road-testing area. The adjacent Tongji University is a leader in China’s fuel cell and hydrogen sector, driving industry-government-academia collaboration and R&D to support China’s hydrogen society. The building is set back to create a vast green plaza in front that meets stringent greening standards. Designed with biophilic principles, it serves as a versatile space for recreation and gatherings, as well as for evacuation in times of emergency, and accommodates food trucks and sporting events.
▼外观,appearance


60m×60m通用空间 60m x 60m Universal Space
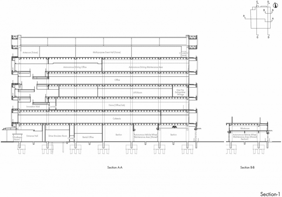
建筑规划为地上7层、规模约46000㎡,通过在南北两侧分散布置竖向动线和设备用房,在各层中央设置了能够适应研究扩展与变化的60m×60m通用空间。建筑在外围四周设置了应对未来变更与增建的设备阳台,最大限度地缩短管道和配管长度,同时兼顾疏散及短期长期维护需求,并配合百叶实现遮阳功能。结构方案采用兼顾经济合理性的12m×12m模块化构成,主要结构部件中的梁与楼板采用预制混凝土结构,以确保施工合理性,并满足上海市规定的装配率要求。
▼立面系统,facade system

The building is a seven-story structure with a total floor area of approximately 46,000 m². By dispersing vertical circulation routes and utility rooms along a north-south axis, a 60m x 60m universal space is created at the center of each floor which accommodates the expansion and evolution of research activities. The perimeter features service balconies on all sides, and can accommodate future modifications and additions. This minimizes duct and piping lengths while remaining mindful of evacuation routes and short/long-term maintenance accessibility. Together with louvers, these balconies also provide solar shading. The structural plan employs a 12m x 12m module system to maximize economic efficiency. Precast concrete (PC) beams and floor slabs form the primary structural elements, streamlining and rationalizing construction. The plan also meets the specific assembly requirements stipulated by the city of Shanghai.
▼立面,facade


映照环境的光翼(Light Wing) Light Wing Louvers Reflect the Environment
利用最先进的环境模拟技术优化日照负荷的特色百叶(光翼),以汽车设计手法中的特征性线条为灵感,打造出兼具先进性与功能性的标志性外观,不仅完美契合移动出行企业的定位,更实现了卓越的环境性能。针对西晒问题突出的正立面,采用通过计算设计从无数种模式中参数化导出最优解的设计方法,以确定阳台出挑宽度、竖向百叶的排列密度与角度、竖向百叶的形状。光翼上设有冲孔开口,可将自然光扩散至室内并减少眩光,该设计充分考虑到了人的视觉环境。
The building’s distinctive Light Wing louvers, which have been optimized for solar load reduction with the help of cutting-edge simulation technology, draw inspiration from character lines in automotive design. They embody the advanced functionality befitting a mobility company, creating an iconic exterior with optimal environmental performance. A computational design strategy was applied to the west façade to address the challenge of intense afternoon sun. This method derived optimal solutions from countless patterns. Key factors included balcony projection depth, and the density, angle and shape of the vertical louvers. The Light Wing’s perforated openings diffuse natural light into the interior while minimizing glare, all with an emphasis on visual appeal.
▼百叶,louvers


催生共创的创新空间(Innovation Void) Innovation Void Fosters Co-creation
利用纵向连接各楼层的楼梯平台形成的挑空空间,是一个连接不同部门与研究领域的共创空间(创新空间)。通过在自然的动线中进行交流,以错开的平面形状创造出视线交错,以及形成天花板高度各异的多元化空间,旨在打造如栖木般让人找到归属、聚集在一起共享舒适氛围的场所。
▼创新空间,Innovation Void

The atrium space, which utilizes the stairwell landing that connects each floor vertically, serves as a co-creation space (“Innovation Void”) linking business departments and research fields. It is intended as a comfortable space where people can gather and find their own place like perched birds, fostering interaction within natural movement flows. This is achieved by creating diverse areas with intersecting sightlines via staggered floor plans and differentiated ceiling heights, which enable occupants to share a pleasant atmosphere.
▼挑空空间,atrium space




关于新基地的工作方式,采用融合硬件与软件的敏捷型流程,让设计师参与其中,与用户深入探讨职场环境的最佳形态,并持续反馈至最后,这反映在了体现中日员工混合办公特点的本研发基地特有的使用方式和场所营造上。
Regarding work styles at the new hub, an agile process integrating hardware and software was adopted. After thorough discussions with users about the optimal workplace environment, designers were able to incorporate feedback throughout the project. This approach reflects the distinctive usage patterns and spatial design of this R&D facility, tailored to the collaborative dynamic between Chinese and Japanese staff.
▼舒适氛围的场所,pleasant atmosphere place




面向脱碳社会的氢能举措 Hydrogen Initiatives for a Decarbonized Society
作为一家全球性企业,在以实现脱碳社会为目标的环境方针下,导入自然能源利用和太阳能发电等节能技术,为环保做出了贡献。特别是计划通过安装进行氢能发电的相关氢能设备,成为所在研发区的先锋,其利用氢能发电可供应相当于一整层楼所需的电力。在推进与大学研究机构的联合项目等工作的同时,积累实现脱碳所需的核心技术(能源管理、燃料电池发电热电联产等),并推进相关氢能技术的实证实验。
▼生态系统,eco system

As a global company, Toyota is committed to an environmental policy of achieving a carbon-free society by introducing energy-saving technologies such as natural energy utilization and solar power generation, contributing to environmental conservation. Specifically, by implementing hydrogen-related equipment for H2 power generation, this plan calls for taking the pioneering R&D lead in its field and supplies the equivalent of one floor of electricity through the implementation of hydrogen-generated power. By fostering joint projects with university research institutions, the facility builds core technologies essential for decarbonization such as energy management and fuel cell (FC) power generation/cogeneration – while actively advancing experiments in hydrogen-related technologies.
▼办公空间,office





在全球气候变化和新冠疫情等突发事件与灾害频发的动荡时代,为了通过移动出行实现所有人的“幸福”,本项目着眼于地球环境、社会和人类的未来,是一个不断成长、可持续的新一代研发基地。
▼为未来扩展和适应性而设计的建筑系统,Building Systems Designed for Future Expansion and Adaptability

These activities represent a sustainable, next-generation R&D unit that continuously evolves and looks ahead to the future for the sake of the global environment, society, and people. It aims to realize “happiness” for all through mobility in a current era marked by frequent unexpected events and disasters, such as global climate change and the COVID-19 pandemic.
▼总平面图,msater plan

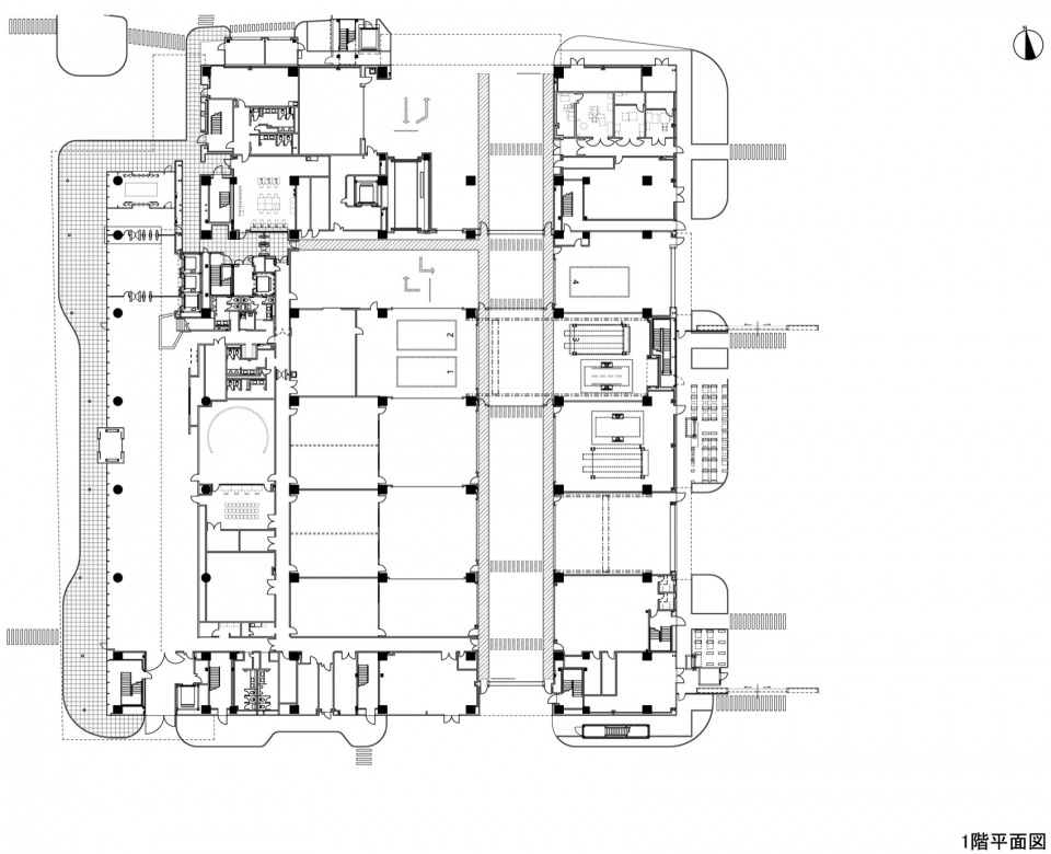
▼1F 平面图,1F floor plan

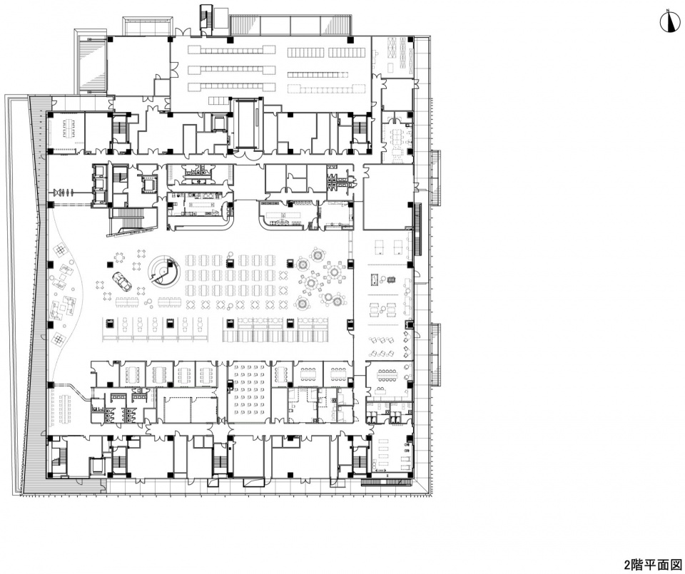
▼2F 平面图,2F floor plan

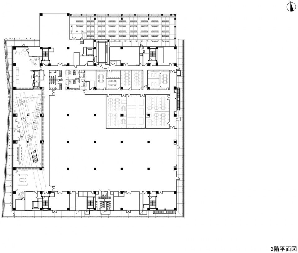
▼3F 平面图,3F floor plan

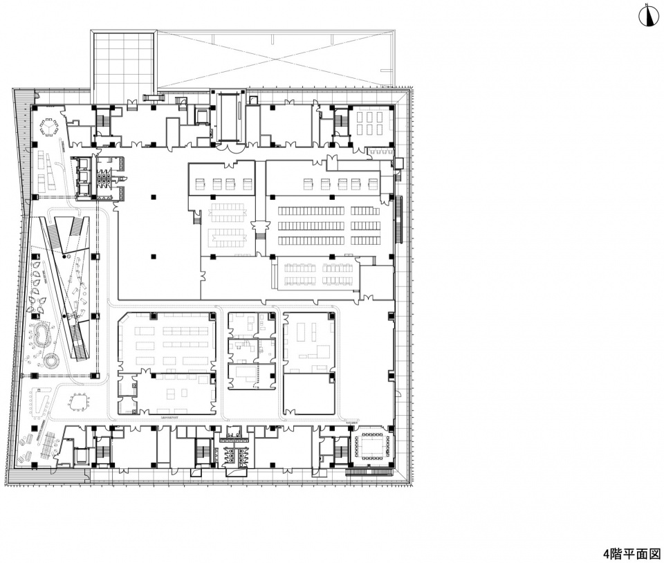
▼4F 平面图,4F floor plan

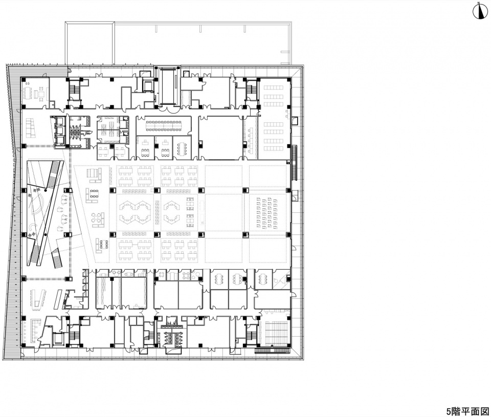
▼5F 平面图,5F floor plan

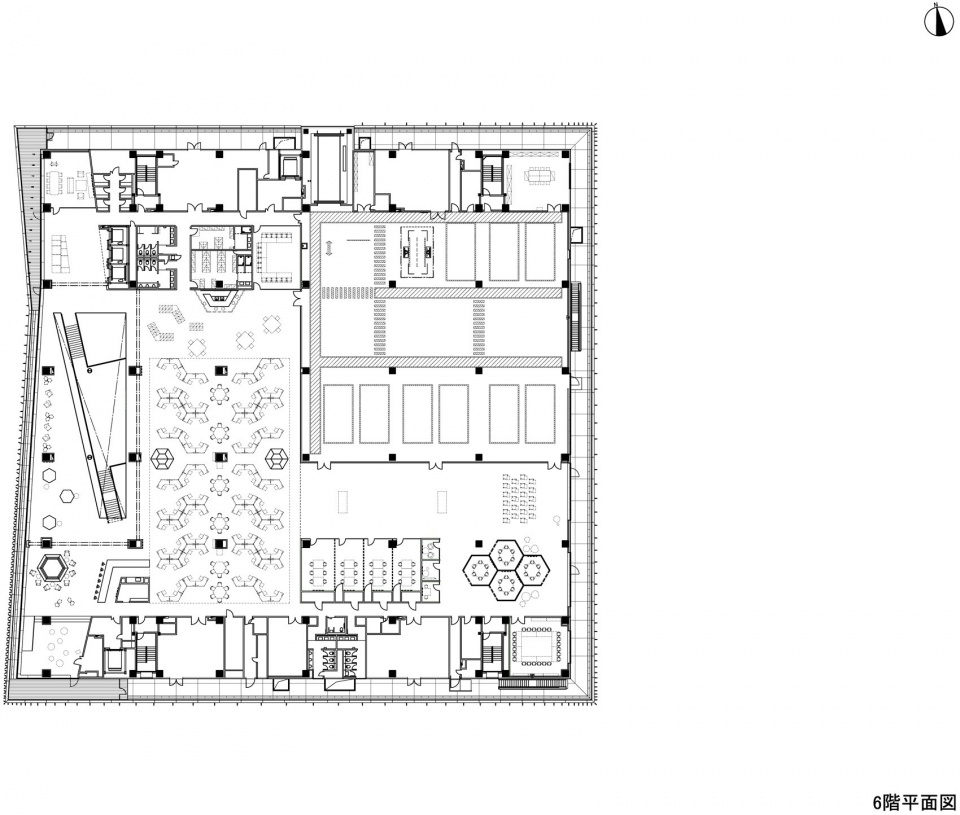
▼6F 平面图,6F floor plan

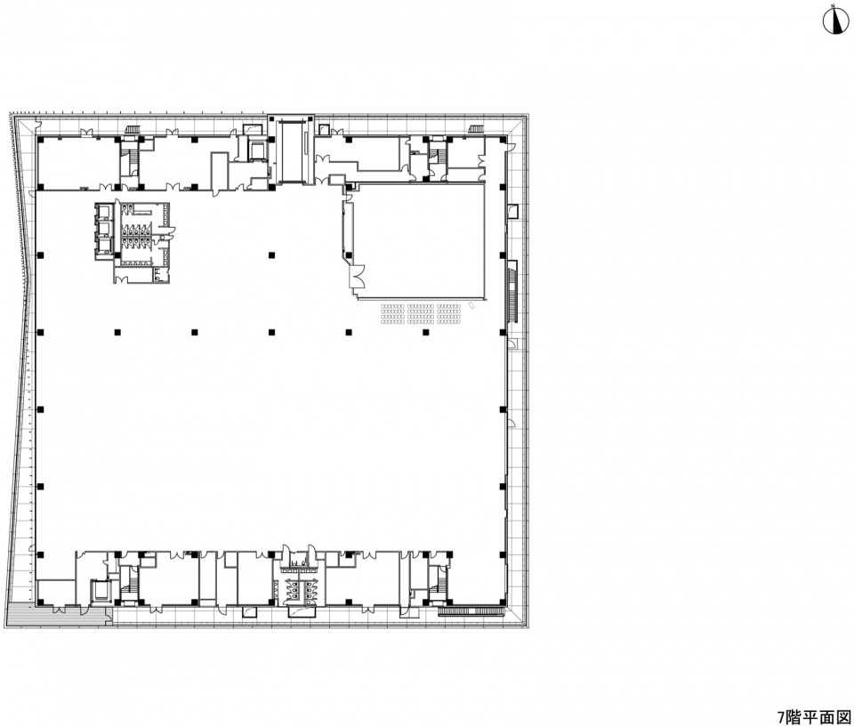
▼7F 平面图,7F floor plan

▼剖面,section


▼东立面,East Elevation

▼西立面,West Elevation

▼南立面,South Elevation

▼北立面,North Elevation

建筑名称(中文) 尖端技术研究开发中心
建筑名称(英文) TOYOTA Research and Development Center
用途 研究所
所在地(国家、省市) 中国上海市嘉定区
用地面积(m2) 41,062.5㎡
建筑面积(m2) 46,002.8㎡
层数 地上7层
檐口高度/最高高度(m) 45.99m
主体结构 钢筋混凝土结构(部分为预制混凝土结构)、部分钢结构
竣工年月 主体建筑2023年5月、整体2023年12月
业主(中文) 丰田汽车技术研发(上海)有限公司
业主(英文) Toyota Motor Technical Research and Service (Shanghai) Co.,Ltd.
主创设计 日建设计
主要业务范围 日建设计(基本设计、设计监修)
清水建设株式会社(实施设计)
JV・共同设计・监理・咨询等 中石化上海工程有限公司(设计报批)
上海香鹿志投资咨询有限公司(策划)
中汽研汽车工程(天津)有限公司(监理)
施工单位 清水建设(中国)有限公司
其他设计合作企业 株式会社FIELD FOUR DESIGN OFFICE(室内设计)
照片来源(中英) 清水建设株式会社 / Shimizu Corporation
姓名 所属部门、职位
矢野雅规 建筑设计总部 设计部门 设计总监
荒木健介 建筑设计总部 设计部门
山田诚治 建筑设计总部 设计部门 设计主管
Project name(Japanese) 先端技術研究開発センター
Project name(English) TOYOTA Research and Development Center
Purpose Research institute
Location(prefecture, city) 6333 Jiasong North Road, Jiading District, Shanghai, People’s Republic of China
Site area(m2) 41,062.5
Total floor area(m2) 46,002.8
Number of floors Seven above-ground floors
Eave height/maximum height(m) 45.99
Main structure Reinforced concrete construction (partially precast concrete structure), partial steel frame construction
Completion month/year Building completion: May 2023. Overall completion: December 2023
Client name(Japanese) 豊田汽車技術開発(上海)有限公司
Client name(English) Toyota Motor Engineering & Manufacturing (Shanghai) Co., Ltd.
Lead architect Nikken Sekkei Ltd
Main scope Nikken Sekkei Ltd (concept design, design supervision)
Shimizu Corporation (design development)
JV, joint design, supervision, consulting, etc. SINOPEC Shanghai Engineering Co., Ltd.(application design)
Shanghai X’roots Consultant for Investment Co., Ltd.(planning)
China Automotive Engineering Research Institute Co., Ltd.(supervision)
Construction Contractor Shimizu Corporation (China) Limited
Other cooperating companies Interior: Field Four Design Office
Photo credit (日英) 清水建設株式会社 / Shimizu Corporation
Full Name Role, Job Title, Department etc.
Masanori Yano Director, Architectural Design Group, Architectural Design Department
Kensuke Araki Architect, Architectural Design Group, Architectural Design Department
Seiji Yamada Associate, Architectural Design Group, Architectural Design Department
More:株式会社日建设计。更多关于:Nikken Sekkei Ltd














