临汾射击馆,山西/建筑设计
临汾射击馆位于山西省临汾市市区以北,西临汾河,周边绿化丰富。
Linfen Shooting Center is built north of the city of Linfen, Shanxi province, enclosed by vast natural fields on the east bank of the fenhe river.
▼项目概览,project overall view

射击馆兼具训练与比赛功能,主要由飞碟靶场(室外),25米射击馆(半室内),50米射击馆(半室内),10米射击馆(室内)四个不同的部分组成。我们将几个射击场馆紧凑的组合在一起,10米射击馆置于50米射击馆的上方,在节约用地的同时避免了过长的流线。为保证运动员免受光线干扰,所有场馆都为南北向,运动员在进行比赛或训练时均面向北方。
The shooting center is designed to support both the training and future competition for athletes. It contains four main shooting space: The Frisbee Rang (outdoor), the 10-meter shooting hall (indoor), the 25-meter shooting hall (semi outdoor) and the 50-meter shooting hall (semi outdoor). Our design combines these four major space together into a group and places them all facing northward which improves land usage and protects athletes from glare both in daily training and match days.
▼剖面图,sections

▼建筑外观,exterior view

▼幕墙与木质纹理,curtain wall and wooden elements


在流线上,运动员从枪械库房旁的入口进入建筑,训练流线简洁安全、方便管理。观众则从射击馆南侧两端的入口进入各个场馆,与训练流线互不交叉。
As to the circulation, all the athletes enter the building in the middle near the gun and ammunition storage room, while the audiences access the building from both end from the south, in this way the two flow of different people are physically separated which facilitate daily management and ensure security.
▼功能流线及形体生成,circulation and layout diagram

▼建筑入口,entrance

▼靶场内部空间,Shooting Center internal space


建筑形体舒展,起伏有序,接近自然山体的天际线削弱了方整的建筑体量在绿化中的突兀感。而纵向的切片的操作则增加内外空间的渗透,使建筑更好地融合在环境当中。
The building’s volume stretches east-west horizontally, while the contour line mimics the undulating silhouette of the distant mountain range which intends to establish a close relationship with the context, and diminishes the abrupt man-made sense of this square-planed building. By further slicing the building volume into pieces, we want to encourage the indoor outdoor visual connection and make an otherwise large volume building better integrated into the natural environment.
▼从入口路径远观建筑,view to the building from the entry way

▼接近自然山体的天际线,the contour line mimics the undulating silhouette of the distant mountain range

▼夜间的射击馆,Shooting Center by night

▼总平面图,site plan

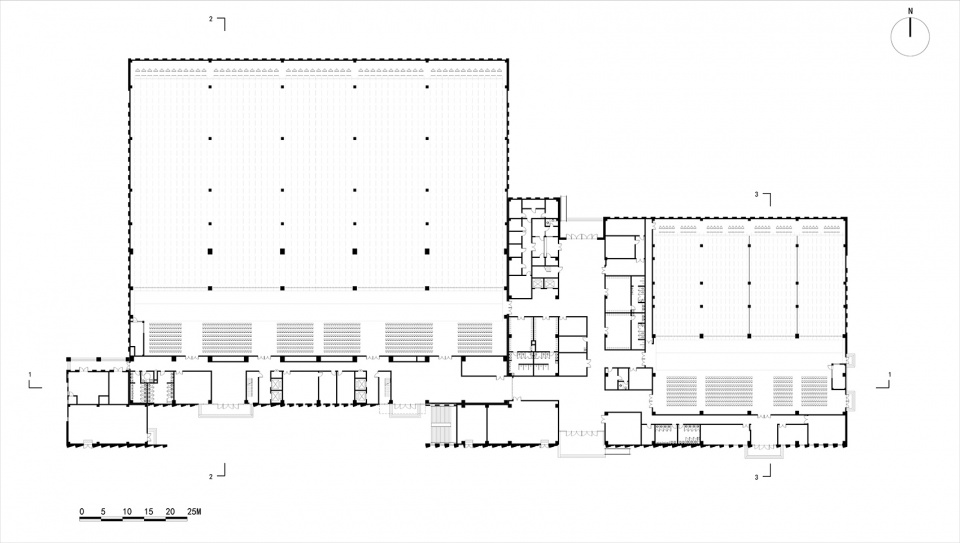
▼一层平面图,plan 1F

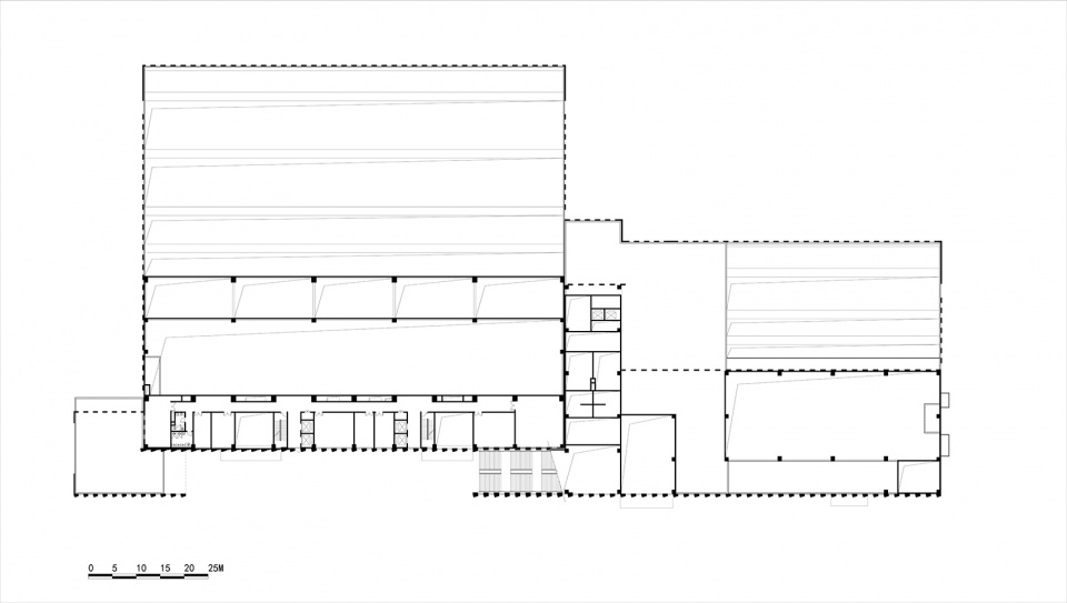
▼二层平面图,plan 2F

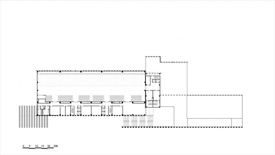
▼三层平面图,plan 3F

▼四五层平面图,plan 4F and 5F

项目信息
项目名称:临汾射击馆
设计团队:杨光
文章分类:建筑设计-文化体育
设计公司:中国建筑设计研究院有限公司
项目地址:山西
项目规模:11250m²
总图专业:段进兆
电气专业:何静、张泽鹏
Project information
Project Name: Linfen shooting Hall
Design team: Yang Guang
Article classification: Architectural Design - culture and sports
Design company: China Architectural Design and Research Institute Co., Ltd
Project address: Shanxi
Project scale: 11250 m²
General layout major: Duan Jinzhao
Electrical major: He Jing, Zhang zepeng














