西浜村农房改造工程二期,昆山/建筑
这座农房位于昆山市巴城镇西浜村,在2016年落成的西浜村昆曲学社东边,便是以微介入方式恢复乡村文化,乡愁乡貌的又一次重要探索。当年学社的建成,搭建了村民了解和熟知本土文化朝夕相处的文化媒介,小村中昆曲萦绕,来者驻步停留,研习玉山雅集。小建筑也和周边村民的生活紧密结合,互惠互助。
The farmhouse is located in Xibang Village, Ba town, Kunshan, on the east side of Xibang Kunqu Opera Academy, Kunshan. The project is another important attempt of micro-intervention to restore rural context. The establishment of opera academy provides local residents in the village a media to become familiar with their native cultures. The sound of Kunqu opera haunts in the village, stops visitors for apprecciating the elegant gathering of literati in Yushan. Small buildings are also integrated into the lives of villagers around closely that benefit each other.
▼项目概览,project overall view

这座房子曾经是村民老顾的家(化名),也曾作为学社建设的临时指挥部。2017年,老顾要随子女进城居住,便搬走了。有人建议将老房拆除,设计团队坚决反对,在往来争辩中,有关领导亲自带队到北京,与我们协商小房子去留问题,最后,终于达成一致:保留老房子,改造后交给设计团队使用,以方便团队长期驻守当地乡村,为昆山的乡村建设发挥力量!
The house was once home of a villager, Lao Gu, and also served as a temporary headquarters for developing the academy. In 2017, Lao Gu moved into city with his children. Somebody suggested that the old house should be demolished, however, the design team firmly opposed it. During controversy, local governors personally led the team to Beijing to negotiate with us on whether to keep the house or not. Finally, an agreement was reached: The old house will be preserved, and the design team will use it after renovation to accommodate the team for long term in order to develop villages in Kunshan.
▼西浜村鸟瞰,Xibang Village aerial view

▼远眺阳澄湖,overlook to the Yangcheng Lake

▼改造前的房子,the house before renovation
于是,这座小农房有了新的用途——乡村工作站,在昆曲学社旁兴建起来,由昆山城投公司负责投资建设。整个设计建造过程非常细致用心,尝试探索普通农房的加固改造策略。
Thus, the farm house was put to use as a rural work station, built next to the Kunqu Academy and invested by Kunshan City Investment Company. The whole design and construction process is meticulous, try to explore ordinary farm house reinforcement and transformation methods.
▼工作站与学社,the rural work station
首先,大家确立的原则就是主房不拆,保持乡村的风貌和肌理。这个决定从经济上说不算合理,因为房屋质量较差,空斗墙破损严重。加固的费用可能是新建的2~3倍,但是为了保留乡愁,让老顾的回忆还在;保护乡村机理,让村民认识到老房子的美;探索加固方法,寻找适合江南村落的更新方式,团队尽最大努力保护这栋岌岌可危的老房子。对房屋基础重新进行了混凝土灌注,对空斗墙,细心的开凿,灌注加固砂浆,外侧进行挂网砂浆加固。在楼面板和屋顶很多地方,不得不采用角钢对于开裂部分进行加固。房子的格局完全保持不变,楼上两间卧室,楼下一间卧室一间由原来客厅改造的图书室。保留的老房子满足了日后入住“新村民”的生活需要。
First of all, we established the principle is not to tear down the main house, to maintain the style and texture of the countryside. The decision doesn’t sound good economically because of the poor quality of the house and existed damage to the cavity walls. The cost of reinforcement may be two to three times compared to a new construction. But in order to preserve the memory of Lao Gu, to protect rural texture to make villagers realize beauty of old houses and to explore the methods of reinforcement, to find suitable renewal methods for villages in the south of the Yangtze River, the team did everything they could to protect this crumbling old house. The foundation of the building was re-poured with solid concrete. The cavity wall was dug carefully, poured with mortar to get reinforced. The outside was reinforced with Mesh mortar. Many cracked sections on floor slabs and the roof has to be reinforced with angle steel. The layout of the house remains completely unchanged, with two bedrooms upstairs and a bedroom downstairs with a library converted from the original living room. The renovated old house meet the living needs for the “new villagers”.
▼保留的老房,the remained main house

▼新建部分,the new-built part

为了保持老墙的机理,对已经快脱落的水泥墙皮的保护与加固,不仅是对房屋原本风貌的尊重,更加是对保护技术的研究和探索。现场在设计师和业主代表的紧密监督下,对开裂的缝儿小心剔除,然后补刷砂浆,对于起鼓的位置小心敲开,灌注粘接剂,整个修复过程如同修复一幅古画,细致入微,这也是整个团队对于乡村建设的基本态度:小心谨慎,细致入微。
The cement wall skin, which is already falling off, is protected and reinforced in order to maintain texture of the old wall. It is not only respect to the original style of the house, but also research and exploration to protective techniques. Under close supervision of tdesigners and representatives of the owners on site, workers carefully removed the cracks, then refilled with mortar. Cracked the inflated wall and poured the adhesive. The whole process of restoration is like restoring an ancient painting meticulously. This is also basic attitude of whole team to the rural construction: Be careful and be meticulous.
▼老墙与新建,the old wall and the extension

修复屋顶过程中,大家对拆开吊顶看到的木屋架赞不绝口,经过商议,施工队小心翼翼地将木屋架和草席子保留了下来,并确保日后可以安装回去。
其次,对于原本质量很差的附属用房,原来的厨房、杂物房等等,进行了新的规划。驻场团队需要较大的工作空间,于是采取了“大庇天下寒士俱欢颜”的策略,将院落覆盖起来,为了减少大屋面对乡村机理的影响,采用了三处折叠的方式,化解大屋面的体量。同时为了诚实地表达新建部分,这个屋面采用了全新的钢结构和金属瓦,这一点和昆曲学社采用了同样的处理手法。
In the course of the roof restoration, the existing wooden truss was highly valued for its good condition. After discussion, the construction team carefully preserved the wooden truss and the Straw Mat, ensure that they could be installed back later.
Secondly, new plan is made to ancillary rooms in poor condition, the original kitchen, and storage rooms. The design team needs spacious working space, so they adopted the strategy of “shelter all the poor people to make them happy” and covered the courtyard. In order to reduce the influence of big roof on the rural texture, the roof is designed three folds to reduce the volume of a large roof. To showt new construction honestly, the roof is made of entirely new steel and metal tiles, same method is also applied in Kunqu Opera Academy.
▼分析动图,diagram gif

▼首层工作区,working area on the ground floor

大屋顶的南侧保留了一处小小的院落,为了提高采光,才用了双层花砖墙。大屋顶的西侧是一个敞院儿,也是入口之处,此处是放农具的地方,亦可放置电动车或自行车,总之,房子的附属部门充分满足了“新村民们”生产的需要。
On the South side of the large roof retains a small courtyard, lit through a double tiled wall. The West Side of the roof is an open courtyard, which is also the entrance for placing farm tool or electric vehicles and bicycles. The ancillary rooms in the house entirely meet the “new villagers” needs for production.
▼小院,the small courtyard


关于建筑的室内,完全是全新植入的设计方法,二楼的老走廊变成了工作台,新建的厨房上面是开沙龙的小剧场,而沙龙台阶的下面,是空调的出风口,竹匠们在竹地板上一个一个手工开凿了空调的出风口。新老房子的交界处清晰可见,见证着两栋建筑之间的有机生长。而整个设计再次把新项目织补到了新浜村的机理中,风景依旧如画,小桥偎依人家,原来几乎已经被放弃的老村子,再次注入了新的生命。
The interior design is entirely new. Old corridor on the second floor turns into a workbench, above the new kitchen is a small theater with a salon. Below the salon stepssteps is air conditioning. artisans cut air-conditioning vent holes on the bamboo floor by hand. The boundary between the old and new houses is clearly visible, witnessing the organic growth between the two buildings. And the whole design of the project is woven into the texture of Xibang Village. It is still picturesque, small bridge snuggled up to farm houses, the original almost abandoned old village revives.
▼讨论区,discussion area


▼一层的图书室,reading area on the ground floor

▼二楼的看台,platform on the second floor

这是一次用心的农房改造,也是一次积极的尝试,这种基于原有农房精细改造的策略表达了我们对乡村设计的一贯立场:首先要慢下来,昆曲学社2016年,乡村工作站2018年,景观修复一直在做,在这个小村子里的改造已经经历了5年多时间。其次要少一点,昆曲学社实际使用面积不足千平米,工作站三百多平米,乡村本来就小,不宜一下子改造太多或新建一大片,毕竟会造成肌理的破坏。最后是精心与细致,我们的乡村是祖辈一点点留下来的,弥足珍贵,应该像修补传世之宝一样细致的刻画:耐心而不是急躁,省钱而不是廉价,小微而不是好大,伴随而不是一时兴起……只有这样一步一个脚印,才能真正地修复乡村,复兴乡土文化。
This is a deliberate and positive attempt to renovatel rural houses, the strategy based on the meticulous transformation of existing rural houses that expresses our consistent position on rural design: Slow Down. Kunqu Academy starts in 2016, rural workstation starts in 2018, and landscape restoration is always on the way. We have been working on transforming this small village for more than five years. Secondly,: Be less. The actual area used by the Kunqu Opera Academy is less than 1,000 square meters. There are only 300 square meters for the workstation. The countryside is already small. It is not appropriate to plan and build too much at once. After all, it will cause damage to existing rural texture. Finally: Be careful and meticulous. Our villages are precious and inherited that should be depicted as carefully as they are priceless treasures. Be patient rather than be fast, money-saving rather than cheap, small rather than big, be accompanied rather than a spur of the moment… We could only truly repair the country and revive rural culture step by step like this.
▼水岸视角,view from the creek

▼桥上看去,view from the bridge

▼小院之外,outside the courtyard

▼模型,model

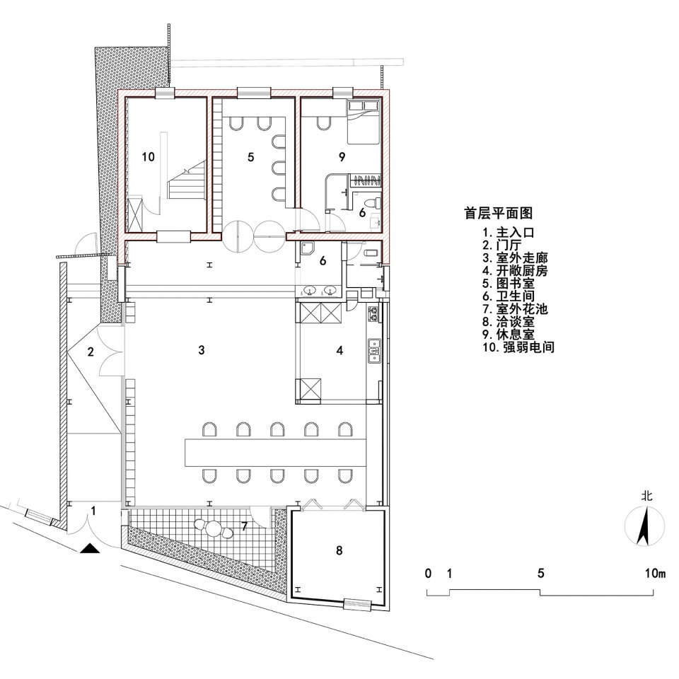
▼首层平面图,ground floor plan

▼二层平面图,second floor plan

▼立面图,elevations


▼剖面图,sections


项目信息
项目名称:西浜村农房改造工程二期
设计团队:崔愷、郭海鞍、向刚、孟杰
文章分类:建筑设计-住宅
设计公司:中国建筑设计研究院有限公司
项目地址:昆山
项目规模:367㎡
施工企业:苏州国通建设工程有限公司
景观设计:冯君、于然
Project information
Project Name: xibang Village Rural Housing reconstruction project phase II
Design team: Cui Kai, Guo Haian, Xiang Gang, Meng Jie
Article classification: Architectural Design - Residence
Design company: China Architectural Design and Research Institute Co., Ltd
Project address: Kunshan
Project scale: 367 ㎡
Construction enterprise: Suzhou Guotong Construction Engineering Co., Ltd
Landscape design: Feng Jun, Yu Ran














