Depart Colegiales公寓,阿根廷 / Grupo Uno en Uno
在Colegiales最具战略意义的位置——Vidal街与Virrey Olaguer y Feliu街交汇的转角处,正对全新的铁路公园(Railway Park),被自然、生机与城市活力所环绕,DEPART由此诞生。
In the most strategic point of Colegiales, at the corner of Vidal and Virrey Olaguer y Feliu, facing the new Railway Park and surrounded by nature, vitality, and urban life, DEPART is born.
▼项目鸟瞰,aerial view of the project

▼公寓鸟瞰,aerial view of the apartment



这是一座与公园展开对话的建筑,在街道层面打造充满活力的商业基座,激活人行界面。向上延展时,体量逐渐消隐为船首般的造型,创造出尺度宏大的多样露台,鼓励人们在城市的“户外”空间中停留更久。
A building that engages in dialogue with the park, proposing a vibrant commercial base for the sidewalk. On the upper floors, it dissolves into a prow that creates diverse terraces with ambitious proportions, inspiring people to spend more time in the “outdoors” of our cities.
▼激活人行界面,proposing a vibrant commercial base for the sidewalk


▼打造充满活力的商业基座,
proposing a vibrant commercial base for the sidewalk


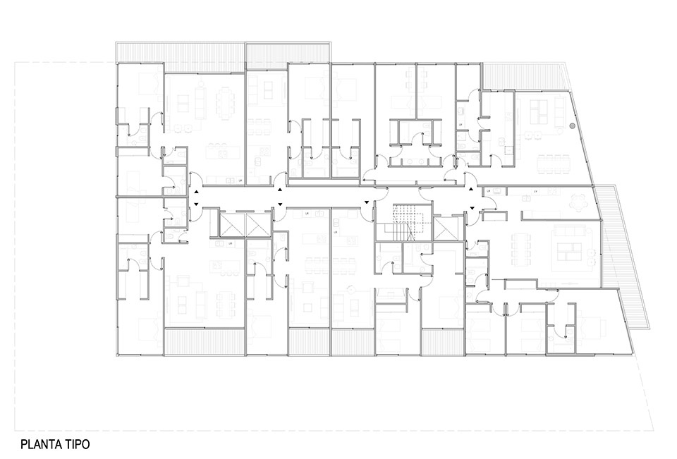
在内部空间中,延续建筑师一贯的特质:尺度宽裕、适宜长时间居住与生活的空间。从1层至7层设置2居、3居和4居单元;8层与9层则构成建筑的点睛之笔——三座拥有私人露台的“城市住宅”。这种位于建筑顶部、拥有独立户外延展空间的模式,为高层住宅单元提供了一种极为罕见的拓展方式。
Inside, the distinctive feature of our buildings: generous spaces designed for living, for staying a long time. Apartments with 2, 3, and 4 rooms from the 1st to the 7th floor, and on the 8th and 9th floors, the building’s crowning element: three urban houses with private terraces, offering an absolutely atypical model of expansion for units located at the top of a building.
▼拥有私人露台的“城市住宅”,urban houses with private terraces


在公共区域中,庭院尤为突出,它如同铁路公园的延伸,被本土植物所环绕。该空间包含一处禅意花园区以及一座室内外连通的泳池。此外,项目还配备水疗中心、桑拿房、双层健身房、多功能厅(SUM)、专业级全配厨房,以及一间可供业主预约使用的客房。
Among the common areas, the patio stands out as an extension of the Railway Park, framed by native vegetation. This space includes a Zen area and an indoor-outdoor pool. In addition, the project features a spa, sauna, two-level gym, multipurpose room (SUM), a fully equipped professional kitchen, and a guest room that owners can reserve.
▼室内外连通的泳池,an indoor-outdoor pool


▼双层健身房,two-level gym

▼禅意花园区,a Zen area

提出一种不同的城市居住方式——在一座始终如一却又不断变化的城市之中——正是建筑师构想DEPART的初衷。
Proposing another way of living in the city—a city that is always the same and always changing—was our main inspiration for creating DEPART.
▼公共区域,public area

▼公共区域,public area

▼住宅区域,residential area


▼傍晚大堂,lobby at dusk

▼场地区位,site location

▼一层平面,ground floor plan

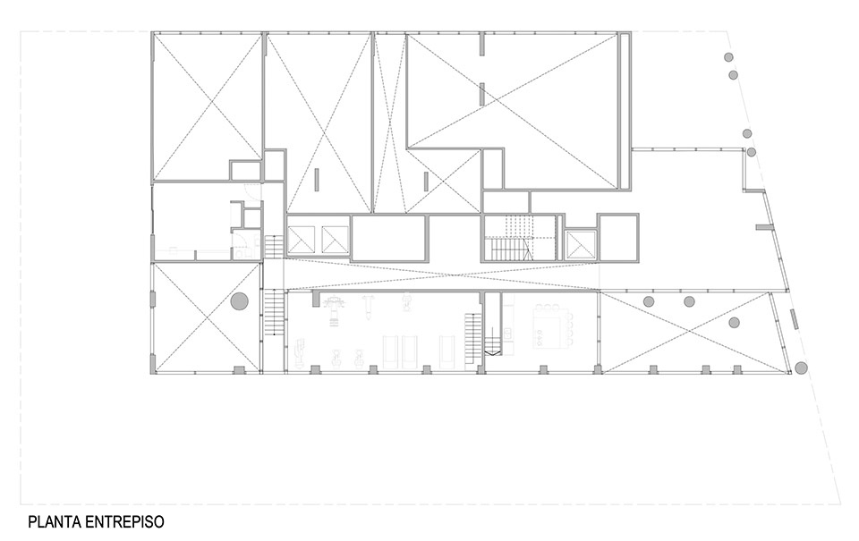
▼夹层平面,mezzanine floor plan

▼居住层平面,residential floor plan

▼立面,elevation


Project Name: Depart Colegiales
Architecture Office: Grupo Uno en Uno
Website: www.grupounoenuno.com
Contact Email: info@grupounoenuno.com
Office Country: Argentina
Construction Year: 2022–2025
Built Area: 10,000 m²
Location: Colegiales, Buenos Aires City
Media Provider
Image Credits: Gonzalo Viramonte
Video Credits: Gonzalo Viramonte
Additional Credits (Optional)
Lead Architects: Grupo Uno en Uno (Dario Balan, Federico Brancatella, Diego Rybka)














