舍得文化博物馆,四川射洪 / OPEN
设计概念 DESIGN CONCEPT
OPEN建筑事务所设计的舍得文化博物馆于2026年1月封顶。博物馆位于四川射洪舍得酒厂的东花园中。在雾气氤氲、群山环抱的涪江之畔,三座岛屿状的建筑体量从一个宽阔的圆形水池中浮现出来,构筑了穿越传统与未来的“一池三山”。
Designed by OPEN Architecture, Shede Culture Museum is located in the East Garden of Shede distillery in Shehong, Sichuan and was topped out in January 2026. On the misty shore of River Fu, where mountains meander, three island-like architectural volumes make their appearances from a vast circular pond, together manifesting the tectonics of the “One Pond, Three Mountains” landscaping ideal that traverses tradition and future.
▼鸟瞰效果图,RENDER Bird Eye View

射洪位于四川盆地的底部,常年气候湿润、绿意盎然。酒厂远离城市,被纯净的自然山水环抱,拥有得天独厚的生态条件。空气、水、土壤、植被和微生物,这些人之外的因素(non-human actors),跟当地人的传统工艺与匠人精神相互作用,成就了独特的舍得酒,也深刻地启发了建筑设计。
Shehong lies at the base of the Sichuan Basin, a lowland in southwestern China with a perennially temperate, humid climate that has produced a lush environment. The distillery, distant from urban areas, is embraced by this natural landscape with exceptional ecological conditions. Non-human actors, such as air, water, soil, flora, and microbes, combine with the enduring local traditional techniques and craftsmanship, resulting in the distinctive Shede spirits. These interdependent human and non-human agencies, and the responsive processes they generate, profoundly inspired and informed the architectural design.
▼南立面效果图,RENDER South Elevation

OPEN的设计始于选址和造园(圆)。建筑师发现了东花园,这里靠近公路和厂区入口,但因为离开生产核心区,目前使用很少,却非常适合成为未来公众与酒厂的连接界面。
OPEN’s design started with selecting the site and shaping the landscape to form a micro-environment. The architect discovered the East Garden which is adjacent to a major road and the distillery’s entrance, but is barely used at the moment, being away from the core production area. This site has great potential to connect the distillery with the public in the future.
▼水庭效果图,RENDER Solid and Transient

建筑师将一个直径90米的圆形水池嵌入现有的花园,以视觉上半透明的环廊围绕水池,水中有安静的涌泉和等离子喷雾装置。圆无棱角,顺畅地融入周围已有的园景,又为新博物馆建筑营造出静谧诗意的独立场地。
▼轴测图,Axonometric

A 90-meter-diameter circular pond is inserted into the existing garden and encircled by a visually semi-transparent covered walkway. Within the water, quiet gushing springs and plasma misting devices active the surface. The circle, without corners, integrating seamlessly with the existing landscape while staging a serene, poetic precinct for the architecture of the new museum.
▼雨景效果图,RENDER Rainy Day

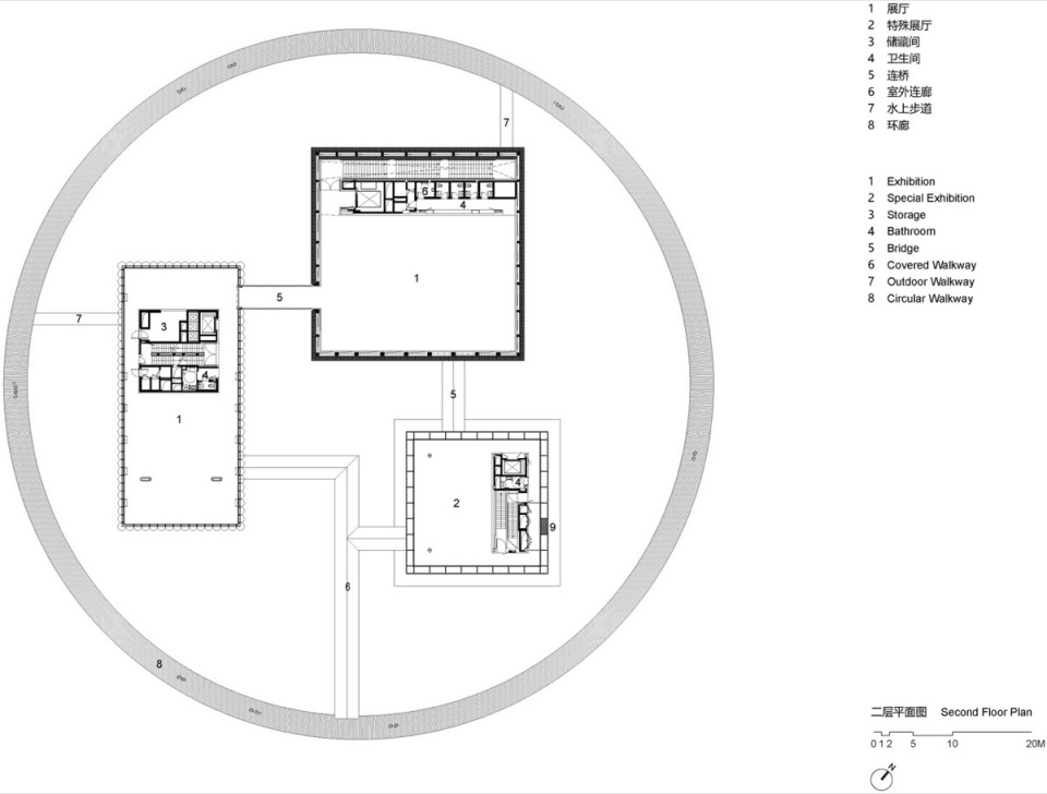
水中浮出三个看似独立的建筑体量:青铜、夯土和玻璃盒子。三个体量又分别跟水面有着不同的关系:一个浮在水上,一个坐在池中,一个嵌入水中上下各一半。半透明的玻璃盒子被安静的流水通体覆盖,水从屋顶流下,顺着四周的玻璃表面一直落到地下二层,往复循环。
▼建筑轴测图,Axonometric

Three seemingly independent volumes emerge from the water—the Bronze Box, the Earth Box, and the Glass Box. Each establishes a distinct relationship with the water surface: one floats above it, one rests within the pool, and one is embedded in the water with half above and half below the surface. The translucent glass volume is quietly sheathed in flowing water that cascades down the glass surfaces on all sides to the second basement level below, where it is continuously recirculated.
▼玻璃盒子室内效果图,RENDER Glass Box Interior

水中的建筑倒影、流水和间歇的雾气、岛屿以及廊桥,营造出神性诗意的氛围,既是极简和克制的,又是丰富和变化的。拉开的建筑体量和水景的穿插交叠,创造出非常不同的博物馆游历体验。在这里,观展是在建筑的“山”和景观的“水”之间交替进行。人们时而在沉浸式的暗空间里,时而从丰富和变化的水景中穿过。在虚实和明暗的不断变化中,体会与自然环境、时间循环、以及诗酒文化的深层关联。
▼功能及流线分析图,Program & Circulation Diagram

The reflections of the buildings in the pond, the flowing water and drifting mist, the islands and bridges, together frame a poetic and atmospheric ambience, at once minimalist, restrained and rich, ever-changing. The separated architectural volumes and the interweaving waterscape generate a unique museum experience. Here, the visitors traverses the “mountains” of the architecture and the water of the landscape, alternating between dark immersive exhibition spaces and the changing waterscape. Amid the continual shifts between the tangible and the intangible, light and shadow, one senses a deep connection with the natural environment, the cycles of time, and the culture of poetry-and-spirits.
▼青铜盒子室内效果图,RENDER Bronze Box Interior

这里的设计灵感来自于中国古典园林中“一池三山”的造园理法,即用宽阔的水体和水中岛屿映射出上古神话中仙境的意向。仙境,是中国先民集体意识中理想生活的映射,跟传统诗酒文化中的飘然欲仙息息相通。酒也是时间的艺术,是自然与时间共同发酵的产物。OPEN以三种源于自然并与舍得酿酒密切相关的材料——生土、玻璃和青铜,来塑造时间之诗。被流水覆盖的玻璃盒子,安静地讲述水的故事——水既是生命的源头,也是酒的底色。夯土盒子采用当地的黄土,这是用来做窖池的材料,而窖池则是舍得酿酒的灵魂。夯土也是当地的传统建造方法,在结合了当代的夯土技术后,可以既保留土墙的热工效能,又更好地耐受风雨和时间的痕迹。建筑师将特殊的符号嵌入土墙里,留给未来的世代去解读。青铜盒子的表面则覆盖弧形的穿孔青铜板,其上精心设计的孔洞暗藏了摩斯密码编译的描写射洪酒的诗句。青铜是传统酒器和乐器常使用的材料,建筑师以此致敬酿酒的工匠精神。随着时间推移,青铜表面的铜绿会缓慢变化,建筑有意留下时间掠过的痕迹。
▼节能分析图,Sustainability Diagram

The design draws on the classical Chinese garden principle of “One Pond, Three Mountains”, where expansive water and islands within evoke the immortal realm in ancient mythology. In the collective imagination of early Chinese culture, the immortal realm embodies an ideal mode of life, sharing inextricable connections to the state of ethereal lightness from the long tradition of poetry-and-spirits. Spirit is an art of time: a product of nature and time fermenting together. OPEN chooses three natural materials closely related to the making of Shede spirits—raw earth, glass, and bronze—to sculpt a poem of time. The Glass Box, veiled by flowing water, soundlessly tells a story of water—the source of life and the undertone of spirits. The Earth Box is built with local yellow mud, the same material used to build fermentation pits, which are the soul of the making of Shede spirits. Rammed-earth is a local vernacular construction method; when combined with contemporary techniques, the rammed-earth walls maintain their thermal properties, while being better prepared to withstand weathering and marks of time. Special symbols are embedded into the earth walls, left for future generations to interpret. The Bronze Box is clad in semi-cylindrical perforated bronze panels; the intricate perforations on the panels are, in fact, verses about spirits transcribed in Morse code. Bronze was a common material to make traditional spirit vessels and musical instruments; the façade cladding is therefore the architect’s homage to the craftsmanship of spirit-making. Over time, the patina over the bronze surface would witness natural changes, as if the building possesses life in its own way.
▼夯土盒子室内效果图,RENDER Earth Box Interior

三个漂浮的盒子容纳了入口门厅、展览空间、工作坊、餐厅及体验商店等主要公共功能。水面之下,建筑空间为完整一体,包括了多功能小剧场、排练厅、水吧、办公及后勤等完备的功能,既为观者提供更多维度的丰富体验,也以连续空间的包容性成就了地上的纯净和诗意。
▼李虎草图,LI Hu Sketch

The three floating boxes house the main public programs, including the entrance lobby, exhibition spaces, workshop, restaurant, and shop. Beneath the water surface, the spaces are unified into a cohesive entity, accommodating a small multifunctional theater, rehearsal room, café, offices, and back-of-house facilities. This set-up offers visitors a rich, multi-dimensional experience, while the connectedness of the underground spaces preserves the apparent purity and poetry of the architecture above ground.
▼小剧场效果图,RENDER Theater

博物馆在设计上整合了被动式与主动式的节能策略,以构建低碳且具韧性的环保节能建筑体系。地源热泵系统和水蓄冷及蓄热系统的同时运用,可以极大地减少运行费用。青铜盒子屋顶设置太阳能光伏发电系统。生活热水采用空气源热泵及太阳能板,新风系统利用热回收。同时,项目建立了水循环系统,收集和再利用雨水,并采用酒厂生产中引流的涪江江水用于水池景观,充分利用了场地内及周边既有的基础设施和资源。舍得文化博物馆正在紧锣密鼓地施工中,预计将于2027年春季完工。该项目已获2025 Active House Award一等奖、un Design Awards铂金奖。
▼水循环分析图,Water Recycling Diagram

The museum integrates both passive and active strategies to create a low-carbon, resilient, environmentally friendly building system. The combined use of a ground heat pump system and water thermal storage for cooling and heating significantly reduces operating costs. Photovoltaic solar panels are installed on the roof of the Bronze Box to generate power. Hot water for daily use is supplied by air-source heat pumps and solar panels; the fresh air system uses heat recovery units. Meanwhile, the project establishes a water recycling system to collect and reuse rainwater. The water diverted from the Fu River, already being used in the distillery’s production process, is used for the pond landscape, thereby fully leveraging existing infrastructure and resources on and around the site. Construction of the museum is in full swing, and is expected to be completed in spring 2027. This project has been awarded the First Prize of the Active House Award 2025, as well as the Platinum Award of the un Design Awards.
▼模型,Model

▼首层平面图,Ground floor plan

▼二层平面图,First floor plan

▼剖面,Section

▼南立面,South Elevation

项目概况
设计时间:2023 – 2027
阶段:施工中
甲方:舍得酒业
功能:展览、剧场、工作坊、咖啡厅等
建筑面积:10,876平方米
地点:中国,射洪
项目团队
建筑、室内、景观设计:OPEN建筑事务所
建筑、结构、机电及景观施工图单位:中国建筑西南设计研究院有限公司
室内施工图单位:北京清尚建筑设计研究院有限公司
结构顾问:和作结构建筑研究所
机电及节能顾问:上海蔺先工程顾问有限公司
幕墙顾问:阿法建筑设计咨询(上海)有限公司
夯土技术顾问:土上工作室
水景技术顾问:上海素水艺术设计有限公司
剧场及声学顾问:黄展春剧场建筑设计顾问(北京)有限公司
照明顾问:格锐照明设计
博物馆展陈设计:上海超自然文化科技有限公司
标识设计:北京图石空间创意设计有限公司
PROJECT FACTS
Design Year: 2023 – 2027
Status: Under Construction
Client: Shede Spirits
Program: Exhibition, Theater, Workshop, Café
Building Area: 10,876 sqm
Location: Shehong, China
CREDITS
Architectural, Interior and Landscape Design: OPEN Architecture
Architectural, Structural, MEP and Landscape Construction Documents: China Southwest Architectural Design and
Research Institute Co., Ltd
Interior Construction Documents: Beijing Tsingshang Architectural Design and Research Institute Co., Ltd
Structural Consultant: AND Office
MEP and Sustainability Consultant: LINK Engineering Consultant
Curtain Wall Consultant: RFR
Rammed Earth Consultant: On Earth Studio
Waterscape Consultant: Shanghai Sushui Art Design Co., Ltd
Acoustic and Theater Consultant: JH Theatre Architecture Design Consulting Company
Lighting Consultant: Gradient Lighting Design
Scenographer: Shanghai MANA Culture & Technology Co., Ltd
Signage Design: Tothree Design Co., Ltd














