Lebenski公寓,斯洛伐克 / Atrium Architekti
山地建筑的复兴之美 The Revived Beauty of Mountain Architecture
Lebenski公寓建筑独立矗立在山地森林带的边缘,其背后是雄伟耸立的高塔特拉山脉。建筑位于Horný Smokovec地区一个名为Pekná vyhliadka(意为“美丽景观”)的高地,这一独特的位置使其成为从Poprad远望即可识别的地标。因此,建筑师希望这座建筑在环境中呈现出平静而克制的姿态,并以形式的简洁与纯粹吸引人们的目光。
▼改造前后对比轴测图,Axonometric diagram before and after renovation


The Lebenski apartment building stands solitarily on the edge of the mountain forest zone, behind which the majestic peaks of the High Tatras rise. Its exclusive position in the Horný Smokovec locality, aptly named Pekná vyhliadka (Beautiful View), makes it a dominant feature visible from Poprad. This is why the architects aimed for the building to appear calm in its setting and draw attention with its formal simplicity and purity.
▼山地环境中的建筑,
Building in the mountain landscape


Lebenski这一名称来源于原有的疗养院Nový život(意为“新生命”),该建筑建于20世纪60年代初。自20世纪90年代以来,这座建筑逐渐破败,既失去了原有的建筑品质,也丧失了功能价值。随后,Bukna & Laurinčík公司购入该建筑,并于2023年启动将其全面改造为公寓建筑的计划,委托Atrium Architekti事务所负责设计。此前,双方曾在Dolný Kubín合作完成过一个成功项目,并获得CEZAAR建筑奖提名。
The name Lebenski refers to the original sanatorium Nový život (New Life), built in the early 1960s. The structure, which had deteriorated and lost its architectural and functional qualities since the 1990s, was purchased by the company Bukna & Laurinčík, which began its complete transformation into an apartment building in 2023, entrusting the project to Atrium Architekti studio. This followed their previous successful project in Dolný Kubín, which was nominated for the CEZAAR award.
▼项目概览,
Project overview


此次改造的基本框架由塔特拉国家公园(TANAP)以及维索凯塔特拉市政府的严格规划规定所限定,同时也需满足业主对于空间最大化利用的要求。建筑师的设计目标是恢复建筑原有的功能性优雅气质,其灵感来自塔特拉山区酒店建筑的传统风格。通过将阁楼和地下层改造为居住空间,新的公寓建筑在不改变原有高度、建筑占地和整体轮廓的前提下,提高了住宿容量。
The framework for the reconstruction was defined by the strict regulations of the TANAP National Park and the town of Vysoké Tatry, as well as the investor’s requirement for maximum utilization of all spaces. The architects’ intention was to restore the building’s purposeful elegance, inspired by the architecture of Tatra mountain hotels. The accommodation capacity of the new apartment building was increased by converting the attic and basement into residential spaces, while the original height, built-up area, and silhouette of the building were preserved.
▼鸟瞰建筑体量,
Aerial view of the building


▼建筑掩映在雪地与林木之间,Building set among snowy woodland


▼林间的建筑体量,Building volume emerging among trees




从破败酒店到公寓建筑 From Dilapidated Hotel to Apartment Building
在改造过程中,这座三层建筑原有的钢筋混凝土结构被剥离至承重骨架,并重新进行了结构加固与静力优化,尤其是在阁楼和地下层区域。项目最大的挑战在于将地下层改造为居住空间,其中还包括位于新设计露台下方的区域。原本露台直接铺设在地面上,因此需要在两侧进行延伸,并增设新的基础体系。地下层的公寓被设计为复式单元,以确保获得理想的净空高度。
The original reinforced concrete structure of the three-story building was stripped down to the load-bearing skeleton during the reconstruction and statically re-engineered, particularly in the attic and basement. The greatest challenge of the project was converting the basement into residential space, including the area beneath the newly designed terrace. The terrace was originally situated directly on the ground, so it had to be extended on the sides and supplemented with a system of new foundations. The apartments here are designed as two-level units to ensure optimal clear height.
▼建筑西南角,View from south-west corner


▼建筑南立面,South façade

▼建筑西立面,West façade

▼建筑东立面,East façade

通过对原有山墙屋顶的调整,建筑在形态表达上实现了细腻而克制的变化:原屋顶被替换为延伸的四坡屋顶,这种形式仍然保留了传统山地建筑中具有代表性的主导特征。新的屋顶空间容纳了带有生活夹层与内退露台的复式公寓,并朝向南侧布置。建筑周边增设了阳台与凉廊,同时通过扩大窗洞尺寸,使室内空间更充分地面向高塔特拉山脉的自然景观。
A sensitive change in architectural expression was achieved by replacing the original gable roof with a hip roof extension, which remains a dominant feature typical of traditional mountain architecture. The new roof now accommodates maisonette apartments with living galleries and recessed terraces, oriented to the south. Balconies and loggias were created around the perimeter of the building, and the enlargement of windows further opened up views of the surrounding High Tatras landscape.
▼鸟瞰屋顶,
Aerial view of the roof

材料策略同样尊重建筑本身的性格。第三层与阁楼部分采用锌钛金属板覆层,而一层和二层则使用抹灰立面。尽管成本较高,业主仍然决定恢复由约40厘米深的大型花岗岩块构成的基座。对这些石材进行拆解与重新铺设是一项极其复杂的石工工程。
The material solution also respects the object’s character. A zinc-titanium cladding was used on the third floor and in the attic, while the first and second floors have a rendered façade. Despite the significant financial cost, the investor opted to restore the plinth made of massive granite blocks about 40 cm deep, the dismantling and re-laying of which represented an extraordinarily complicated stonework task.
▼建筑西立面近景,West façade close view

▼建筑东立面近景,East façade close view

▼建筑北立面近景,North façade close view

具有山地气质的居住方式 Living with a Mountain Character
公寓提供多种不同面积的户型,从较小的单元到带有夹层空间的复式住宅。室内设计中,建筑师主要确定了基础平面布局、空间高度以及关键要素,例如以中性色调为主的材料体系,以及浅色地面与木材的搭配。各个公寓内部的家具布置与最终空间氛围,则由业主根据个人喜好自行决定。
The apartments are designed in various sizes, from smaller units to maisonette apartments with gallery spaces. Within the interior, the architects defined the basic layout, space heights, and key elements, such as a material palette of neutral colors, light floors combined with wood. The furnishing and final appearance of the interiors of the individual apartments are left to the owners’ individual preferences.
▼公寓室内空间概览,Apartment interior overview




▼公寓室内一角,A corner of apartment interior




停车空间采用草格铺装进行新的组织方式,而该项目更大的优势在于便捷的公共交通条件。塔特拉电气铁路(TEŽ)站点距离建筑不到100米,可轻松连接周边山地度假区以及通往Poprad的快速列车。同时,一条步行道沿着建筑下方的Cesta slobody(自由之路)延伸,从Tatranská Lomnica一直通向Tatranská Polianka。
Parking is newly managed with grass grid paving, but the advantage lies in alternative transportation. The Tatra Electric Railway (TEŽ) is less than 100 meters away, providing easy connections to other mountain resorts and express trains to Poprad. A walkway also runs directly below the building along the Cesta slobody (Road of Freedom), stretching from Tatranská Lomnica to Tatranská Polianka.
▼场地总平面图,Site plan

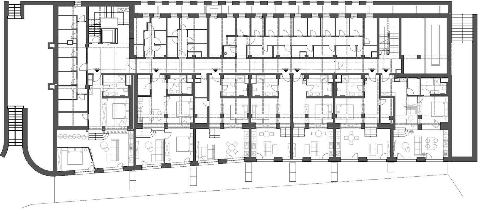
▼地下层平面图,Basement floor plan

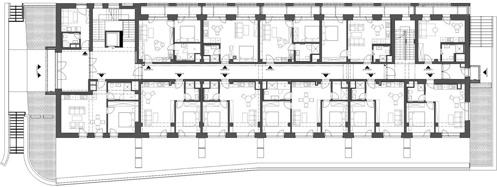
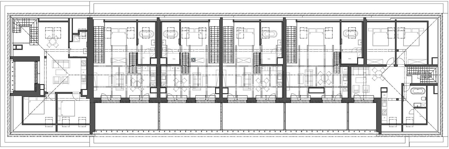
▼首层平面图,Ground floor plan

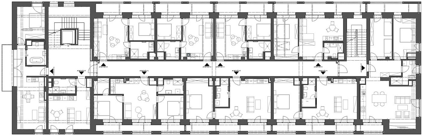
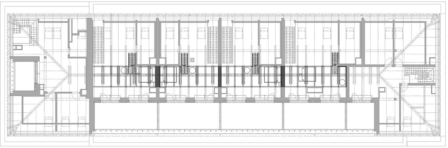
▼二层平面图,First floor plan

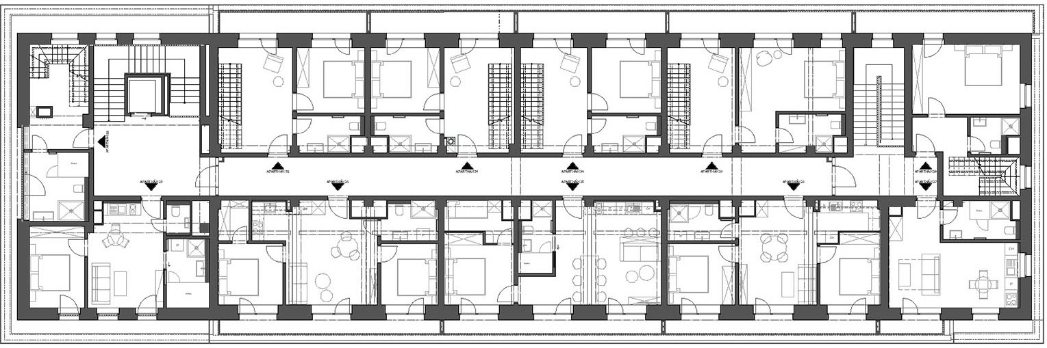
▼三层平面图,Second floor plan

▼阁楼层平面图,Attic floor plan

▼阁楼夹层平面图,Attic gallery floor plan

▼改造前后南立面图,South elevation before and after renovation


▼改造前后北立面图,North elevation before and after renovation


▼改造前后西立面图,West elevation before and after renovation

▼改造前后东立面图,East elevation before and after renovation

▼剖面图,Sections


Studio: Atrium Architekti
Author: Michal Burák
Contact E-mail: info@atriumarchitekti.sk
Website: www.atriumarchitekti.sk
Social media:
www.facebook.com/atriumarchitekti
www.instagram.com/atrium_architekti
www.linkedin.com/company/atrium-architekti
Studio address: Mlynská 27, 040 01 Košice, Slovakia
Co-author Dušan Burák, Jana Varchola Buráková, Matúš Gomolčák, Anton Lukáč, Martina Schmidt, Marek Dubiel
Project location: Starý Smokovec, High Tatras
Project country: Slovakia
Project year: 2022
Completion year: 2024
Built-up area: 1076 m²
Gross floor area: 4600 m²
Usable floor area: 3843 m²
Plot size: 3950 m²
Client: B.L.
Client’s website: www.lebenski.sk
Photographer: Matej Hakár, www.matejhakar.com, info@matejhakar.com














