SYMBOLPLUS办公室,日本 / SYMBOLPLUS INC.
SYMBOLPLUS OFFICE位于建筑师Akio Hayashi拥有的一栋木结构建筑中,他长期以来对天然材料的倡导成为了此次改造的起点。设计任务很明确:避免使用合成材料,在既有条件的基础上进行改造。该项目不追求视觉冲击,而是专注于建筑、材料和时间之间的延续性。
SYMBOLPLUS OFFICE is located in a timber building owned by architect Akio Hayashi, whose long-standing advocacy for natural materials became the starting point of the renovation. The brief was clear: avoid synthetic materials and work with what already existed. Rather than pursuing visual impact, the project focuses on continuity―between architecture, material, and time.
▼项目概览,Aerial view of the project


设计尽可能地保留了原有的木结构。新的元素遵循建筑的节奏、比例和质感,让新旧得以无对比地共存。办公室成为一个工作静静展开的场所,由其所处的建筑环境塑造,而非强加于其上。
The design preserves the original timber structure as much as possible. New elements follow the building’s rhythm, proportions, and warmth, allowing old and new to coexist without contrast. The office becomes a place where work unfolds quietly, shaped by its architectural context rather than imposed upon it.
▼入口处楼梯,Stairs at entrance


▼新旧共存,Allowing old and new to coexist

材料作为记忆 Material as memory
材料的选择强化了这种态度。产自石川縣的红土由工匠以多层抹灰的方式施工,其色调经过精心调整,以与木结构相呼应。障子隔扇采用了原本要被废弃的回收土佐和纸制作。由于这种纸对于建筑使用而言过薄,便通过多层复合来实现耐用性和透光性。
Material choices reinforce this attitude. Red earth sourced from Ishikawa was applied in layered plaster by artisans, its tone carefully adjusted to resonate with the timber structure. Shoji partitions were made from reclaimed Tosa washi originally intended for disposal. As the paper was too thin for architectural use, it was layered to achieve durability and translucency.
▼障子隔扇,Shoji

这些障子充当了灵活的隔断,使空间可以在开放与私密之间转换。在会议区,它们可以在需要时隐藏搁架和设备,在保留功能的同时维持视觉上的宁静。

These shoji serve as flexible partitions, allowing the space to shift between openness and privacy. In meeting areas, they conceal shelving and equipment when needed, maintaining visual calm without erasing function.
▼会议室,Meeting room

▼障子隐藏搁架和设备,Shoji conceal shelving and equipment


▼细部,Details

克制中的适应性 Adaptability through restraint
创新通过克制显现。障子面板的滑动不依赖金属配件,而是依靠传统的木工技艺。旋转式天花板面板仅在需要时显露照明,减少了视觉干扰。这些细节并非怀旧的姿态,而是让办公室能够随时间推移而适应的实用系统。
Innovation appears through restraint. Shoji panels slide without metal fittings, relying on traditional carpentry techniques. Rotating ceiling panels reveal lighting only when required, reducing visual noise. These details are not nostalgic gestures, but rather practical systems that allow the office to adapt over time.
▼办公区域,Office area


▼茶水间,Pantry

该项目不过度设计,而是接纳变化作为建筑的一部分。空间通过使用、光线和日常的驻留而演变——既根植于过去,又对未来保持开放。

Rather than over-designing, the project accepts change as part of architecture. The space evolves through use, light, and daily occupation―remaining open to the future while grounded in its past.
▼洗手间,Restroom

▼Logo展示,Logo


办公室作为容器 An office as a vessel
SYMBOLPLUS OFFICE 并非被构想为一个展示厅,而是一个由价值观塑造的工作环境——这些价值观是: longevity( longevity )、 reuse( reuse )、 and humility toward existing architecture( and humility toward existing architecture )。通过在既有基础上进行建造,该项目展示了适度的干预如何在保持对社会和环境负责的同时,延长建筑的寿命。
SYMBOLPLUS OFFICE is not conceived as a showcase, but as a working environment shaped by values―longevity, reuse, and humility toward existing architecture. By building upon what was already there, the project demonstrates how modest interventions can extend the life of architecture while remaining socially and environmentally responsible.
▼细部,Details


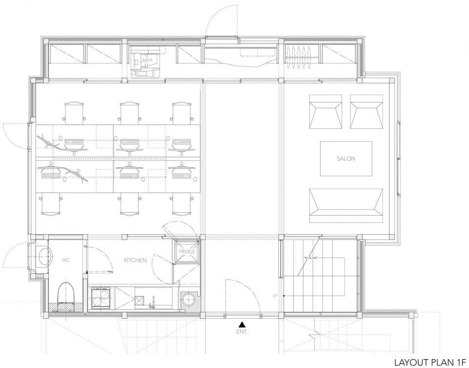
▼首层平面图,First floor plan

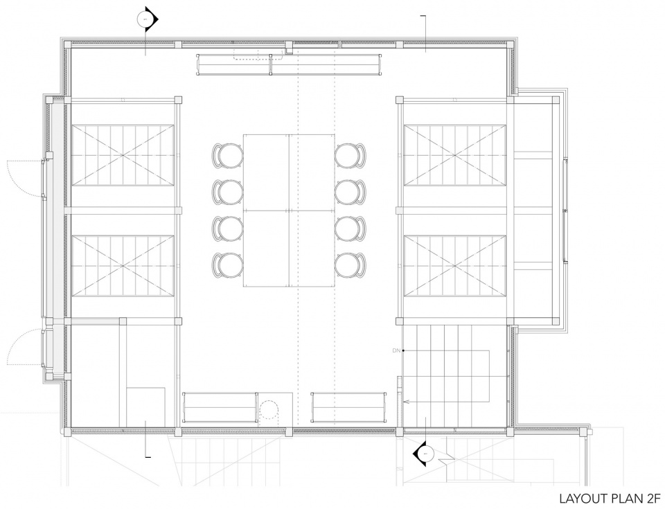
▼二层平面图,Second floor plan

▼剖面图,Section

▼细部图,Details

Technical sheet
Project Name: SYMBOLPLUS OFFICE
Client: SYMBOLPLUS
Location: #2F 5-16-9 Shimoigusa, Suginami, Tokyo, Japan
Building Type: Office renovation (timber structure)
Total Area: 76.3sqm
Design Firm: SYMBOLPLUS INC.
Design Team:
Satoshi Nobekawa, Co-founder and Designer
Sho Watanabe, Co-founder and Designer
Construction: SET UP CO.,LTD.
Lighting Planner: Filaments Inc.
FF&E Constructor: mirai sousaku-jo co.,ltd.
Plasterer: SAKAN TKURA | Tatsuya Tokura
Japanese Wallpaper Supplier: Wajue Inc.
Glass Supplier: Chunichi Stained Art Co.,Ltd.
Stone Supplier: Matsushita Sangyo Co.,Ltd.
Wood Supplier: Yasuta Veneered Surfaces&Design
Carpet Supplier: Sangetsu Corporation
Project Completion: July 2024
Photographer: Keishin Horikoshi














