界面之家,吉隆坡 / Core Design Workshop
界面之家是一项住宅改造项目,在吉隆坡开发商建造的零地界平房的限制条件下,重新思考户外生活的方式。
Interface House is a residential renovation that rethinks outdoor living within the constraints of a developer-built zero-lot bungalow in Kuala Lumpur.
▼项目鸟瞰,Aerial view of the project

▼建筑外景,Exterior of the building

该项目并未通过直接附加的方式扩展既有建筑,而是在原有建筑之外600毫米处布置了一个新的清水混凝土体量,在新旧之间形成一道狭长的缝隙。这一间隙作为一种空间界面发挥作用,成为调和层,使光线、空气与人的流动得以持续穿行,同时保持两者结构的独立性。
Rather than extending the existing house through direct attachment, a new off-form concrete volume is positioned 600 millimetres away, forming a narrow void between old and new. This gap operates as a spatial interface, a mediating layer that allows light, air and movement to pass continuously while maintaining the independence of both structures.
▼新旧体量之间的界面缝隙,Interface void between old and new volumes


在地面层,现浇水磨石地面贯穿两个体量连续铺展,在实体分离的前提下建立起空间的整体连续性。上方,新屋顶独立跨越,其弧形混凝土形态源自结构逻辑的推导,而非形式先行的表达。
At ground level, a cast in-situ terrazzo floor runs uninterrupted across the two volumes, establishing continuity despite physical separation. Above, the new roof spans independently, its curved concrete form developed through structural logic rather than formal intention.
▼内部院落,Internal courtyard

▼室内外连续的空间关系,Indoor–outdoor spatial continuity


▼热带气候下的开放与围合转换,Adaptive openness in tropical climate


主要起居空间被组织为一个双层通高的半户外大厅,容纳餐厅与湿厨房功能。空间四周设置通高可旋转的玻璃面板,使其在不同开放程度之间灵活转换,既适应热带气候,又保持与周边景观的视觉连续性。
The primary living space is organised as a double-height semi-outdoor hall accommodating dining and wet kitchen functions. Lined with full-height pivoting glass panels, the space operates across varying degrees of openness, adapting to the tropical climate while maintaining visual continuity with the surrounding landscape.
▼餐厅与厨房空间,Dining and kitchen area

▼贯通两体量的空间,Continuous space across volumes

项目并未将户外生活视为一种附加的风格化表达,而是将其作为一种由邻近关系、结构逻辑与使用方式共同生成的空间状态。因此,既有建筑与新体量之间的关系并非简单的扩展,而是一种共存关系,由那道被精心设定的缝隙所界定,并成为整个建筑的核心装置。
Instead of treating outdoor living as an applied stylistic feature, the project positions it as a spatial condition emerging from proximity, structure and occupation. The relationship between the existing house and the new volume is therefore not one of extension, but of coexistence, defined by a deliberate gap that becomes the central architectural device.
▼半户外双层通高起居空间,Double-height semi-outdoor living hall

▼光线与通风通过界面缝隙渗透,Light and ventilation through interface gap


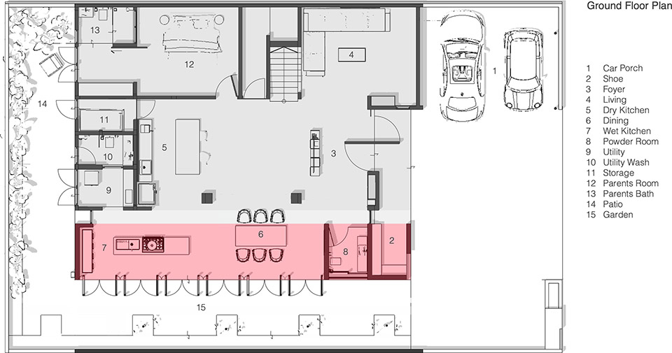
▼地面层平面图,Ground level floor plan

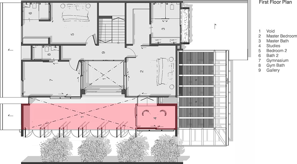
▼1层平面图,Level 1 floor plan

▼2层平面图,Level 2 floor plan

▼立面图,Elevation


▼剖面图,Section


Project Credits
Architect: Core Design Workshop
Principal Designer: Chun Hooi TAN
Location: Kuala Lumpur, Malaysia
Builder: Sinar Sintetik Sdn Bhd
Photographer: Bricksbegin
Structural Engineer: RS Design
Project Year: 2025
Project Type: Residential














