Pur居住型录音工作室,土耳其 / SOUR
▼建筑与场地,Building within the landscape

SOUR已完成Pur项目,这是一座位于爱琴海昆达岛的居住型录音工作室,体现了一种朴素而迫切的信念:音乐将人们连接在一起;它既彰显差异,也促成统一,这是一种我们当今世界亟需借鉴的模式。Pur是一种连接的基础设施,一个让音乐创作行为与跨文化、跨语境的社区建构不可分割的场所。
SOUR has completed Pur, a residential recording studio on the Aegean island of Cunda that embodies a simple but urgent belief: music brings us together; it celebrates diversity, yet enables oneness, a model we need to benchmark more in the world. Pur is infrastructure for connection —a place where the act of making music becomes inseparable from the act of building community across cultures and contexts.
▼建筑海岸视角,Exterior view from sea

▼建筑外观概览,Exterior overview

一种双重对齐的实验 An experiment in dual alignment
项目回应了一个根本问题:建筑如何在尊重其场所的基本特征——海洋、橄榄树、风与鸟——的同时,实现世界级音乐制作所需的声学精度?Pur是一项“双重对齐”的实验:既尊重并融入在地,又通过最先进的技术塑造新的目的地。它证明了全球性与地方性并非彼此竞争,而是可以相互增强。Pur将这种张力转化为空间叙事。建筑被构想为一座简洁的两层砌体与木结构建筑,既回应昆达的建筑遗产,又通过构造表达加以当代表达。
▼剖透视图,Sectional perspective

The project addresses a fundamental question: how can a building honor the elemental character of its place—sea, olive trees, wind, and birds—while delivering the acoustic precision required for world-class music production? Pur is an experiment in dual alignment: respecting and blending in with the local, while enabling a new destination with state-of-the-art technology. It demonstrates that the global and the local need not compete, but rather can amplify one another. Pur turns this tension into a spatial journey. The building is conceived as a simple, two-story masonry and timber structure that respects Cunda’s architectural heritage, while refining its tectonics for contemporary use.
▼建筑外观近景,Exterior close view

▼建筑外观近景,Exterior close view


进入室内,体验随之转变。空间以一系列“声景”展开——不同的高度、宽度、深度,以及精确调校的反射与吸收界面——使每个空间都具备独特的录音特性,这些特性与其形态、体量与材料密不可分,并可被专业听觉所感知。一层GFRC外壳以单一姿态表达这一转变:它作为一个阈值,将使用者从昆达的在地宁静引入高度调校的录音环境,仿佛穿越一条“声景虫洞”,映射出音乐在时间、文化与人之间的流动方式。
Inside, the experience shifts. The interiors unfold as a sequence of soundscapes – varied heights, widths, depths, and carefully calibrated surfaces of reflection and absorption – so each space offers a distinct recording character that is inseparable from its shape, volume, and material, and audible to an educated ear. A GFRC shell expresses this transformation in a single gesture: a threshold that carries users from the vernacular calm of Cunda into a highly tuned recording environment, as if passing through a “wormhole” of soundscapes, mirroring how music itself moves across time, cultures, and people.
一座自然采光的洞穴 A naturally lit cave
这一转变引导使用者从地面层向下进入-10米标高的音乐人休息区。下行的过程营造出一种类似地下洞穴的氛围,契合音乐创作的需求,同时自然光始终作为空间的重要元素存在。
This transformation guides users from the ground floor down to the Musician’s Lounge at the -10 m level. The descent evokes a subterranean, cave-like atmosphere suited to music production, while natural light remains a defining element throughout.
▼休息区,Lounge


▼弧形开窗,Curved openings

尽管存在高差变化,休息区在视觉上仍与上方的餐厅与露台保持联系,使空间保持开放与明亮。这种清晰的联系与流畅的空间过渡,保留了亲密与舒适的体验,塑造了一种真正的“家外之家”的体验,而非“地下空间”的感受。
Despite the level change, the lounge is visually connected to the restaurant and terraces above, keeping it open and light. This clear link and smooth spatial flow preserve a sense of intimacy and comfort—a true home-away-from-home experience, never the feeling of being “in a basement”.
▼通高空间采光,Double-height daylighting

▼上层空间一角,A corner of upper floor interior

▼休息区细部,Lounge detail

录音工作室包括录音室、控制室、人声与打击乐室、混响室、编辑/后期制作空间、母带处理空间以及Dolby Atmos剧场,采用“盒中盒”系统构建,以实现声学隔离与性能优化。主录音室可容纳多达75人的交响乐团,用于大型制作。滑动隔断与可旋转、可调高度的天花板面板,使空间如同乐器般可调,从而拓展声学表现的可能性。双层通高的餐厅构成Pur的社交核心,将室外庭院、休闲空间与露台及海岸连接起来。在这里,酒店功能与高性能声学环境得以无缝共存。
The recording studio, including live rooms, control room, vocal and percussion rooms, reverb chambers, editing/montage suites, mastering suite, and Dolby Atmos theater, is built as a box-in-box system for acoustic isolation and performance. The main live room is scaled to accommodate up to a 75-piece orchestra for large productions. Sliding partitions and rotating, adjustable height ceiling panels allow the live room to be tuned like instruments, expanding the range of acoustic possibilities. A double-height restaurant anchors the social life of Pur, linking outdoor courts and lounges to terraces and the seashore. Hospitality and high-performance sound coexist without compromise.
▼控制室,Control room

▼控制台看向演奏室,Console viewing towards Live Room

▼演奏室一角,A corner of Live Room

▼录音室细部,Studio details

一种协同创作的过程 A process of co-creation
设计体现了通过SOUR的参与式方法与共创框架,与国际及本地音乐人共同形成的原则:亲近自然、“全球在地化”、积极创作的空间以及可供庇护的场所。这些并非抽象理念,而是塑造每一个空间决策的真实需求。最终呈现的是一处文化生产场所,其建筑本身即为协作的见证——由那些将使用并赋予其生命的人共同塑造。
The design reflects principles co-created with international and local musicians through SOUR’s participatory methods and co-design framework: access to nature, being “glocal”, spaces of active creativity, and places of refuge. These aren’t abstract ideals, but rather lived needs that shaped every spatial decision. The result is a place for cultural production where the architecture itself is evidence of collaboration—shaped by the voices of those who will inhabit and animate it.
▼建筑外观夜景,Exterior night view

▼甲板朝向海湾景观,Exterior view of deck towards the bay

▼总平面图,Site plan

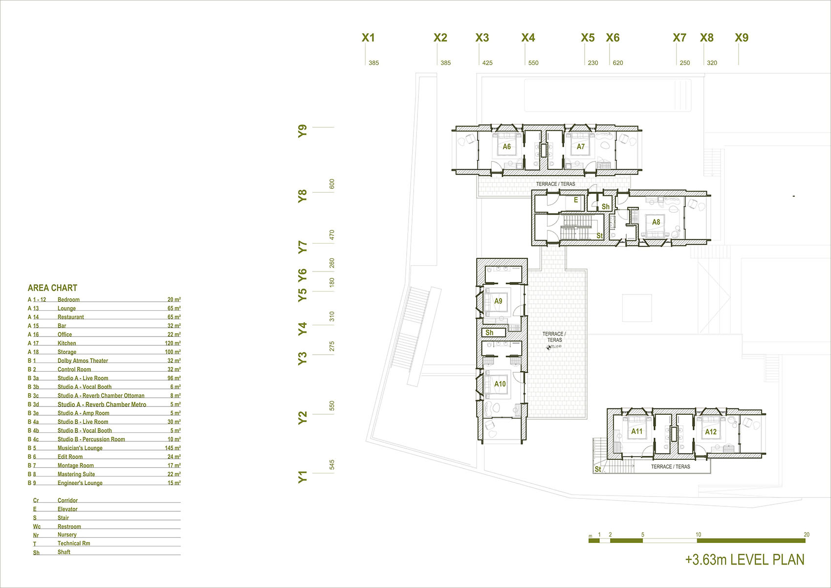
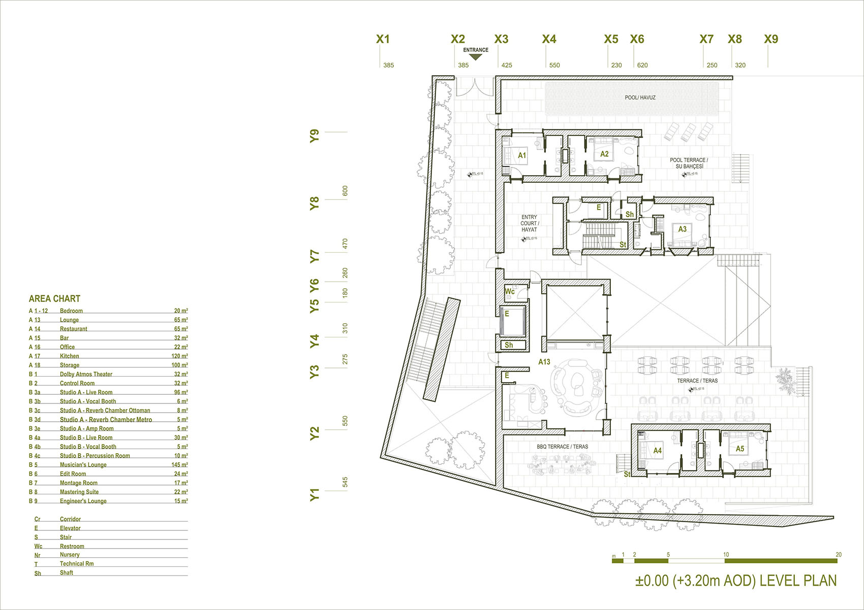
▼平面图,Floor plans




▼剖面图,Section

Technical sheet
Project Name: PUR Residential Recording Studio
Location: Cunda, Ayvalik, Turkiye
Date: 2019-2026
Client: Pur Muzik / Pur Records
Status: Completed
Size: 24,000 sf
Design:
SOUR – Inanc Eray
Design Team:
Pinar Guvenc, Melike Baltalar, Pinar Gursoy, Derin Sahin, Merve Guven, Marianne de Zeeuw, Nicholas Doghlass, Zeynep Damgacioglu, Irem Gocmenoglu, Gamze Gurgenc
Collaborators:
Architect of Record: Etap3 Architects
Civil Engineer: Birim Infrastructure Engineering
Structural Engineer:2E Engineering, Mofa
Mechanical Engineer: Gmd Moskay
Electrical Engineer: Ovacik Engineering
Fire Consultancy: Zeytin
Facade Consultancy: FMT
Lighting Design: Planlux
Studio Acoustics: Level Acoustic Design
Studio Engineering: Indesign Engineering
Studio Kitematics: Gökay Çölükoğlu
Vertical Transport: Karabulut Engineering
IT/ Security: Deniz Coban
Kitchen Consultant: Makpa
Interior Decoration: Reid Williams
Graphic Design: Thinker & Tailor
Visualizations: Felix Render, Saydam
Construction:
Construction Manager: Zafer Ataoğlu, Alp Albuz, Pieter Snapper
General Contractor: Çakır İnşaat
GRFC Contractor: 1Prekast
Co-creators:
Erce Kaslioglu, Isil Yucel, Hasan Ozsut, Sven Faulconer, Stuart Rau
Photography:
© 2026 Inanc Eray / SOUR Studio. All rights reserved.














