PAULA住宅,圣保罗 / Luciano Kruk Arquitectos
“审美是非常脆弱的。”Luciano Kruk曾这样提醒这座住宅的业主,而他们也认真对待了这一点,尽最大努力确保最终成果忠实呈现建筑师的设计愿景。项目位于São Paulo郊区的一处开发社区中,周边环境经过精心规划,包括一座人工湖与高尔夫球场。
“Aesthetics are very fragile,” warned Luciano Kruk to the owners of this house, who took his words seriously and did everything possible to ensure that the outcome of the work reflected the architect’s vision. Located in a development on the outskirts of São Paulo, the house is surrounded by a carefully designed landscape featuring an artificial lagoon and a golf course.
▼住宅概览,overall of the house


▼住宅外观,exterior views of the house



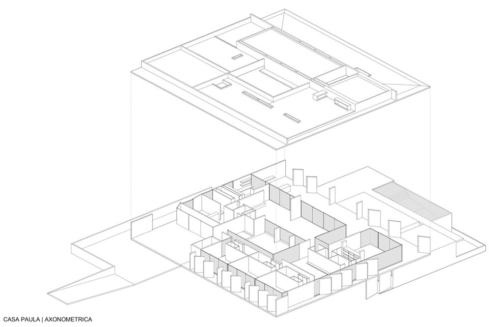
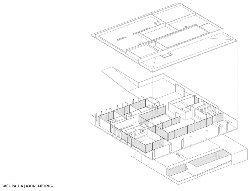
业主热爱巴西艺术与文化,希望住宅能够体现其生活方式,并在设计上具有鲜明特质。在设计过程中,Luciano面临的最大挑战,是如何在满足大体量住宅需求的同时,使其不被感知为笨重的整体,而是与周围景观和谐融合。为此,他将住宅主要功能组织在一个水平层面,并辅以一个隐藏层,用于布置设备空间与健身房,从而实现与环境的平衡关系。
▼轴测图,axonometric drawing

The owners, passionate about Brazilian art and culture, requested a home that would reflect their lifestyle and stand out for its design. The biggest challenge Luciano faced when designing this project was creating a large house that would not be perceived as a massive volume but would harmonize with the surrounding landscape. To achieve this, he organized the house on a single main level, complemented by a hidden level that houses technical areas and a gym, thereby achieving harmonious integration with the environment.
▼双层建筑体量依坡而建,
the double-story building structure is built along the slope


▼混凝土建筑结构,the concrete structure of the house


▼庭院平台/停车平台,courtyard desk/parking lot

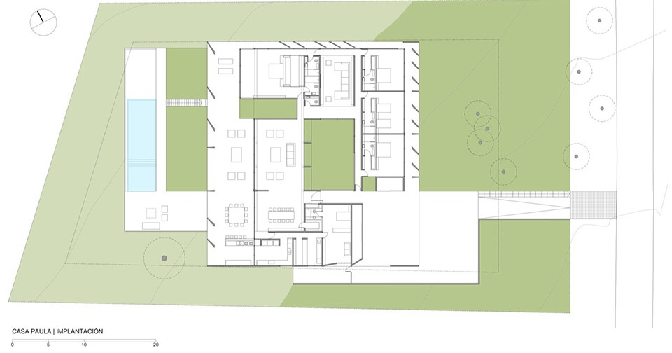
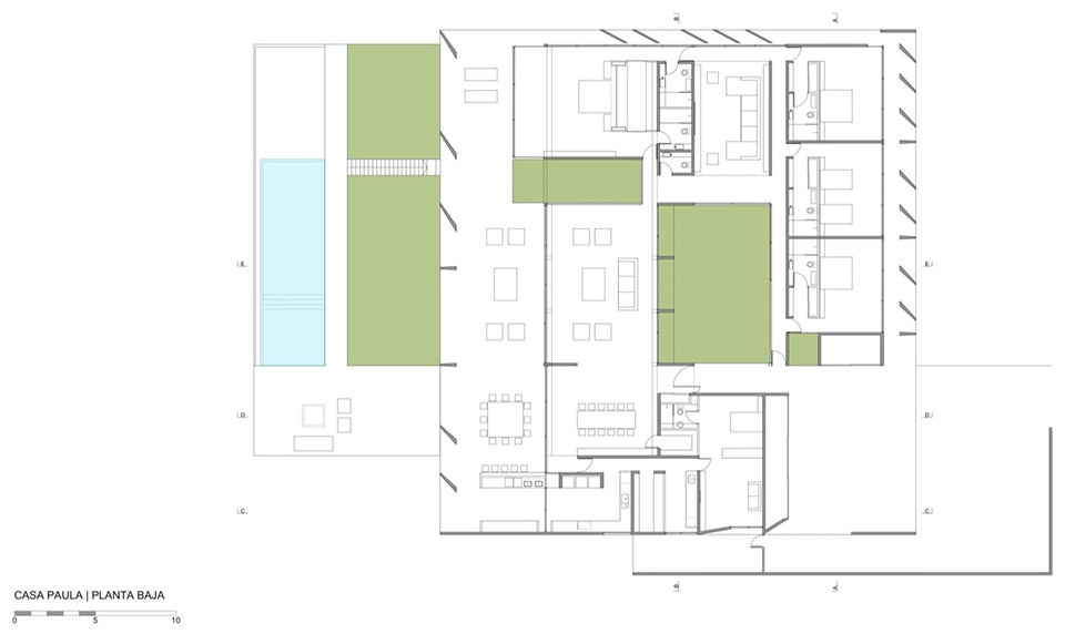
住宅围绕一个中央庭院展开,庭院内种植了典型的大西洋森林植被,营造出富有观赏性的空间。整体包含四间卧室(包括一间主卧与三间儿童房)、一个宽敞的起居空间以及娱乐区域。
The house is organized around a central courtyard, where typical Atlantic Forest vegetation creates a visually enjoyable space. It has four bedrooms—one main and three for the children—a spacious living room, and an entertainment area.
▼中央庭院,the central courtyard

▼围绕中央庭院的走廊,the corridor along the central courtyard





▼由室内看庭院,viewing the courtyard from interior

一条宽敞的廊道占据了场地中最具优势的位置,可直接眺望湖泊与高尔夫球场,是住宅的核心空间。在巴西气候条件下,人们一年中大部分时间都可以享受户外生活,可以说,这类空间正是当地生活方式的重要组成部分。由于最佳景观方向同时也是夕阳方向,廊道通过倾斜的混凝土隔墙进行遮阳,以减弱午后阳光的影响。
A generous gallery occupies the most privileged position on the lot, offering direct views of the lagoon and golf course. This gallery is the heart of the home. In Brazil, thanks to the climate, it is possible to enjoy the outdoors for much of the year, and it could be said that it is a local custom for life to unfold largely in these types of spaces. Since the best views coincide with the sun’s setting position, the gallery is protected with concrete partitions that, due to their inclination, reduce the impact of the sun in the afternoon.
▼通往底层的楼梯,
staircase leading to the lower floor


▼外观近景,closer views of house from exterior




▼混凝土廊下空间,space under the concrete eaves




▼宽敞的廊道,the generous gallery


▼半户外的生活空间,semi-outdoor living space



▼半户外客厅与餐厅,semi-outdoor living room and dining area


▼宽敞的廊下空间,generous gray space under the roof



▼模糊的室内外界限,blurred exterior and interior boundaries

▼客厅,the living room



▼由客厅看室外,viewing the exterior from the living room

▼客厅光影,the light and shadow in the living room

▼由灰空间看湖景,viewing the lake from the gray space

▼餐厅,dining room

▼大面积的玻璃反射了室内外景观,
the large area of glass reflects the indoor and outdoor scenes

▼电视室,the TV room


泳池与主层处于同一高度(抬升于地面之上),通过对湖面的映射实现与景观的融合,在视觉上建立起两个水体之间的连续性。其无边界设计形成瀑布般的水流效果,在地面层呈现为一件雕塑性的景观元素。
The pool is designed at the same level as the main floor (elevated above ground) to create integration with the surrounding landscape through the reflection of the lagoon, establishing continuity between the two bodies of water. Being elevated above ground level, an infinity edge creates a cascading water effect, presenting itself as a sculptural piece at ground level.
▼泳池,the pool


▼泳池平台与庭院,the pool deck and courtyard


▼泳池,the pool

卧室布置在地块前侧,面向一片宽阔的前庭花园,在提供私密性的同时,也实现了与自然的直接联系。
The bedrooms, positioned towards the front of the lot, open onto a large front garden that provides a direct connection to nature while offering privacy from the street.
▼卧室,bedroom



在施工过程中,Luciano特别强调业主与施工团队的重要作用。施工方专注于高品质设计住宅的建造,为项目创造了理想条件,使整个过程得以顺畅推进,并最终实现了对原始设计的高度还原。
Regarding the work process, Luciano highlights the contribution of the owners and the construction company, which specializes in executing design-focused houses, for creating ideal conditions that allowed the work to flow optimally, with the final result mirroring the original design.
▼走廊,the hallway

▼走廊细部,detail the hallway


▼厨房,the kitchen


▼浴室,the bathroom


▼楼梯,staircase

建筑师与施工团队成功将地理上的距离转化为协作上的紧密联系,通过持续沟通与反馈,使项目不仅在成果上令人满意,也成为业主与团队共同参与的一段愉悦且富有激励性的经历。
Luciano and the construction company managed to transform geographic distance into closeness, maintaining fluid dialogue and constant feedback among all parties. This is not only reflected in the final result but also in a truly enjoyable and stimulating process for the entire team and the homeowners.
▼夜间远景,night views at distance



▼灯光设计,lighting design


▼夜景细部,details of the night views



▼停车场夜景,night view of the parking lot

▼泳池夜景,night view of the pool


▼轴测图,axonometric drawing

▼总平面图,site plan

▼平面图,plan

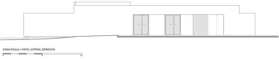
▼立面图,elevations




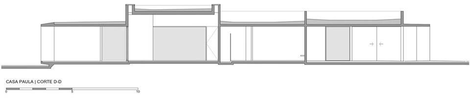
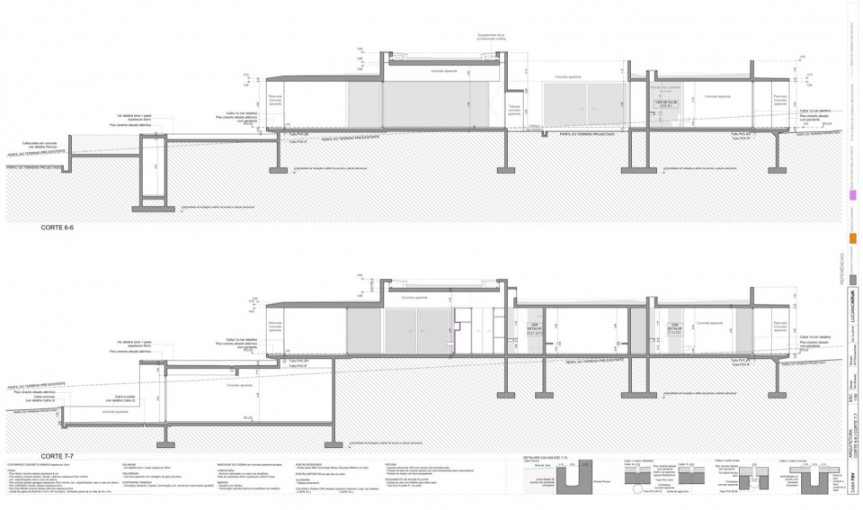
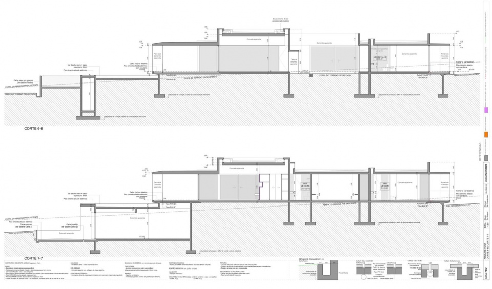
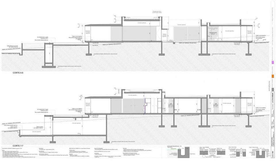
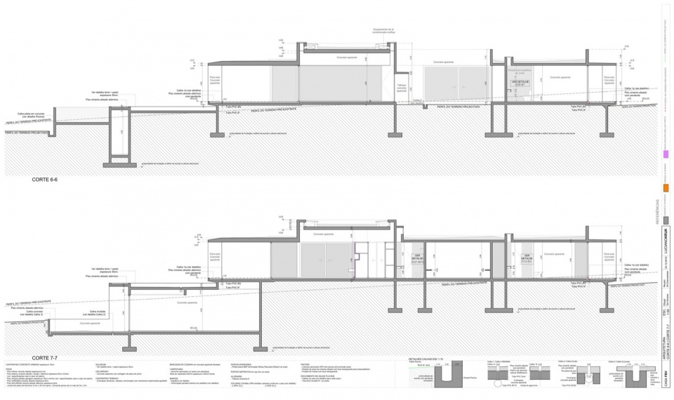
▼剖面图,sections





▼剖面图,sections




CASA PAULA
Award: Platinum Prize, IDPA Japan 2025
Location: Sao Paulo, Brazil
Architect: Arch. Luciano Kruk
Project Manager: Arch. Sol Alvarez
Collaborator: Arch. Melanie Chismechian
Construction: Constructora Epson
Photos: Daniela Mac Adden
Text: Arch. Ekaterina Kunzel
Land area: 3070m2
Built area: 753m2
Construction year: 2019














