CL之家,西班牙 / Estudio Arquitectura Hago
该住宅位于比耶尔索地区比利亚弗兰卡历史中心,毗邻报喜修道院,并靠近瓦尔卡塞尔河与布尔维亚河的交汇处。基地内保留着一处旧石砌住宅的遗存,地形条件复杂,形成了跨越两个标高的多立面界面:上层通过Rúa Nueva街进入,下层则与报喜广场相连。
The house is located in the Historic Centre of Villafranca del Bierzo, next to the Convent of La Anunciada and close to the confluence of the Valcárcel and Burbia rivers. The plot, which concealed the remains of an old stone dwelling, presents a complex topographic condition with multiple façade fronts developed across two levels: an upper level accessed from Rúa Nueva, and a lower level connected to Plaza de la Anunciada.
▼场地鸟瞰,Site aerial view

项目通过与当地建筑形态与类型展开对话,提出一种介入策略:以两个并置体量作为“铰接点”,在城市、景观与建成记忆之间建立联系。上部体量被设定为朝向山谷开启的观景空间,下部体量则围绕历史庭院组织,该庭院由发掘过程中显露的石质遗存界定。
The project engages in a dialogue with local architectural forms and typologies, proposing an intervention that mediates with its surroundings through two juxtaposed volumes conceived as a hinge between the city, the landscape and the built memory. The upper volume is conceived as a lookout opening towards the valley, while the lower volume is organised around a historic courtyard, defined by the stone remains uncovered during the excavation process.
▼建筑概览,Building overview


▼建筑立面,Building facade



两个层级均容纳完整的居住功能——起居/厨房空间、卫生间与卧室,使住宅能够在任一层独立使用,并可随着时间推移适应不同的使用方式。在外部空间层面,两个关键设计策略塑造了场地与城市之间的关系。从Rúa Nueva街一侧,一条宽阔的入口步道将石墙整合进整体建构景观之中,建立起从街道到住宅的渐进式过渡;在下层,一个倒置三角形支撑结构重塑了场地形态,形成开敞的门廊空间,并为庭院相对于圣克拉拉街提供了受控的私密性界面。
Both levels accommodate a complete domestic programme—living/kitchen area, bathroom and bedroom—allowing the house to be inhabited autonomously on either floor and to adapt over time to different patterns of use. Externally, two key design decisions articulate the relationship between the plot and the urban space. From Rúa Nueva, a large access walkway integrates the stone walls into the built landscape, establishing a gradual transition between street and dwelling. At the lower level, an inverted triangular support restructures the plot, creating a generous porch and providing the courtyard with controlled angles of privacy in relation to Rúa Santa Clara.
▼入口,Entrance

▼庭院,Courtyard


▼门廊,Porch


▼下层室内空间,Lower floor interior

▼下层楼梯入口,Lower floor staircase entrance

▼上层室内空间,Upper floor interior



▼上层室内空间细部,Upper floor interior detail


▼阳台,Balcony

最终呈现的是一种在传统建筑与当代形式与类型策略之间取得平衡的共存关系。住宅嵌入时间之中,在承接在地建筑价值的同时,提出一种当代的空间与构成解读。
The result is a balanced coexistence between traditional architecture and the proposed formal and typological solutions. The house is embedded in time, embracing the values of local architecture while projecting a contemporary spatial and compositional reading.
▼黄昏建筑外观,Exterior view at dusk

▼场地区位图,Site plan

▼上层平面,Upper floor plan

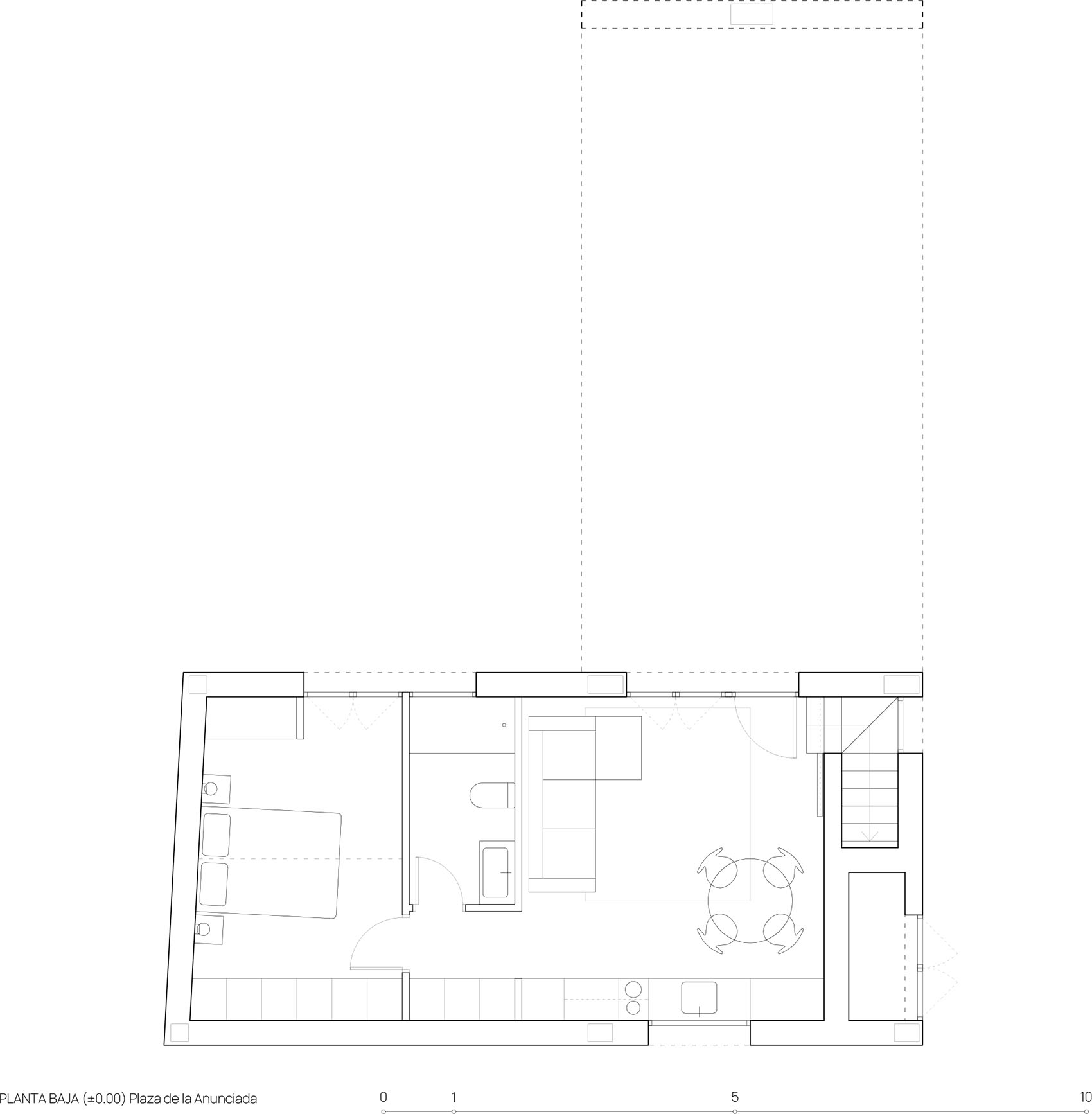
▼下层平面,Lower floor plan

▼剖面图,Sections


▼构造剖面细节,Construction section detail

Project title: Casa CL
Location: Villafranca del Bierzo, Leon (España)
Architects: Antonio Álvarez-Cienfuegos Rubio (Estudio Arquitectura Hago)
Project team: Nuria Pérez Cabrero (project development and site supervision) , Simone Caruso, Davide Andrea Cutolo y Pablo García Cornejo (concept design)
Construction management: José Gómez
Consultants: Structural engineering: Lignea – Laura Gonzalo Calderón, Building services engineering: Sandra Romero Corvo / Luis Fernández Conejero
Contractor: Nistal y Bello
Completion date: 29 Julio 2025
Photograpy: Gabriel Gallego












