Casa Baruk餐厅,巴西 / Memola Estúdio
该餐厅标志着集团的重要拓展节点。原本以阿拉伯风格自助餐为主的经营模式,如今引入融合地中海影响与原创菜品的新菜单。为塑造这一兼具传统与当代性的全新身份,项目委托Memola Estúdio设计。在设计过程中,业主与建筑师的讨论超越了纯粹功能层面:建筑需将价值观与象征性具象化,通过元素、光线与材料的组织,精准回应餐厅的美食与审美追求。
This restaurant marks a moment of expansion for the group, traditionally associated with the Arab-style buffet format, now presenting a menu that incorporates Mediterranean influences alongside original creations. To shape this new identity — balancing tradition and contemporaneity — the project was entrusted to Memola Estúdio. The process required that initial discussions between clients and architects transcend purely functional considerations: the architecture needed to materialize values and symbolism, articulating elements, light, and materials in a way that precisely reflects the culinary and aesthetic aspirations of the restaurant.
▼餐厅概览,overview of the restaraunt


为实现这一愿景,设计团队购入了位于Mato Grosso街的两栋住宅,这些建筑此前已被改作商业用途。两栋建筑虽风格普通,却各具特征,在初次踏勘时即引起关注。最初方案意在保留原有结构,通过介入以容纳餐厅所需功能——从就餐空间到后勤支持——同时满足技术规范、市政法规与法律要求。
To realize this vision, the duo acquired two residential properties on Mato Grosso Street, previously occupied by commercial establishments. Each building, defined by an anonymous architectural style, exhibited unique characteristics that piqued interest from the very first visits. Initially, the plan was to preserve the original structures, with interventions that could accommodate the restaurant’s program — from dining areas to support spaces — without compromising technical requirements, municipal regulations, or legal standards.
▼餐厅外观,facade of the restaurant

早期研究包括打通相邻建筑、处理不同标高的地面,以及在既有结构网格中调整平面布局。然而,很快发现若要精准满足技术要求与空间功能,需要对结构进行更彻底的重构。于是,在对原建筑进行谨慎拆除后,一个全新的体量得以生成,从最初草图开始即整合了动线组织、热与视觉舒适、结构性能以及全部功能需求。为实现大跨度空间并释放中央大厅的结构支撑,将竖向构件移至场地边缘,建筑采用钢结构体系。这一策略使三层空间得以实现连续布局,精准支撑功能分区,同时加快施工进度且不牺牲性能与品质。
Early studies considered openings between the adjoining houses, solutions for leveling floor heights, and adapting layouts to the existing structural grid. However, it became clear that to meet technical demands and spatial functionality with precision, the structure needed a more comprehensive redesign. The careful demolition of the existing buildings made way for a new volume, conceived from the earliest sketches to integrate circulation, thermal and visual comfort, structural performance, and all programmatic needs cohesively. To span large areas and free up structural supports in the central hall — shifting vertical elements to the edges of the site — the building constructed with a steel frame. This solution enabled continuous layouts across three floors, precisely supporting spatial zoning, while accelerating construction, without compromising performance or quality.
▼餐厅概览,overview of the restaurant

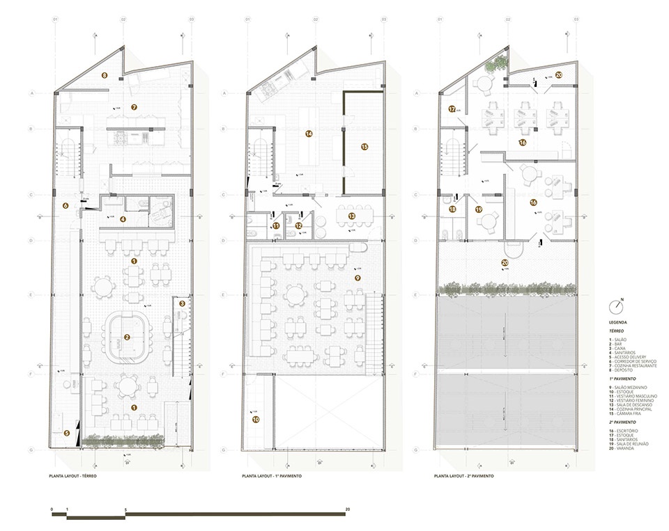
首层设置主用餐厅、厨房、储藏空间及服务流线,包括独立的外卖通道,整体布局兼顾顾客体验与运营效率。一层通过自然光从锯齿形屋顶洒入的夹层空间进入,布置了餐厅辅助空间、员工服务区与运营用房。二层则设有办公室、会议室与储藏空间,将管理功能与公共及服务区域相对分离。这种分布强化了各层在功能、运营与空间体验上的协调一致。
The ground floor houses the main dining hall, kitchen, storage areas, and service access — including a dedicated delivery route — organized to optimize both the customer experience and operational flows. The first floor, accessed via a mezzanine illuminated by natural light filtering through shed roofs, accommodates support areas for the dining room, staff service zones, and operational spaces. The second floor contains offices, meeting rooms, and storage, discreetly separating administrative functions from public and service areas. This distribution reinforces coherence between program, operation, and spatial experience on each level.
▼首层餐厅,the main dining hall on the ground floor


▼自然光从锯齿形屋顶洒入的夹层空间进入,
accessed via a mezzanine illuminated by natural light filtering through shed roofs


在概念层面,Memola Estúdio面临的核心挑战之一,是在不依赖表面装饰的前提下,将真正的阿拉伯体验转译为空间。对集团既有门店的调研显示,这些位于当代建筑中的空间仅零散引入阿拉伯装饰,缺乏整体空间识别。这一观察促使团队深化研究与概念发展。核心问题在于:如何在巴西语境下设计一家阿拉伯餐厅,在引入文化参照的同时保持空间的真实与纯粹?为此,团队研究了阿拉伯建筑元素与策略在巴西建筑中的历史性吸收与转译,识别出那些在时间中被本土化的建造方式。
Conceptually, one of Memola Estúdio’s main challenges was to translate a genuinely Arab experience into architecture without resorting to purely decorative solutions. Technical visits to the group’s previous units, located in contemporary buildings with occasional Arab ornamentation, revealed the absence of a consistent spatial identity for this service format. This observation motivated the team to deepen their research and conceptual development. The guiding question was clear: how to design an Arab cuisine restaurant in Brazil, incorporating cultural references without compromising the authenticity of the space? To answer it, the team studied the historical assimilation of Arab-derived architectural elements and strategies in Brazilian architecture, identifying constructive solutions that had been incorporated and reinterpreted over time.
▼在巴西建筑中融入阿拉伯元素,Integrating Arab elements into Brazilian architecture

Mashrabiya(木格栅)、rótulas与gelosias——经由葡萄牙殖民建筑引入巴西——早已成为本地建造传统的一部分,对气候、光线与通风作出回应。此外,内庭院作为社交与采光空间,以及瓷砖的广泛应用(其词源可追溯至阿拉伯语,并经伊比利亚传统在巴西确立)也构成重要遗产。通过理解这些历史层叠,项目并未依赖装饰性语言,而是将传统视为一套可在当代语境中再诠释的建造策略。
Mashrabiya, rótulas, and gelosias — introduced in Brazil by Portuguese colonial architecture — already formed part of local building traditions, responding to climate, light, and ventilation. Added to this legacy were internal courtyards, conceived as spaces for social interaction and natural lighting, and the widespread use of tiles, whose etymology traces back to Arabic and whose presence in Brazil was consolidated through Iberian tradition. By understanding these historical layers, the project did not rely on ornamental repertoires, but recognized heritage as a set of constructive solutions reinterpreted from a contemporary perspective.
▼将传统视为一套可在当代语境中再诠释的建造策略,
recognized heritage as a set of constructive solutions reinterpreted from
a contemporary perspective

这一理念首先体现在立面设计上。上部由陶瓷构件组成的穿孔表皮,重新诠释了传统Mashrabiya(阿拉伯及伊斯兰建筑中的木格栅元素),作为过滤层,在保证私密性的同时允许对外部的局部视线。其后设置的第二层窗框系统进一步提升了主厅的热与声环境舒适度。下部则采用为项目定制的蓝色涂装铁窗框,与透明及压花玻璃交替布置,以调节通透性与光线过滤。外露钢结构涂以接近陶土色的色调,与陶瓷形成色彩呼应,界定了建筑的结构框架,并与石质铺地建立连续的色彩关系。
This concept is first expressed in the façade. On the upper portion, a composition of ceramic elements forms a perforated screen that reinterprets traditional Mashrabiya (an wooden lattice, a traditional element of Arab and Islamic architecture), functioning as a filter that ensures privacy from the street while allowing partial views of the exterior. Behind this layer, a secondary frame of window casings contributes to thermal and acoustic comfort within the main hall. On the lower portion, blue-painted iron window casings, custom-designed for the project, alternate with clear and textured glass, modulating transparency and light filtration. The exposed steel structure, painted in a terracotta tone close to that of the ceramics, defines the building’s architectural framework and establishes chromatic continuity with the stone pavement.
▼餐厅立面设计,facade design of the restaurant

室内主厅被组织为两个不同区域:前部开敞明亮,通过立面与锯齿形屋顶引入自然光,双层通高强化了空间感;后部位于夹层之下,更为私密。两者虽相互连通,但通过地面铺装变化与中央吧台的设置,形成清晰的空间区分。
Inside, the main hall is organized into two distinct areas. The front, more open and expansive, is illuminated by natural light passing through the façade and shed roofs, with a double-height ceiling enhancing spatial perception. The rear area, under the mezzanine, is more intimate. Although connected, the two spaces maintain distinct identities, emphasized by variations in floor patterns and the central placement of the bar.
▼中央吧台,central bar



从入口开始,陶瓷地面延伸至墙面,通过几何拼贴呼应传统瓷砖工艺。设计并未采用具象图案,而是通过纯色瓷砖形成图形语言,以当代方式重释地中海庭院的铺装逻辑。主厅中,八块长方形陶土砖围绕小尺寸绿色砖拼接,形成贯穿空间的连续图案;后区则采用更传统的方砖铺设方式,保持色彩一致。整体设计在一个统一的建筑动作中融合了传统与创新。
From the entrance, ceramic flooring extends along the walls, evoking tile-making traditions through geometric compositions. Rather than figurative motifs, solid-colored tiles create graphic patterns defining the space, reinterpreting traditional Mediterranean courtyard patterns in a contemporary way. In the main hall, eight rectangular terracotta tiles are arranged around small-interlaced green tiles, forming a continuous design that spans the length of the space. The rear area features square tiles in a more traditional layout, maintaining chromatic coherence. The overall design unites tradition and innovation in a single architectural gesture.
▼陶瓷地面延伸至墙面,ceramic flooring extends along the walls

▼八块长方形陶土砖围绕小尺寸绿色砖拼接,
eight rectangular terracotta tiles are arranged around small-interlaced green tiles

为强化地面与墙面的连续性,首层墙体下半部分铺设与地面一致的绿色瓷砖,上部以白色带状分隔,并通过木质腰线界定材料转换。更高处则采用混凝土砌块,以三块方形加一块旋转块的方式排列,露出侧面,形成具有节奏的立面肌理,并沿钢柱展开。贝壳形壁灯提供间接照明,在夜间保证视觉舒适。对应二层区域的上部墙面,在双层通高空间中采用偏白色涂料,以反射来自屋顶与立面的自然光。夹层下方的后墙则完全覆盖绿色瓷砖,作为艺术作品的背景,并强化空间的材料与色彩关系。
To reinforce continuity with the floor, the ground-floor walls are clad in green ceramic tiles that match, covering the lower half. Above, a white band provides contrast, separated by a wooden chair rail that defines the transition between finishes. The upper portion features concrete blocks arranged in a graphic pattern: three square blocks alternate with one rotated block, revealing its lateral section. This modulation creates vertical reliefs and a repeating visual rhythm along the steel columns. Shell-shaped wall sconces provide indirect lighting, ensuring visual comfort at night. On the upper portion corresponding to the second floor, in continuity with the double-height ceiling, the walls are painted off-white, reflecting natural light entering through roof and façade openings. The back wall of the hall, beneath the mezzanine, is fully clad in green ceramics, serving as a backdrop for artwork and reinforcing the space’s chromatic and material articulation.
▼绿色瓷砖作为艺术作品的背景,
the back wall is fully clad in green ceramics, serving as a backdrop for artwork

▼强化空间的材料与色彩关系,
reinforcing the space’s chromatic and material articulation

项目整体遵循严谨的模数逻辑与对细部的极致关注,这是Memola Estúdio的显著特征。从砌体排布到钢结构整合,从瓷砖拼贴到收边处理,每一处细节均经过精确推敲,确保比例、对齐与图案的协调统一,体现出建造的严谨性与工艺的精细度。
The project follows a rigorous logic of modulation and meticulous attention to detail, hallmarks of Memola Estúdio. From laying masonry blocks to integrating steel structures, from precise tile arrangements to final trims, each element was carefully calibrated for proportion, alignment, and pattern. Constructive rigor and artisanal excellence ensure visual coherence.
▼瓷砖拼贴细部,the collage of the tile detail

吧台作为空间的核心元素,承担组织与界定主厅的功能。其圆角设计柔化了空间边界并引导流线。砌体基座覆以陶瓷砖,并以金色黄铜收边,台面与木作同样采用圆角处理,并辅以间接照明。吧台内嵌展示区陈列新鲜水果,用于鸡尾酒制作。其上方,一组蓝色铁制展示柜以门廊形式环绕吧台,陈列酒品,同时与立面的金属元素形成呼应。上方顶面随吧台轮廓展开,进一步强化视觉焦点。
The bar, the central element of the space, functions as the heart of the restaurant, organizing and defining the main hall. With rounded corners, it softens edges and directs circulation. The masonry base is clad in ceramic tiles with a gold brass trim, while the countertop and woodwork feature rounded edges, complemented by indirect lighting. A small integrated display showcases fresh fruits for cocktail preparation. Above, a blue iron display cabinet, designed as a portico, wraps around the bar, exhibiting the beverage collection and establishing dialogue with the metallic façade elements. The ceiling above follows the bar’s projection, reinforcing the focal point.
▼吧台作为空间的核心元素,
The bar as the central element of the space

家具系统包括车木椅、白色Paraná大理石桌面与仿耐候钢涂装铁基座,以及不同尺寸的木桌以适应多样化就餐需求。较大的圆桌设置在白色瓷砖基座之上,强化手工质感。入口附近设有环绕式卡座,基座为绿色瓷砖砌体,上覆焦糖色皮革坐垫,并通过立面花池增强私密性。后区亦延续该设计,保持整体一致。
The furniture includes turned wood chairs, white Paraná marble tables with corten-painted iron bases, and other wooden tables to accommodate varying group sizes. Larger round tables rest on white-tiled bases, reinforcing the project’s artisanal character. Near the entrance, a continuous sofa wraps the space, with a green-tiled masonry base and caramel leather upholstery. A planter by the façade enhances visual privacy. In the rear, more secluded area, the sofa continues, maintaining aesthetic coherence.
▼不同尺寸样式的桌椅,Tables and chairs of different sizes and styles


照明设计同样经过深入研究。为避免直白引用,设计团队定制了多种尺寸与色彩的灯具,以当代表达方式重释阿拉伯图案。这些灯具与自然光共同作用,营造出平衡而丰富的空间氛围。
Lighting was also carefully studied. To avoid literal references, the studio designed custom luminaires that reinterpret Arab motifs in a contemporary language, produced in fabrics of various colors and sizes. These pieces interact with natural light, creating a balanced atmosphere.
▼营造出平衡而丰富的空间氛围,creating a balanced atmosphere


通往夹层的楼梯采用陶土色瓷砖踏步,侧面瓷砖以45度旋转并切割为三角形,形成三维肌理,在光线下更为突出。蓝色铁栏杆延续了室内其他构件的语言。夹层空间在材料与概念上延续首层设计,提供额外座位,并通过立面筛板获得局部外部视野。尽管双层通高形成空间分隔,但与主厅的视觉联系始终保持。在基础设施层面,管线、电气等系统有意外露,融入整体建筑表达。卫生间延续同样的设计逻辑,采用蓝绿瓷砖,通过细微色差形成图案面板,配以木质腰线、复古镜面与混凝土洗手台。
Access to the mezzanine is via a staircase with terracotta ceramic treads, while the lateral faces feature tiles rotated 45 degrees and cut into triangular sections, creating a three-dimensional effect enhanced by the light. The blue iron railing maintains consistency with other interior elements. On the mezzanine, materials and concepts from the lower floor are repeated, offering additional seating and partial views of the exterior through the façade panels. Despite the separation provided by the double-height ceiling, visual connection with the main hall remains constant. In the infrastructure, conduits, piping, and electrical elements are deliberately left exposed, integrating with the architectural reading. Bathrooms follow the same design rigor, with blue and green tiles, subtle tonal variations creating graphic panels, wooden chair rails, vintage mirrors, and concrete sinks.
▼楼梯采用陶土色瓷砖踏步,
a staircase with terracotta ceramic treads


▼卫生间,toilet


Casa Baruk餐厅总计可容纳约130个座位(含首层与夹层),是一个建筑、文化与美食高度融合的项目。它在承认历史遗产的同时,以当代语言加以转译,通过对细节与建造的严格把控,体现出Memola Estúdio一贯的设计特质。
With an approximate capacity of 130 seats across the ground floor and mezzanine, Casa Baruk Restaurant is a project where architecture, culture, and gastronomy coexist seamlessly. A space that acknowledges historical heritage while translating it into a contemporary language, reflecting meticulous attention to detail and constructive rigor, hallmarks of Memola Estúdio.
▼餐厅夜景,night view of the restaurant

▼平面图,plan

▼立面图及剖面图,elevation & section

Project: Casa Baruk Restaurant
Location: Higienópolis, São Paulo, Brazil
Completion Year: 2025
Built Area: 700 m²
Architecture & Interiors: Memola Estúdio
Design Team: Veronica Molina, Bianca Sinisgalli, Juliana Jacobovitz, Carol Ribeiro
Construction: CYMZ – Construções
Photography: Leila Viegas
Communications / Text: Matheus Pereira Comunicação












