岐阜县政府大楼,日本 / 日建设计
岐阜县岐阜市位于东京与京都的中间地带,原县政府大楼因老化和空间狭窄等问题而启动了原址重建项目。作为地域辽阔且拥有多样性气候风土和历史文化的“清流之国·岐阜”的象征,本项目旨在充分利用桧木、杉木、美浓和纸、瓷砖等县产材料,打造集结当地企业技术力量的“岐阜橱窗”。行政楼采用1层柱帽隔震结构,并将隔震装置及重要设备布置在浸水线以上的区域,有效避免了浸水风险。通过消除地面与隔震层之间的间隙,将前部广场与低层部分无缝衔接,形成向地区开放的空间。此外,顶层的观景大厅采用高通透性的CLT幕墙,可360度俯瞰岐阜的丰饶景致,成为彰显地区特色的标志性场所。
Located in Gifu City, Gifu Prefecture, midway between Tokyo and Kyoto, this project involves the rebuilding of the former prefectural government office, which had become outdated and spatially constrained. Conceived as a symbol of “Gifu, the Land of Clear Streams,” a region characterized by its diverse climates, landscapes, and historical cultures, the building makes extensive use of locally produced materials, including cypress and cedar, Mino washi paper, and ceramic tiles. By bringing together the technologies and craftsmanship of local companies, the project aims to function as a “showcase of Gifu.” The Administrative Building adopts a seismic isolation system located at the top of first-floor columns, allowing the isolation devices and other critical equipment to be positioned above potential flood levels. By eliminating the need for above-ground isolation clearance, the design seamlessly connects the low-rise building with the plaza in front, creating an open space accessible to the community. On the top floor, a highly transparent CLT curtain wall encloses the observation lobby, offering a full panoramic view of Gifu’s landscape and establishing a new regional landmark.
▼外观(远景),Exterior view (distant view)

▼外观(鸟瞰),Exterior view (aerial view)

集结当地技术力量的“岐阜橱窗” A “showcase for Gifu” created through the integration of local expertise
岐阜县岐阜市位于东京与京都的中间地带,本项目是对其饱受老化和空间狭窄等问题困扰的原县政府大楼进行的原址重建。周边区域集中了包括政府大楼在内的县行政机构。
Located in Gifu City, Gifu Prefecture, midway between Tokyo and Kyoto, this project involves the rebuilding of the former prefectural government office, which had become outdated and spatially constrained. The surrounding area accommodates a concentration of prefectural administrative facilities, including the government office itself.
▼感受北侧自然采光、与前庭融为一体的3层挑高入口,Three-story atrium entrance with natural light from the north and continuity with the forecourt

岐阜自古被誉为“飞山浓水(飞驒之山、美浓之水)”之地。县北部飞驒地区海拔3,000m的群山连绵不断,南部美浓地区的浓尾平原上木曾三川(木曾川、长良川、揖斐川)蜿蜒流淌。作为地域辽阔且拥有多样性气候风土和历史文化的“清流之国”的象征,项目旨在充分利用县产材料和产品,打造集结当地企业技术力量的“岐阜橱窗”。
Gifu has long been known as the land of “Hizan Nosui”—the mountains of Hida and the waters of Mino. In the northern Hida region, 3,000-meter peaks stretch out, while in the southern Mino region, the Nobi Plain is traversed by the Kiso Three Rivers: the Kiso, Nagara, and Ibi rivers. As a symbol of “Gifu, the Land of Clear Streams,” with its broad and diverse climate, natural environment, and historical culture, the project seeks to realize a “showcase for Gifu” through the extensive use of locally produced materials and products, bringing together the technologies of local industries.
▼与飞驒山脈、浓尾平原相呼应的政府大楼,The government office engaging to the landscapes of the Hida Mountains and the Nōbi Plain

体现岐阜县特色的外立面A façade reflecting the characters of the prefecture
项目由低层和高层部分组成的“行政楼”与独立的“议会楼”构成。外装根据各栋建筑的规模,采用了各种岐阜县生产的特制瓷砖。从长期维护的角度出发,所有饰面均采用干法施工。作为政府大楼门面的高层建筑南北立面,采用县产杉木浮雕模板浇筑的预应力混凝土,构成了带有深邃雕刻设计的外框架,令人联想到高山地区的千鸟格纹。这一设计不仅为清洁窗户、更换密封胶等维护作业预留了作业空间,还兼具日照调节功能,实现了极具象征意义的外立面。
The project consists of the Administrative Building, composed of low-rise and high-rise building blocks, and the detached Assembly Annex. The exterior employs a variety of custom-made tiles produced within the prefecture, tailored to the scale of each building. From the perspective of long-term maintenance, all exterior finishes are applied using dry construction methods. On the north and south façades of the high-rise block, which serves as the “face” of the government office, prestressed concrete cast with bush-hammered cedar formwork is used to create a deeply articulated external frame. Evoking the traditional chidori lattice patterns of Takayama, the design offers space for maintenance activities such as window cleaning and sealant replacement, while also providing shades to the interior. In this way, a symbolic façade that integrates maintenance performance and environmental control is realized.
▼外立面与县警察局、原政府大楼保持统一感,Facade aligned with the Prefectural Police Headquarters and former government office

深受当地喜爱、传播清流之国魅力的政府大楼A civic building open to the community and conveying the appeal of “the Land of Clear Streams”
行政楼与议会楼合计东西长达160m的入口大厅向地区开放,以县产桧木、美浓和纸、瓷砖打造的空间迎接着来访者。
Spanning approximately 160-meters east to west across both the Administrative Building and the Assembly Annex, the entrance lobby is open to the community.
▼木曾桧迎客的入口,Entrance welcoming visitors with Kiso cypress interior

▼与外部空间相连的入口,Entrance connected to the outdoor space

从“水光潋滟”中汲取灵感,用蓝色玻璃釉面细长条瓷砖铺砌的墙面,模拟“水面涟漪”的悬浮白色盒体构成的“水面天花板”,以及象征“细水潺潺”的层间木质百叶等,空间设计中点缀着诸多以“水之变幻”为灵感的抽象化设计元素,旨在营造出清爽柔和、仿佛清流荡漾的空间氛围。
Finished with locally sourced hinoki (Japanese cypress) timber, Mino washi paper, and ceramic tiles, the space welcomes visitors. Inspired by the “sparkle of water,” its interior features walls cladded in blue-glazed border tiles, a “water-surface” ceiling with floating white boxes resembling the “ripples of water”, and layered bands of timber louvers evoking delicate threads of flowing water. These abstract expressions of water are distributed throughout the space, aiming to recall the fresh and gentle movement of Gifu’s clear streams.
▼议会楼入口用特制瓷砖表现清流的涟漪与波光,Assembly Annex entrance finished with custom tiles inspired by clear streams

行政楼1层北侧设有连续14.4m的可全开式开口,举办活动时可与带大型雨棚的北侧广场融为一体、内外联动使用。此外,可用于研讨会、表彰仪式等的“MINAMO礼堂”配备了可移动观览席,能够灵活应对阶梯式或平面式布局等使用方式。
On the north side of the first floor of the Administrative Building, a continuous opening measuring 14.4 meters in width can be fully opened, allowing the interior to be used as a single integrated space with the covered north plaza during events. The “Minamo Hall,” which could be used for symposiums and award ceremonies, is designed to accommodate flexible configurations, including stepped seating with movable stands as well as flat-floor arrangements.
▼可将岐阜美景尽收眼底的20层“清流大厅”,Seiryu Lobby on the 20th floor, overlooking Gifu City

20层设有可体验岐阜“飞山浓水”风光的环游式观景层“清流大厅”,其东西跨度达100m,南北宽30m。自天花板到下方2.7m部分,采用岐阜县产杉木CLT的木钢混合立柱构成四边支撑幕墙,其下方则为双边支撑玻璃,从而在视线高度实现零遮挡的高通透性空间。此外,各层观景电梯厅与清流大厅的内装均采用美浓和纸打造出连续的视觉序列,始终彰显着“清流之国·岐阜”的橱窗定位。
▼20层CLT幕墙剖面图,Section drawing of the CLT curtain wall on the 20th floor

On the 20th floor, the observation floor named “Seiryu Lobby” spans approximately 100 meters east to west and 30 meters north to south, offering an experiential view of Gifu’s defining landscape of mountains and water. A four-side supported curtain wall system accommodates timber-steel hybrid mullions using locally produced sugi (Japanese cedar) CLT. It is positioned above the 3-meter-tall two-sided supported glass facade, creating a highly transparent space with no visual obstructions at eye level. The interior design incorporating Mino washi paper continues seamlessly in the observation elevator halls on each floor and up to the Seiryu Lobby, consistently embodying the building as a showcase for “Gifu, the Land of Clear Streams.”
▼20层的环游式清流大厅「清流大厅」,Circulating “Seiryu” Lobby on the 20th Floor

实现高度的抗灾能力与安全性Achieving high level of resilience and security
为提升建筑在灾害发生时的抗灾能力与韧性,行政楼采用了1层柱帽隔震工法作为抗震措施,并通过将重要设备集中布置在浸水线以上的区域,实现对浸水风险的有效控制。在紧急情况下,可收起该栋楼5层的移动隔断,使整个楼层作为一间危机管理室运作。此外,还配备了利用南北立面外装柱型空间的自然通风系统、太阳能发电板、雨水利用、冷热渠(利用地温对空调新风进行预冷·预热的系统)等系统,既能在紧急情况下维持正常功能,又实现了日常能耗的削减。此外,通过在1层设置安检门,将高层办公区与低层公共区的安保系统分开。高层标准层在无隔断的开放式楼层中央设置连接各层的中庭楼梯,使职员能够自由移动,从而提升部门间的协作效率。明确区分两个区域的安保系统,实现了县行政机构的信息管理与紧急情况下的高效运作。彻底开放安保区域外的访客空间,力求将政府大楼打造成传播地区魅力的中心。
▼行政楼柱帽隔震工法说明图,Diagram of the seismic isolation system at first-floor column tops

▼办公室通风设计图,Ventilation planning diagram for office spaces

▼剖面图,Sections

From the perspective of improving disaster resilience, the Administrative Building adopts a seismic isolation system at the top of first-floor columns, while critical equipment is concentrated above the anticipated inundation level as a flood mitigation measure. In emergency situations, movable partitions on the fifth floor can be retracted, allowing the entire floor to function as a single, open center for crisis management. In addition, natural ventilation system utilizing the column spaces around the north and south façades’ perimeter, photovoltaic panels, rainwater utilization, and Cool Heat Trench—an earth tube system that pre-cools and pre-heats outdoor air for air conditioning by harnessing underground temperatures—are incorporated to ensure operational continuity during emergencies while reducing energy consumption during normal conditions. Furthermore, security gates are installed on the first floor, clearly separating the office areas on the upper floors from the public zones on the lower floors. On the typical floors of the high-rise office section, an open-plan layout is organized around an open central staircase, enabling free movement for staff and enhancing collaboration between departments. By clearly delineating the two zones, the building achieves rigorous information management for prefectural administration and high functional performance in emergency situations. At the same time, spaces outside the security gates are fully opened to the visitors, pursuing an architectural approach that positions the building as a hub for communicating the appeal of the region.
▼议会楼中以林木为灵感的天花板、从原政府大楼拆移而来的彩绘玻璃构成的信息角,Information corner in the Assembly Annex featuring a ceiling inspired by groves of trees and relocated stained glass

保持议会独立性、向大众开放的会场An open assembly chamber while preserving the independence of the assembly
设于独栋(议会楼)内的会场象征着独立性,而与观景层设计相呼应的CLT幕墙则体现了议会的透明性。内装采用了许多岐阜县产的材料来构筑空间,如灵感源自清流与林木的瓷砖、木质天花板的大厅、木质家具与瓷砖,以及以美浓和纸为设计元素的天花板照明等。此外,通过在关键位置采用从原政府大楼拆移过来的彩绘玻璃和陶板等历史元素,营造出适合探讨岐阜过去与未来的空间氛围。
The assembly chamber, located in a separate building (the Assembly Annex), symbolizes the independence of the prefectural assembly. Its curtain wall façade with CLT mullions, designed in continuity with the observation floor, expresses the transparency of the legislative process. The interior is composed using regional materials, including tiles evoking clear streams and groves of trees, a lobby with timber ceiling, wooden furniture, tiles, and ceiling lighting inspired by Mino washi paper. Historical elements such as stained glass and ceramic panels preserved from the former government office are also incorporated as interior features, creating a setting appropriate for deliberating both the past and the future of Gifu.
▼议会楼会场采用县产桧木与县产特制瓷砖打造出高品质空间,Assembly chamber of the Assembly Annex, finished with local cypress and custom tiles

▼以岐阜风格打造向民众开放的议会楼,Assembly Annex, arranged to express the distinct character of Gifu, opens to the public

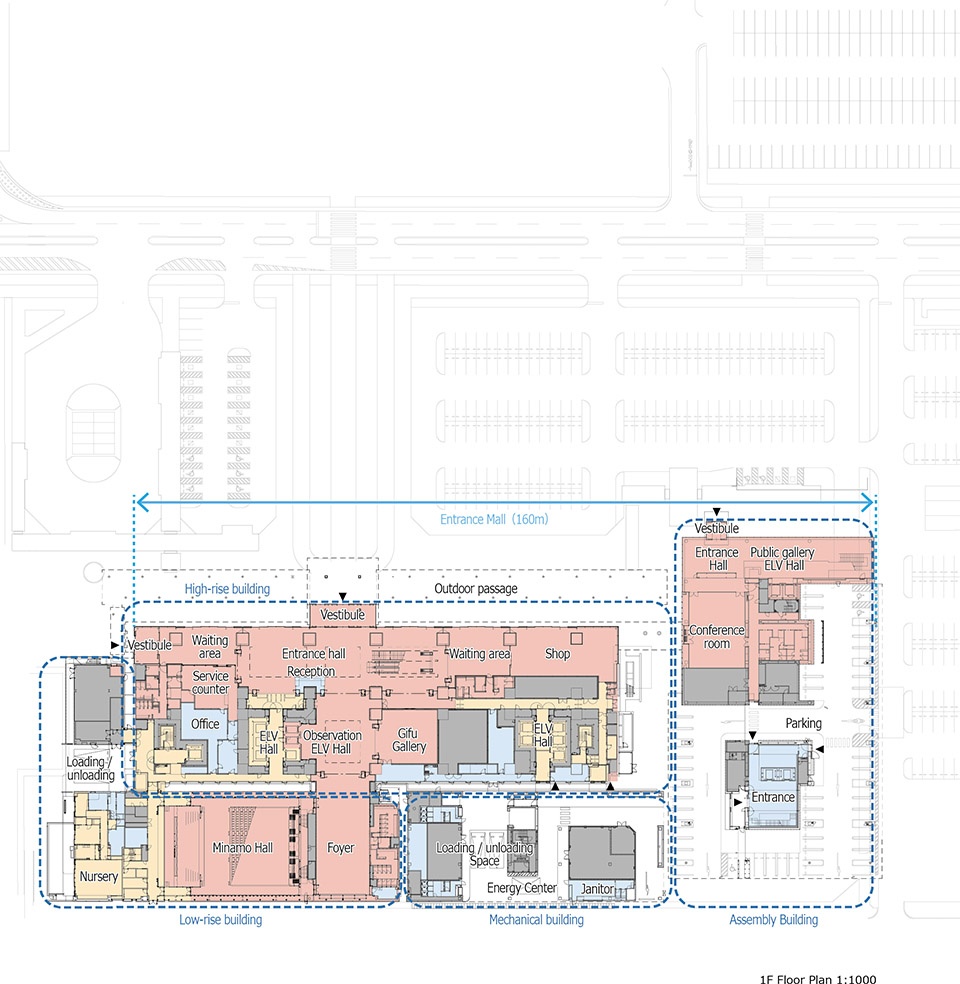
▼1层平面图,Floor 1 Plans

▼2层平面图,Floor 2 Plans

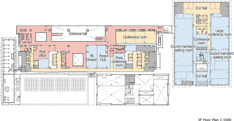
▼3层平面图,Floor 3 Plans

▼4层平面图,Floor 4 Plans

▼11层平面图,Floor 11 Plans

▼20层平面图,Floor 20 Plans

建筑概要
项目名称(中文) 岐阜县政府大楼
项目名称(英文) Gifu Prefectural Office
用途 政府大楼
所在地(都道府县、市) 日本岐阜县岐阜市
用地面积(m2) 33,974.26㎡
建筑面积(m2) 85,384.29㎡
层数 地上21层、阁楼2层
檐口高度/最高高度(m) 105.39m/106.19m
主体结构 钢结构、部分型钢混凝土结构(行政楼:1层柱帽隔震工法)
竣工年月 2022年9月
资料来源
业主(中文):岐阜县
业主(英文):Gifu Prefecture
设计单位:日建・大建・岬设计共同体
主要业务范围:方案设计、初步设计、施工图设计:日建・大建・岬设计共同体
监理:日建・大建设计共同体
施工单位:行政楼:前田・大日本・TSUCHIYA・岐建特定建设工程共同企业体
议会楼:大日本・TSUCHIYA・岐建・青协特定建设工程共同企业体
照片来源1(中英):ToLoLo studio
照片来源2(中英): ㈱SS / SS Co., Ltd.
项目负责人信息 (截至2026年4月)
姓名 所属部门、职位
村井达也 建筑设计总部 设计部门 总裁
中川雄辅 建筑设计总部 设计部门 设计主管
奥濑阳子 建筑设计总部 设计部门
建材、相关产品等3~4个左右
材料 规格/产品名 品牌/厂商
瓷砖 特制大尺寸陶质瓷砖
瓷质釉面瓷砖 协同组合KSG
木质百叶 岐阜县产桧木 株式会社末永制作所、株式会社千田工业
和纸 本美浓纸、机制和纸、手工和纸 Artec株式会社
幕墙 岐阜县产CLT木钢混合窗框 株式会社NEWXT
Project name Gifu Prefectural Office
Purpose Government office
Location (city, prefecture) Gifu City, Gifu Prefecture
Site area (m2) 33,974.26
Total floor area (m2) 85,384.29
Number of floors 21 floors above ground, 2 penthouse levels
Eave height / maximum height (m) 105.39/106.19
Main structure Steel structure, partially steel-reinforced concrete
(Administrative Building: seismic isolation system at the top of first floor columns)
Completion month/year September 2022
Credits
Client name: Gifu Prefecture
Architect: Nikken・Daiken・Misaki Joint Venture
Main scope: Nikken・Daiken・Misaki Joint Venture (Concept Design, Schematic Design, Design Development)
Nikken・Daiken Joint Venture (Construction Supervision)
Construction Contractor Administrative Building:
Maeda・Dainippon Doboku・TSUCHIYA・Giken Special Construction Joint Venture
Assembly Annex:
Dainippon Doboku・TSUCHIYA・Giken・Seikyo Special Construction Joint Venture
Photo credit 1 ©ToLoLo studio
Photo credit 2 SS Co., Ltd.
Project Members (as of April 2026)
Name Role, Affiliation etc.
Tatsuya Murai Principal, Architectural Design Group, Architectural Design Department
Yusuke Nakagawa Associate Architect, Architectural Design Group, Architectural Design Department
Yoko Okuse Architect, Architectural Design Group, Architectural Design Department
Building Materials and related products
Material Specifications/Product Name Brand/Manufacturer
Tiles Custom-made large-format stoneware tiles
Glazed porcelain tiles KSG Cooperative
Wooden louvers Locally produced cypress Suenaga Seisakusho Co., Ltd.; Senda Kogyo Co., Ltd.
Washi paper Hon-Minoshi, machine-made washi, hand-made washi Artec Co., Ltd.
Curtain wall Locally produced CLT timber–steel hybrid sash NEWXT Co., Ltd.
More:株式会社日建设计。更多关于:Nikken Sekkei Ltd














