不在山林·飞雪纪,泸州 / 小隐建筑
定格空中的花瓣 A frozen moment of falling petals
三月末,我们站在梨花村的坡地上,风把山谷中上百棵老梨树的花瓣吹向空中,如漫天飞雪,沁人心脾。我们希望飞雪纪如这飞舞的花瓣,不沉重,不刻意,只是轻盈地悬在山谷,似花瓣飘落时某一瞬间的定格。
At the end of March, we stood on the hillside of Pear Blossom Village, watching the wind lift petals from hundreds of old pear trees into the air – like a snowstorm, refreshing and mesmerizing. We wanted Feixue Pavilion to be like those dancing petals: not heavy, not deliberate, but lightly suspended in the valley, like a single frozen moment of a petal in mid-fall.
▼山路上的飞雪纪, Feixue Pavilion from the road

▼山林掩映的飞雪纪, Feixue Pavilion set among the mountains and forests

建筑最核心的象源,是五片梨花花瓣。每一片花瓣即是一块独立的楼板,花瓣之间通过错层与悬挑留出缝隙,将建筑体量消解。白天,自然光从缝隙透入室内;夜晚,灯光从缝隙溢出,勾勒出花瓣的轮廓。
The core inspiration for the architecture is the five pear petals. Each petal is an independent concrete slab, layered together with staggered heights and cantilevers that leave gaps, dissolving the building’s mass. By day, natural light filters through the gaps; by night, artificial light spills out, outlining the silhouette of the petals.
▼梨花中的飞雪纪, Feixue Pavilion set among the pear blossom

▼老梨树映入屋顶,the pear blossom reflects on the roof

▼五片花瓣,five pear pedals

▼梨花落入五片花瓣,the peach blossom fell into five petals

▼花瓣的错动,the distortion of the petals

▼空中的梨花,the pear blossom

日常的素朴之美 The simple beauty of the daily life
原来的老宅开山而建,刚好让建筑的后部嵌合山体,房屋被周边植物环绕。上山的小路蜿蜒至此,先遇着一块巨石,对侧立着一棵老梨树——它比建筑更早站在这片土地上。穿过巨石与树,才抵达入口。老梨树的枝桠伸向天空,倒影恰好落进屋顶的那片浅池里。
The original house was built into the mountain, so the rear of the new building fits naturally into the slope, surrounded by vegetation. The winding path up the mountain leads first to a large boulder, beside which stands an old pear tree – it was here long before the building. Only after passing the boulder and the tree do you reach the entrance. The old pear tree’s branches reach toward the sky, and its reflection falls precisely into the shallow pool on the roof.
▼山林围绕的飞雪纪,Feixue Pavilion by mountains and forests

▼门口的老梨树与飞雪纪,Feixue Pavilion and old pear tree

建造既有工业的精确也有手工的拙朴。小院的院墙是混凝土初凝后,以人工凿出自然山石的肌理,粗糙、嶙峋,像风化的岩石,也像梨树的树皮。这种质感让建筑与山林之间形成一种沉默的对话。
The construction combines industrial precision with handcrafted rawness. The courtyard walls were hand-chiseled after the concrete had set, creating a rough, craggy texture like weathered rock or pear bark. This tactile quality establishes a silent dialogue between the building and the mountain forest.
▼入口拙朴的墙体,The plain walls at the entrance

▼建筑与山林的对话,The dialogue between building and mountain

▼手凿的墙体,Hand-chiseled walls

屋顶借鉴村里平房常见的蓄水屋面做法,融入传统坡屋顶的小青瓦。在混凝土板上做好防水,用瓦片平铺打底,再蓄一层浅浅的水。水面倒映着整个山谷,梨树的树冠、天空的云、飞过的鸟,都被收进这一片浅水中。随着山林呼吸,水面泛起涟漪,反射到二楼的天花板上,光影流动。屋顶交叠的位置设置溢流口,泸州多雨,雨季的屋面会形成小瀑布,与山岚雾气相映成趣。
The roof draws from the common flat roofs with water storage found in local villages, while incorporating small green tiles from traditional sloping roofs. After waterproofing the concrete slab, we laid tiles flat as a base, then added a shallow layer of water. The water mirrors the whole valley – the crowns of the pear trees, the clouds, the passing birds – all captured in that thin sheet. With the mountain’s breath, ripples spread across the water, reflecting dancing light onto the secondfloor ceiling. Overflows are placed where the roof layers overlap; Luzhou is rainy, and during the wet season the roof forms small waterfalls that echo the mountain mist.
▼屋顶的观景台,The view platform on the roof

▼屋顶的蓄水池,The water tank on the roof

▼层叠的蓄水屋面,Stacked waterproof roofing

▼天空与山林映入屋顶,The sky and the forest are reflected on the roof

▼蓄水屋面倒映门口的老梨树,The water storage roof reflects the old pear tree by the entrance

▼雨天的小瀑布,The small waterfall on a rainy day

▼雨天的小瀑布,Tree shadows and misty clouds

一花一界 One flower, one world
五片花瓣对应不同功能模块。第一片花瓣是一层的接待厅,背景墙上开了一个圆洞,视线穿过它,与第二片花瓣的手工活动厅相连。第三片花瓣是一个灰空间,像是园林中的亭廊,是听风赏雨的好地方。第四、第五片花瓣是研学空间和休憩区,通过楼板的错动消解两层的建筑体量。五片花瓣围成中庭,向天空开放,光线从花瓣之间的缝隙洒下,在地面画出柔和的影子。
The five petals correspond to different functional zones. The first petal houses the groundfloor reception hall, where a circular opening in the back wall allows the eye to connect with the craft activity hall in the second petal. The third petal is a semiopen transitional space, like a pavilion in a classical garden – perfect for listening to wind and rain. The fourth and fifth petals contain the study and activity areas and the relaxation zones; the floor slabs are staggered to dissolve the twostory volume. The five petals enclose an atrium open to the sky, where light filters through the gaps between the petals, painting soft shadows on the ground.
▼接待厅,The reception hall

▼手工活动厅,The handcraft experience hall

▼背景墙上的圆洞,The round hole on the background wall

▼花瓣下的亭廊,The veranda beneath the petals


▼风赏雨的好地方,perfect for listening to wind and rain


▼中庭屋顶的错落,the irregularity of the ceiling in the atrium

▼花瓣消解建筑体量,Petals dissolve the architectural form

▼圆弧状的柔和的影子,The arc-shaped and gentle shadow

▼中庭看后山与天空,Looking at the rear mountain and the sky from the atrium

飞雪纪是一座微缩的自然剧场。我们为它置入了六个主题空间:种子的旅行箱「启蒙」、叶脉的编织坊「织青」、昆虫的音乐厅「虫鸣」、木纹的图书馆「阅木」、拓印的留影机「印川」、木器的诞生地「造物」。孩子们可以在这里用指腹阅读树皮的褶皱,用绢布拓印石头的往事,在叶片上书写自己的诗,于种壳上刻画出山林的样子。我们相信,真正的自然教育不是灌输知识,而是让山林的风直接翻动孩子好奇的书页。
Feixue Pavilion is a miniature theater of nature. We have placed six themed spaces inside: “Awakening” – the suitcase of seeds; “Weaving Green” – the weaving workshop of leaf veins; “Chirr” – the concert hall of insects; “Grainread” – the library of wood grain; “StoneRise” – the camera of rubbings; “Forge” – the birthplace of woodenware. Children can read the wrinkles of tree bark with their fingertips, rub the memories of stones onto silk, write their own poems on leaves, and carve the shape of the mountain onto seed shells. We believe that true nature education is not about imparting knowledge, but letting the mountain wind turn the curious pages of a child’s heart.
▼「造物」入口,“Forge” entrance

▼「织青」入口,“Weaving Green” entrance

▼做自然手工的孩子们,The children who make natural handicrafts

城乡纽带的愿景 A vision linking city and countryside
飞雪纪也是乡村振兴的一种新尝试。以自然教育为纽带,把城市家庭带回乡村,让孩子在田野里长大,让村民在项目中找到新的角色。运营以来,这里已成为周边城市周末亲子游的热门目的地,为梨花村带来了持续的客流。这不是一个孤立的建筑,而是一个与村庄共生、与土地共长的社会实验。这些日常的、细碎的瞬间,才让建筑逐渐丰满。
Feixue Pavilion is also a new experiment in rural revitalization. Using nature education as a bond, it brings urban families back to the village, letting children grow up in the fields and villagers find new roles in the project. Since its opening, it has become a popular weekend destination for families from nearby cities, bringing a steady stream of visitors to Pear Blossom Village. This is not an isolated building, but a social experiment that coexists with the village and grows with the land. It is these everyday, fleeting moments that gradually give the architecture its fullness.
▼梨花中的飞雪纪,The Feixue Pavilion

▼游客在中庭内拍照,Tourists are taking photos in the atrium

▼屋顶上观景的游客,Tourists enjoying the view from the roof

▼天空与山林映入屋顶,The sky and the forest are reflected on the roof

▼黄昏的飞雪纪屋顶,The roof at dawn

▼黄昏的飞雪纪,The pavilion at dawn

傍晚的夕阳把混凝土墙染成暖色,风穿过柱廊间的缝隙,发出很轻的声音,像是山林的呼吸。它如同山谷里的另一棵树、另一块石头、另一朵花,从山林里、从风里、从梨花的飘落里走了出来。我们恰好路过,为它搭了个架子……
At dusk, the setting sun warms the concrete walls, and the wind passes through the gaps between the columns, making a soft sound – like the breath of the mountain forest. It stands like another tree, another stone, another flower in the valley, having walked out of the forest, out of the wind, out of the falling pear blossoms. We just happened to pass by and put up a frame for it…
▼夜晚的飞雪纪,The pavilion at night

▼夜晚的飞雪纪,The pavilion at night

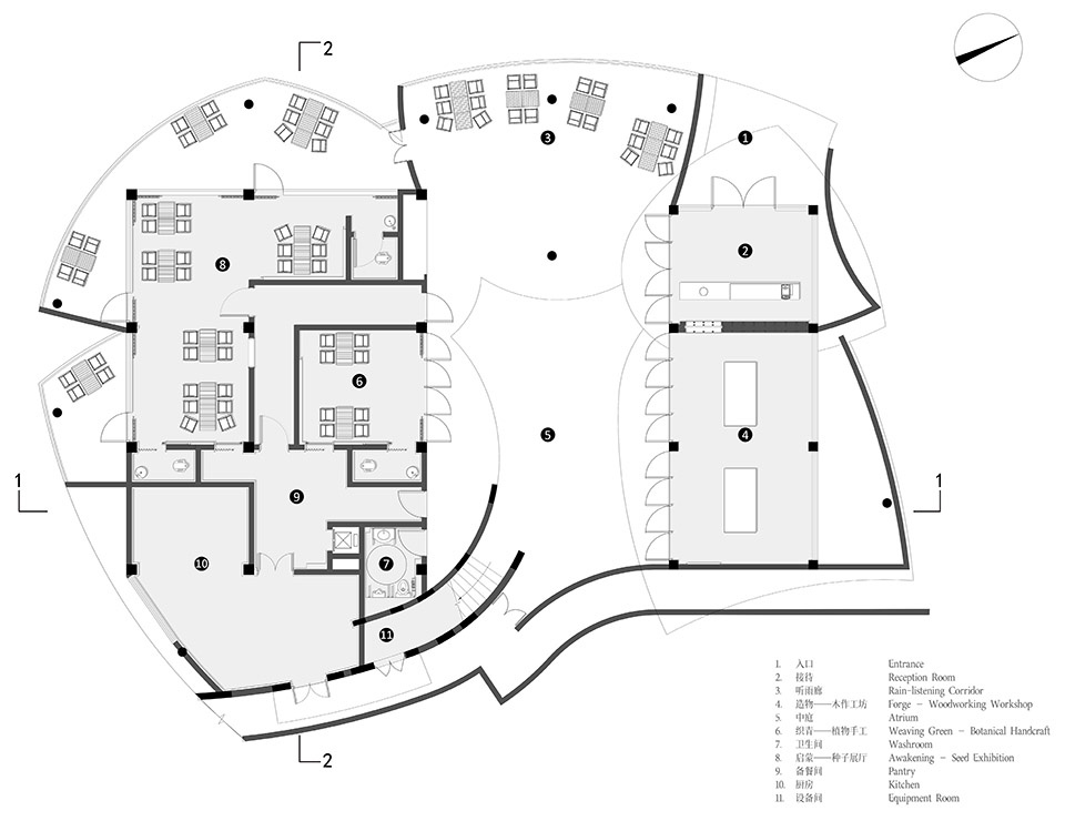
▼一层平面图,ground floor plan

▼二层平面图,first floor plan

▼三层平面图,third floor plan

▼立面图,elevation

▼剖面图,section

主创团队:小隐建筑事务所
主持建筑师:潘友才
设计总监:杨喆(合伙人)
技术总监:陈仁振(合伙人)
设计团队:杨锐、胡沁梅、苟源君、赵亚线
施工图团队:成都美厦建筑设计有限公司
业主单位:泸州市江阳区丹林镇梨花村集体资产经营管理有限公司
施工单位:泸州兴阳建川实业有限公司
摄影:存在建筑-建筑摄影、形在空间、小隐建筑
撰文:杨喆
项目地址:四川泸州市丹林镇梨花村不在山林
建筑面积:672平方米
建筑材料:装饰水泥漆、钢圆管、铝合金型材(木纹漆)、钢化超白夹胶玻璃、小青瓦
建成时间:2025年3月
Project Team: Archermit
Lead Architect: Pan Youcai
Design Director: Yang Zhe (Partner)
Technical Director: Chen Renzhen (Partner)
Design Team: Yang Rui, Hu Qinmei, Gou Yuanjun, Zhao Yaxian
Construction Drawing Team: Chengdu Meixia Architectural Design Co., Ltd.
Client: Lihua Village Collective Asset Management Co., Ltd., Jiangyang District, Luzhou
Construction Company: Luzhou Xingyang Jianchuan Industrial Co., Ltd.
Photography: Arch-Exist, HereSpace, Archermit
Written by: Yang Zhe
Project Address: BuzzySunny, Lihua Village, Danlin Town, Luzhou, Sichuan
Building Area: 672 square meters
Materials Used: Decorative cement paint, Steel round tubes, Aluminum alloy profiles (wood grain paint), Tempered ultra-clear laminated glass, Small blue-grey tiles
Completion Date: March 2025














