惠州徐田未来乡村中心 / 孟凡浩line+建筑事务所
▼项目街景,Street View of the Project

在中国乡村持续面临老龄化与低生育率的背景下,大量校园空间被闲置。line+联合创始人、主持建筑师孟凡浩以广东惠州徐田村一所废弃小学为载体,通过结构保留、空间重组与公共场景导入,让建筑重回日常生活,探索一种面向长期转型的公共再生路径。
Across rural China, ageing populations and declining birth rates have left many school campuses vacant. Fanhao Meng, Co-Founder & Chief Architect of line+ studio, transforms a disused primary school in Xutian Village, Huizhou, by retaining its structure, reorganising space, and introducing new shared programmes. The project brings the campus back into daily use and explores a model for long-term rural regeneration.
▼项目风貌,View of the Project

▼让建筑重回日常生活,brings the campus back into daily use


徐田村位于罗浮山南麓,是一座拥有三百余年历史的客家古村落,亦是珠三角向粤东北过渡的重要节点。在广东省“百县千镇万村高质量发展工程”(百千万工程)推进下,徐田被列为首批典型村。本项目作为环南昆山—罗浮山高质量发展引领区(“环两山”)中的关键示范工程之一,承载着未来乡村空间与公共服务体系重构的实践使命。
▼区位图, Location map

Xutian sits at the southern foothills of Mount Luofu, a 300-year-old Hakka village positioned at the transition between the Pearl River Delta and northeastern Guangdong. Designated as a pilot village under the province’s rural development programme, the project forms part of the Nan Kunshan–Luofu Mountain development corridor, where new models for rural space and public services are being tested.
▼徐田村风貌,View of Xutian Village

不同于line+在舟山柴山岛将废弃校园改造为托老所的策略——以单一功能替代作为更新路径以回应亟待解决的海岛老龄化问题。徐田未来乡村中心的焦点从功能置换转向公共活力的激活,在文旅与社区的复合语境中,拓展存量校园的再生边界,为“百千万工程”下的乡村更新提供更具持续性的“徐田范式”。
Unlike line+’s previous project on Chaishan Island—which addressed elderly care through a single functional replacement—the Xutian project shifts focus toward activating public vitality. Within a composite context of cultural tourism and community needs, it expands the boundaries of adaptive reuse for abandoned schools.
▼项目鸟瞰,Aerial view of the project

01困境与破局:从“闲置小学”到“古村门户” Dilemma and Breakthrough: From “Idle School” to “Village Gateway”
徐田村依托罗浮山山体与水系资源,文旅业态初具规模,但公共服务空间的长期缺位逐渐成为发展的关键掣肘。村民日常与对外接待之间,始终缺乏稳定而有效的空间载体。
▼概念体块模型,Concept massing model

While Xutian has developed tourism around its mountain and water landscape, shared facilities have lagged behind. There is no shared space that accommodates both everyday village life and visiting flows.
▼村民与访客的必经之处,The place that villagers and visitors must pass through

场地原为一所村级小学,两栋三至四层的教学楼南北并列,中间是开阔却尺度疏离的操场。学校停办后,这组结构完整的建筑迅速陷入“功能悬置”的状态:围墙封闭、入口单一、建筑间缺乏互动,与古村落的开放肌理格格不入。与此同时,场地位于村庄入口节点,连接聚落内部、公园与自然景观,是村民与访客的必经之处。这种“区位关键而使用消极”的状态,使其成为一次结构性更新的契机。
▼整体生成分析,Spatial strategy diagram

The site was a village primary school with two parallel teaching blocks and a large, underused playground between them. After closing, the campus became inward-looking—enclosed, accessed from a single gate, and disconnected from the village. Located at the village entrance, the site links the settlement to surrounding landscape. This combination—high visibility yet low use—made it a clear point for intervention.
▼村民与访客的必经之处,The place that villagers and visitors must pass through

基于此,设计提出从“场地”到“聚落”的空间重组策略:
The design reframes the campus as part of the village rather than an isolated compound:
散点体块 · 向心围合Inserted Volumes · Central Courtyard
借鉴客家传统聚落“外环—内核”的原型,在首层嵌入一组小尺度的功能体块。通过旋转与位置调整,这些体块与环形展廊共同围合出以古树为中心的共享广场,将原本消极的建筑间距转化为村庄内部的公共核心。
▼整体模型,Overall model

▼场地改造前后对比,Before and after transformation

Drawing on the Hakka “outer ring–inner core” prototype, small volumes are inserted at ground level. Adjusted in position and orientation, they work with a continuous gallery to form a courtyard around an existing tree, turning residual space into a shared centre.
▼村庄内部的公共核心,turning residual space into a shared centre



历史串联 · 景观引导 Historical Continuity · Landscape Guidance
从场地西侧古祠堂出发,利用地形高差、广场铺排与水渠串联,将祠堂与场地入口及公共广场自然衔接,使访客和村民在步行路径上自然而然感知村落历史肌理与空间层次。
A route connects the ancestral hall on the west side of the site with the entrance and central courtyard. Level changes, paving, and water channels structure movement, revealing the village’s historical fabric and spatial hierarchy along the way.
▼场地入口及公共广场,the entrance and central courtyard

入口优化 · 动静分区 Repositioned Access · Separated Flows
主入口移至两栋建筑之间的公共广场,面向村庄,成为村民日常进出的核心界面;原南侧封闭入口转化为独立后场,用于行政接待。
The main entrance shifts to the central courtyard facing the village, becoming the primary point of daily access. The former southern gate is redefined as a back-of-house entrance for administration.
▼南侧教学楼改造成为党群服务中心,South block converted into community service centre

连续展廊整合零散墙体,形成文化交流界面,强化建筑与村庄的互动。
A continuous gallery consolidates fragmented walls into a permeable edge for display and social interaction, strengthening the link between building and village.
▼连续展廊整合零散墙体,A continuous gallery consolidates fragmented walls



▼连续展廊整合零散墙体,A continuous gallery consolidates fragmented walls

轻覆其上 · 聚合其下 Lightweight Roof · Collective Ground
在既有混凝土框架之上,新增轻质坡屋顶以“漂浮”的方式叠加。这一举措不仅回应了岭南气候,更在视觉上强化了新旧结构的层次,使公共空间的生成从地面延展至天际线,使其成为环两山沿线一道独特的风景。
▼教学楼改造前后对比,Before and after—teaching buildings

A lightweight pitched roof is set above the existing concrete frame as a distinct layer. It improves climatic performance and clarifies the relationship between old and new, giving the complex a recognisable profile within the surrounding landscape.
▼坡屋顶以“漂浮”的方式叠加,A lightweight pitched roof is set above the existing concrete frame as a distinct layer

▼坡屋顶以“漂浮”的方式叠加,A lightweight pitched roof is set above the existing concrete frame as a distinct layer

02场景与活力:主客共生的复合公共体 Program and Vitality: A Shared Programme for Villagers and Visitors
作为一座依托小学旧址改造而成的未来乡村中心,该项目在起步之初,便面临着诸多未知与挑战:如何平衡外来游客与本地村民之间的互动关系,如何合理引入并配置新的功能业态,如何统筹未来乡村中心的整体运营——这些都没有现成的经验可循。
Converted from a former primary school, the project is conceived as a rural centre that accommodates both local life and incoming tourist flows. Rather than assigning a single use, the programme is organised to support different groups with distinct patterns of occupation and time.
▼在村口打造一个富有活力的村民活动中心,forms a daily-use village centre for residence

作为牵头设计单位,line+在项目启动之初便以“运营前置”为前提,与当地县政府及文旅投资平台展开深度共创,共同探讨乡村中心的功能构成与产业发展方向。
As the lead design firm, line+ adopted “operations-driven design” as a prerequisite, collaborating deeply with the local government and investment platforms to explore functional composition and industrial direction.
▼在村口打造一个富有活力的村民活动中心,forms a daily-use village centre for residence



基于在地实践的思考,我们提出“主客共生”的空间愿景——既面向外来游客,打造罗浮山旅游环线上徐田村的乡村入口门户,提供涵盖问询、餐饮、住宿、休闲等多元功能的访客服务系统;又服务于本地村民,在村口打造一个富有活力的村民活动中心,将村民礼堂、邻里中心、长者食堂、老年与儿童活动室、书吧及党群活动空间融为一体,形成日常使用的乡村公共生活载体。
▼村民礼堂剖透视,Village hall section perspective

▼儿童活动室剖透视,Children’s activity room section

Based on local practice, we proposed a vision of a “host–guest” shared model. For visitors, it acts as an entry point along the Luofu Mountain travel route, providing information, dining, accommodation, and leisure facilities. For residents, it forms a daily-use village centre at the entrance, integrating a hall, community rooms, an elderly canteen, activity spaces for children and seniors, a reading room, and civic functions.
▼村民礼堂,Village hall



▼儿童活动室,Children’s activity room

▼咖啡店,Café



▼咖啡店,Café

在空间组织上以中心广场为核心,首层及低层形成开放、连续的公共界面,集中承载社区与文旅复合功能,使不同年龄与身份的人群在同一场域中交汇与共享。
A central courtyard organises the scheme. The ground and lower levels remain open and continuous, allowing different groups to overlap in use.
▼形成开放、连续的公共界面,The ground and lower levels remain open and continuous


▼使不同年龄与身份的人群在同一场域中交汇与共享,allowing different groups to overlap in use

功能在垂直维度进一步分层:南侧以党群服务与社区治理为主,北侧植入青旅客房与创客空间,与既有民宿体系形成补充。通过功能复合与流线分离,实现多群体在同一结构中的有序共存。最终,项目将“未来社区”的多元场景,转化为一个可运行、可持续的乡村复合公共体。
Programmes are separated vertically. Civic functions occupy the south block, while the north block contains hostel rooms and maker spaces, extending the local homestay network. Circulation is separated where needed while maintaining an overall shared structure. Through this arrangement, multiple uses are consolidated into a single complex that supports both daily life and tourism.
▼多元活动场景,Multiple use scenarios

03营造与技艺:新旧共生的低碳路径 Retention and Addition: A Low-Carbon Strategy
在建造策略上,项目面临修缮维护与原址重建的抉择。line+基于空间适应性及“百千万工程”绿色发展要求,选择生态效益更优路径。作为一所遵循标准形制建造的小学,原建筑层高约3.6米,房间进深约6.5米,规整的混凝土结构框架赋予其较高的空间灵活性。
Regarding construction, line+ prioritized adaptive reuse over demolition to meet green development requirements. The original school follows a standard concrete frame, with a floor-to-floor height of approximately 3.6 metres and a structural depth of around 6.5 metres, allowing new uses without altering the main structure.
▼教学楼改造后,teaching building after renovation

▼教学楼改造前后对比,Before and after-teaching building

面对功能业态的全面更新,现有空间体系仍能从容适配,无需进行大规模的拆改干预。经结构安全性与抗震性能鉴定,主体结构状态良好,仅需局部加固即可满足现行规范与使用要求。
▼教学楼改造前后对比,Before and after-teaching building

Despite a complete programme shift, the building remains adaptable. Structural assessment confirms the frame is sound, requiring only local reinforcement.
▼教学楼,teaching building

▼教学楼连廊,teaching building corridor

▼教学楼电梯,teaching building lift

与此同时,在概念方案确定之初,团队即聚焦建材生产环节展开碳排放量化分析,旨在通过可测算的指标,揭示修缮维护与拆除重建之间的环境效益差异。以三层教学楼为例,方案保留了原有混凝土结构框架及部分内墙,拆除外围护界面,并在屋顶层局部增设钢结构。
▼改造策略,Transformation strategy

A carbon study was conducted from the early design stage, comparing retention with reconstruction. In the three-storey block, the concrete frame and part of the internal walls are retained, the existing envelope is removed, and a lightweight steel structure added at roof level.
▼保留原有混凝土结构框架,Retained concrete frame

▼建造过程,Construction process

综合测算显示,在“部分保留”的策略下,隐含碳贡献量占整栋建筑隐含碳总量的20.64%。在如此显著的占比之下,修缮维护显然具备更优的经济性、生态效益与实施效率,为未来乡村建设提供可复制的低碳更新路径。
▼建筑隐含碳计算,Embodied carbon analysis

Under this partial-retention strategy, retained the embodied carbon contribution of the retained structures accounts for 20.64% of the building’s total embodied carbon. This demonstrates the environmental and practical advantages of reuse.
▼材料细部,Structure detail

材料策略强调在地性与克制性,力求与罗浮山下古村落的历史风貌和谐共生。建筑立面与公共空间大量采用旧瓦、老青砖、毛石及木材等在地材料,通过再利用延续村庄原有的材料肌理,避免过度装饰带来的陌生感。原有结构仅进行必要修复,使其作为“旧”的时间层被保留。
▼材料打样对比,Material samples comparison

Material use reinforces this approach. Reclaimed tiles, grey bricks, stone, and timber are reused across façades and public areas, maintaining continuity with the village fabric. The existing structure is repaired only where necessary, remaining legible as an earlier layer.
▼新介入的钢构连廊、玻璃围护及轻质屋面系统,steel galleries, glazing, and lightweight roofs

▼材料细部,Structure detail

与之形成对比的是新介入的钢构连廊、玻璃围护及轻质屋面系统。这些构件在材料与构造上保持清晰的当代属性,却在尺度与细节上保持克制,不刻意强调形式张力,而是以轻巧的方式嵌入既有结构之中。
New elements—steel galleries, glazing, and lightweight roofs—form a distinct contemporary layer. Controlled in scale and detail, they are inserted lightly into the existing frame rather than creating strong formal contrast.
▼屋檐之下,Under the roof

▼在材料与构造上保持清晰的当代属性,Controlled in scale and detail form a distinct contemporary layer

04结语:未来乡村的“徐田样板” Conclusion: The “Xutian Model” for Future Rurality
徐田未来乡村中心不止于一次建筑改造,而以温和而有力的方式回应乡村社会转型中的“公共性缺席”问题。它让被时代遗忘的空间重新成为情感与活动的汇聚场,回到村庄的生活逻辑之中。
The project goes beyond renovation, addressing the lack of shared space in rural transformation. It brings an idle campus back into village life as a place for gathering and activity.
▼以温和而有力的方式回应乡村社会转型,addressing the lack of shared space in rural transformation

在老龄化与低生育率持续加剧的背景下,校园空间的系统性闲置已成为乡村更新中无法回避的现实议题。我们不以单一功能替代作为答案,而是尊重时间、保留记忆与激活公共性的方式,让空间重新成为人与人之间新的连接点。
With ageing populations and declining birth rates, vacant school buildings have become a common condition. Rather than assigning a single use, the project establishes a spatial framework that supports changing needs over time.
▼保留记忆与激活公共性,Preserving memory and activating publicness

作为“环两山”引领区中的关键示范工程和广东未来乡村的样板,徐田村以实践回应“百千万工程”的空间命题,探索出面向长期转型的存量更新路径。在罗浮山脚下,这一古村再生不再是个例,而是一条可持续验证的实践方法。
As a pilot within the regional development initiative, Xutian offers a replicable approach to rural regeneration. At the foot of Mount Luofu, it demonstrates how existing structures can be reworked into long-term public assets.
▼村庄鸟瞰,Aerial view of the village

▼首层平面图,Ground floor plan

▼二层平面图,Second floor plan

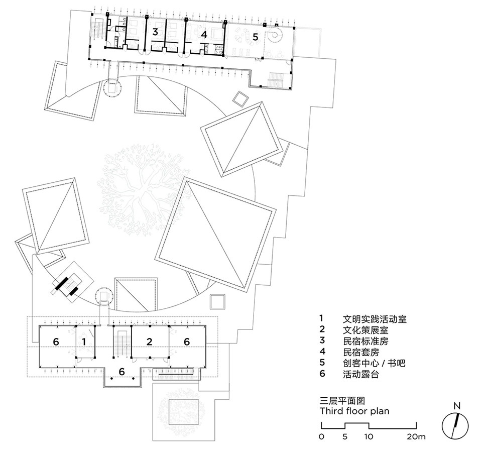
▼三层平面图,Third floor plan

▼四层平面图,Fourth floor plan

Project name: Xutian Village Community Center, Huizhou
Architecture & interior design: line+ studio
Principal architect / project lead: Fanhao Meng
Design team: Dong Yuan, Zhengnan Xue, Fanlin Gou, Chengbin Shou, Yipin Wang
Sustainability consultant: Hang Li, Te Xia
Site architect: Zhengnan Xue
Client: Boluo County Government; Luofu Mountain Cultural Tourism Investment Group
Landscape design: AURA
Interior styling: Yang Jun Design
Local design institute (construction drawings): Huizhou Architectural Design Institute Co., Ltd.
Contractor: CCCC Fourth Harbor Engineering Co., Ltd.
Location: Xutian Village, Boluo County, Huizhou, Guangdong, China
Gross floor area: 3,358.45 sqm
Design period: November 2024 – June 2025
Construction period: February 2025 – October 2025
Structure: Reinforced concrete frame; steel structure
Materials: grey brick, rough stone, fair-faced concrete (wood-grain finish), weathering steel, elastic coating, slate tiles, aluminium–magnesium–manganese panels, wood-grain aluminium panels
Photography: line+














