深圳华富实验学校 / 深圳市建筑设计研究总院 & 城市建筑与环境设计研究院
在与自然的关系上,这是一块充满反差的用地。它紧邻深圳中心公园,本应最接近自然,却被周边高层住宅所阻隔,公园与校园之间形成了一道屏障。项目首先面对的课题,就是如何把自然重新带回校园。
In terms of its relationship with nature, the site presents a striking contradiction. Although located next to Shenzhen Central Park, the campus is separated from the park by surrounding high-rise residential buildings. The project therefore began with a clear question: how can nature be brought back into the daily life of the school?
▼中央绿谷,Central green valley

▼中央绿谷,Central green valley

设计的核心,是在校园中央打开一处共享的绿谷。中庭、连廊、架空层与多层活动平台围绕其展开,让自然进入教学楼之间,也进入学生每日穿行、停留与活动的路径之中。在紧凑的城市校园里,这片绿谷重新建立起孩子与自然的日常联系,并成为整个校园最重要的公共核心。
The design opens up a shared green valley at the heart of the campus. Courtyards, corridors, semi-outdoor spaces, and multi-level activity platforms are organized around this central void, allowing greenery to enter the spaces between teaching buildings and become part of students’ everyday routes, pauses, and activities. Within a compact urban campus, the green valley rebuilds a daily connection between children and nature, becoming the school’s most important public core.
▼城市的花园,孩子的校园,A garden for the city, a campus for children

▼中央绿谷,Central green valley

城市的花园,孩子的校园 A Garden for the City, A Campus for Children
红岭教育集团华富实验学校位于深圳福田华富村片区,是一所九年一贯制学校。项目试图通过建筑本体的空间组织,将“花园”从外部景观资源转化为校园内部可感知、可进入、可参与的日常环境。
Huafu Experimental School is located in the Huafu Village area of Futian District, Shenzhen. As a nine-year compulsory school, the project seeks to transform the idea of a “garden” from an external landscape resource into an everyday campus environment that can be perceived, entered, and used.
▼学校与中心公园虽然很近,但感觉很远,The school is close to Central Park, yet feels distant

▼混凝土森林中的校园,Campus in the concrete forest

总体布局采用南北向分区,将相对完整的场地优先留给教学区,以减少操场及城市界面对教学环境的干扰。功能按照基础教学、素质教学与体育活动分区,形成由静到动的渐进关系。小学部、中学部、综合楼及文体空间被组织为多个教学聚落,并通过立体连廊彼此连接,建立起清晰而连续的校园秩序。
The overall layout is organized through a north-south zoning strategy. The relatively complete portion of the site is prioritized for teaching spaces, reducing the impact of the playground and urban edges on the learning environment. Basic teaching, specialized teaching, and sports facilities are arranged in a gradual sequence from quiet to active. The primary school, middle school, comprehensive building, and cultural and sports facilities are divided into several learning clusters, connected by a three-dimensional network of corridors to establish a clear and continuous campus order.
▼教学群落,Learning clusters

中央绿谷:立体校园的绿色核心 Central Green Valley: The Green Core of a Vertical Campus
位于各组团连接处的中央绿谷,是校园真正的空间核心,也是一处由建筑主动让渡、再被绿色激活的立体公共场所。设计通过中庭、退台、花池与连板的层层变化,在垂直方向上形成丰富的空间层次,使花园从地面延伸至建筑之中,构成上下贯通、连续展开的绿色界面。
Located at the intersection of different building clusters, the central green valley is the true spatial core of the campus. It is a three-dimensional public space created through architectural subtraction and activated by greenery. Through the layering of courtyards, setbacks, planting beds, and connecting slabs, the design creates a rich vertical spatial sequence, allowing the garden to extend from the ground into the buildings and form a continuous green interface.
▼二层花园,Second-floor garden

围绕这一核心,负一层与一层共同构成校园最开放的公共基座。体育馆、架空球场、图书馆、报告厅等公共功能结合地形布置,并与首层操场、架空活动空间及主题花园共同组织,形成兼具集散、活动、交流与花园体验的复合底盘。
Around this core, the basement level and ground floor form the campus’s most open public base. The gymnasium, elevated sports court, library, lecture hall, playground, semi-outdoor activity areas, and themed gardens are integrated with the terrain, creating a mixed platform for gathering, movement, communication, and garden experience.
▼活动平台,Activity platform

▼面向操场的活跃界面,Active interface facing the playground

二层则形成被抬升的花园平台,承接多种主题活动与日常停留,成为公共活动与教学空间之间的过渡层。再往上,各层结合休息平台、灰空间与连廊,围绕中央绿谷形成丰富的课间交流、自由停留与非正式学习界面,使学习、运动与交往在不同高度之间持续展开。
The second floor becomes an elevated garden platform, accommodating themed activities and everyday pauses while mediating between public activity areas and teaching spaces. Above it, each floor incorporates rest platforms, semi-outdoor spaces, and connecting corridors around the central green valley, creating places for recess, informal learning, and spontaneous encounters. Learning, movement, and social interaction are therefore extended across different levels of the campus.
▼建筑立面,Building facade

▼建筑立面,Building facade

这一空间组织也回应了深圳的亚热带气候。架空层、灰空间、开敞连廊与花园平台共同构成通风、遮阴、避雨的开放体系,使校园在紧凑体量中依然保持舒适、松弛和可呼吸的日常体验。
This spatial organization also responds to Shenzhen’s subtropical climate. Pilotis, semi-outdoor spaces, open corridors, and garden platforms together create an open system for ventilation, shading, and rain protection. Even within a compact building volume, the campus maintains a comfortable, relaxed, and breathable everyday atmosphere.
▼首层架空层,Ground-floor pilotis

▼走廊空间,Corridor space

结语 Conclusion
在高密度城市环境中,校园空间的价值不只在于容量与效率,更在于能否为儿童保留真实而丰富的日常体验。华富实验学校在校园内部打开的中央绿谷,不只是一次空间留白,更是在高密度条件下对自然关系的重新组织。对学生而言,这里将成为成长记忆中最具体的一部分。自然因此不再停留在校园之外,而真正进入他们每天的学习与生活。
In a high-density urban environment, the value of a campus lies not only in capacity and efficiency, but also in its ability to preserve rich and tangible daily experiences for children. The central green valley of Huafu Experimental School is more than an open void within the campus; it is a reorganization of the relationship between architecture, nature, and everyday school life under dense urban conditions. For students, it will become a concrete part of their memories of growing up. Nature is no longer kept outside the campus, but enters their daily learning and life.
▼中央绿谷,Central green valley

▼中央绿谷,Central green valley

▼总平面图,Site plan

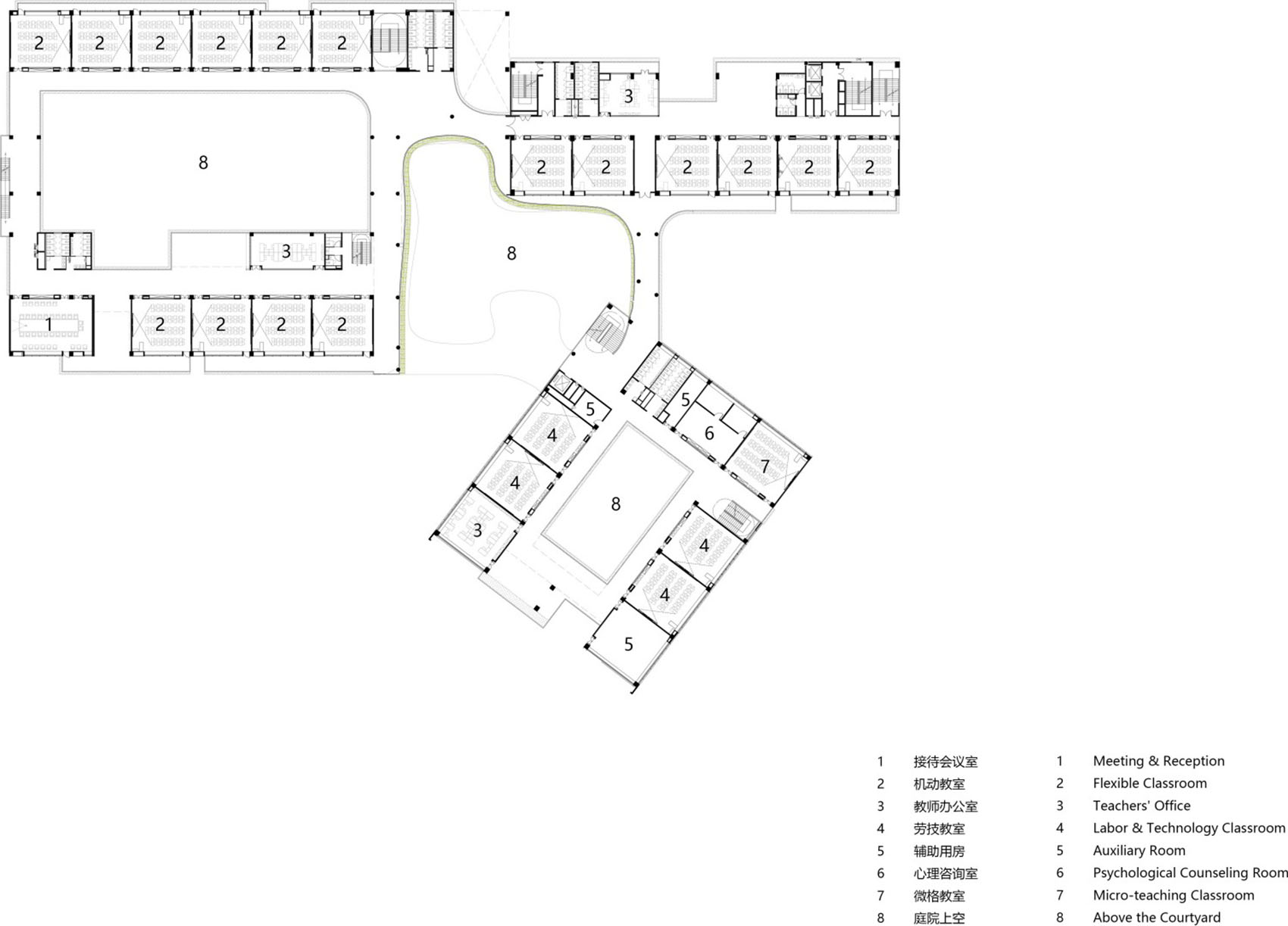
▼首层平面图,Ground floor plan

▼负一层平面,Basement floor plan

▼二层平面图,Second floor plan

▼三层平面图,Third floor plan

▼六层平面图,Sixth floor plan

▼七层平面图,Seventh floor plan

▼立面图,Elevation

▼剖面图,Section

Project name:Shenzhen Hongling Education Group Huafu Experimental School
Project type: Education Architecture design
Design: Shenzhen General Institute of Architectural Design and Research Co.,LTD-Shenzhen Institute of Metropolitan Architecture and Environment Design
Website: http://www.szad.com.cn/
Contact e-mail: szul@szul.com.cn
Design year: 2019-2023
Completion Year: 2024
Leader designer: Wu Chao, Wang Siwen,;
Design Team: Wu Chao, Wang Siwen, Yao Junwei, Hong Bo, An Jiaojiao (schematic design); Zhang Yinghao, Luo Cheng, Yang Zaibin, Sui Yuan, Wei Liuhua (architecture); Liu Chen, Lin Wenming, Wang Li, Yu Ziliang, Zhou Wenxiang (structure); Deng Wen,Chen Liwei, Zhong Yuxin, Hu Ting, Su Luming, Zhou Jinlei (mechanical and electrical engineering);Xiao Liwen (Project management)
Project location:No. 2011, Huafu Road, Huafu Street, Futian District, Shenzhen, Guangdong Province
Gross built area: 73200 ㎡
Photo credit: Bai Yu
Partner:Landscape Design: Atelier Scale;Interior Design: ICON STUDIO
Clients:Shenzhen Futian District Education Bureau
Materials:Terracotta panels/Terracotta rods/Aluminum mesh














