形态的诗学展陈空间设计,上海 / 雨凡建筑设计工作室
本次展陈空间设计以尊重David Chipperfield既有建筑为前提,借由“结构的重复”所生发的韵律,建立整体空间秩序。
▼概念图,Concept drawing


The exhibition spatial design departs from a commitment to respecting the existing architecture by David Chipperfield Architects, establishing an overall spatial order through the rhythm generated by the repetition of structure.
▼俯瞰展览空间,Exhibition aerial view

▼展览空间整体,Exhibition overview


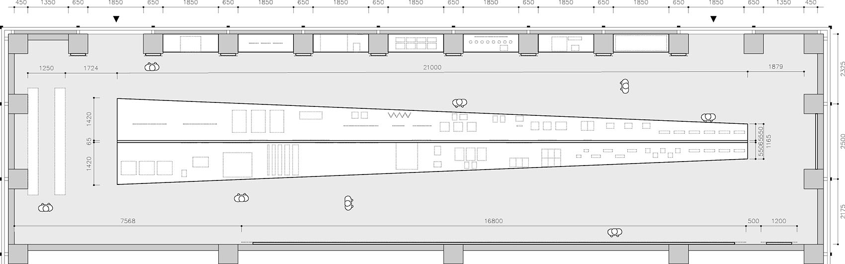
展台依展品大小调整台面宽窄与高度,形成大小递进、连贯渐进的展示节奏。台面采用刷白海洋板;未置展品处保留结构裸露,令新旧元素在同一空间中自然对话。周边墙体与窗侧以轻钢龙骨配合白色海洋板构成,配重隐于墙体之后。混凝土墩兼作配重,同时强化并回应了既存建筑的结构特征。
From the entrance inward, exhibits unfold from small to large; the width of each surface and the height of each display unit shift gradually in response to the works they hold. It is not the visitor moving through the exhibition — it is the exhibition guiding the visitor forward.
▼观展场景,Exhibition view



整体设计以最小介入彰显空间的结构本质,在呼应原有建筑语言的同时,构筑全新的展示体验。
Along the surrounding walls and window bays, repeating light gauge steel frame structures quietly anchor the rhythm of the whole space. Display surfaces are painted white; where no works are placed, the structure is left exposed. Concrete plinths serve as counterweights, while new interventions unfold around the existing space — each presence distinct, neither concealing the other.
▼空间细部,Spatial detail


▼展台细部,Display surface detail

▼构造节点细部,Construction detail


▼材料细部,Material detail


▼平面图,Floor plan

展览时间: 2025.09.25 – 10.19
展览名称:形态的诗学:武藏野美术大学基础设计学科实践
展览地点:西岸美术馆,上海
主办单位:武藏野美术大学基础设计学科、同济大学设计创意学院、小红书设计周
协办及赞助:小红书
策展策划:atama.works
展览总监: 田中良治、室贺清德、杜钦、陈芃
平面设计: 田中良治
空间设计: studio AME
摄影:louz
Morphopoiesis: Practices of the Department of Science of Design, Musashino Art University
Exhibition Dates: September 25 – October 19, 2025
Venue: West Bund Museum, Shanghai
Organized by: Department of Science of Design, Musashino Art University; College of Design and Innovation, Tongji University; RPDC DESIGN WEEK
Co-organized and Sponsored by: xiaohongshu
Curatorial Planning: atama.works
Exhibition Directors: Ryoji Tanaka, Kiyonori Muroga, Du Qin, Chen Peng
Graphic Design: Ryoji Tanaka
Spatial Design: Studio AME (Yufan Lu)
Photography: louz














