梅里雪山·大乐之野,云南德钦 / 末广设计
大乐之野·梅里雪山店位于云南迪庆梅里雪山国家公园十三塔观景台,毗邻雾浓顶村,由末广设计事务所完成建筑、室内与软装一体化设计。项目南偏西45°方向面向梅里雪山群峰,基地可建设范围约560平方米,整体建筑面积约2500平方米。
Located at the Thirteen Pagodas Viewing Platform in Kawagebo Snow Mountain National Park, Kawagebo Snow Mountain Hotel is a 2,500-square-metre hotel designed by Shanghai Moguang Studio as an integrated architectural and interior project. Set beside Wunongding Village in Yunnan Diqing Tibetan Autonomous Prefecture, the hotel occupies a highly exposed tourist site facing the sacred peaks of Kawagebo Snow Mountain.
▼酒店鸟瞰,aerial view of the hotel

▼酒店置身景区化开发与村庄日常并存的现实环境中,The hotel is located in an environment where the development of scenic spots and the daily life of the village coexist

项目面对的首要问题,不是如何最大化利用雪山景观,而是如何在高度景区化、被持续消费的环境中重新建立一套适合度假停留的空间秩序。沿国道分布的客栈与酒店不断前探以争取更直接的视线,临时摊铺、工棚与施工场地叠加在周边环境中,使场地同时面临视觉、噪声与私密性方面的压力。设计因此并未采取单纯“借景”的策略,而是从场地现实出发,通过体量、标高、剖面与内部空间关系的组织,为使用者重新构造一种更安静、克制的体验框架。
Rather than treating the mountain as a picturesque backdrop, the project begins from a more difficult reality. Along the viewing route, hotels and guesthouses compete for the best sightlines, while roadside stalls, temporary structures, and construction clutter have turned the area into a dense and noisy tourism landscape. Under such conditions, the design does not attempt to recreate an imagined authenticity, nor to romanticize the site. Instead, it asks how a place of calm, dignity, and inwardness might be made within an overexposed environment.
▼建筑与群山,building and mountain

在15米建筑限高下,项目若做五层,层高将过于局促;若做四层,又难以充分利用可建设条件。设计将首层整体抬高1.8米,将接待区、客房与顶层咖啡厅等主要使用空间提升至更完整、更私密的视野高度,地下则布置餐厅、厨房、后勤总仓及设备用房。客人可经入口前院跨桥进入大堂,也可沿石阶下行抵达负一层餐厅。建筑边界与道路之间形成的三角形内院,为地下空间提供了采光与自然通风。
▼剖透视,perspective section

The buildable footprint was limited to around 560 square metres, with the mountain view to the south-west and a road-cut slope to the north. The front of the site also faces a long-used village storage yard and an adjacent construction site. Under a height limit of 15 metres, a conventional five-storey scheme would have produced cramped interiors, while a four-storey building would not have fully used the allowable volume. The designers responded by raising the ground floor by 1.8 metres. This lifted the hotel’s main public and guest-room spaces above the most immediate visual and acoustic disturbance, while the lower ground floor accommodates the restaurant, kitchen, storage, and service areas. Guests enter either across a bridge into the lobby or by descending stone steps to the restaurant below. A triangular courtyard between the building and the road brings daylight and ventilation into the lower level.
▼入口,entrance

▼阳台围栏,balcony

建筑外部采用简洁克制的立方体量,外立面使用干挂白色砂岩,并保留凿痕肌理,以建立一种稳定、朴素的材料表情。四层咖啡厅屋顶在水平方向延展,南侧露台略作收退,强化了下方白色主体的体量关系。客房阳台外侧悬挂灰色遮阳布作为栏板,使立面在保持整体秩序的同时,引入轻微的柔性与节奏变化。
▼藏房布艺,Tibetan fabric technique

The building is conceived as a restrained white volume. Its façades are clad in dry-hung white sandstone with a deliberately retained chisel-marked texture, giving the exterior a muted, tactile presence. The fourth-floor café roof extends horizontally, while the southern terrace is slightly recessed to emphasize the clarity of the mass below. Guest-room balconies are enclosed with suspended grey textile screens that act as balustrades, introducing rhythm and softness to the façade.
▼建筑在复杂现场中保持了清晰而克制的界面感,The building maintains a clear and restrained sense of interface in a complex site

设计的核心方法来自对藏区民居与寺庙空间的持续观察。项目并未直接挪用地方形式,而是尝试转译其中更深层的空间逻辑:空间不是被一次性展示,而是在身体的行走、停留、回望与上行中逐渐展开;光线也并非平均分配,而是在柱列、梁架、檐口、栏板与墙面之间被不断切分和过滤,形成由边缘至中心、由低至高、由暗至明的递进关系。与此同时,附着于柱、墙、门窗、檐口与栏板之间的织物,也被视为重要的构造线索。它们既承担遮阳、挡风、保护木构和彩绘的现实功能,也为空间带入色彩、纹样与象征意义。因此,项目中的“装饰”并不被理解为后期附加的表层处理,而被视作构造记忆的一种延续与再组织。
The project draws on long-term observation of Tibetan domestic and temple spaces, not through literal imitation but through the reinterpretation of spatial logic, material relationships, and tectonic memory. For the architects, Tibetan architecture offers a way of understanding space as something activated gradually through the body: through circling, pausing, ascending, and looking back. In monasteries especially, galleries around a principal hall do more than connect rooms. They produce a sequence in which movement, light, and hierarchy unfold together. Clerestory light is not used to illuminate space evenly, but to be filtered and redistributed by columns, beams, eaves, and balustrades, producing gradations from edge to center and from low to high. Another important reference is the role of textiles in Tibetan buildings. Draped over columns, walls, eaves, and windows, textiles are not merely decorative elements but active spatial devices. They filter light, provide climatic protection, preserve timber and painted surfaces, and introduce color and symbolic meaning. In this sense, ornament is understood not as applied surface treatment, but as an extension of construction memory. The project adopts this attitude by translating tectonic and textile logic across materials, allowing detail and atmosphere to emerge from structure rather than being imposed upon it. This approach also resonates with Gottfried Semper’s idea of “petrified carpentry,” in which formal memory persists through material transformation.
▼入口前厅,threshold

▼大堂火塘,lobby fire place

▼火塘作为公共空间的中心,The fire pit serves as the center of the public space

▼大堂局部,lobby

▼从大堂火塘看向前台,Looking from the fireplace in the lobby towards the front desk

▼大堂局部,lobby

▼餐叙空间以质朴材料回应,The dining area is designed with simple materials to reflect a rustic style

▼餐厅与壁炉,dining hall and fire place

▼视线在厚墙框景与漫光之间不断被收束与放开,The gaze is constantly being drawn in and released between the thick wall framing the scene and the diffused light

这一思路在中庭部分得到了最完整的呈现。德钦昼夜温差显著,高原居住环境中的人既要防御强紫外线,又依赖阳光提供热量。项目延续藏房阳光房与黑帐篷顶部天窗的经验,从剖面入手,将中庭组织为整座建筑白天蓄热、夜晚缓慢释热的热力核心。考虑到四层通高空间可能带来的压迫感,设计在二、三层设置交叠展开的走廊,将一层大堂、客房区与四层咖啡厅串联为一条连续展开的公共垂直动线。由此,客房区走廊不再只是交通空间,也成为感知建筑内部光线、尺度与深度的媒介。
▼黑帐篷天窗灵感,Black tent, skylight inspiration

This kind of thinking is most clearly expressed in the central atrium. Developed from the section outward, the atrium acts as the thermal and spatial heart of the building. In Deqin’s high-altitude climate, where people both protect themselves from intense ultraviolet exposure and seek the warmth of sunlight, the atrium works like a greenhouse core, storing heat by day and releasing it slowly at night. To avoid the abruptness of a single four-storey void, galleries were inserted on the second and third floors. These overlapping circulation edges connect the lobby, guest-room levels, and café above, transforming ordinary hotel corridors into places of pause, orientation, and perception.
▼木构梁架墙面拼纹与栏板尺度彼此呼应,The pattern of the wooden beam frame wall surface and the scale of the balustrade are in harmony with each other

▼天光自上部漫入,The light streamed in from above

▼木梁延续了屋盖的结构逻辑,The wooden beams continue the structural logic of the roof

顶部天光通过格栅、梁架与栏板不断被分割和削弱,在墙面与地面形成游移的光影。附着于中庭立面的米色木丝吸音板,与外立面的白色石材共同形成一种细腻的“层次之白”——这种白并非单一表面,而是在不同材料纹理、拼缝方式与光线色温的变化中逐渐丰富起来。墙面拼纹、栏板尺度以及门窗封板中的几何关系,也都回应了藏式护墙布幔的构成逻辑。顶部采用电动排烟天窗,裸露木梁与光腔共同延续了藏房顶部引光的空间经验,使中庭在白天成为被柔化的采光核心,在夜晚则转化为由内部发光的空间中心。
▼四层混合结构分析模型,Four-layer mixed structure analysis model

Daylight enters the atrium from above and is softened by timber beams, grilles, and balustrades, casting shifting shadows onto walls and floors. Beige wood-wool acoustic panels line the interior surfaces and interact with the white stone outside to create what the architects describe as a “layered whiteness” — not a flat monochrome surface, but a field enriched by texture, ambient light, and subtle changes in material temperature. The joints of the wall panels, the proportions of the gallery balustrades, and the geometric composition of the openings all quietly recall Tibetan fabric hangings, allowing decoration to emerge from the logic of assembly. An operable skylight brings in both light and ventilation, while exposed beams beneath it frame a kind of light chamber that changes character throughout the day.
▼中庭与回廊,central atrium and corridor

▼交叠展开的回廊,Overlapping and extending corridors

▼中庭光线变化,Light changes in the atrium


▼中庭光影,Light changes in the atrium

建筑顶层被设定为与雪山发生直接关系的主要公共空间。设计延续主体钢结构,以钢木混合互承体系实现21米×9米的无柱大跨,使内部获得完整连续的观景界面。六根十字形钢柱以较大的间距支撑整片屋盖,使屋盖在视觉上显得稳定且轻盈,并与远处水平展开的山体建立呼应。考虑到雾浓顶村全年真正出现“日照金山”的时间有限,顶层空间并未被设计为单纯依赖景观瞬间的观景平台,而是被组织为即使在云雾遮蔽、群山隐去时依然值得停留的公共客厅。玻璃隔断轻轻划分咖啡酒吧厅与中庭等区域,既保持视线与光线的连续,也让空间在使用上保持轻盈和通透。
At the top of the building, a large-span café and viewing lounge was conceived as a place of encounter between visitor and mountain. Supported by a hybrid steel-and-timber system spanning 21 by 9 metres without internal columns, the room opens toward the Lancang River valley and the distant peaks. Yet the designers did not want the space to depend only on clear weather. In Wunongding village, the celebrated “golden mountain” effect appears only intermittently; much of the year is cold, cloudy, and obscured by mist. The top floor is therefore designed not simply as a viewing room, but as a place worth inhabiting even when the mountain disappears. Light glass partitions gently separate the café from the atrium, maintaining continuity of light and sightlines, while a fireplace and sheltered seating create a quiet interior atmosphere beneath the floating roof.
▼无柱的大开间将雪山引入围坐,The open space without columns brings the snow-capped mountains into the circle of seating

▼钢木混合屋架,Steel and wood combined roof structure

▼人围炉安坐于屋盖投下的庇护之中,People sit around the fire, sheltered by the roof’s overhang

▼顶层屋盖,Top floor roof


在空间叙事上,项目还借用了藏房中“水亭—火塘—中柱”的关系。入口木门后设置压低光线与声响的前厅,并以黑镜装置形成一处具有“水面”意象的空间节点;大堂中央布置铜壁炉,以火的聚拢性与中心性回应传统火塘;贯穿中庭的中柱则持续将视线引向四层观景客厅及更远处雪山。由此,入口、接待区与中庭共同构成一条由内向外、由日常走向更高精神指向的空间路径。
Several spatial motifs reinterpret elements of Tibetan domestic life. In local houses, the relationship between the hearth, the water shrine, and the central column organizes a subtle axis between the sacred and the everyday. In the hotel, this is translated into a spatial sequence: a dark mirrored installation near the entrance evokes water; a freestanding copper fireplace anchors the lobby as a place of warmth and gathering; and the central column rising through the atrium draws the eye upward toward the upper lounge and, beyond it, toward the mountain. Together these elements form a gradual path from enclosure to openness, from intimacy to distance.
▼火塘与中柱,Fire place and central column

▼回绕的动线,Circular movement path

▼酒店中庭空间与寺院殿堂的柱列与高窗呼应,The atrium space of the hotel echoes the columned and high-windowed layout of the temple halls

位于负一层的餐厅以砖砌体块、台阶与平台组织平面。陶砖在统一模数控制下形成柱、矮墙及不同尺度的体块,兼具结构、家具与界面功能;木饰吊顶在局部形成框景,将视线引向庭院与山坡。高原强光经庭院挡墙与台阶反射后转化为柔和的漫射光,使餐厅空间在几何秩序中保持温暖、可停留的日常氛围。公共区域的坐垫与靠包则大量使用来自甘孜、理塘与甘南地区牧民家庭作坊的手工织布与牦牛皮。设计在合作中尽量保留其原有配色、配线与手工误差,使材料呈现更真实的触感与地方性。
▼负一层餐厅轴测图,basement axonometric

The restaurant, located on the lower ground floor, is organized by brick masses, steps, and platforms. Columns, low walls, and block-like volumes are all built from modular brickwork, which functions simultaneously as structure, furniture, and partition. Timber ceilings and framed openings direct views toward the courtyard and the hillside, while intense plateau sunlight is broken by exterior retaining walls and reflected back into the room as soft diffuse light. Though the geometry has a certain abstract rigor, tactile materials — brick, wood, stone, woven textiles, yak leather — keep the space grounded in ordinary acts of eating, gathering, and lingering.
▼砖的尺度与平台边界,The size of the bricks and the boundary of the platform

▼砖的尺度与平台边界,The size of the bricks and the boundary of the platform


客房部分则被作为“家”的延伸来组织。设计弱化了标准酒店客房的线性动线关系,通过正交与非正交体系之间的轻微扭转,将玄关、围炉沙发、床塌、书桌与浴缸组织成一串连续展开的“起居岛屿”。半高矮墙、木格栅、书架与布帘彼此分隔又相互渗透,减少空间的完全阻断。略低的天花、较密的梁节奏与可倚靠的厚窗洞进一步增强了房间的包裹感。
▼客房轴测图,guest room axonometric

In the guest rooms, the designers moved away from the standard hotel formula of bed, corridor, and bathroom. Instead, each room is organized as a loose sequence of domestic “living islands”: an entry vestibule for changing shoes, a seating area by the stove, a raised bed platform, a desk and bathtub by the window, and in some cases a curved stair leading to an upper level. Half-height partitions, timber screens, shelving, and curtains shape views without closing them off entirely. Lower ceiling heights, denser beam rhythms, and deeply framed windows produce a stronger sense of enclosure. The windows are designed as thick openings combined with daybeds or ledges, allowing guests to sit within the depth of the wall and experience the changing plateau light throughout the day.
▼借景与停留,Appreciating Scenery and Staying

▼半高界面与连续台面,Half-height interface and continuous countertop

▼床榻与窗景,Bedstead and Window View

▼折转的视线与被压低的局部空间,The turned-over gaze and the lowered local space

▼客房窗边坐榻,A seating area by the window in the guest room

▼奶油色与灰蓝构成稳定基调,Cream color and gray-blue form a stable base tone

▼客房室内,Guest room interior space


色彩上,项目取意于唐卡绘画中的传统主色,以矿物颜料为木皮染色,将木色、奶油色、灰蓝与少量蓝绿色控制在一个相对安静的范围内,使地方经验更多通过材料、尺度和光线进入室内,而非依靠直接的符号转述。
▼左:矿物涂料染色和比选;右:指导烧铜,Mineral coating coloring and comparison selection(left) and Guiding the process of smelting copper (right)


Color in the rooms is derived from the principal hues of Thangka painting. Mineral pigments were used to stain wood veneers, creating a palette of timber, cream, and grey-blue, occasionally intensified by blue-green accents. Soft furnishings further reinforce a domestic atmosphere: wool blankets, linen bedding, movable tables, and handwoven textiles sourced from Tibetan pastoral communities in Ganzi, Litang, and Gannan. Rather than standardizing these materials, the architects chose to work with the rhythms of family workshops, preserving original weaving methods, color combinations, and the slight irregularities of hand production. Those variations were not treated as flaws, but as part of the project’s tactile and cultural intelligence.
▼共同营造出近似家的安静开场,Created a quiet beginning that was similar to home

▼客房壁龛与家具细部,Bedroom niches and furniture details


对设计团队而言,这一项目并非试图重现某种想象中的藏地“原真”图景,而是在持续调研、观察与建造转译中,寻找一种能够回应当下现实的空间方式。它更像山边一处短暂停驻的客栈:在被过度凝视的景区环境中,以克制而温暖的内部世界,为身体与情绪提供暂时安放之处,也为旅人与神山之间保留出一段安静的距离。
For Moguang Studio, the project is less a representation of an “authentic” Tibetan image than a careful process of observation, translation, and restraint. It seeks neither symbolic spectacle nor sentimental storytelling. Instead, it offers a warm and measured interior world within a noisy and overdeveloped setting — a temporary place of rest between traveler and mountain, where architecture does not compete with the landscape, but creates the conditions to face it more quietly.
▼顶层灯光如同一处安静发亮的界面,The top-level lights are like a quiet and luminous interface

▼客房阳台以布艺为栏板,The balcony of the guest room is equipped with fabric railings

▼酒店远景,distant view of the hotel

▼施工现场,construction progress

▼在理塘和甘南牧区选织物,Selecting fabrics in the pastoral areas of Lizang and Gannan


▼负一层平面图,basement plan

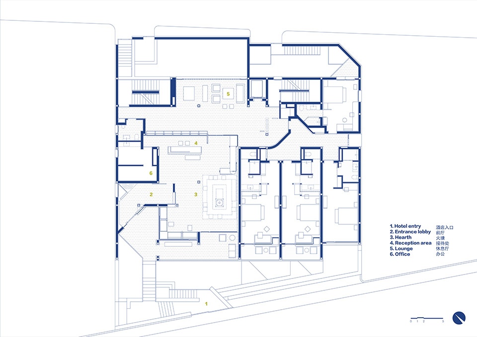
▼一层平面图,ground floor plan

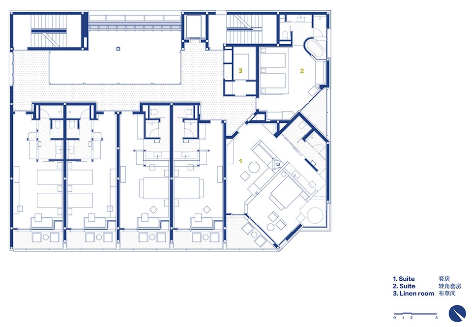
▼二层平面图,first floor plan

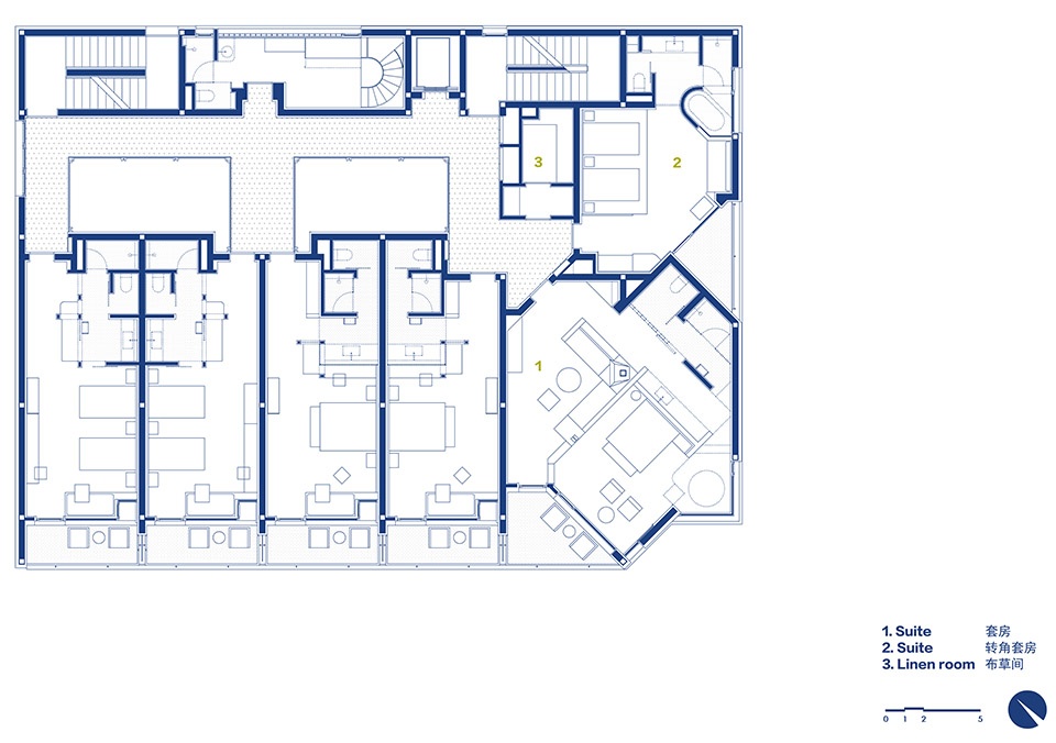
▼三层平面图,third floor plan

▼四层平面图,fourth floor plan

Project
Kawagebo Snow Mountain Hotel, Yun Nan,China
Location
Thirteen Pagodas Viewing Platform, Kawagebo Snow Mountain National Park, Deqin, Yunnan, China
Area
2,500 sqm
Design
Moguang Studio
Design Scope
Architecture, Interiors, Furnishings, Landscape
Principal Architects
Jiaying Li, Xin Feng
Client
Shanghai Shanhai Youye Hotel Group Co., Ltd.
Structural Design
Zhigang Ma
Timber Structure Consultants
iStructure (Chao Peng, Kunying Wu); Rothoblaas (Yue Yao)
MEP
Chunhui He, Hongfei Liu, Tianliang Wei
Lighting Design
Shanghai Inverse Lighting Design Co., Ltd.
Construction
Shanghai Yeyouzhu Decoration Engineering Co., Ltd.
Textiles
Jijian; AtelierSo Studio
Fabric Suppliers
Ganzi Nire Handwoven Carpets; Qinghai Gase Industry & Trade; New Delhi Secret; Parallel Puxin
Furniture Fabrication
Chengdu Qianshu; NAZA Furniture Design; Mengke
Decorative Paint Supplier
Shanghai Gongyan New Material Technology
Metalwork Support
Shanghai Juno Industrial Co., Ltd.
Film Photography
Haiting Sun
Digital Photography
Yumeng Zhu, Da Liu, Moguang Studio
Media & PR
Qing Cheng
Video Team
Director / Cinematography: Ashu Wander
Time-lapse Photography: Peng Zhang
Editing: Ajing
Producer: Qing Cheng
Styling
FC
Furnishing Support
URBAN LIVING
Design Period
November 2022 – September 2023
Completion
July 2025














