屋中屋,北京/建筑设计


一个6口之家的北京家庭在45平方米的胡同里享受着干净的室内空气。四合院位于天安门南侧北京大栅栏地区。占地45平方米,整修后的北院是三代人的新家。除了要在一个很小的地区容纳这么多人,同时为他们提供舒适的生活空间之外,我们还着手创建一个性能良好的建筑,目前在北京胡同家庭中还不为人所知。
In a courtyard located just a stone’s throw away from Tiananmen the Dashilar district of Beijing, a 45 square meter refurbished house has been designed to accommodate three generations. apart from the challenge of having a large number of occupants within a rather small area, architect Christian Taeubert set out to create a well-performing building envelope unfamiliar to most hutong homes in the region.


首先为了避免长期以来胡同住宅存在的诸如问题例如墙面返潮的恶劣问题,我们为改造提出了一个“屋中屋”的设计概念。当我们拆除所有多余的墙体,只保留屋顶和立柱时,看到很多木质结构由于长期潮气的侵蚀,变得很脆弱,所以我们的设计就像小燕子找到一个屋檐,在底下搭出一个新的房子似的。老的屋顶就像一个雨棚,从里面再盖出新的房子。除了重新设计房屋,我们答应业主在北京的一个最本质的东西:清新的新鲜空气!
In order to avoid the inherent problems of deteriorated hutong houses - such as notoriously damp floors and walls - Christian Taeubert developed the ‘house in house’ concept. the existing dwelling was in a very poor condition and was thus stripped down to its bare structure. its only remaining purpose was to simply protect the new site from the rain.



我们为北京四合院之家带来新的建筑设计理念,热交换新风空气过滤系统!为了尽可能保证其气密性,这个新的建筑表皮将采用100mm连续保温材料,包括地面。在这个气密的空间里需要控制通风同时保证二氧化碳含量在一定范围内才能正常工作。
Apart from redesigning the house, the owners were provided with one of the most essential needs in Beijing: clean indoor air! The new house is executed with 100mm of continuous insulation - including the floor. High-quality windows keep the envelope as air-tight as possible. however, an airtight envelope requires controlled ventilation in order to prevent a stale air environment, as well as possible moisture in the walls.


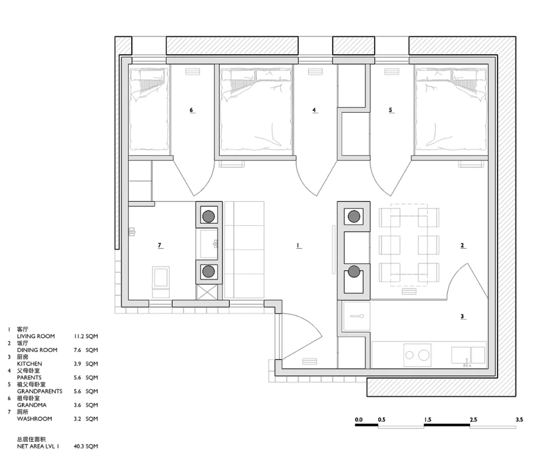
一个能量回收新风系统将确保舒适的室内气候和一个连续控制气流清洁空气做的集成PM2.5过滤器。该系统具有能量回收功能,全年可实现制冷和采暖高峰,降低了住宅的整体能耗。除了4间卧室外,小公寓还提供客厅、餐厅、夹层阅览室、厨房和浴室。2个新的天窗提供额外的日光。“屋中屋”的概念可以避免与破旧建筑之间的接口,使之具有新的当代面貌。
The installed energy recovery ventilation system ensures a comfortable room climate and a controlled flow of clean air. with its energy recovery function, the system ensures cooling and heating throughout the year, reducing the overall energy consumption of the house.


院子的所有权在过去的历史中被5个家庭分割。不幸的是,它主要用于存储。面对邻里复杂的社会环境,新房子的外观被设计成一个相对内敛的空间,因为庭院不能作为社会聚会的质量空间。
The ownership of the yard had previously been divided among five parties in the past and was mainly used for storage. Due to the complicated social condition of the Neighborhood, the exterior of the house was designed as an introverted façade, as the courtyard could not be utilized as a quality space for social gathering.


鉴于北京这一地区的物业价格约为150000元/平方米(19000欧元/平方米),我们致力于为翻新后的胡同提供一个新的标准,为现代和精心设计的住宅提供舒适的可居住环境。
Internally, apart from four bedrooms, the small dwelling offers a living room, dining room, mezzanine reading room, kitchen, and bathroom. Two new skylights provide additional daylight. the ‘house inhouse’ concept allowed for a contemporary look of the new space by avoiding the existing interfaces of the dilapidated building.





项目信息
项目名称:屋中屋
文章分类:建筑设计-住宅
设计公司:过半儿
项目地址:北京
项目规模:45平方米
设计团队:过半儿
Project information
Project Name: house in house
Article category: Architectural Design - Residence
Design company: more than half
Project address: Beijing
Project scale: 45 square meters
Design team: more than half














