协作胡同胶囊酒店,北京/室内设计
项目位于北京东二环核心老城区,临近张自忠路的段祺瑞执政府,古老韵味与现代风貌交相辉映,别具趣味。
The project is located in the core old urban area of the East Second Ring Road in Beijing, and Duan Qirui's government is close to Zhangzizhong road. The ancient charm and modern style complement each other, which is very interesting.


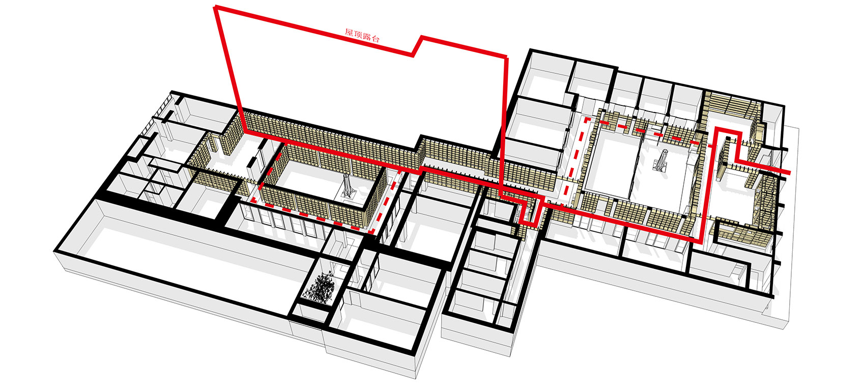
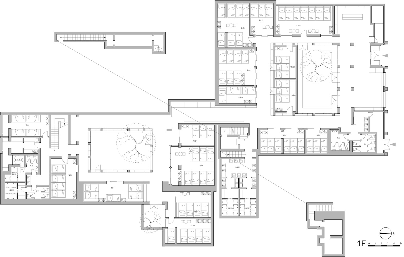
驿栈由两间院子相连而成,从一面中式的朱红色大门走进院子,左侧为前台,右侧为室内影音阅读区。影音阅读区正对白杨前院,前院影壁中暗藏玻璃砖,为房间带来柔和采光。暮色时分,暖黄光影从玻璃砖映出,交错出现代感的光影矩阵。
The post house is connected by two courtyards and enters the courtyard from a Chinese vermilion gate. The front desk is on the left and the indoor audio-visual reading area is on the right. The video reading area is facing the poplar front yard. Glass bricks are hidden in the cinema wall of the front yard to bring soft lighting to the room. At dusk, the warm yellow light and shadow are reflected from the glass brick, and the modern light and shadow matrix appears alternately.




前院东侧通道为可供休憩的共享廊道空间,这条公共走廊使城市和胡同的街道得以延长,形成“半户外街道”式的全新空间,灰砖与公共家具既成为连接着过去的桥梁,也将胶囊空间变成一个真正的“家”。整条廊道贯穿前、后院,利用落地窗,隔而不断,框取庭院风光。游走长廊时仿若置身悠长的胡同,原本陌生的游客、住客、邻里不自觉停驻于此邂逅交流。更能以具有流动性的书本为媒介,通过公共家具的引导带来别具趣味的“交流”。
The East passage of the front yard is a shared corridor space for rest. This public corridor extends the streets of the city and hutongs to form a new space of "semi outdoor street". Grey bricks and public furniture not only become a bridge connecting the past, but also turn the capsule space into a real "home". The whole corridor runs through the front and back yards, and uses floor to ceiling windows to frame the courtyard scenery. When walking along the corridor, it's like being in a long alley. Originally strange tourists, residents and neighbors unconsciously stop here to meet and communicate. It can bring interesting "communication" through the guidance of public furniture with mobile books as the medium.



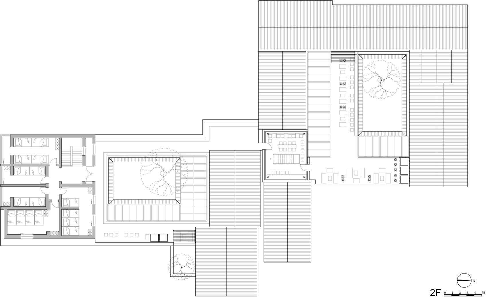
院子是“四合院”建筑的居住乐趣所在。顺着廊道来到后院,东侧角落坐落着一处被青砖包围的景观空间。穿过后院,通过南侧楼梯上到二层。二层的露台由一层廊道屋顶连通而成,形成坐于屋瓦之间、树荫之下的典型北京胡同文化体验:夏听蝉鸣,冬看白雪黛瓦。
Courtyard is the living pleasure of "quadrangles". Along the corridor to the backyard, a landscape space surrounded by green bricks is located in the east corner. Go through the backyard and go up to the second floor through the South stairs. The terrace on the second floor is connected by the corridor roof on the first floor, forming a typical Beijing Hutong cultural experience sitting between the roof tiles and under the shade of trees: listening to cicadas in summer and watching white snow and black tiles in winter.





























项目信息
项目名称:北京协作胡同胶囊酒店
设计团队:青山周平、藤井洋子、杜雷/B.L.U.E.建筑设计事务所
文章分类:室内设计-酒店会所
设计公司:B.L.U.E.建筑设计事务所
项目地址:北京协作胡同
项目规模:1300平米
主要材料:灰砖、质感涂料、木地板 、木饰面板
客户:自如寓酒店管理有限公司
楼层层数:二层
项目年份:2017年
摄影师:锐景摄影
商业形态:胶囊酒店
Project information
Project Name: Beijing xiehuotong Capsule Hotel
Design team: Aoyama Zhouping, Fujii Yoko, Du Lei / b.l.u.e. architectural design office
Article category: Interior Design - Hotel Club
Design company: b.l.u.e. architectural design office
Project address: Beijing collaborative Hutong
Project scale: 1300 square meters
Main materials: grey brick, texture coating, wood floor, wood decorative panel
Client: ziziyu Hotel Management Co., Ltd
Number of floors: second floor
Project year: 2017
Photographer: sharp view photography
Business form: Capsule Hotel














