失物招领的OōEli店,杭州/室内设计

失物招领的杭州OōEli店是BLUE继北京国子监街品牌改造项目后,与家具品牌“失物招领”的第二次合作。由Renzo Piano设计的杭州欧亿丽是一个集办公、艺术空间、零售、设计酒店和展示场所于一体的综合性艺术园区。Lost & Found是一个生活方式品牌,不仅提供实木家具,还提供日常生活中的陶瓷、器皿、织物和植物。在这次合作中,我们继续将“家”的概念和感觉带入店内,呼应一种珍惜日常生活的生活方式。空间设计围绕室内的物质性、自然纹理和工匠工艺,体现了失物招领处的艺术哲学和日常生活。
Lost & Found’s Oo?Eli store in Hangzhou is B.L.U.E.’s second cooperation with the furniture brand ‘Lost & Found’ after the renovation project for the brand at Guozijian Street in Beijing. Designed by Renzo Piano, Oo?Eli in Hangzhou is a comprehensive art park incorporating offices, art spaces, retail, design hotels and show fields. Lost & Found is a lifestyle brand that provides not only solid wood furniture but also ceramics, utensils, fabrics and plants for daily life. During this collaboration, we continues to bring the concept and sense of ‘home’ into the store, echoing a way of life that cherishes things in daily life. The spatial design revolves around materiality of the interior, natural texture and artisan craftsmanship, reflecting Lost & Found’s philosophy of art and daily life.

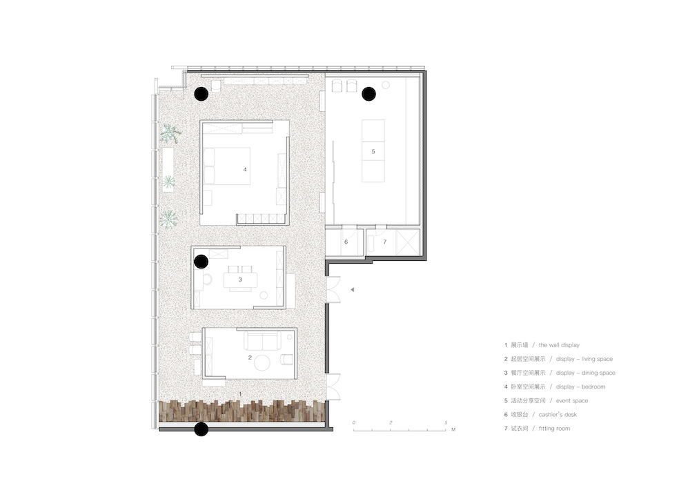
整个零售空间主要分为家具展示区和活动空间。三个散落的水洗石盒子共同构成展示空间:每个盒子区域都展示了一个生活场景,精心挑选的家具收藏。我们打算通过插入不同墙高的半封闭盒子空间来丰富长展示空间的空间体验,从而使人们在盒子中和盒子之间探索和游荡。水洗石墙自然粗犷的质感营造出柔和温馨的氛围。
The whole retail space is mainly divided into furniture display area and an event space. The three scattered washed stone boxes together form the display space: each box area exhibits a living scene with carefully selected furniture collection. We intend to enrich the spatial experience in the long display space by inserting semi-enclosed box spaces with different wall heights and therefore making people to explore and wander in and between the boxes. The natural and rough texture of the washed stone walls provides a soft and warm atmosphere.

当顾客通过展示空间时,可以看到带有斜屋顶的客舱。小屋将容纳商店活动和临时展览项目。以杭州茶园为灵感,我们意在营造一种人与自然和谐共生的感觉。两道石阶连接小屋与展示空间,呈现出温馨轻松的景象:人们聚集在小屋内,而其他人则在大自然的屋檐下休息。客舱的立面提供了一种开放感,因为木框架推拉门在视觉上将客舱与展示空间轻轻隔开。客舱的地板、墙壁和天花板采用五种不同的木材(山毛榉木、胡桃木、白橡木、樱桃木和白蜡木);都是品牌在家具制作中使用的材料。不同木材类型的融合延伸到木质推拉门和商店入口的详细设计。通过实木材料的实践,我们试图与品牌的家具系列形成对话。木材的自然纹理赋予空间温暖和柔情。
When customers pass through the display space, the cabin with a pitched roof can be seen. The cabin is to accommodate store events and temporary exhibition projects. Inspired by the tea fields in Hangzhou, we intend to create a sense of harmonious symbiosis between human and nature. The two stone steps connect the cabin and the display space, presenting a cozy and relaxed scene: people gather inside the cabin while others take a rest under the eaves in nature. The facade of the cabin provides a sense of openness since the wood-frame sliding doors visually separate the cabin lightly from the display space. Flooring, walls and ceiling of the cabin feature five different kinds of wood (beech, walnut, white oak, cherry and ash); all are of the materials which the brand use in their furniture making. The blend of different wood types extends to the detailed design of the wood sliding doors and the entrance of the store. Through the practice of solid wood materials, we attempt to form a dialogue with the brand’s furniture collection. The natural texture of the wood imparts a sense of warmth and tenderness for the space.

商店的另一个特点是展示空间一侧的木墙。整面墙由堆叠的天然木材覆盖,是商店的视觉焦点,同时作为小物件的展示区。在材料方面,我们选择的木材是家具厂生产留下的老杨木。在我们回收之前,剩余的老杨树在仓库中存放了多年。陈年木材独特的质感,折射出一丝岁月的痕迹和熟悉感。由于每一块木头的独特性,我们用它们在我们的工作室进行了小规模的实验,以测试它的视觉效果,然后我们最终在 OōEli 的建筑工地与工人一起堆叠和建造木头。即兴和实验性的墙壁制作过程是一种依靠时间、木材和手工艺相互作用的方法。由于设计和制作过程,木材被赋予了情感,为其最终呈现带来了独特的力量。木材的体积将自然气味带入空间,气味会随着时间而变化。我们相信,在电子商务平台蓬勃发展的时代,独特的感官体验有能力将人们带回实体零售空间。
Another feature of the store is the wall of timber at one side of the display space. Covered by stacked natural timber, the entire wall is a visual focus in the store, while functioning as a display area for small objects. In terms of materials, the wood we choose is old poplar wood remained from the production of the furniture factory. The old remaining poplar are stored in the warehouse for years before we reclaim them. The unique texture of the aged wood reflects a trace of time and a sense of familiarity. Because of the uniqueness of every single piece of the wood, we use them to build small-scale experiments at our studio to test its visual effect before we finally stack and build the wood together with the workers at the construction site in Oo?Eli. The wall-making process in an improvisational and experimental way is a method relying on the interaction between time, wood and handcraft. The wood is endowed with emotions due to the design and making process, bringing a unique strength to its final presentation. The volume of the timber brings natural smell into the space, and the smell will change with time. We believe that the unique sensual experience has the power to bring people back to physical retail space in an age of booming e-commerce platforms.

时间、人、物相互作用的美是一种软力量,帮助人们探索日常生活的美和意义。设计理念回应了品牌所倡导的在日常生活中珍惜事物的生活方式。在当今城市快速发展和生活节奏快的背景下,失物招领 OōEli 给了我们找回失去的日常生活和情感的可能。
The beauty of the interaction between time, human and objects is a soft power that helps people to explore the beauty and meaning of daily life. The design philosophy responds to the lifestyle of cherishing things in everyday life advocated by the brand. In the context of rapid urban development and fast pace of life today, Lost & Found Oo?Eli gives us a possibility of retrieving the lost daily life and emotions.

























项目信息
项目名称:Lost & Found’s OōEli store in Hangzhou
设计团队:B.L.U.E.建筑设计事务所
文章分类:室内设计-综合商业
设计公司:B.L.U.E.建筑设计事务所
项目地址:中国浙江省杭州市
项目规模:225 平方米
客户:失物招领(Lost & Found)
楼层层数:单层
项目年份:2020年
摄影师:探探雷
Project information
Project Name: Lost & Found’s OōEli store in Hangzhou
Design team: b.l.u.e. architectural design firm
Article category: Interior Design - comprehensive business
Design company: b.l.u.e. architectural design office
Project address: Hangzhou, Zhejiang Province, China
Project scale: 225 square meters
Client: Lost & Found
Number of floors: single floor
Project year: 2020
Photographer: mine detection














