M WOODS艺术社区改造项目,北京/建筑

1 背景
1 Background
项目选址位于中国北京二环内的老城区龙府寺街道千粮胡同。毗邻景山公园、北海公园、中国美术馆、北京人民艺术剧院等北京著名城市地标。隆福寺始建于明代,曾是商业氛围与艺术活动相结合的繁华地段,直到 1993 年发生火灾。此后,北京三环路外的多块地块被开发用于创新商业和文化,如三里屯、798艺术区等,导致二环内的传统闹市区隆福寺地区经济逐渐衰退。隆福寺一带,也因此逐渐淡出了北京人的记忆。
The project site is located in Qianliang Hutong, Longfusi Street, an old downtown area within the Second Ring in Beijing, China. It is adjacent to famous urban landmarks in Beijing such as Jingshan Park, Beihai Park, National Art Museum of China, Beijing People’s Art Theatre. Originally built in the Ming Dynasty, Longfu Temple was a prosperous area where commercial atmosphere meets art activities until it experienced a fire accident in 1993. Thereafter, a number of land plots outside the Three Ring Road in Beijing were developed for innovative commerce and culture, such as Sanlitun, 798 Art Zone, etc., which led to the gradual economic recession of Longfu Temple area, a traditional downtown region inside the Second Ring Road. Longfu Temple area, as a result, gradually faded from Beijinger’s memories. As a significant part of the revitalization plan of the Longfu Temple area, M WOODS Art Community Renovation Project aims to inherit the historical and cultural traditions of the area while exploring more opportunities and potentials.



该遗址原为龙浮寺地区职工食堂。原建筑结构简单,内部空间相当开阔,适合美术馆项目的改造。从将现代元素融入胡同历史街区的想法出发,我们尝试了本土化和实验相结合的改造设计。
The site was originally the staff canteen of Longfusi region. The structure of the original building is simple and the internal space is quite open, which is suitable for the renovation of an art museum project. Starting with the idea of blending modern elements into the historical district of Hutong, we tried a renovation design combining both localization and experimentation.

2 空间结构
2 Spatial Structure
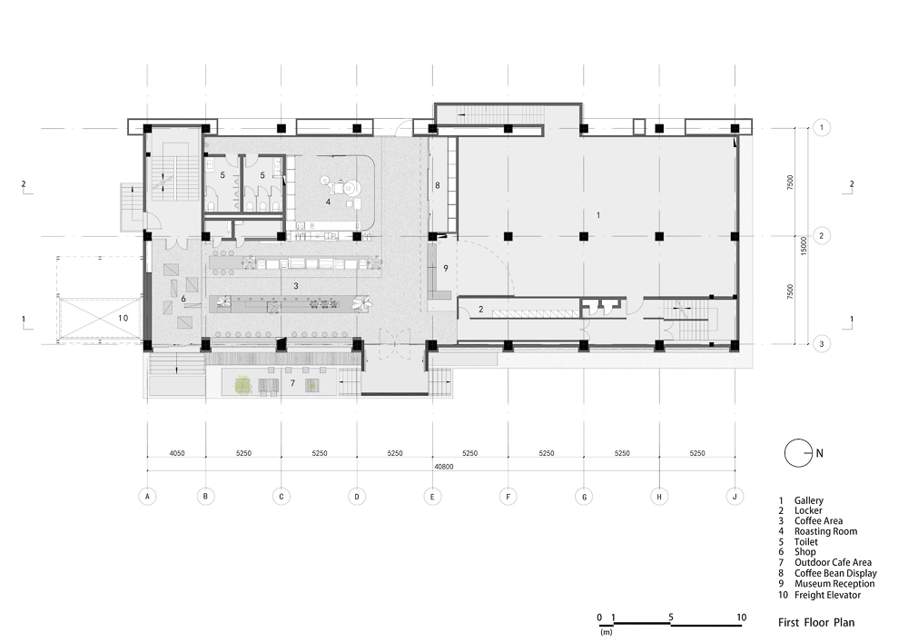
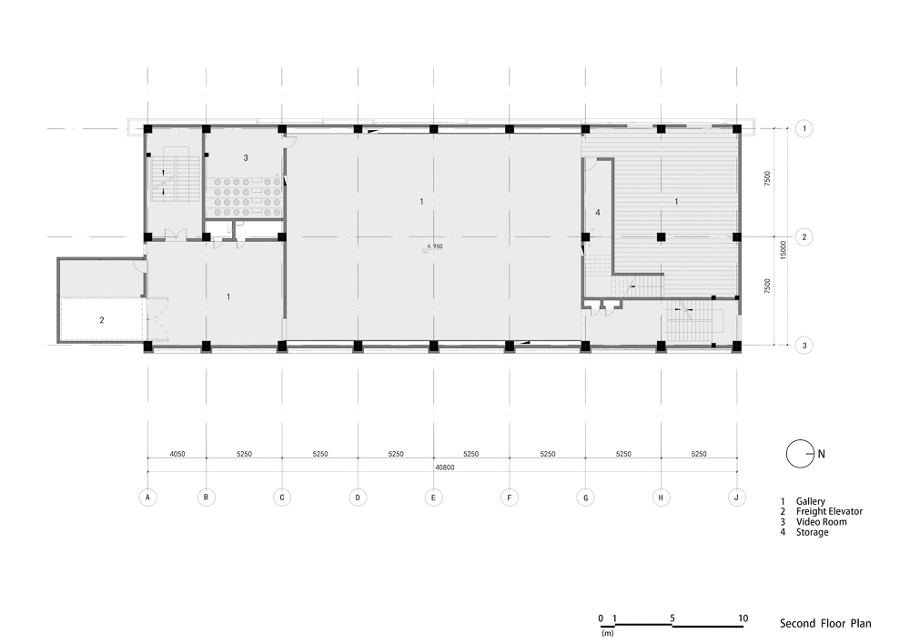
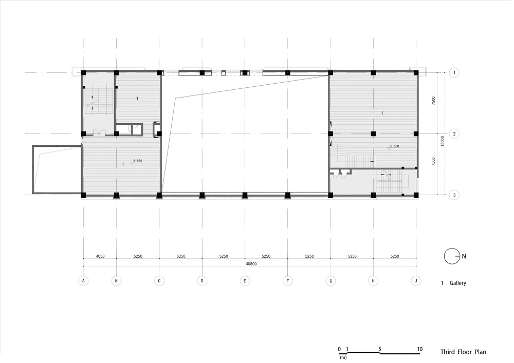
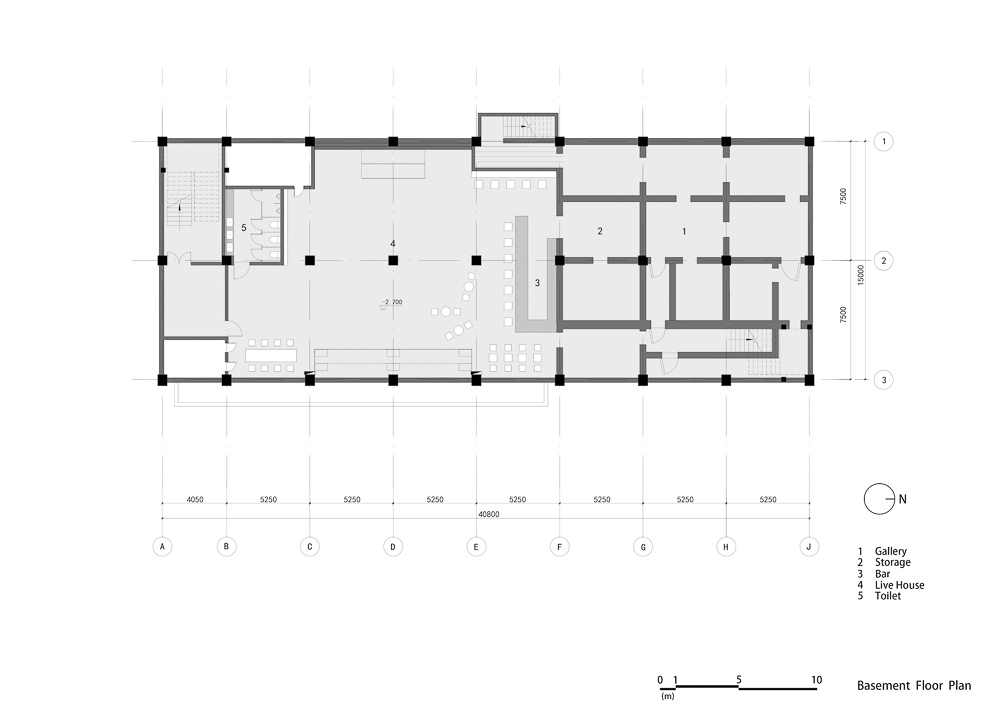
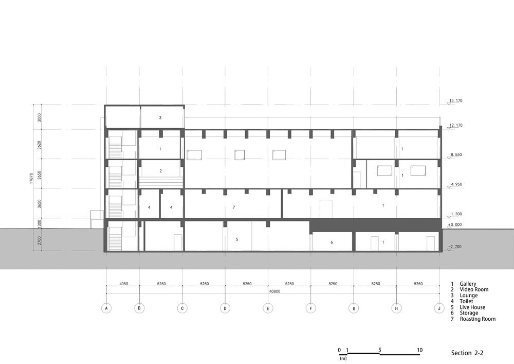
我们的设计将建筑的整体空间分为四个部分:展览空间、提供休息空间和临时活动的屋顶露台、一楼咖啡厅和地下室livehouse。
Our design divides the overall space of the building into four parts: exhibition space, a rooftop terrace that provides rest space and temporary events, a 1st floor coffee shop, and a basement livehouse.
展览空间分为地上和地下两个区域。然后我们根据面积、高度和地板材料的差异将它们分成几个不同的画廊。跨度高度从2.2米到7米不等。这些特点有利于展示不同规格、不同类型的艺术品。同时,还能带给人们独特的参观体验。
The exhibition space is divided into two areas – above and under ground areas. We then divide them into several different galleries based on the differentiation of the area, height, and floor materials. The span height varies from 2.2 meters to 7 meters. These features are beneficial for exhibiting different types of artworks with different specifications. Meanwhile, they can bring people unique visiting experience.

3 流通
3 The Circulation
随着现代社会的步伐越来越快,电话和信息层出不穷,如今的现代城市越来越少,让我们在日常生活中能够安静地观赏和欣赏艺术品。考虑到M WOODS艺术社区是位于城市核心区域的艺术中心,我们希望通过设计的流线来帮助转换观众的心情,以达到更好的艺术体验。获得门票后,游客将首先通过通道到达地下室。该区域是原建筑的民防区,走廊狭窄,天花板低。我们决定保留原始粗糙的混凝土墙,并保持光线和温度相对较低。此外,七间大小相近的连通房间给观众带来了迷宫般的体验。由于墙壁的位置和厚度,那里无法接收到电话信号。参观者经过后,会突然看到通往一楼展览空间的楼梯。两种连续但截然不同的环境体验,给人一种错觉。此外,空间定位的迷失,让人暂时忘却了外界的浮躁,重新找回了欣赏展览的心态。参观者将通过一楼的画廊到达二楼和三楼。相应地,空间和天花板高度逐渐增加;自然采光和外部场景被揭示出来。同时地,在参观者的体验过程中,楼梯墙上和博物馆西侧画廊新开的小窗户和露台,穿插着北京老城胡同的生活氛围。M WOODS艺术社区因为整体空间提供的丰富、多样和完整的体验而变得更具特色。
With the increasingly rapid pace of modern society and the endless stream of calls and messages, the modern cities today are providing less space for us to see and enjoy an artwork in peace in our daily life. Considering that M WOODS Art Community is an art center in the core region of the city, we hope to help switch the mood of the audience through the designed circulation to achieve a better art experience. After getting tickets, the visitors will first get to the basement level through a passage. The area was the civil defense region of the original building featuring narrow corridor and low ceiling. We decide to retain the original rough concrete walls and keep the light and temperature relatively low. Besides, the seven connected rooms with similar size bring the audience a maze-like experience. Due to the location and the thickness of the walls, no phone signal can be received there. After passing by, the visitors will suddenly see the stairs leading to the exhibition space on the 1st floor. The two continuous but distinct environmental experiences create an illusion for people. In addition, the lost of spatial positioning makes people to temporarily forget the impetuousness of the outside world and regain the calmness of mind to enjoy exhibition. The visitors will pass through the gallery on the first floor to the second and third floors. Accordingly, the space and the ceiling height gradually increases; the natural lighting and outside scenes are revealed. Simultaneously, the newly opened small windows and terrace on the stairway walls and at the west-side gallery of the museum are interspersed with the Hutong living atmosphere of the Beijing’s old city in the process of the visitor’s experience. M WOODS Art Community becomes more characteristic because of the rich, diverse and complete experience the overall space provides.



4 立面
4 The Façade
作为一家独立的非盈利性艺术机构,M WOODS 对改造项目有着严格的成本控制。我们没有选择常见的立面材料,而是发现了一种新材料——镀锌钢板,我们用它来创造一种折叠纹理的形式。镀锌钢具有相当好的耐腐蚀性和独特的表面纹理,主要用作围护结构和通风管道。因此成本得到有效控制。我们最初尝试的加工技术很难使材料达到预期的随机折叠效果,因此我们决定使用手工制作的方法。在手工实验中,通过对不同厚度的镀锌钢板进行测试,我们发现太薄的钢板弯曲后容易断裂,而太厚的钢板则难以手工制作。到底,我们选择0.3mm镀锌钢板。在镀锌钢板质地的选择上,考虑到板材加工方式的不同,我们对比了多家工厂。在施工阶段,为了使立面有节奏的变化,我们首先确定了五个不同层次的折痕来过渡效果。同时,设计师配合工人对板材进行加工,最终呈现出一种机械加工难以达到的立面效果。我们首先确定了五个不同级别的折痕来过渡效果。同时,设计师配合工人对板材进行加工,最终呈现出一种机械加工难以达到的立面效果。我们首先确定了五个不同级别的折痕来过渡效果。同时,设计师配合工人对板材进行加工,最终呈现出一种机械加工难以达到的立面效果。
As an independent, not-for-profit art institution, M WOODS has a strict cost control for the renovation project. Instead of choosing common façade materials, we discover a new material – galvanized steel sheet, and we use it to create a form of folded texture. Galvanized steel has fairly good corrosion resistance and unique surface texture, which is mainly used as enclosures and ventilation ducts. The cost is therefore effectively controlled. The machining technology we first tried was difficult for the material to achieve expected random folded effect, so that we then decided to use the method of handcrafting. During the manual experiment, through testing galvanized steel sheets with different thicknesses, we realized that the too-thin sheets are easily to break after bending, and the too-thick ones are too hard to make by hand. In the end, we choose 0.3mm galvanized steel sheet. In terms of the selection of the texture of galvanized steel, we compared many factories in consideration of the difference among processing methods of the sheet. In the construction phase, in order to make the façade possess a rhythmic change, we first identified five different levels of crease to transition the effect. Meanwhile, the designers cooperated with the workers to process the plate, finally presenting a kind of façade effect that can hardly be achieved by mechanical processing.

5 城市更新的起点
5 The Starting Point of Urban Renewal
目前,项目场地周边已引入餐厅、酒吧、咖啡厅、共享工作空间等多种业态,吸引了更多来自世界各地的人前来参观,有的甚至长期在该区域生活和工作。M WOODS艺术社区的更新改造,不仅逐渐改变了当地人的现有生活状态,让北京二环内的老城更加年轻活力,也唤醒了百年地域的文化活力。
At present, restaurants, bars, coffee shops, shared work space and other formats have been introduced around the project site, attracting more people from all over the world to visit, some even live and work at this area for a long time. The renewal of the M WOODS Art Community not only gradually transforms the existing state of life of the locals, making the old city inside the Second Ring in Beijing more youthful and vibrant, but also awaken the cultural vitality of the century-old region.





















项目名称:M WOODS艺术社区改造项目
设计团队:B.L.U.E.建筑设计事务所
设计公司:B.L.U.E.建筑设计事务所
项目地址:中国北京市东城区龙福寺街95号千粮胡同38号
项目规模:场地面积800㎡ | 建筑面积2070㎡(地上)/ 750㎡(地下)
楼层层数:地上三层/地下一层
客户:伍兹(M WOODS)
项目年份:2018-2019
摄影师:夏至
Project Name: M WOODS Art Community Renovation Project
Design team: B L. U.E. Architectural Design Firm
Design Company: B L. U.E. Architectural Design Firm
Project address: No. 38 Qianliang Hutong, No. 95 Longfusi Street, Dongcheng District, Beijing, China
Project scale: Site area of 800 square meters | Building area of 2070 square meters (above ground)/750 square meters (underground)
Number of floors: Three above ground floors/One underground floor
Customer: M WOODS
Project Year: 2018-2019
Photographer: Summer Solstice














