耶马溪隧道酒店,日本/室内
本项目坐落于日本大分县中津市耶马溪新建的隧道中,是一个供游客们放松与就餐的临时性休闲场所。
The “Yabakei Tunnel Hotel” project is an event where visitors can relax and dine inside of a newly completed tunnel in Yabakei, Nakatsu City, Oita Prefecture.
▼项目概览,overall view of the project
大分县是日本隧道最多的地区,此次开通的鹿熊隧道将是大分县最长的隧道,约3公里。虽然隧道的修建工程已经开始了一段时间了,但是由于没有连接到主要的公共道路,所以一直处于持续施工的状态。隧道开放前的时间有限,因此设计师并没有将该场地作为一个巨型空间进行改造处理。
Oita Prefecture has the largest number of tunnels in Japan with the Kakuma Tunnel, which has been selected as the location for this event, becoming the longest in Oita Prefecture at about 3 km. The tunnel began construction a while ago, but since it was not connected to the main public road, it continued construction it was not used as a huge space.
▼周边环境,surrounding environment
本项目的初衷是以一种临时活动的方式,让人们切身体验到耶马溪地区的风貌,为这条建设了大约15年的隧道赋予全新的价值。
The original intention of the project is to let people experience the features of yemaxi area in a temporary way, and give a new value to the tunnel which has been built for about 15 years.
▼隧道里的临时性休闲建筑结构,The temporary leisure structure in the tunnel
▼由隧道内看向出口,viewing the exit from the inside of the tunnel
▼木制框架临时性结构,Wooden frame temporary structure
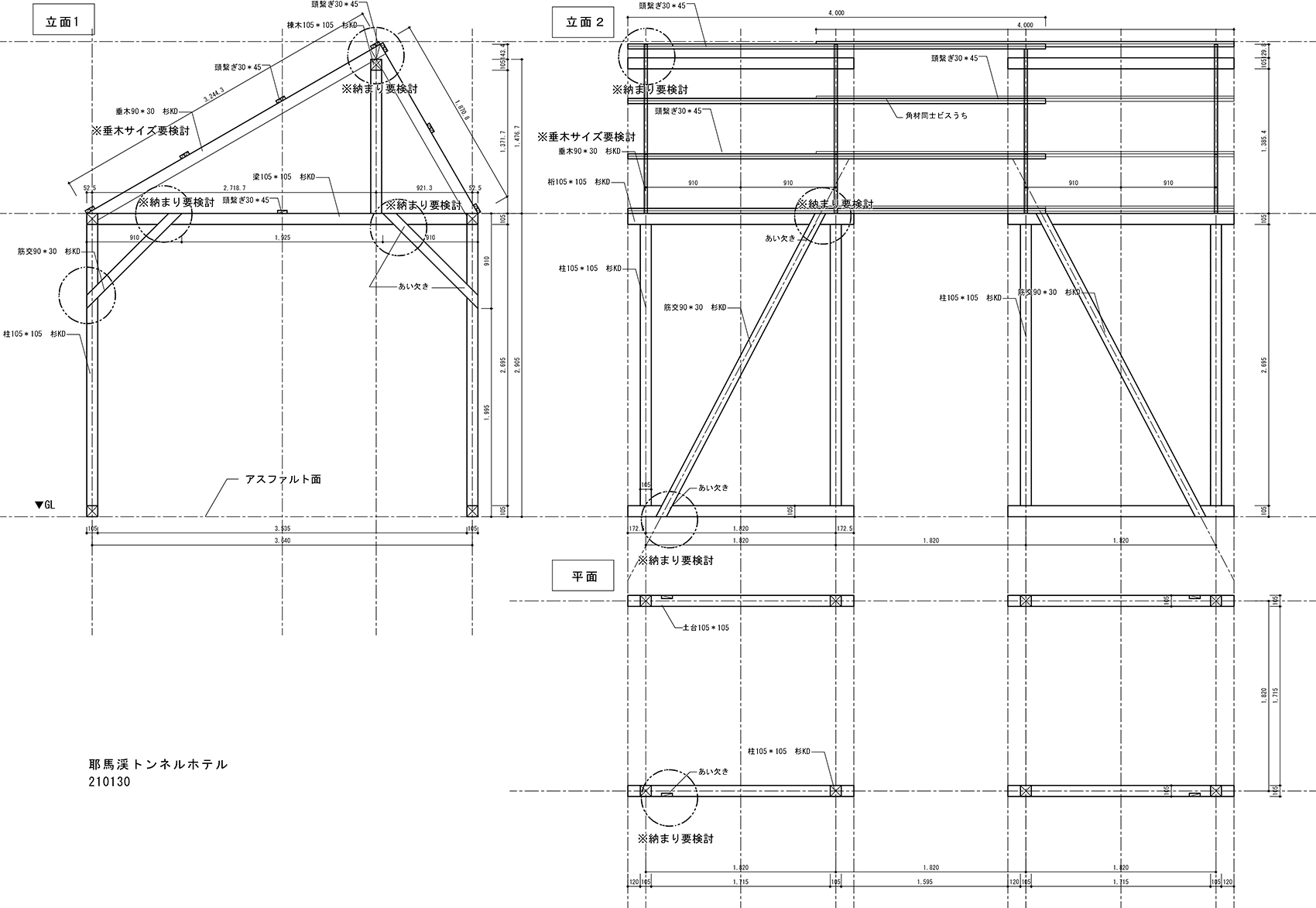
项目由一组当地郊区雪松制成的临时建筑结构,以及一张附近寺庙中生长的200多年树龄的橡树制成的长桌构成,旨在为人们提供一个用餐与放松的空间。在客人享用食物和饮料的同时,会有专门的DJ在这里播放音乐,由于隧道的回声效应,整个场地将会萦绕在一种独特又有趣的氛围中。
The project consists of a group of temporary building structures made of cedar in the local suburb and a long table made of more than 200 years old oak growing in a nearby temple, which aims to provide people with a space for dining and relaxation. While guests enjoy food and drinks, there will be special DJs playing music here. Due to the echo effect of the tunnel, the whole venue will linger in a unique and interesting atmosphere.
▼夜晚的黄色灯光营造出温馨氛围,Yellow lights at night create a warm atmosphere
▼透明的合围材料,Transparent sealing material
▼内部空间概览,Internal space overview
▼活动现场,event scenario
此外,酒店还为游客们准备了露营车,供他们在此过夜,第二天早上,游客们还能够享用到当地的有机面包、蜂蜜与咖啡。
In addition, the hotel has prepared campervans for tourists to spend the night here. The next morning, tourists can enjoy local organic bread, honey and coffee.
▼停放在隧道内的露营车,camper vans parked in the tunnel
由于道路和隧道将在不久的将来开放,本酒店计划被设定为一次性活动。本项目中的临时结构均是以可持续发展为前提设计的,这些木制框架将作为酒店秋季露营活动的基础结构被再次利用,届时游客将会欣赏到枫叶与萤火虫,从不同的角度体验耶马溪的风情。设计师希望为人们创造出体验不同季节的机会,让人们进一步感受到耶马溪的魅力。
Since the road and tunnel will be open in the near future, the hotel is planned to be a one time event. However, in order to re-use the pavilion, the frame work is designed on the premise that it will be reused as a structural skeleton for an alternative accommodation event during fall when visitors will be able to see the fireflies and autumn leaves to experience Yabakei from a different perspective. By creating an opportunity for people to experience the various seasons, we hope visitors can feel the charm of Yabakei.
▼隧道灯光效果,Tunnel lighting effect



























