树下院,北京/建筑
城镇的复兴需要怎样的建筑一直是空间进化最为关注的话题。
What kind of architecture could contribute to rural revival of modernity? Such a subject has been attracting the attention of designers of the EVOLUTION DESIGN.
▼树下院鸟瞰图,aerial view
在北京市密云区巨各庄镇的张家庄村,我们以红果树、小酒馆起笔,用两个“二分半院”(1分地为0.1亩)尝试了现代建筑置入传统的方式。树下院同样是张家庄村复兴计划的一环。它位于村落的另一侧,面积较大,未来使命是一所拥有四个房间的精品客栈,可自住也可经营。我们希望尝试不同的设计语言,以差异化的设计来为张家庄村献上别具个性的审美体验。
In Zhangjiazhuang village, Jugezhuang town, Miyun district, Beijing, we started with the Red Fruit Tree and the Small Tavern, trying the traditional way of modern architecture with two “two and a half yards” (each covering an area of about 166 square meters). The Yard under The Tree is also a part of the village’s revitalization plan. Located on the other side of the village, it has a larger area, and its future mission is a four-room boutique homestay, which can be self-occupied or for business. We hope to try different design languages to present a unique aesthetic experience for Zhangjiazhuang village with differentiated design.
▼张家庄村,Zhangjiazhuang Village
▼张家庄村轴测图,Zhangjiazhuang Village axon
▼树下院轴测图,Yard under The Tree axon
“树下院”是新项目的名字——林立于一片白杨树和核桃树之间,东侧毗邻一大片菜地,这种原生态的场地优势是项目的命名渊源,也是设计的核心依托点。我们希望创造一个豁然开朗的院子,把房屋周围的树木、山峦、阳光以及使用者的各种活动都容纳其间。
The name of the project, Yard under The Tree, comes from the site environment. Surrounded by trees and vegetable fields, the yard has the advantageous natural beauty. Therefore, the new architectures are designed to embrace the hills and trees that surround the site, bath in natural sunlight, and contain a rich spatial experience.
▼树下院,Yard under The Tree
原有老建筑是整个院落的核心,由于无人居住、年久失修,老房子的结构不太稳固,木材也遭到腐蚀,空间压抑且室内灰暗,不符合当下审美和品质生活的所需。但建筑原有的风貌却颇具特色:木窗框、砖石墙、瓦屋顶,无一不是当地民居的记忆符号。我们对之进行精心的修缮和保护,保留了历史痕迹;同时,为保证安全,我们在老房子的内部增设钢结构以加固,全屋更换了防水和屋面瓦。
The original old building is the core of the whole courtyard. Due to uninhabited and disrepair, the structure of the old house is not stable, the wood is corroded, the space is depressed and the interior is grey, which is not in line with the current aesthetic and quality of life. However, the original features of the building are quite distinctive: wooden window frames, brick walls and tiled roofs are all symbols of the memory of local dwellings. We have carefully restored and preserved it, preserving the traces of history; At the same time, to ensure safety, we added steel structure to the interior of the old house to reinforce, the whole house replaced waterproof and roof tiles.
▼下庭院立面,exterior view from the lower courtyard
▼下庭院的室外餐厅,outdoor dining area
老房子作为了新院子的餐馆,内部的屋面结构被保留、加固,天然成为一种装饰,提醒着观者此处一切食物孕育自天地自然。室内的家具与器物亦与之相匹配,圆润的木材以天然的色泽再度强调空间的质朴雅趣。
The old house serves as the dining area of the new courtyard, and the internal roof structure is preserved and reinforced, which naturally becomes a kind of decoration, reminding visitors that all food here is bred from the nature of heaven and earth. Indoor furniture and implement also match with it, wood emphasizes the plain elegance of the space again with natural color and lustre.
▼老房子改成的餐厅,the old house serves as the dining area of the new courtyard
如何对待传统建筑一直是乡建最需解决的问题。作为曾经的农业大国,中国文化的乡愁浓缩于乡村,“原汁原味”固然延续记忆,却存在着种种问题:传统建造材料和结构让建筑的开窗面积受限严重,降低了采光舒适度;面向乡野而来的都会客们既向往传统的生活方式,也希望能够享受现代化的便利,他们的体验式居住状态和村落原住民大不相同。我们并不赞成“反现代”的表演,但也认可共同记忆与情感的价值。于是,我们以老房子作为空间的核心,以一种象征性的符号满足来客对“原生态”的向往,部分石墙作为一种文化符号由老房子发散而出,作为院落的装饰性外墙。
With a long history of agricultural development, nostalgia for Chinese people often manifests as a passion for original artistic quality, and it is materialized into concrete symbols such as traditional houses and materials. The traditional construction methods and materials are rich in artistic and cultural value, but limited in comfort and safety, they call for both protection and restoration. In this project, the former house becomes the nucleus of the design, around which a series of modern architectures spread out. All the traditional elements act as the symbols of the local and ethnic culture and identities.
▼用作公区的老房子,the old house is used as communal area
▼老房子的石墙,stone wall of the old building
▼下庭院,the lower courtyard
▼室外餐厅和茶室,outdoor dining room and tea room
而真正的居住空间位于老房子的南侧,灰色的水泥房子按照老房子的形态与比例而营建,却因现代结构的介入而能开设大小不一、高低错落的窗户与天窗。材质上,主建筑清水混凝土外墙与石墙一样,以 “粗野”的形态裸露于观者眼前,形成现代语境下的“原汁原味”。
The real living space is located in the south side of old house. A gray cement house builds based on the form of old house and scale. It can open windows and skylight with different size, discretion strewn at random because of the intervention of modern structure. In terms of material, the concrete exterior wall of the main building, like the stone wall, is exposed to the audience in a “rough” form, forming the “original taste” in the modern context.
▼树下的院子,the courtyard sheltered by the trees
▼与老房子连接的客厅,living area connected to the old house
▼露台能看到北边的果园,outdoor terrace with a view to the orchard
▼从客厅望向露台,view from the living room
▼客厅的白天,living room daytime
▼客厅的转角窗,the corner window
▼老房子连接客厅的廊道,corridor linking the living room to the old building
▼露台的阳光映进客厅里,living room illuminated by the sunlight from the terrace
场地东西方向的高差丰富了院落空间的形态。我们依据地形做台地处理,定义出差值1.4m的上下两部分。在平台分界处,新建筑与旧建筑藉由一个玻璃顶黑色金属连廊相接,从室外伸展至建筑内部,模糊了院子与房子、内外空间的边界。黑色金属盒子紧贴新旧建筑生长,分别成为两栋主体建筑的一部分,又在场地东侧伸出触角、彼此相连。作为关联体的“金属盒子”将南北两座主体建筑的信息和人流组织于一体,也为建筑内部空间的排布形成了新的可能。
The elevation difference between the east and west of the site enriches the shape of the courtyard space. We processed the platform according to the terrain, and defined difference value of upper and lower parts of 1.4m. At the boundary of the terrace, the new building is joined to the old building by a glass-roofed black metal corridor that extends from the outside to the building’s interior, blurring the boundary between the courtyard and the house and that of the interior and exterior Spaces. The black metal boxes grow close to the old and new buildings, forming part of the two main buildings, and extending tentacles and connecting each other on the eastern side of the site. The “metal box”, as an association, integrates the information and people flow of the two main buildings in the north and south, and forms a new possibility for the arrangement of the internal space of the building.
▼剖面图-南北,section (south-north)
▼上庭院穿过下庭院看远山,view to the mountain from the upper courtyard
▼上庭院连接新老建筑的雨廊,the new building is joined to the old building by a glass-roofed black metal corridor
▼新房子里看老房子,view to the old house from the new one
根据场地地形,东侧的连廊设于-1.4m标高位置,并创造了新的屋脊高度。地形高差借势增加了室内的净高,在新建筑部分,利用这处增加的高度,我们设计了一间位于二层的卧室和一间拥有阁楼的亲子书房,为不同的家庭结构的使用者提供了自由选择。而在北侧,公共空间由传统建筑的外壳脱胎,蔓延至新的“金属盒子”。内庭院将场地原有的植株保留下来,环绕它们布置了客厅与茶室。透过大面积玻璃窗,庭中枝桠跃入眼帘,营造出树下生活的惬意生活场景。
According to the site topography, the corridor on the east side is located at the elevation of -1.4m and creates a new ridge height. Based on that, in the new part of the building, we designed a bedroom located on the second floor and a parent-child study room with a loft, providing free choice for users of different family structures. On the north side, the public space has grown from the shell of a traditional building to a new “metal box”. The inner courtyard preserves the original plants of the site and surrounds them with the living room and tea room. Through the large glass Windows, the branches in the courtyard spring into view, creating a pleasant life scene of life under the trees.
▼新房子的门厅,entry hall of the new building
▼门厅里的天窗,skylight of the entry hall
▼有阁楼的亲子房间,the parent-child room with a loft
▼主卧室,master room
▼主卧室的卫生间,master bathroom
▼新房子的天窗,skylight
▼客房,guest room
除客厅内庭院的设计外,场地内的观景平台也为原有树木的存续而退让,最大程度地减少了营建行为对场地生态的破坏。室内,我们以大面积白墙为底,如同幕布,让树影婆娑投影其上,这种处理手法同时响应了成本、尺度和场地记忆。
In addition to the design of the courtyard in the living room, the viewing platform in the site also gives way to the survival of the original trees, minimizing the damage to the site ecology caused by the construction. In the interior, we use a large white wall as the base, like a curtain, to project the shadow of trees onto it. This processing method responds to the cost, scale and site memory at the same time.
▼客厅的内庭院,courtyard in the living room
▼客厅的傍晚,living room at dusk
我们让建筑以谦卑的姿态进入历史与自然当中,让建筑形体交织围合出的轮廓与大大小小的窗户形成形态各异的取景器:平视观山、树,仰视望星、云,俯视瞰草、石,漫步传统与现代之中,步移而景异。
We let the architecture enter the history and nature in a humble manner, and let the architectural shapes interweave into the outline and form the viewfinder of different windows shapes: looking up at the mountains and trees, looking up at the stars and clouds, looking down at the grass and stones, walking between the tradition and the modern, and moving to different places.
▼傍晚看向室外餐厅,view to the outdoor dining area
▼夜晚下庭院的立面,exterior view by night
▼夜里的院子,courtyard by night
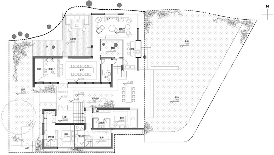
▼平面图,plan
▼东立面图,east elevation
▼南立面图,south elevation
▼剖面图 – 东西,section (east-west)
项目名称:树下院
设计公司:空间进化
项目地址:北京市密云区巨各庄镇张家庄村
项目规模:326㎡
设计团队:关天颀、高亢、李俊男、倪想、张凯杰
主要材料:碳钢板、毛石、白橡木
施工企业:北京全雅建筑工程有限公司
Project Name: Shuxia Courtyard
Design Company: Space Evolution
Project address: Zhangjiazhuang Village, Jugezhuang Town, Miyun District, Beijing
Project scale: 326 square meters
Design team: Guan Tianqi, Gao Kang, Li Junnan, Ni Xiang, Zhang Kaijie
Main materials: carbon steel plate, rough stone, white oak
Construction company: Beijing Quanya Construction Engineering Co., Ltd























































