Metal Hands铁手咖啡制造局,上海 / 室内
故事背景 | Setting
星际乘客穿越了广袤空间和无垠时间,为人类寻找新的家园,以便从满目疮痍的地球逃离。 终于,从休眠中被警报唤醒……爬出坠落的舱体,这个世界无比的熟悉,有着类似地球的植物,和可以呼吸的氧气。一切都那么美好,但是却隐约感受到了一丝异样。
Interstellar passengers have travelled the vastness of space and the infinity of time in search of a new home for humanity to escape from a devastated Earth. Finally, awakened from hibernation by an alarm……Climbing out of the fallen space capsule, the world was uncannily familiar, with Earth-like plants and oxygen to breathe. Everything was so beautiful, but there was a vague sense of something different.
▼空间概览,Space overview
切开树木,不是熟悉的木质纤维,而是光滑的镜面般金属物质。树木飘浮在空中,诡异的截面反射着这个美好却又陌生的世界。最终发现了这样一个沮丧的现实:这里没有人类,也没有大自然,这不是现实的世界,一切都是虚幻。“悬浮”在半空中的长桌源自于切开的树干,而镜面材质的截面完美的倒映出了窗外高楼林立的世界。举起咖啡杯,从桌面看到外面的世界的倒影,纷纷扰扰仿佛离着万年之远。
Cutting through the trees, instead of the familiar wood fibres, is a smooth, mirror-like metallic substance. The trees float in the air, eerie cross-sections reflecting this wonderful but strange world. Eventually, the frustrating reality is discovered: there are no humans here, and no nature either, this is not a real world, everything is unreal. The long table “suspended” in mid-air is derived from a cut tree trunk, and its mirrored cross-section perfectly reflects the world of tall buildings outside the window. Raising the coffee cup, the reflection of the world outside can be seen from the table top, as if it were a million years away.
▼概念示意图,Conceptual diagram
▼切开的树木飘浮在空中,Cut trees floating in the air
▼镜面长桌,Mirror long table
咖啡操作台是由废旧的舱体演变而来,在经过打磨后,它似乎又焕然一新了。机舱盖的灯光使整个咖啡操作区域变得明亮,也增添了一丝神秘的色彩。周边是在废墟上自然生长的植被。舱体中间的梁柱作为支撑整个结构,光线通过两个窗口洒进来。到访的顾客可以坐在舱体内部和外部就坐,看着外面的景色,仿佛驾驶着宇宙飞船在太空中遨游。沉浸式的太空咖啡之旅,将氛围感提升到极致。露营元素提升了沉浸式用餐的体验感。金属材质的木箱和低矮的座椅,让使用者离地表更近了一步,仿佛坐在火星的表面,闪烁的银河系一览无余。
The coffee worktop is an evolution of a scrap capsule. After being polished, it seems to have been made new again. The lights from the hatch cover brighten up the entire coffee-making area and add a touch of mystery. Surrounding is the vegetation that grows naturally on the ruins. A beam in the middle of the capsule acts as a support for the entire structure and light pours in through two windows. Visitors can sit inside and outside the capsule and look out at the view, as if they were flying a spaceship through space. The immersive space café journey enhances the ambience to the max. The camping element also enhances the immersive dining experience. The metallic wooden boxes and low seating bring the user one step closer to the surface, as if sitting on the surface of Mars with a glittering galaxy in full view.
▼舱体操作台演变过程,The evolution of the cabin worktop
▼舱体操作台制作过程,The process of making cabin worktop
▼露营元素,Camping elements
▼舱体操作区外座椅区,Seating area outside the cabin worktop
▼舱体式咖啡操作台近景,Close shot of cabin coffee worktop
▼内部座位,Internal seats
▼操作台内部结构,Internal structure of the coffee worktop
这是一场时光中的旅行,人们所要做的就是品尝咖啡、放空自己、享受宇宙中片刻的安宁。在设计的同时融入对时间的探索与考量,将人们带离生活的烦恼,在思绪中远航。
It is a journey through time, where all one has to do is sip coffee, empty oneself and enjoy a moment of peace in the universe. The design incorporates an exploration and consideration of time, taking people away from the worries of life and voyaging in their thoughts.
▼舱体细部,Cabin details
▼绿植细部,Plant details
▼夜晚的咖啡馆,Coffee shop at night
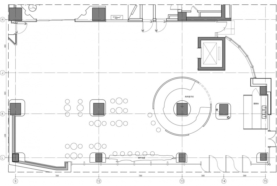
▼平面图,Floor plan


































