南阳共享际,北京/建筑
空间戏剧 | Space Drama
在老北京的胡同中,曾经弥漫着烟火气息与艺术,形成了一种独具魅力的生活氛围。一些小剧场散落在胡同中,汇集了当时最有实力的优秀艺术家们,给当时的人们带去了一场场艺术上的饕餮盛宴,也推动了我国戏剧、艺术的发展,促进了文化交流。南阳剧场历经四十余年的历史变迁,往日的繁华已不再,亟须改造。大观建筑有幸可以参与这座曾经辉煌一时的老剧场改造。
In the hutongs of old Beijing, the feeling of daily lives and art was once permeated, forming a unique and charming living atmosphere. Some small theaters were scattered in the hutongs, bringing together the most powerful and outstanding artists of the time, bringing a gluttonous feast on art to the people at that time, also promoting the development of drama and art in our country, and promoting cultural exchanges. After more than 40 years of historical changes, Nanyang Theatre is no longer prosperous in the past and is in urgent need of renovation. DAGA Architects is fortunate to be able to participate in the renovation of this once glorious old theater.
▼项目外观,External view of the project
一切艺术都是模仿,戏剧是对各种生物的行动的模仿。——亚里士多德《诗学》
All art is imitation, and drama is an imitation of the actions of all kinds of creatures. ——Aristotle, “Poetics”
公元前4世纪,亚里士多德表述了对戏剧本质的认识。“戏剧就是模仿。”将此概念延伸,戏剧与空间在某种程度上也具有一定的联系。空间往往也具有与戏剧一样的模仿、情景、重叠、冲突等元素。尤其是在改造项目中,空间被叠加了时间这个维度,使得历史与现在的冲突、场地与功能的冲突更加凸显。正如在一部戏剧中,不可能有永恒的平静也不可能有持久的冲突,一切起起落落的情景都有解决方法。老建筑改造中的这些矛盾与冲突,可以顺势让其表现、彰显冲突,也可以借力消减,使其和谐,或者就将不同的元素拼贴,简单坦诚的展示。
In the 4th century BC, Aristotle expressed his understanding of the nature of drama. “Drama is imitation.” With the extension of this concept, there is also a certain relationship between drama and space. Space often has the same elements as drama, such as imitation, scene, overlap, conflict, and so on. Especially in the renovation project, space is superimposed on the dimension of time, which makes the conflict between history and present, the conflict between site and function more prominent. Just as in a play, there can be no eternal peace or lasting conflict, so there is a solution to all the problems. These contradictions and conflicts in the renovation of old buildings can take advantage of the opportunity to show their conflicts, and they can be reduced to make them harmonious, or different elements can be collaged to show them simply and frankly.
▼南阳剧院和胡同邻居,Nanyang Theater and Hutong neighbors
顺势而为 | Follow the nature
项目位于北京东城区南阳胡同6号,属于东城区的建筑风貌保护区。受共享际的委托大观将原为汇报演出专用剧场改造为北京城一个以戏剧演出、咖啡休闲、办公、工坊、公寓为主的多功能复合空间。保留原有的艺术氛围与历史沉淀所留下的痕迹,并给空间注入新的能量,拼贴出新与旧的结合,再创出空间的辉煌,重现老剧院的艺术本色。
The project is located at No. 6 Nanyang Hutong, Dongcheng District, Beijing, which belongs to the architectural style protection area of Dongcheng District. Commissioned by 5Lmeet, DAGA Architects transformed the original theater into a multi-functional complex space in Beijing, mainly for theater performances, coffee leisure, offices, workshops, and apartments. Retain the traces left by the original artistic atmosphere and historical precipitation, inject new energy into the space, collage the combination of the new and the old, and then create the brilliance of the space and recreate the artistic nature of the old theatre.
▼入口外立面,Entrance facade
建筑外立面在材质上使用青砖,顺延整个胡同古朴的气质,主入口处采用柔和的弧线处理形式,形成一个具有进深感的入口等候区,同时又兼顾兼顾引导客流的作用。为了更加凸显入口的弧度,我们使用了新材料——玻璃砖,给原本古朴的青石砖添加了几笔通透的色彩,在夜晚能够给昏暗的胡同点起几盏明亮的灯。
The façade of the building uses grey bricks to extend the quaint temperament of the entire hutong. The main entrance uses a soft arc shape to form an entrance waiting area with a sense of depth. In order to highlight the arc of the entrance, we used a new material, glass bricks, which added a few transparent colors to the original grey bricks, which can light up the dim hutong at night.
▼立面曲面弧线延伸胡同建筑屋顶的曲线,The curved surface of the facade extends the curve of the roof of the hutong building
▼夜晚的玻璃砖,Glass bricks at night
穿过入口门厅进入大堂,临近大堂咖啡区的走廊由四段依次递减的木饰面套口分割而成,灵感来源于戏剧中的“小孔成像”原理。在走廊里,行人每靠近一步就会呈现出不同的视觉氛围。保留原有粗犷的水泥立柱并且结合新的水磨石地砖、水磨石墙裙、墙面艺术涂料及金色金属卷帘使得整个走廊充满故事性。我们顺势延伸了原本剧院的氛围,也让人们能够体验到剧场的时代交替与空间趣味性。
Passing through the entrance hall to enter the lobby, the corridor adjacent to the lobby coffee area is divided by four successively decreasing wood veneer sets, inspired by the principle of “small hole imaging” in the drama. In the corridor, pedestrians will feel a different visual atmosphere every step they approach. Retaining the original rough concrete columns and combining with new terrazzo floor tiles, terrazzo wall skirts, wall art painting, and golden metal shutters make the entire corridor full of story. We extended the atmosphere of the original theater and allowed people to experience the alternation of the times and the interesting space of the theater.
▼走廊延伸空间,Corridor extension space
▼金属卷帘等材料使空间充满故事性,Materials like metal shutters making the space full of story
历史的碰撞 | The collision of history
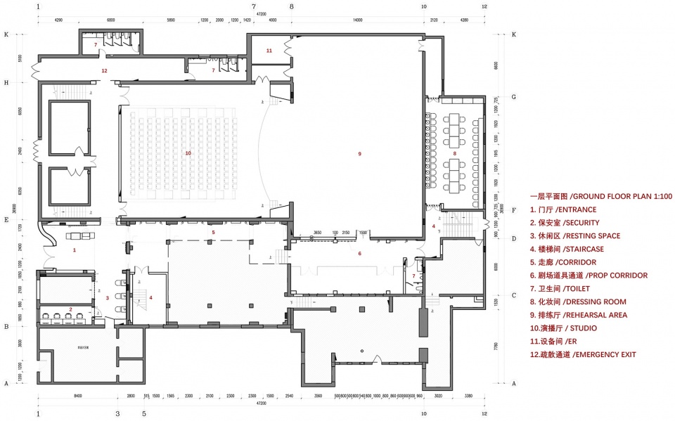
建筑的首层功能为:接待、剧场、咖啡休闲、化妆间。踏进入口大门就来到了一个充满历史怀旧感的接待前厅与公共空间。将原本的柱子与天花暴露,地面用水磨石与水泥形成对比。部分空间将老剧场保留下来老物件重新利用,也更加的体现出了新旧材料之间的传承与联系。
The functions of the first floor of the building are reception, theater, coffee leisure, dressing room. Stepping through the entrance door, you will come to a reception lobby and public space full of historical nostalgia. The original column is exposed, and the ground is contrasted with terrazzo and cement. In a part of the space, the old theater is retained and the old objects are reused, which further reflects the inheritance and connection between the new and old materials.
▼分析图,Diagram
▼首层公共空间,Public space on the ground floor
▼剧场,Theater
▼红绒布为主题的化妆间,Dressing room with red velvet theme
除了建筑本身极具特色之外,我们在现场还发现了另外一个特点,那就是剧院传承下来的各种老家具与物件。装道具的木头箱子、歌舞时用的大鼓、剧场的红色座椅以及传统的红绒布帘,这些物件一下子就把我们带回了当年那个年代。每一个物件都像是一把开启时空隧道的“钥匙”,所以在设计中,特意保留了这些物件与元素,让来到这里的人们都能回忆起当年的美好时光。
In addition to the unique features of the building itself, we also found another feature at the site, that is, all kinds of old furniture and objects are passed down from the theater from the theatre. Wooden boxes for props, big drums for singing and dancing, red seats in the theater, and traditional red velvet curtains take us back to that time at once. Every object is like a “key” to open a space-time tunnel, so these objects and elements are specially preserved in the design so that people who come here can recall the good old days.
▼ 代表性颜色 – 孔雀绿,Representative color – malachite green
▼材料细部,Material details
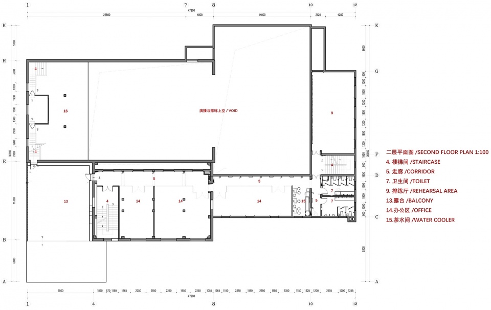
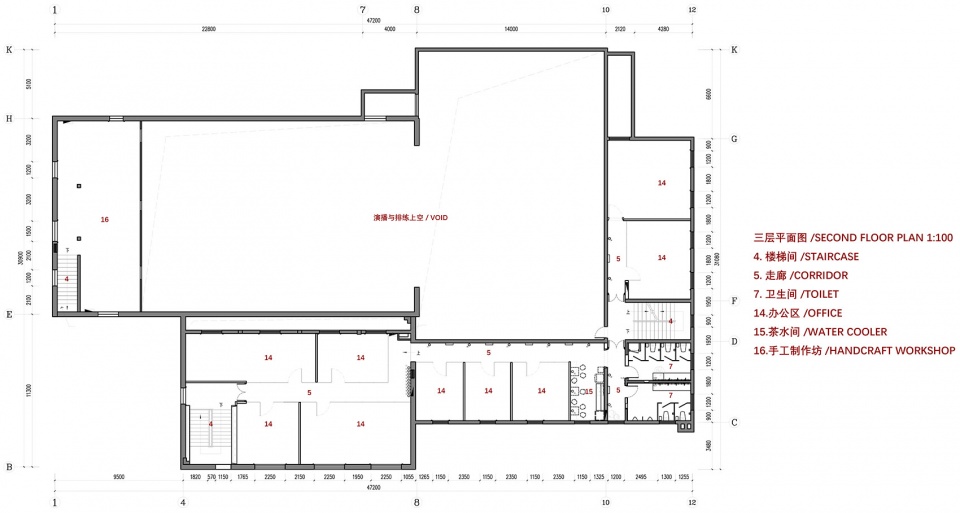
共享际二三层主要是联合办公空间,这里的玻璃隔断摒弃了颜色冰冷的黑色金属边框,我们采用明朗跳跃的孔雀绿,一是为了延续南阳剧场那个年年代的室内设计传统——半截绿,二是这样可以令整个工作的空间在视觉上更加轻盈明朗。拱形的金属造型也是传统剧场的标志性符号之一,我们在水吧区设计沿用了这个拱形的语言,并且在墙面配以金色壁灯,使得二、三层的空间既现代又具老剧院的影子。
The second and third floors of 5Lmeet are mainly co-working spaces. The glass partitions here abandon the cold black metal frame. We use the bright malachite green. One is to continue the interior design tradition skills- half green- in the old days. Second, this can make the entire working space lighter and brighter. The arched metal shape is also one of the iconic symbols of the traditional theater. We used this arched language in the design of the bar area and equipped the wall with golden wall lamps, making the second and third floors not only modern but also old.
▼联合办公空间,Co-working space
共享际的四层是以公寓为主的功能,在共享际这样的一个空间内,可以满足人们工作、休闲、居住、生活、文娱等各方面的需求。为了给租客提供更多样化的选择,我们设计了两种客房,除了风格色调的差异,材质与软装的搭配也略显不同。以黑白灰为主色调的公寓,玄关、卫生间与卧室区域形成灰、黑两个独立的色块,简洁干练。卧室大胆地使用水泥墙面漆,搭配富有戏剧感的软装家具,创造一种开放而充满层次的环境。
The fourth floor of 5Lmeet is mainly composed of apartments. In a space like 5Lmeet, it can meet people’s needs for work, leisure, living, and entertainment. To provide tenants with more diversified choices, we designed two kinds of guest rooms. In addition to the difference in style and color, the combination of materials and soft furnishings is also different. The apartment with black, white, and gray as the main color, the entrance, bathroom, and bedroom area form two independent color blocks of gray and black, which are simple and capable. The bedroom uses cement wall paint with dramatic furniture to create an open and hierarchical environment.
▼黑白系公寓客房,Black and white apartment
木色系的客房中,卧室背景墙采用胡桃木色的木格栅与大块饰面板结合的方式,同时兼顾床头板的功能。做旧金属色壁灯与复古开关面板的搭配让空间的细节处更加突显精致。卫生间与衣帽间的开敞式运用,舒适灵活,让租客可以在细节之处体验到空间中蕴含的剧院元素。
In the wood color apartment, the background wall of the bedroom adopts the combination of walnut wood panel, taking into account the function of the headboard at the same time. The combination of distressed metal wall lamps and retro switch panels makes the details of the space more exquisite. The open use of the bathroom and cloakroom is comfortable and flexible so that tenants can experience the theater elements contained in the space in detail.
▼木色系公寓客房,Wood color apartment
野蛮生长 | Natural growth
南阳剧场在改造前,就已经呈现出毛坯的状态,除了演出厅以外的其他空间,几乎都是粗野的水泥柱与剥落的墙皮。当我们进入场地的时候,建筑的残败在阳光的照耀下,光影的变幻之间,竟然消除了原本该有的落魄感,反而给人以一种粗野的美感。也许这就是一种空间的自我“野蛮生长”,新与旧本就不是“美”与“丑”的评判指标。所以在改造中,我们刻意保留了建筑中某些粗野的部分,让它尽情展现那种粗犷的魅力,让历史感外露,提升建筑空间结构的力量感,也让空间氛围更具有戏剧的冲突性。
Before the renovation, Nanyang Theater was already in a rough state. Except for the performance hall, almost all the spaces were rough cement columns and peeling walls. When we entered the site, the destruction of the building was shining in the sun, and the changes of light and shadow unexpectedly eliminated the original sense of frustration and gave people a rough sense of beauty. Perhaps this is a kind of self-“natural growth” of space and the new and the old are not the criterion of “beauty” and “ugliness”. Therefore, in the renovation, we deliberately retained some rough parts of the building, let it show the rugged charm, let the sense of history be exposed, enhance the sense of the strength of the building space structure, and make the space atmosphere more dramatic conflict.
▼裸露的原始水泥柱子与新材料的结合,The combination of exposed original cement columns and new materials
建筑共有四层,楼梯间是建筑中最重要的竖向交通空间。楼梯间墙面一半保留原有红砖材质一半采用做旧艺术涂料材质,一半是历史一半是现在,楼梯间就像一个能够穿越时空的梦幻空间。楼梯踏步延续原本的水磨石地面搭配内嵌亚克力灯带,贯穿于整个4层的建筑空间,形成一个富有历史年代感的楼梯间区域。
The building has four floors, and the staircase is the most important vertical traffic in the building. The staircase wall half retains the original red brick material, half uses the art paint material, half is history and half is new. The staircase is like a dream space that can travel through time and space. The stair steps continue the original terrazzo floor with embedded acrylic light strips, running through the entire four-story building space, forming an area full of history.
▼楼梯间,Stairscase
南阳剧场的改造,是我们倾注了许多心血的作品,不仅仅是它独特的历史背景,更是因为改造后的建筑也会形成一段属于它的新的历史,会给当代人留下来一段件珍贵的回忆。改造更新项目往往所蕴含的压力比任何新建项目都要大很多,改造的空间,我们为它翻上新的一页,更是在小心翼翼地维护与保留它的存在。
The renovation of Nanyang Theater is a project that we put in a lot of hard work, not only its unique historical background but also because the renovated building will also form a new history that belongs to it, which will leave a precious memory for contemporary people. Renovation and renewal projects often involve a lot more pressure than any new-build projects. We turn a new page for the space to be renovated, and we are careful to maintain and preserve its existence.
▼一层平面图,F1 Plan
▼二层平面图,F2 Plan
▼三层平面图,F3 Plan








































