杭州威星智能总部,杭州/建筑
不同于传统办公建筑单一的功能诉求,企业总部是集研发办公、企业形象展示、品牌价值传递,甚至激发员工交流与合作的复合型空间。市场经济竞争愈发激烈,越来越多的大中型企业投身到各自的总部建设,以此构成新的软实力竞争要素。而从建筑设计的角度来看,如何运用建筑及空间语言来为企业的形象气质量身定制,如何从空间规划到细部建造的各阶段中反映企业价值,成为我们赋能该类型领域的思考。
Different from the single functional appeal of traditional office buildings, corporate headquarters is a complex space integrating R&D office, corporate image display, brand value transmission, and even stimulating staff exchange and cooperation. The competition of market economy is more and more fierce, and more and more large and medium-sized enterprises are engaged in the construction of their headquarters, which constitutes a new element of soft power competition. From the perspective of architectural design, how to use architecture and space language to customize the image and temperament of the enterprise, how to reflect the value of the enterprise in each stage from space planning to detail construction become our thinking of enabling this type of field.
▼建筑立面,Building facade
威星智能是一家专业从事智慧燃气仪表产品的高新技术企业,于2017年上市。业主机缘巧合地在驾车途径杭州西溪首座时,因对其形式美学与建筑品质产生了高度共鸣,于是联系到我们,委托我们完成其新总部的设计工作。
Viewshine is a high-tech enterprise specializing in intelligent gas meters, which was listed in 2017. The owner, by chance, was driving through the Hangzhou Xixi Green Office Complex, and had a high resonance for its formal aesthetics and architectural quality, so she contacted us and entrusted us to complete the design of its new headquarters.
和绝大多数非地产行业的业主一样,在委托设计时,业主给到的只是一些关于未来公司总部的模糊的想象,并没有提出清晰的诉求。随着与业主交流的不断深入,我们逐渐体会到工业智造型企业对实用性、经济性、品质感的追求,以及意图在互联网快速发展的城市中寻找自身定位的愿景,“实用”、“精密”、“经济”等关键词开始逐渐浮现。我们将抽象的诉求转译为建筑语言,让建筑回归功能主义,摒弃繁复的表皮外观,精确推敲空间细节,渗入与时俱进的科技感,逐步形成差异化的工业智造上市企业形象。
Like the vast majority of non-real estate industry owners, when commissioning the design, the owners only gave some vague imagination about the future headquarters of the company, but did not put forward clear demands. With the continuous deepening of communication with the owners, we gradually realized the pursuit of practicality, economy and quality of industrial intelligent manufacturing enterprises, and the intention to find their own positioning vision in the rapid development of the Internet city, “practicality”, “precision”, “economy” and other keywords began to emerge. We translate the abstract appeal into architectural language, so that the architecture will return to functionalism, abandon the complicated skin appearance, precisely refine the space details, infiltrate the sense of science and technology with the Times, and gradually form a differentiated image of the listed industrial intelligent manufacturing company.
业主在没有借助外部设计管控的情况下,给予我们高度信任和自由。历经四年,在建筑、室内、景观、幕墙、结构、机电等团队一体化协作下,威星智能总部顺利落地。
The client gave us a high degree of trust and freedom without the help of external design controls. After four years, under the integrated cooperation of architecture, interior, landscape, curtain wall, structure, electromechanical and other teams, Viewshine Headquarters has been successfully launched.
▼道路视角,View from the road
#01
体积策略:分离 | Volume Strategy: Separation
基地位于原杭州上城工业园区,始建立于1993年,聚集了大量高新技术企业,威星智能也是其中之一。地块占地面积8599平方米,容积率2.5,密度30%,限高50米,形状呈现为东西纵向长宽比约2:1的矩形,夹杂在工业厂房、办公、自然景观和城市生活的复杂环境中。
地块西侧和北侧受到高层建筑的压迫,空间局促逼仄;南侧与城市支路接壤,成为主要的人流方向;东侧面向运河支流,是唯一的开放界面。鲜明的场地特征催生出设计的出发点,我们尝试寻找恰当的设计策略,在回应场地的同时,将场地特征转化为建筑物自身的特质。
The base is located in the former Shangcheng industrial park of Hangzhou, which was founded in 1993, and has gathered a large number of high-tech enterprises, among which Viewshine is one. The plot covers an area of 8,599 square meters, has a plot ratio of 2.5, a density of 30%, and a height limit of 50 meters. The shape of the plot is a rectangle with an east-west longitudinal length-width ratio of about 2:1, intermixed with the complex environment of industrial plants, offices, natural landscape and urban life.
The west and north sides of the plot are oppressed by high-rise buildings, resulting in cramped space; The south side is bordered by the city branch road, becoming the main direction of flow of people; The east side, facing the tributaries of the canal, is the only open interface. The distinctive site features give rise to the starting point of the design. We try to find the appropriate design strategy to respond to the site and transform the site features into the characteristics of the building itself.
▼体块示意,Building mass
▼区位图,Location map
「分离交通核」是我们最终采用的空间布局策略,以最直接的方式来回应场地。对竖向交通、卫生间、设备房等辅助功能进行整体考虑,形成纯粹的服务体量布置于场地西侧,以内向的「黑盒子」来化解场地西侧的消极条件。而办公功能体量则以外向的「白盒子」面向东侧景观打开,最后在两大体量之间置入50米通高共享中庭,联系和间隔,并以通透的界面向城市敞开。
“Separate Traffic Core” was the final spatial layout strategy we adopted to respond to the site in the most direct way. Considering the vertical traffic, toilet, equipment room and other auxiliary functions as a whole, the pure service volume is arranged on the west side of the site, and the inward “black box” solves the negative conditions on the west side of the site. The office volume opens outwards as the “white box” facing the landscape on the east side. Finally, a 50-meter-high shared atrium is inserted between the two large volumes, connecting and separating them, and opening to the city with a transparent boundary.
▼形体生成图,Form generation diagram
▼概念模型,Conceptual model
形体的生成事实上已经建立起了“场地-体量-功能”三要素间相互对应的同构关系,意味着功能主义的建筑空间被嵌入到特定的场地之中,构成了体积策略合理性的基础。功能与体量的对应关系也帮助我们获得了清晰、简洁且富有秩序感的平面布局,初步奠定了总部大楼的气质底色。
In fact, the generation of the form has established the corresponding isomorphic relationship among the three elements of “site-volume-function”. It means that the functionalist architectural space is embedded in the specific site, which forms the basis for the rationality of volume strategy. The correspondence between function and volume also gave a clear, simple and orderly floor plan, which initially established the temperament of the headquarters building.
▼平面分析,Floor plan analysis
▼场地鸟瞰,Aerial view
#02
形式策略:抽象 | Formal Strategy: Abstraction
在确定了“场地-体量-功能”的同构关系后,对建筑具体的外部形态、内部空间、表皮肌理的进一步深化,挖掘和发展企业自身的独特气质,并转译为抽象的形式语言,这也是在设计阶段与业主达成共鸣的关键步骤。
After determining the isomorphic relationship of “site-volume-function”, further deepening the concrete exterior form, interior space and skin texture of the building, excavating and developing the unique temperament of the enterprise itself, and translating it into an abstract form language, is also the key step to reach a resonance with the owner in the design stage.
▼夜间立面,Facade night view
全景的视野和极高的空间灵活度,是东侧办公体量在剥离了辅助功能后最大的空间特征,我们将这两大特征最大化的映射在立面形象和空间体验中,并作为总部大楼最主要的展示面。
我们将矩形办公体量抬升至二层,并顺势在首层的南、东、北三面形成悬挑架空,在底层形成不受结构阻碍的完整界面和大尺度公共空间,强化底层空间的开放性。
The panoramic view and extremely high spatial flexibility are the biggest spatial features of the east office volume stripped of auxiliary functions. We maximize the mapping of these two features into the facade image and spatial experience, and serve as the main façade of the headquarters building.
The rectangular office volume was lifted to the second story, and cantilevered overhead on the south, east, and north sides of the ground floor, creating a complete interface and large-scale public area unencumbered by the building, enhancing the ground floor’s openness.
▼首层入口区域,Entrance area on the ground floor
在限高的控制下,体量的东立面比例几乎接近4:3,形象过于呆板,同时规整的矩形平面空间过于乏味,于是我们结合垂直与水平向发展,在东立面置入一条连续的锯齿状挑空平台贯穿4-10层,既作为立面的纵向尺度划分,也作为平面延伸的空中交流空间。
The proportion of the east façade of the volume is approximately 4:3 under the supervision of the height restriction, and the image is excessively stiff. Simultaneously, the regular rectangular space is too boring, so we combined vertical and horizontal development, placing a continuous zigzag cantilever platform through the 4-10 floors of the east façade, not only as a vertical scale division of the façade, but also as a plane extension of the air communication space.
▼东立面锯齿状挑空平台贯穿4-10层
A continuous zigzag cantilever platform runs through the 4-10 floors of the east façade
西侧辅助体量则在形式深化上加强其内向性,设计使之向南错动并高出东侧办公体量,在围合出底层入口广场的同时,体量间的不均衡创造出动势,并覆深色金属穿孔板包裹,营造出总部大楼抵抗西侧消极环境的姿态。
The auxiliary volume on the west side strengthens its internality in form deepening, and is designed to stagnate southward and rise above the office volume on the east side. While enclosing the ground floor entrance plaza, the unbalance between the volumes creates dynamic forces and is clad in dark metal perforated panels, creating a posture of resistance to the negative west side of the headquarters building.
▼南立面,South facade
50米通高中庭引入垂直天光,在建立东西体量对话关系的同时,形成室内亦是室外的模糊边界。在各层置入具备会议、洽谈功能的玻璃盒子,为内部空间创造多维层次。
The 50-meter-high atrium introduces vertical skylight, which not only establishes a dialogue relationship between east and west volumes, but also forms a fuzzy boundary between indoor and outdoor. Glass boxes with meeting and negotiation functions are placed in each floor to create multi-dimensional layers for the internal space.
▼中庭分析图,Atrium analysis diagram
▼概念模型,Conceptual model
▼50米通高中庭,The 50-meter-high atrium
▼中庭内侧立面,Atrium facade
在中庭底部,一层入口处展厅与二层员工之家之间通过连续的台阶进行空间结构上的连接,并通过节奏的变化成为企业展示、员工交流的多变空间,而台阶下部则依势设置阶梯状的大型报告厅。
A set of huge steps connects the first floor of the exhibition hall to the second floor of the staffs’ house, serving as a structural link as well as multi-functional areas. In addition, the entire room may be used as a huge lecture hall.
▼中庭底部台阶空间,The stepped seating area in the atrium © Aaron&Rex
在为不同的空间体量赋予形式的过程中,一方面秉持实用主义,在形式操作的同时优化建筑功能;另一方面由于体量间形态区分变化体现出形式逻辑的清晰性,进一步强化建筑性格与企业气质的联系。
In the process of giving forms to different spatial volumes, on one hand, pragmatism is upheld to enrich the architectural function while deepening the form; On the other hand, the form distinction between the volumes gradually reflects the clarity of formal logic, further strengthening the connection between architectural character and enterprise temperament.
▼立面细节,Facade partial view
03
建造策略: 协作整合 | Construction Strategy: Collaborative Integration
我们更愿意建筑师使用“建造”一词,最好的建筑产品则来自于“建造艺术”。——密斯·凡德罗
We prefer architects to use the word “build,” and the best architectural products come from “the art of building.”-Ludwig Mies van der Rohe
源于多年的实践经验积累,我们始终将建造问题作为思考和工作的核心内容之一,我们坚信当材料和细部被仔细考量时,抽象的形式语言才拥有了真正的意义。
Based on years of practical experience, we always regard construction as one of the core contents of our thinking and work. We firmly believe that abstract formal language has real meaning only when materials and details are carefully considered.
▼天井,Patio
3.1 结构、机电协作整合
3.1 Structure, Mechanical and Electrical Cooperation and Integration
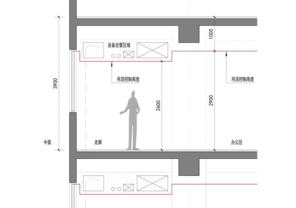
50米限高、首层6米的空间要求将标准层层高压缩至3.9米,小于通常办公楼的设计层高。如何在层高矮、跨度大的情况下提高核心空间的净高,是我们在深化设计中面临的一大挑战。在与结构、机电设计师的密切协作下,最终确定了最大结构梁高700毫米,将较大尺度的设备管线贴边布置,实现核心办公空间净高2.9米,走道等次要空间净高2.6米,达到了常规4.2米层高办公楼的净高尺度。
The height limit of 50 meters and the space of 6 meters on the first floor will compress the standard floor height to 3.9 meters, which is less than the design height of normal office buildings. How to improve the net height of the core space under the condition of high height and large span is a big challenge we are facing in deepening the design. In close collaboration with the structural and electromechanical designers, the maximum structural beam height was determined to be 700mm, and the larger equipment pipelines were arranged along the edges to achieve the net height of 2.9 meters in the core office space and 2.6 meters in the walkway and other secondary spaces, reaching the net height of 4.2 meters in the conventional office building.
▼办公区净高分析图,Office area net height analysis diagram
▼办公空间,Office space
另外,东侧体量双排柱的设计可以保证办公空间无阻隔的开放性和使用的灵活性,同时在南北两端各设置一处筒体结构,在2-3层通过钢结构斜撑转换柱结构,以实现南北首层10米悬挑的形体需求。设计过程中我们与结构设计师就结构转换是通过斜撑还是斜拉进行了反复讨论,最终确定了斜撑的形式,将转换结构对使用空间的影响降至最低。
Furthermore, the east volume’s double column design guarantees that the workplace area is open and flexible with no boundaries. A cylinder structure is placed at both ends of the north and south, and the steel structure is converted by the diagonal support column structure at the second and third floors to satisfy the shape need of 10 meters cantilever in the north and south’s first floor. Throughout the design process, we discussed with the structural designer whether the structure should be transformed using the diagonal brace or the cable-stayed, and eventually decided on the shape of the diagonal brace to reduce the transformation structure’s influence on space usage.
▼结构转换分析(斜撑转换对空间影响最小)
Structural analysis (tilting support system has the least influence on space)
▼工地照,Site photo
▼斜撑形式,Diagonal brace
3.2 表皮建造
3.2 Façade Construction
在成本受到严格控制的前提下,我们依然致力于创造精致且持久的立面细节来展现业主作为精密仪器智造企业的特质。
Under the premise that the cost is strictly controlled, we are still committed to creating exquisite and durable façade details to show the characteristics of the owner as an intelligent manufacturer of precision instruments.
▼外观局部,Exterior view
设计首先秉持经济性的务实态度,摒弃装饰构件以及幕墙转折变化、横竖百叶等常规做法,删繁精简,以单元式玻璃幕墙形成干净平整的立面,以常规成本的细部构造设计形成非常规的视觉焦点和建筑形象。
The design first grasps the economical pragmatic attitude, abandons the decorative component. The design adopts the conventional methods of curtain wall transition and horizontal and vertical louvers to cut down complexity and simplify. The unitary glass curtain wall forms a clean and flat facade, and the detailed structural design at conventional cost forms an unconventional visual focus and architectural image.
▼建筑表皮,Facade
▼单元式玻璃幕墙形成干净平整的立面,The unitary glass curtain wall forms a clean and flat facade
白色渐变点釉玻璃幕墙,通过逻辑性地排列白色釉点而得到非常规的表皮形式,在周边城市中形成自身的标识性。釉点由玻璃上下端渐变分布至人视野的中间部位,既有效地降低能耗又不影响室内视野,而外部也会随着视线角度的变化呈现出不透明、半透明、透明的多种状态。
By rationally arranging the white glazed dots, the white gradient glazed glass curtain wall creates an unusual skin, developing its own character in the surrounding metropolis. The glaze dots gradually diffuse from the upper and lower ends of the glass to the middle part of the human visual field, effectively reducing energy consumption while having no effect on the indoor visual field, while the exterior will show a variety of opaque, translucent, and transparent states as the visual angle changes.
▼东立面,East facade
▼立面(图左)剖面(图右),Elevation (left) Section (right)
▼幕墙剖面,façade section
前期,我们通过大量的图案研究以及1:1打印的方式对釉点进行细致推敲,以节省实体打样的时间和经济成本,最终现场mock-up一次成样便达到预期效果。彩釉玻璃表皮采用单元式幕墙的施工工艺,标准化的生产安装不仅有利于控制施工现场的精度,同时大幅节省施工的时间成本,工业智造的优势在建筑施工中得以体现。
In the early stage, we thoroughly examined the glaze dots through a large number of pattern studies and 1:1 printing, in order to save the time and economic cost. The on-site mock-up produces the intended impact at one time. Glazed glass skin adopts the construction technology of unit curtain wall. Standardized manufacture and installation aid not only in the monitoring of construction site accuracy, but also in the reduction of construction time costs, which also reflects the advantages of industrial intelligent manufacturing in the construction.
▼幕墙mock-up,Facade
▼幕墙细节,Facade detailed view
西侧服务空间体量,我们采用深色穿孔板作为建筑表皮,以粗犷的重金属质感与东侧精致的玻璃体块形成重与轻、实与透之间的强烈对比。深色穿孔板体量的实体感要求建筑内外的完全一致性,建筑室内一体化设计控制的优势在此刻发挥了决定性的作用。我们将外立面的材料、构造做法、形式语言延伸至室内,形成内外统一的表皮策略。穿孔板内空间常规开窗的洞口边界与外侧幕墙分割进行严格对位,避免幕墙横竖结构对功能空间的消极影响。
The building skin for the volume of the west service is black perforated panels, and the rough heavy metal texture contrasts sharply with the delicate glass block, which are heavy and light, solid and translucent. The materiality of the dark perforated volume necessitates perfect uniformity between the inside and exterior of the structure, and the integrated design of the architecture and interior plays a decisive role at this moment. We create a unified skin approach by extending the facade’s material, structure, and form language to the interior. The border of a typical opening in a perforated panel is carefully aligned with the horizontal and vertical structure of the curtain wall to avoid the negative impact of the horizontal and vertical structure of the curtain wall on functional space.
▼西侧体量采用深色穿孔板作为建筑表皮
The building skin for the volume of the west service is black perforated panels
穿孔板的孔洞形状和尺寸间距要同时满足室内的通风采光以及室外的立面虚实效果,在经多次比选打样后,最终确定了12毫米圆孔孔径,8毫米间距,32.65%穿孔率这一组数据。设计之初我们选用8毫米厚板材以求达到完美的平整度,但出于造价的考量最终将板材厚度降至5毫米,结合背后两道背筋的构造手段,有效节省成本的同时也基本达到了设计预想的效果。
The hole shape and dimension spacing of perforated panels should simultaneously satisfy the indoor ventilation and lighting as well as the outdoor facade effect. After many times of comparison and selection of samples, the final group of data namely 12 mm round hole aperture, 8 mm spacing, 32.65% perforation rate was determined. The original 8 mm thick plate can achieve perfect flatness, but in order to control the cost, 5 mm thick plate and two back ribs were redesigned.
▼穿孔板背筋示意图,Schematic diagram of perforated plate back ribs
电梯厅位于体量中段,视线对位在西侧两栋办公楼的缝隙间,我们将其完全贯穿东西,成为穿孔板体量唯一的对外窗口。
The elevator hall is located in the middle of the volume, and the line of sight is positioned between the two office buildings on the west side. We completely run it through the east and west, becoming the only viewing window of the perforated plate volume.
▼电梯厅成为穿孔板体量唯一的对外窗口,The elevator hall becomes the only viewing window of the perforated plate volume
中庭的南北侧立面我们采用超白高透玻璃,以凸显中庭空间的公共属性,弱化室内外的边界。
To accentuate the public qualities of the atrium space and lessen the barrier between indoor and outdoor, we used ultra-white high-transparency glass for the north and south sides of the atrium.
▼南立面,South facade
为了有效降低中庭能耗,在玻璃顶面我们结合玻璃划分合理置入电动遮阳帘以提高夏季中庭空间的舒适度。大尺度玻璃中庭顶部的排水问题亦是需解决的重要一环,最终在建筑、结构、幕墙三方的通力合作下得以解决:将中庭玻璃顶标高降至48.9米,与东西建筑结构顶板标高一致,在中庭玻璃顶对应位置(女儿墙翻边底部)预留整垮的结构孔洞,同时将玻璃顶中间微微起拱,朝向东西两侧找坡,雨水即可穿过女儿墙上预留的结构孔洞流入东西两侧塔楼的屋面排水沟后有组织地排掉,这样的构造设计使得体量间的交接干净简洁,保障了形式逻辑在细节上的延续性。
In order to successfully minimize the atrium’s energy consumption, an electronic shade curtain is installed on the glass roof to increase the atrium’s comfort in the summer. The drainage problem at the top of the vast glass atrium was overcome by a collaboration between architecture, structural, and curtain wall: The structure hole is reserved at the corresponding position of the glass roof of the atrium (the bottom of the parapet flanges), and the middle of the glass roof is slightly arched to look for slopes towards the east and west sides after lowering the elevation of the glass roof of the atrium to 48.9 metres, which is consistent with the roof elevation of the east and west building structures. Rainwater may run via the structural openings in the parapet and into the east and west towers’ roof drains, making the volume’s connection as clean and simple as feasible.
▼采光顶排水分析,Daylighting roof drainage analysis
▼中庭,Atrium
#04
沟通策略:坚持与妥协
Communication Strategy: Persistence and Compromise
出于业主的高度信任,设计阶段非常顺利。但随着实际建造的推进,在两处空间的实施上,设计师与业主的诉求产生了分歧。
The design process went quite easily because to the owners’ strong conviction. However, as the project developed, the designers and owners had differing expectations about how the two areas should be implemented.
4.1 通高中庭北连廊 | 4.1 North Corridor in the Atrium
原方案中,北连廊覆穿孔板,同时在4-5层、9-10层设置悬挂楼梯,设计师考虑到北面外部为较低品质建筑,会对入口处的空间氛围产生视觉干扰,但业主认为,这样会导致中庭空间过于封闭。起初我们并未妥协且极力说服业主,但在施工阶段,业主面临成本压力,希望我们进行优化设计以控制造价。我们重新进行空间模拟,最终决定取消此处穿孔板表皮和两个外挂楼梯。
In the original plan, the north corridor is covered with perforated panels, while hanging stairs are set on floors 4-5 and 9-10. The designer considered that the north external features will cause visual interference to the spatial atmosphere when entering. But the owner felt that this would limit the atrium area too much. We did not compromise at first and attempted to persuade the owner, but the owner was under financial pressure throughout construction and thought that we could optimise the design to keep costs down. After re-simulating the area, we opted to remove the perforated skin as well as two outdoor steps.
▼仰视中庭,Looking up to the atrium ceiling
直至项目建成后,置身于中庭时仍在脑海中回想模拟当初的设计效果。虽然从空间趣味性角度看,设计的出发点并没有问题,但在实际的空间中,由于人在入口门厅的视点较低,视角受到连廊底板的遮挡,外部建筑的视觉干扰影响很小。如果坚持原方案,连廊处深色穿孔板与西侧塔楼的穿孔板关系含糊,反而会弱化建筑的体量关系,也会使中庭采光不足,空间压抑。这次妥协反倒成为了由业主成本压力引起的设计校正。
Even after the completion of the project, I still simulated the original design effect in my mind when I was in the atrium. Although there is no problem with the starting point of the design from the perspective of spatial fun, however, in the actual space, due to the low viewpoint of the entrance hall, the visual angle is blocked by the corridor floor plate, and the visual interference of the external building is very small. If we stick to the original plan, the relationship between the dark perforated panels at the corridor and the perforated panels at the west side of the tower is ambiguous, which will weaken the volume relationship of the building, and also cause insufficient lighting in the atrium and space depression. The compromise turned out to be a design correction caused by the owner’s cost pressures.
▼原方案效果图(左)与建成照片(右)对比
The original design (left), the completed photo (right)
4.2 东侧临河面阶梯状空间 | 4.2 East Step-Like Space nearby the River
第二处是东侧临河面阶梯状空间的打造。将外部共享露台延伸至室内,在内部形成连贯的两层通高的共享空间,内外呼应,这是一体化设计的重要一环。然而在施工后期,业主为了方便未来分割出租管理的考量,要求取消室内两层通高设计。迫于建造经济压力,以及对业主诉求的理解,最终我们还是取消了此处通高空间。这也是本项目在设计上唯一的遗憾。
The second place is the stepped space facing the river on the east side. The external shared terrace extends to the interior, forming a coherent shared space with double height inside and outside, which is an important part of the integrated design. However, in the later stage of construction, the owner required to cancel the interior double-height design for the convenience of future divided rental management. Due to the economic pressure of construction and understanding of the owner’s demands, we finally cancelled the double-height space here. This is also the only regret in the design of this project.
▼原室内两层通高工地照
Original indoor two-story double-height construction site photo
▼外立面,Exterior view
任何项目在设计、建造过程中都不可避免的会有所妥协,业主的诉求有时会对设计产生积极的校正,有时也会迫于不断变化的现实情况对设计产生一定的损伤。当发生分歧时,建筑师不妨站在业主以及使用者的角度来重新进行理性且全面的考量,一定程度的妥协亦是我们建筑师对待专业工作的职业素养。
Any project will inevitably compromise in the process of design and construction. Sometimes the owners’ demands will positively correct the design, and sometimes the changing reality will cause certain damage to the design. When there are differences, architects might as well take a rational and comprehensive consideration from the perspective of owners and users. A certain degree of compromise is also the professional quality of our architects in dealing with professional work.
▼从城市道路望向建筑,View from the city road
#05
一体化策略:控制
Integration Strategy: Control
威星智能总部是我们尝试全面一体化策略的建成项目。建筑、室内、景观一体化策略不仅串联起建筑的形式语言、功能布局、空间氛围,同时也贯穿了全项目周期。在与项目业主的不断沟通中所形成的默契,使我们更容易捕捉业主诉求并对其进行空间转译,减少沟通成本的同时,也能节省实际的建造成本,高品质地将设计概念落地。
Viewshine Headquarters is our attempt to complete the integration strategy of the project. The integration strategy of architecture, interior and landscape not only connects the architectural form language, functional layout and spatial atmosphere, but also runs through the whole project cycle. The tacit understanding formed in the continuous communication with the project owner makes it easier for us to capture the owner’s appeal and translate it into space. While reducing the communication cost, we can also save the actual construction cost and implement the design concept with high quality.
▼立面反射出周围环境,The facade reflects the environment
5.1 平面功能的对位
5.1Counterpoint of Plan Function
企业总部设计中无法回避的一大问题就是办公区域的反复调整,也正是因为这个原因,在前期就将辅助功能剥离至西侧体量后,室内设计通过建立清晰的功能区域策略来应对办公区划分的不确定性。报告厅、咖啡厅、展厅及健身房等公共设施被集中设置在1-2层,保证可达性并提高后期管理和运行效率。
An unavoidable problem in the design of corporate headquarters is the repeated adjustment of office areas. For this reason, after the auxiliary functions were stripped to the west volume in the early stage, the interior design dealt with the uncertainty of office division by establishing a clear strategy of functional areas. Public facilities such as lecture hall, cafe, exhibition hall and gym are centrally set on the 1st and 2nd floors to ensure accessibility and improve later management and operation efficiency.
▼室内公共区域,Public area
除顶层的公司高管独立办公,中间的标准办公层均采用“大比例开敞办公+小比例独立办公”模式,由三面玻璃幕墙和中庭侧的超白玻提供充足采光。这样一来就可以将办公分区调整所带来的对设计及工期的影响降至最低。
Except the top floor where the company’s senior executives work independently, the standard office floor adopts the mode of “large proportion of open office + small proportion of independent office”, and the glass curtain wall on three sides and the ultra-white glass on the side of the atrium provide sufficient lighting. This minimizes the impact of office zoning changes on design and schedule.
▼三面玻璃幕墙和中庭侧的超白玻提供充足采光,The glass curtain wall on three sides and the ultra-white glass on the side of the atrium provide sufficient lighting
5.2 模数应用的精准
5.2 Precision of Module Application
对应单元式幕墙,办公区域中大空间的金属拉伸网板以及小空间的划分均以此为基本模数,甚至延伸至入口广场的景观地铺设计,在对内外空间品质高度可控的同时,由内而外地表达精准和秩序的企业精神。
The curtain wall unit’s module is used for the metal mesh ceiling plate in the office space, as well as the partition of tiny spaces and the landscape pavement in the entry square. The module not only controls the quality of internal and exterior space, but it also reflects the enterprise’s accuracy and orderly character.
▼入口广场,Entry square
5.3 空间内外的模糊
5.3 Blurring of Space Inside and Outside
是室内亦是室外的通高中庭,不仅在材质上将内外立面做到了高度统一,均由幕墙单位统一深化落地,同时将具有户外感的体验也融入其中。我们希望激发在其中办公人员的交流互动,空中庭院、共享空间,在通透的玻璃映射下,景观自由渗透。
The atrium not only unifies the interior and outdoor facade implemented by the curtain wall unit, but also integrates the outdoor experience into it. With the help of clear glass, employees are inspired to communicate in shared spaces and enjoy natural views in sky courtyards.
▼空中庭院,Sky courtyards
室内设计在氛围营造上也顺应东西体量特征,深色穿孔板体量内部是深色的会议室、报告厅和具有工业感的辅助性空间,基调冷静;玻璃体量是素白的办公区域,基调明亮。室内用材在对比中互相穿插,场景多变,但空间连续。
The interior design also conforms to the characteristics of the eastern and western volumes in terms of atmosphere. Inside the dark perforated panel volumes are dark meeting rooms, lecture halls and auxiliary spaces with industrial feeling, with a calm tone. The glass volume is a plain white office area with a bright tone. Indoor materials intersperse with each other in contrast, the scene is changeable, but the space is continuous.
▼从中庭望向各楼层,View to the floors from the atrium
▼中庭细节,Atrium detailed view
结语
Conclusion
从项目设计、建造,到最终落地,四年的时间里,我们与业主反复沟通的不仅是设计概念、技术解决,更多的是帮助非建筑专业的业主理解建筑语言,整合诉求,并逐渐描摹出他的建筑想象,奠定双方相同的价值认知,以建筑设计为主导,提供自下而上的设计路径,多方配合,推进项目更好的发展。“有效沟通”也逐渐成为我们在面对非专业业主的重要技能。
During the nearly four years from the design, construction and final completion of the project, what we have communicated with the owner repeatedly is not only the design concept and technical solution, but more importantly, we help the owner of non-architecture background to understand the architectural language, integrate demands, and gradually describe his architectural imagination. This has laid the foundation for the same value recognition of both parties. With architectural design as the leading, we provide a bottom-up design path, and cooperate with all parties to promote the better development of the project. “Effective communication” has gradually become an important skill for us in the face of non-professional owners.
▼建筑顶端局部,Top part of the building
如今,威星智能新总部大楼已经落成。尽管没有出跳的高度、夸张的造型、昂贵的表皮,但通过实用的建筑功能、非常规的肌理设计、精密的细节构造、高度一体的内外空间、严格把控的建筑品质,在相对常规的成本控制下,克服技术难题,营造独特的建筑气质,在周边区域内展现出独树一帜的标识性。
Now, new headquarters building of Viewshine has been completed. Despite the lack of standing out heights, dramatic styling, and expensive skins, we have overcome technical difficulties and created a unique architectural quality that makes the work stand out as an identity within the surrounding area through practical architectural functions, unconventional texture design, precise detailed construction, highly integrated internal and external space, strictly controlled architectural quality, under relatively conventional cost control.
▼远眺建筑,Distant view to the project
我们相信好的设计不仅是面对场地时的激情创作,更是基于客观条件下的理性思考和不断校正。在与业主、合作团队多方共同的价值框架内,用科学的方法控制每一个环节,分析、探索、研究、推敲,在各要素之间建立起内在的逻辑联系和平衡。
We believe that good design is not only the creation of passion in the face of the site, but also rational thinking and continuous correction under objective conditions. Within the common value framework with the owner and the cooperative team, we control each link with scientific methods, analyze, explore, study and elaborate, and establish the internal logical connection and balance between various elements.
▼建筑与城市,The project in its urban context
















































































