五邑大学学生服务中心,广东 / 建筑
项目概况 | Project Overview
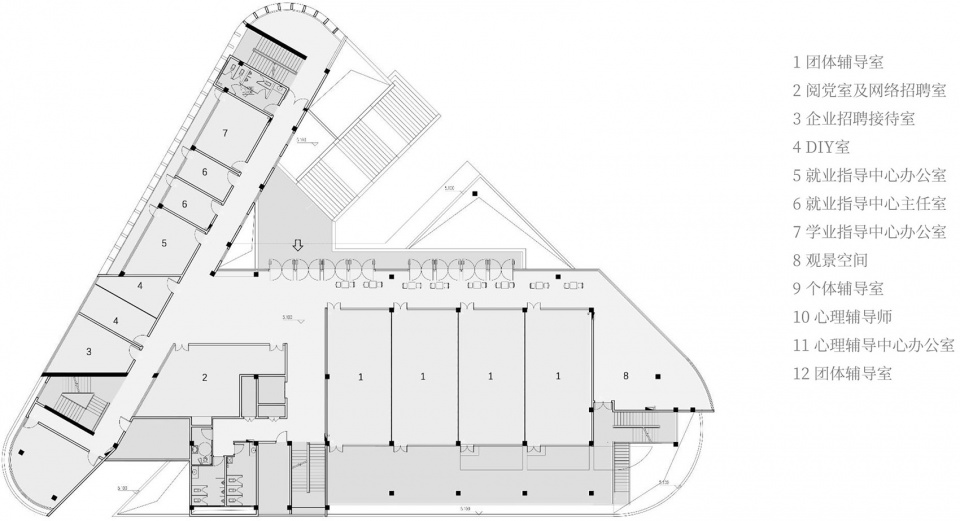
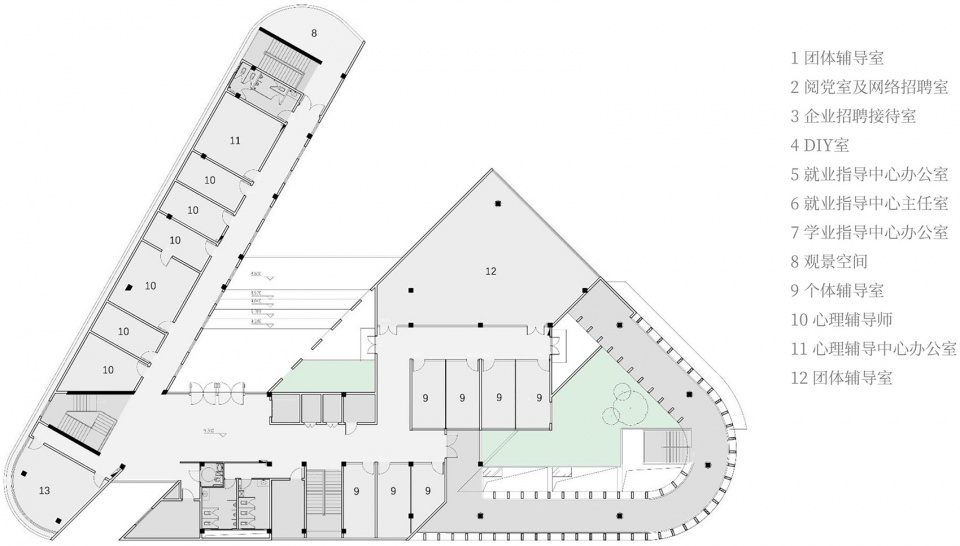
五邑大学学生服务中心位于广东省江门市五邑大学校园内,建筑面积3300平方米,楼高3层约15米,但可建设用地较为局促仅约2000平方米(扣除滨水区规划退缩范围后)。该项目是包括服务大厅、学生办事窗口、多功能课室、辅导室、展厅以及配套办公等功能的校园综合体,设计突破传统概念中服务中心使用空间单一和隔绝的刻板印象,采用立体园林式的非正式学习空间模式,实现室内外空间在通用与灵活、分散与集中、开放与封闭中的动态均衡;从而在校园和城市之间,为师生创造了可以开展行政服务、辅导、学习、交流、聚会、轻餐饮、临时展览和专题讲座等多元化社会交往和文化交流活动的丰富而复合的场所。
Wuyi University Student Service Center is located in the campus of Wuyi University in Jiangmen City, Guangdong Province, with a construction area of 3300 square meters and a building height of 3 floors of about 15 meters, but the available construction land is relatively limited, only about 2000 square meters (after deducting the withdrawal scope of waterfront planning). The project is a campus complex including service hall, student affairs window, multi-functional classroom, counseling room, exhibition hall and supporting office functions. The design breaks through the stereotype of single and isolated use space of the service center in the traditional concept, and adopts the three-dimensional garden style informal learning space mode to realize the dynamic balance of indoor and outdoor space in general and flexible, decentralized and centralized, open and closed; Thus, between the campus and the city, it creates a rich and complex place for teachers and students to carry out diversified social and cultural exchange activities such as administrative services, counseling, learning, communication, gatherings, light catering, temporary exhibitions and special lectures.
▼项目鸟瞰,aerial view of the project
▼项目外观,external view of the project
设计构思 | Design concept
园中造园,相融共生 | Gardening in the garden
项目北临天沙河,东南邻东湖公园,与一个小山丘隔湖相望。整个用地背山面水,周边绿树成林,其俨然位于一个天然的大园林之中。设计以“融入”为主题,从中国山水园林中获得灵感,让建筑体量在整体的框架围合中进行高低错落、凹凸进退等变化,在大园林之中营造小园林,形成复合的空间层次,与周边的自然环境融为一体。
The project faces Tiansha River in the north, Donghu Park and a small hill in the southeast. The whole site locates in a large natural garden, which is backed by mountains and water, surrounded by green trees. With the theme of “integration”, the design draws inspiration from Chinese landscape gardens, and creates three-dimensional small gardens in the large gardens to form a composite spatial hierarchy which integrated with the surrounding natural environment.
▼远景鸟瞰,建筑位于天然的大园林中,distanced aerial view of the project located in a large natural garden
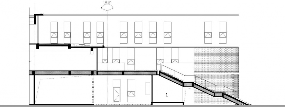
传承和转译岭南传统建筑对于地域气候的适应性措施。首层局部架空、立体园林的穿插、半室外空间的介入等设计手法让建筑造型更为灵动,在城市和校园之间建立起让阳光和风得以穿越渗透的通道,有效营造舒适的小气候。
The design translates the adaptation measures of Lingnan traditional architecture facing the regional climate. Such as partial overhead on the first floor, interspersed three-dimensional gardens, and the intervention of semi-outdoor spaces make the architectural shape more agile, establishing a passage between the city and the campus that allows sunlight and wind to penetrate and penetrate to create a comfortable microclimate effectively.
▼轴侧示意图,axonometric
▼自然通风分析图 – 空气的穿越和流动营造舒适的小气候
analysis of passive ventilation – create comfortable micro-climate by letting air run through the building
因地制宜,化整为零 | Breaking the triangle into parts
建筑外轮廓生成是基于用地形状的推导。其位于校园与水系之间的三角形交界地带,可建设范围相对于建设规模而言有着较大的局限,常见的规则形状平面并不适用于此地块。对此,方案设计顺应三角形的用地边界形状,巧妙的塑造建筑外轮廓,并通过转角的倒圆角处理,让建筑外观更为圆融顺畅。在三角形的整体体量之下,运用减法的处理,在各层体块中打通流线和视线的通廊,引入不同方向的自然景观,让建筑空间和造型在整体中富于变化。
The building outline is generated based on the derivation of the land shape. It is located at the triangular junction between the campus and the water system, and the scope of construction is relatively limited compared to the scale of construction. The plan design conforms to the triangular shape of the land boundary, cleverly shaping the outer contour of the building, and through the rounding of the corners, the building appearance is rounder and smoother. Under the overall triangular volume, subtractive processing is used to open up the corridors of circulation and sight lines in each layer of the volume, and introduce natural landscapes in different directions.
▼设计生成,design generation
▼顶视图,top view
设计把学生服务中心作为独特而整体的形体放置于校园、东湖公园及天沙河三者之间,犹如一个雕塑融合于自然之中,营造了一个鲜明的城市节点空间。减法是应对不规则用地边界的常见建筑处理方式,这种因地制宜的设计策略在本项目中也是对用地周边环境的有效整合。
The design puts the student service center as a unique and overall shape between the campus, Donghu Park and Tiansha River, like a sculpture fused with nature, creating a distinct urban node space. Subtraction is an effective integration of the surrounding environment of this project to deal with irregular land use boundaries in such local conditions
▼不同角度的建筑外观,external view of the building from different angles
立体“凹”园,激发创新 | Three-dimensional “concave” gardens
作为大园林中的小园林,学生服务中心穿插着一系列立体化的“凹”园林——不同标高的空中庭院、绿化平台和观景廊道等等——它们是通过减法形成的建筑灰空间,也成为建筑内外空间互渗互借的所在。属于非正式学习区域的“凹”园林与室内公共空间及交通空间有机结合,是功能空间的有效补充,它们所营造的与自然亲密接触的互动空间,使学生服务中心随着自然景观的季节更迭而获得丰富的环境体验。
As a small garden in a large garden, the student service center is interspersed with a series of three-dimensional “concave” gardens such as sky courtyards, green platforms and viewing corridors in different elevations, which are architectural gray spaces formed by subtraction. The “concave” garden, which belongs to the informal learning area, is organically combined with indoor public space and traffic space, as an effective supplement to functional space. The interactive space create a close contact with nature which made the student service center to get a rich environmental experience with the seasons of the natural landscape.
▼立体园林的穿插和介入,intervention of three-dimensional gardens
主入口在建筑形体的半包裹中,通过大台阶把广场延伸至二层,并成为一个休息观景的场所。二层面向东湖公园的区域设置了长向连续的凹阳台,建筑界面上运用大面积通透的玻璃幕墙,让凹阳台成为一个长向的框景窗把优美的室外景观引入内部,模糊了室内外的界限。三层的局部设置屋顶花园,并且配合建筑造型形成弧形的观景游廊,形成尽收眼底的270度美景。
The main entrance is in a semi-wrapped building, extending the square to the second floor through large steps and becoming a place for resting and viewing. The area facing Donghu Park on the second floor is equipped with a long continuous concave balcony. A large area of transparent glass curtain wall is used on the building interface to make the concave balcony become a long view window to introduce the beautiful outdoor landscape into the interior. The sky courtyard is partially set on the third floor, and an arc-shaped viewing corridor is formed in accordance with the architectural shape, forming a panoramic view of 270 degrees.
▼入口大阶梯,large steps at the entrance
▼阶梯将人们引到二层观景平台,steps leading people to the observation platform on the second floor
▼室外平台和大面积玻璃幕墙,outdoor platform and large area glass facade
▼三层观景游廊,sight viewing corridor on the third floor
▼从游廊看向远处景观,view to the landscape from the corridor
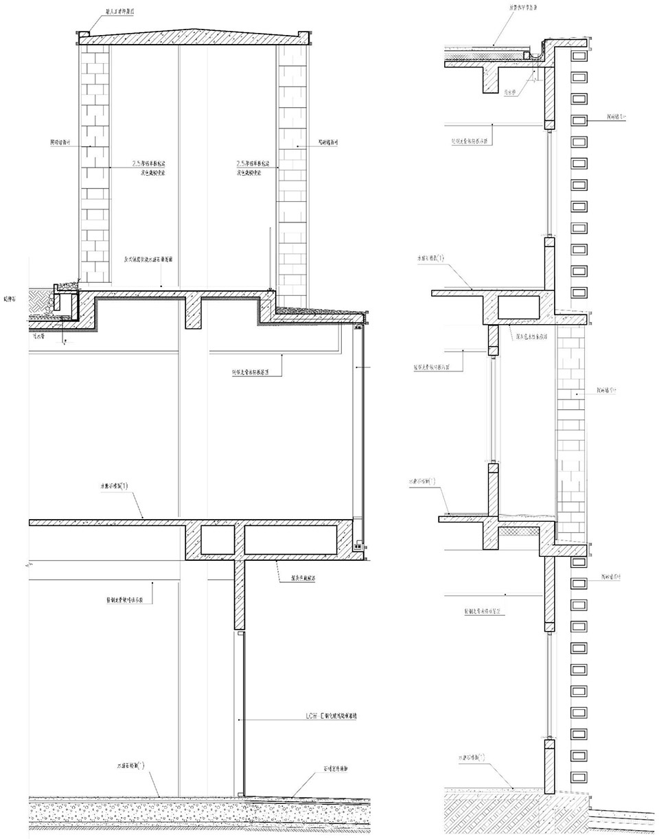
红砖新译,求同存异 | New translation of red brick facade
立面设计立足在富有活力的造型之下回归简洁和质朴的本真。立面材料选择了清水混凝土实墙与仿红砖质感的陶土砖通花幕墙,配合通透的玻璃幕墙。色调上与校园主色调砖红色一致,使建筑与校园风貌更好的协调。仿红砖质感的陶砖通花幕墙则通过全新的搭砌规律及构造技术,重新演绎了红砖厚重却细腻的气质和充满变化的细部效果。立面在统一之中创造明暗显隐的虚实变化,实现历史与现代的视觉观感交融,体现求同存异、在传承中创新的设计内涵。
The facade design is based on a return to simplicity under the energetic shape. Facade materials are selected as concrete solid wall and red brick curtain wall, with transparent glass curtain wall. The red brick color is consistent with the main color of the old campus, which makes the building and the campus style better coordinate. The red brick through-flower curtain wall, which imitates the texture of red brick with the new construction technology through the new laying rules and. The facade creates the changes in blending of historical and modern visual perception, and innovating in the inheritance.
▼陶土砖通花幕墙做法,drawing of the red brick curtain wall
▼红砖幕墙近景,closer view to the red brick curtain wall
▼砖墙细部,details of the brick wall
▼夜景外观,external view of the building in the night
▼夜晚的入口阶梯,steps at the entrance in the night
▼建筑内部的灯光,lightings in the building












































