侵华日军南京大屠杀遇难同胞纪念馆三期扩容工程 ,南京/建筑
侵华日军南京大屠杀遇难同胞纪念馆三期扩容工程建设为了纪念侵华日军1945年9月9日在南京投降事件,凸显抗战胜利的主题。构思立意为胜利、圆满的情感表达。
The Memorial Hall of the Victims in Nanjing Massacre by Japanese Invaders, Phase III was to commemorate the surrender of Japanese troops in Nanjing on September 9, 1945, and highlight the theme-the victory of the Anti-Japanese War. The idea is to express the feelings of victory and fulfillment.
▼全景鸟瞰图,aerial view
延续与个性
Continuity and individuality
纪念是一个城市记忆的延续。“断刀、纪念广场、死亡之庭、祭祀院落、和平公园”。塑造了江东门纪念馆完整的叙事篇章,是南京重要的城市记忆。三期新馆作为纪念馆的扩建工程,不仅补充城市功能、延伸参观流线、凸显不同主题的情感氛围,更是延续了城市纪念。新建部分着重叙述抗战的艰苦历程、表现胜利的喜悦,传递人类对和平圆满的愿景。
Commemoration is a continuation of a city’s memory. The spatial sequence consisted by the Broken-knife, the Memorial Square, the Death Chamber, the Sacrificial Courtyard and the Peace Park, which open a complete narrative chapter of the Jiangdong Gate memorial. It is an important urban memory of Nanjing. The Phase III as the expansion project of the Jiangdong Gate memorial, which not only supplement urban functions, extend visitors circulation, highlight emotional atmosphere of different themes, but also extend the city memory. The expansion section focuses on the arduous journey of the Anti-Japanese War, the joy of victory, and vision of mankind’s peaceful fulfillment.
▼胜利之墙航拍,aerial of the wall of victory
和而不同是方案的定位,建筑的整体形态与二期融为一体,也以更加开放包容的姿态、亲切自然的方式融入城市生活。覆土地景式的建筑形态削弱对周边城市建筑和空间的压迫感,柔和的建筑曲线与绿色的树木草地相得益彰、宁静平和。新馆立面延续灰色色调,面对城市空间排列着清水混凝土柱,亦展现了新馆的纪念性特征。
The position of the scheme is harmony without uniformity. The form of the Phase III is integrated with the second phase, and it is integrated into the urban life in a more open, inclusive, friendly and natural way. The earth-sheltered architecture reduces the pressure against the surrounding urban architecture and space, and the curvilinear architectural form is softly harmony with the green trees and grass. The facade of the new pavilion continues to be gray, with these fair-bare concrete columns in the face of the urban space, which show the memorial features of the new pavilion.
▼灰色调的新馆立面,the facade of the new pavilion continues to be gray
生态绿色纪念性建筑
Ecological and sustainable memorial building
扩容工程处处体现绿色设计理念,通过绿色植物屋面、太阳能光伏发电、中水回收利用、透水混凝土选材、下沉庭院及天井、热风压拔风效应等多个生态低碳措施,创造出一个既满足空间艺术气氛又能够体现可持续理念的生态绿色纪念性建筑。
The expansion projects reflect ecological and sustainable concept in multi aspects, via the green roof, solar photovoltaic, gray water recycle, permeable concrete, sunken garden and patio, chimney effects, and many other low-carbon measures, creating a ecological and sustainable architectural monument which possesses both architectural atmosphere and sustainable concept.
▼体现绿色设计理念,reflect ecological and sustainable concept
纪念与日常
Commemoration and routine
场地中心是椭圆形的纪念广场,寓意着中国抗战胜利和“圆满”的愿景。整个建筑物呈现谦逊柔和的空间形态,是一个融于城市生活的绿色公园。其中,一条“胜利道路”穿行其中,象征抗战胜利的艰难历程。纪念广场的四周地形微微隆起,形成半围合的空间,结合绿树设置屏蔽了部分城市干扰,保证广场的安静与私密,也为公众提供了一处亲切的放松游憩场地。人们在内可以休憩、奔跑、漫步、交流,怡然自得。
The center of the site is an oval memorial square, which symbolizes the victory of China’s Anti-Japanese War and the vision of “completeness”. The whole building presents a modest and downy form, being a green park that is integrated into urban life. Among them is a “victory road”, symbolizing the struggle for victory. The land around the memorial square is slightly uplifting, forming semi-enclosed space, blocking parts of the city combining with green trees, to ensure that the square is quiet and private, which also provides the public with a recreation place. People can rest, run, walk, wander, talk and enjoy themselves.
▼场地中心是椭圆形的纪念广场,the center of the site is an oval memorial square
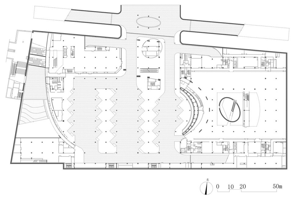
当需要举办大型纪念活动时,整个椭圆形广场亦可容纳8000人集会。广场的北面设有小型讲演台,供集会活动时候使用。广场三面的抬起斜坡场地,使广场更加具有向心感和聚合性,抬高的坡地下面容纳着商业和展览空间。在广场与坡地交界区域组织着广场主要交通流线,设计了独特的纪念景观要素。300位抗战英烈的名字镌刻于抛光黑色大理石之上,伫立于游人漫步的广场一侧。广场西南侧是与城市对接的重要出入口,设置了下沉广场使纪念广场与城市道路保持了一定的距离感。拱桥的巧妙连接则使得纪念广场的空间具有指向性和聚合性。
The entire oval square enable accommodate 8,000 people when grand commemorative events are needed. In the north of the square, there is a small podium for the rally. The three sides of the square raise the sloping land, making the square more centripetal and cohesive, elevation of the sloping land accommodate the commercial and exhibition space. The main traffic circulation of the square is organized in the border of the square and the slope, where the unique elements of the memorial landscape are designed. The name of 300 anti-war heroes is engraved on the polished black marble and stands on the side of the square where visitors wander. The southwest of the square is an important entrance to the city, the sunken square is to make the memorial square keep a certain distance with the city road. The elaborate connection of the arch bridge makes the memorial square more direct and cohesive in space.
▼各种活动,activities
复合与开放
Composition and opening
新馆是一个功能复合开放的综合体,除了胜利纪念广场、绿化公园外,还容纳了世界反法西斯战争中国战区胜利纪念馆、大巴车站、社会汽车库、自行车库、商业配套、办公等功能设施。场地西侧北侧通过设置下沉庭院及坡道与地铁、隧道、周边城市空间对接与联系。整体性对周边城市交通进行梳理与更新,有效的完善和补充了纪念馆的参观流线与交通组织,能够为城市提供一个方便可达、开放复合的城市空间节点。开放式的设计是新馆的一个重要特点,当纪念馆及新馆闭馆后,其他功能仍然可以继续提供社会服务。通过灯光照明的设计,使广场在日夜都形成不同的景色,成为一个公共开放的日夜公园。
New museum is a complex of a functional composition and opening, except the victory memorial square, green park, also contains the world’s anti-fascism war memorial hall, bus station, community garage, bicycle garage, commercial supporting facilities, office, etc. The north and west of the site is connected with the subway, tunnel and surrounding urban space by setting the sink courtyard and ramp, which comb and update of the surrounding urban traffic in general, effectively improve and supplement the museum visiting circulation and traffic organization, to provide a convenient, open and composite space node for city. Open and accessible are important features of the new museum. When the memorial hall and new museum are closed, other functions can continue to provide social services. Through the design of the lighting, the square has a different view at day and night, becoming a public day- night park.
▼设计理念及与城市生活的融合,the design concept and the interaction with the city life
空间与材质
Space and material
和平与圆满愿景,谦逊柔和的形态是这个项目最重要的表达。柔和自然的曲线,绿色开阔的草地使环境安静、轻松,在表达纪念性的同时,也为公众提供了一处亲切与放松的游憩场地。
Peace and fulfillment, the humble and soft form is the most important expression of the project. The gentle natural curve, green and open grassland makes the environment quiet and relaxed, while expressing commemoration, it also provides a friendly and relaxing recreation place for the public.
▼柔和的建筑曲线,the soft form of the architecture
在柔和的绿色的衬托下,暗红色的弧形胜利之墙分外醒目。胜利之墙材质采用了能够凸显历史感与沧桑感的暗红色锈蚀钢板。胜利之墙由负一层延伸出来,墙面为三维曲面,通过钢板的分割与嵌入灯槽形成表面肌理,象征着中华民族“浴火重生”的历史记忆,并成为开阔绿色广场日夜的主要景观。胜利之墙的最高点是胜利火炬,火炬在重大活动的时候会点燃熊熊烈火。
In the soft green foil, the dark red arc victory wall is even visible. The wall of victory is made of dark red rust plate that can highlight the sense of history and vicissitudes. The wall of victory is extended by negative one layer, the wall is three-dimensional surface, and the surface texture is formed through the separation of steel plate and the embedded lamp groove, it symbolize the historical memory “Born of Fire” of Chinese nation, and becomes the main landscape of green square. The highest point of the wall of victory is the victory torch, which will ignite when it is in events.
▼暗红色锈蚀钢板的胜利之墙突显历史沧桑感
the wall of victory is made of dark red rust plate that can highlight the sense of history and vicissitudes
▼二三期过渡联系,the transition of Phase III and II

胜利之墙后面的坡道是胜利之路,缓缓上升,通过曲面屋檐及坡道的宽窄变化形成峡谷式的空间效果,走到坡道的顶端为巨大悬挑的平台,豁然开朗。在这里人们能够俯瞰胜利广场,象征着胜利之路由“黑暗走向光明”。由胜利之路进入纪念馆,室内一个核心的空间也是贯穿各层的椭圆型的圆台体量,是纪念馆的序厅,主要的上下联系流线围绕着这个体量周围展开。圆台体量顶上一圈椭圆型的天窗,撒下柔和自然光线,增加了馆内静谧的气氛。
The ramp of the back victory wall is the road to victory, slowly rise, forming the valley-spatial-experience through curved roof and width-changed ramp, when going to the top of the ramp, is a large cantilever platform, the space suddenly enlightened. Here people can overlook the victory square, symbolizing the “route of victory” from darkness to light. Entering into the memorial hall by the “route of victory”, an elliptic cone volume pass through all the floors as the core of the interior space, acting as the preface hall of the memorial museum. The volume provides the contacts between up and down. The soft natural light pass through the elliptical skylights on the top of the volume, create a quiet atmosphere in the memorial hall.
▼进入序厅,enter the preface hall
▼出口,exit
新馆沿街立面均采用一次性浇筑的清水混凝土材质,质朴厚重的清水混凝土既能够凸显建筑的纪念性特征,又符合安静平和的建筑气质。外立面一列列混凝土柱阵将阳光切割成条条光影,形成无穷无尽的韵律感。柱廊下面铺设灰色碎石,自然形成了与城市的缓冲,也加强了建筑的纪念性与场所感。
The facade of the new pavilion is made of a single cast of fair-bare concrete, plain and thick fair-bare concrete can not only highlight the architectural commemorative features, but also accord with the quiet and peaceful architectural atmosphere. The concrete columns in the outer facade cut the sunlight into strips and form an endless rhythm. Beneath the colonnade is the grey rubble floor, which naturally formed a buffer against the city, and reinforced the architectural memory and the sense of place.
▼新馆立面均采用一次性浇筑清水混凝土,the facade of the new pavilion is made of a single cast of fair-bare concrete
▼外立面混凝土柱阵形成无穷无尽的韵律感,the concrete columns in the outer facade form an endless rhythm.
▼柱廊下面铺设灰色碎石形成了与城市的缓冲,the colonnade is the grey rubble floor that naturally formed a buffer against the city
结语
Conclusion
三期扩容工程是侵华日军南京大屠杀遇难同胞纪念馆扩建工程的一个补充和延续,兼具开放性与公共性,日常性与纪念性。这里是一个容纳历史记忆与当前生活、胜利喜悦与死亡悲痛的场所,人们可以在这里纪念、休息、放松、漫步、玩耍。我们希望通过一方公园、一个广场、一条道路的设计带给南京城市、南京市民喜欢的城市公共空间。
The Phase III expansion project is a complement and continuation of The Memorial Hall of the Victims in Nanjing Massacre by Japanese Invaders. It has the characteristics of openness and publicity, the nature and the commemoration. Here is a place to accommodate historical memories and current lives, victory joy and death grieve, where people can remember, rest, relax, walk and play. We hope that the project will be accepted and loved by the city and its residents.
▼夜色中的纪念馆,architecture in the dark














































