中卫大漠星河营地接待中心,宁夏 / 建筑
场地和背景:腾格里沙漠中的某地
Site and background: Somewhere in the Tengger Desert
项目位于宁夏中卫市沙坡头景区范围内,是距离沙漠保护区约2公里的一处沙海中。近年来,中卫的沙漠旅游方兴未艾,大漠星河营地是新开发的一处营地。项目作为营地的主体建筑,既为营地提供配套服务,如餐饮、综合接待等,又需要成为整个营地的标志物。
The project is located in the Shapotou Touristic District in Zhongwei City, Ningxia Hui Autonomous Region (NHAR), China, which is a sand sea about 2km away from the desert reserve. In recent years, desert tourism in Zhongwei is in the ascendant, and the Desert Galaxy Camp is a newly developed camp. As the main building of the site, the project not only provides supporting services for the camp, such as catering and comprehensive reception, but also serves as the symbol of the whole camp.
▼建筑成为沙漠中的标志物,Building as a landmark in desert
场地周边并没有可参照的人文景观或者历史文脉。在此处,沙漠是最直观,也最清晰的元素。起伏的沙丘,连绵向远方,天气好的时候可以看到北面远处的山脉。仔细看,沙漠中并不是千篇一律:风吹动沙子形成的极富韵律的波纹;不知具体原因形成的沙团;顽强的沙漠植物,干枯的枝条上开着浅黄色的小花;还有沙漠甲虫爬过沙丘的痕迹等等。
这些大与小、同与异、生与死之间的对比都给建筑师感悟。
There is no cultural landscape or historical context around the site. Here, the desert is the most intuitive and significant element, where the rolling sand dunes stretch into the distance. When the weather is good, the mountains in the north are clear to see. Observed carefully, the desert is not all of the same pattern, but with the rhythmic sand ripples formed by wind blow, sand masses formed for unknown reasons, tenacious desert plants with small light yellow flowers on their dry branches, traces of desert beetles climbing over sand dunes, and so on.
These comparisons between big and small, same and different, life and death give architects insight.
▼建筑与沙丘对话,Dialogue between building and sand dunes
建筑概念:半掩埋于黄沙下的宝盒
Architectural concept: a treasure box half buried under yellow sand
设计之初,建筑师查阅资料发现中卫自秦代并入中华版图后,一直是西北边塞的重要哨所。虽然中卫不直接在古丝绸之路上,也没有银川重要,但因为其独特的地理位置和自然环境——黄河和大漠,也留下了诸多事迹,如元太祖铁木真就经沙陀(今沙坡头),至黄河九渡,攻取应理县(原中卫县)。而诗人王维的名句“大漠孤烟直,黄河落日圆”据说也是描写此处。悠久的历史不禁让人想象这片大漠下面到底埋藏了多少故事,等待人们去发现。
At the beginning of the design work, through access to information, the architect found that Zhongwei had been an important post in the northwest frontier fortress since it was incorporated into the territory of China in the Qin Dynasty. Although Zhongwei was not directly on the ancient Silk Road and was not as important as the City of Yinchuan, it also left many deeds because of its unique geographical location and natural environment – the Yellow River and the desert. For example, Gengiz Khan, the first emperor of the Yuan Dynasty, passed through Shatuo (now Shapotou) to Jiudu Ferry of the Yellow River and captured Yingli County (formerly Zhongwei County). The famous Tang Dynasty poet Wang Wei’s most well-known verses, “The lonely smoke in the desert rises straight, and the setting sun over the Yellow River falls round.”, is also said to describe the scenery here. The long history can’t help but make people imagine how many stories are still buried under the desert, waiting for people to discover.
▼隐藏在沙丘中的建筑,Building hidden in sand dunes
对于一个在沙漠中的建筑,建筑师希望它符合沙漠的气质——神秘、无常,冷静又热烈,就像太多关于沙漠的故事一样。建筑师选择了直线和几何形体作为构成建筑的基本元素,模拟了一个半埋藏于黄沙中的巨大方体,并赋予了它一个叙事性的隐喻——被遗落的宝盒。一个被大漠淹藏,又等待发现的故事载体。
For a building in the desert, the architect hopes that it conforms to the temperament of the desert accordingly – mysterious, impermanent, calm and warm, just like so many stories about the desert. The architect chooses straight lines and geometric forms as the basic elements of the building, simulating a huge rectangular solid half buried in the yellow sand, and endows it with a narrative metaphor – the lost treasure box. A story carrier that is submerged in the desert and waiting to be found.
▼概念草图,Concept sketch
▼建筑,沙漠中的宝盒,Building as a treasure box in desert
▼建筑如同一个插入沙漠中的几何体,Building as a geometry inserted into the desert
布局和空间:表里相离,奇正相应
Layout and space: the exterior and interior separated, and the odd and right corresponding
因用地限制,建筑沿西北-东南方向布置,总平面成类等腰三角形,底边朝向西北方的腾格里沙漠。建筑形体如同一个倾斜的,半埋在沙漠中的盒子。表皮由穿孔的锈蚀钢板覆盖。西北方向打开,采用通透的材料,形成室内外视线的交流。
Due to the limitation of land use, the building is arranged along the northwest-southeast direction. The general plane is an isosceles triangle with the bottom facing the Tengger Desert in the northwest. The building is shaped like an inclined box half buried in the desert. Its skin is covered by perforated rusted steel plate. Opened in its northwest side, transparent materials are used to form the communication of indoor and outdoor lines of sight.
▼概念生成,gif Diagrams
▼从西面看建筑,Building viewed from the west
▼建筑西北立面打开,面向沙漠,The northwest facade of the architecture opening and facing the desert
▼西北立面,Northwest facade
建筑中的功能空间是宝盒的本体,建筑师通过四层水平向体块的堆叠和错位,解决了功能性问题。建筑外表皮则是一个斜向的插入地面的长方筒,有四个面露出地面,形成对建筑功能空间的“包裹”。两套系统形成体块和立面上的强烈交错:部分体块会穿插到斜面表皮以外,形成三角形的“凸起”。部分位置又会出现斜面和主体之间的缝隙,形成若干有遮蔽的半户外活动空间,为使用者提供了不同的体验。
The functional space in the building is the main body of the treasure box. The architect solves the functional problem through the stacking and dislocation of four horizontal blocks. The outer skin of the building is an oblique rectangular tube inserted into the ground, with four faces exposed to the ground, forming a “package” of the building’s functional space. The two systems form a strong interleaving between the blocks and the facades: some blocks will be inserted outside the inclined surface to form a triangular “bulge”. In some positions, there will be gaps between the inclined plane and the main body, forming a number of sheltered semi outdoor activity spaces, providing users with different experiences.
▼建筑体块穿插到斜面表皮以外,形成三角形的凸起,Building blocks inserted outside the inclined surface to form a triangular bulge
▼建筑体块的穿插和错位,Interpenetration and dislocation of building blocks
▼建筑的直线和自然的曲线,Straight lines of the architecture and curves of the nature
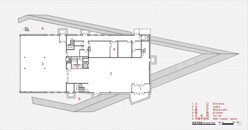
建筑入口位于东南面,和场地西面同时设计的户外舞台遥望。建筑主体共4层,一层的主要功能是入口大厅、餐厅、厨房和后勤,二层为多功能厅和咖啡厅,三层是VIP室,四层为设备机房,在西北立面设有多个半户外观景平台,既满足了半户外使用的需要,也丰富了建筑的体型。室内空间布局基本方正,很好的满足功能的需求。
The entrance of the building is located in the southeast, facing the outdoor stage designed at the same time in the west of the site far away. The main body of the building has four floors. The main functions of the first floor are entrance hall, restaurant, kitchen and logistics, the second floor is multi-functional hall and cafe, the third floor is VIP area, and the fourth floor is equipment room. Several semi outdoor viewing platforms are set on the northwest facade, which not only meets the needs of semi outdoor use, but also enriches the shape of the building. The indoor space layout is basically square, which well meets the functional requirements.
▼接待中心与户外舞台形成空间上的对望,Service center and outdoor stage facing each other in space
▼黄昏中的舞台,Stage in dusk
▼大堂,Lobby
双重屋顶:缝隙形成的光影与风
Double roofs: light, shadow and wind formed by gaps
建筑外形和内部空间的“脱节”是建筑师的有意为之。这样的处理使建筑具有双重屋顶,从而回应了沙漠地区的气候特征。因为沙漠中最不缺的是阳光,最需要的是风和阴影。
The “disconnection” between the architectural shape and the internal space is the intention of the architect. This treatment gives the building a double roof, which responds to the climatic characteristics of the desert area. Because the most indispensable thing in the desert is sunshine, while the most needed things are wind and shadow.
▼第一层表皮形成对建筑主体的包裹,The first layer of skin forming a package for the main body of the building
据当地人介绍,沙漠建筑最好有一个“罩子”,哪怕只是在主体上空撑起一块布,也会大大缓解阳光的直射,形成凉爽的小气候。锈蚀钢板形成的第一层屋顶就是这层罩子。它遮挡阳光,形成阴影,避免阳光直接照射到第二层屋顶,造成室内温度过高。阴影形成的温差(太阳直射区和阴影区之间)也产生了风。风进一步带走双重屋顶之间的热量,降低夏季室内的能耗,提升空间的舒适度。
According to local people, it is best to have a “cover” for desert buildings. Even if only a piece of cloth propped up over the main body will greatly alleviate the direct sunlight and form a cool microclimate. The first roof formed by rusted steel plate is this cover. It blocks the sunlight and forms a shadow to prevent the sun from directly shining on the second roof and resulting in excessive indoor temperature. The temperature difference caused by the shadow (between the direct sunlight area and the shadow area) also generates wind, which further takes away the heat between the double roofs, reduces the indoor energy consumption in summer and improves the comfort of the space.
▼建筑表皮为穿孔耐候钢板,Perforated weather resistant steel plate as building skin © 金伟琦
与风和阴影对应的还有若干半室外平台,使用者可以在平台上小憩,并观看沙漠的风景。锈蚀钢板上穿孔的设计有利于风的穿行,并形成戏剧性的光影效果,也为半户外空间增加了浪漫气氛。
There are also several semi outdoor platforms corresponding to the wind and shadow, where users can take a nap and enjoy the scenery of the desert. The perforated design on the rusted steel plate is conducive to the passage of the wind, and forms a dramatic light and shadow effect, which also adds a romantic atmosphere to the semi outdoor space.
▼建筑主体与表皮之间的缝隙空间,Gap space between building body and skin
▼半室外露台,Semi outdoor terrace
▼露台上戏剧性的光影,Dramatic light and shadow on the terrace
结语和反思:做一个有颜值又健康的建筑
Conclusion and reflection: to make a good-looking and healthy building
诚然,这个项目还是有遗憾的:如因场地大小的改变,建筑不得不在原设计基础上缩减体量,形态上也做了调整。又如对沙漠中风沙带来的运营成本提高考虑不足,平台和屋顶穿孔板的设计使沙子可以进入半室外空间,带来了额外的清扫工作等。
Admittedly, this project still has some regrets: for example, due to the change of site size, the building has to reduce the volume based on the original design, and the form has also been adjusted. For another example, insufficient consideration is given to the increase of operation cost caused by wind and sand in the desert. The design of perforated plate of the platforms and roofs enables the sand to enter the semi outdoor space, which brings additional cleaning work.
▼夜晚,灯光从表皮的穿孔中透出,Light shining through the perforation of the skin at night
但总的来说,这是一个有趣的项目,也是设计团队就建筑与自然关系的又一次尝试。设计关注人工物和所在环境的关系,但并不希望简单的模仿自然形态,或故作低调的隐藏建筑,而是以一种大方的态度,赋予建筑一定含义,用人工物与自然对话,使两者可以和平的相处。另一方面,设计也回应了场地的自然条件和气候特征,最大限度的与环境友好相处。如双重屋顶的处理减少了热辐射对室内的影响,降低了能耗;采用钢结构和锈蚀钢板等装配式材料可以最大限度的减少混凝土的使用,一定程度上实现了可回收,减少对沙漠环境的影响等。其实,建筑形态和环境友好并不是矛盾的,建筑师在此希望将两者编织在一起,营造一个既有颜值又健康的建筑。
But in general, this is an interesting project and another attempt by the design team on the relationship between architecture and nature. The design pays attention to the relationship between artifacts and the environment, but does not want to simply imitate the natural form or pretend to hide the building in a low-key. Instead, it gives the building a certain meaning with a generous attitude and uses artifacts to talk with nature, so that the two can live in peace. On the other hand, the design also responds to the natural conditions and climatic characteristics of the site, so as to get along with the environment to the greatest extent. For example, the treatment of double roofs reduces the impact of thermal radiation on the room and thus lessens energy consumption. Also, the use of fabricated materials such as steel structure and corroded steel plate can minimize the use of concrete, realize recycling to a certain extent, and decrease the impact on the desert environment. In fact, architectural form and environmental friendliness are not contradictory. The architect hopes to weave the two together to create a good-looking and healthy building.
▼从营地帐篷客房看接待中心,Service center viewed from the camp tent guest room
▼总平面图,Master plan
▼首层平面图,GF plan
▼2层平面图,2F plan
▼3层平面图,3F plan
▼剖面图,Section
▼墙体大样图,Wall detail
▼施工过程,Construction process














































