石家庄万科翡翠书院示范区,河北/建筑
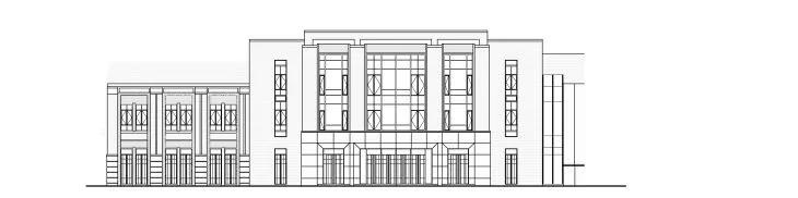
项目突破传统的建筑设计方式,整体以营造生活方式,使人找回遗失已久的归属感和亲切感为设计主题,围绕“从文化荒漠到高知社区,学院派美学生活的营造”展开设计。建筑融合了古典美学以及现代化风格,营造了多元文化和高知的氛围。芝加哥红砖建筑辅以现代建筑风格和美式学院派风格,整体给人以高尚端庄,温文尔雅之感。
The project breaks through the traditional architectural design method. The overall design theme is to create a way of life and recover the long lost sense of belonging and intimacy. The design focuses on "the construction of academic aesthetic life from cultural desert to Kochi community". The architecture integrates classical aesthetics and modern style, creating an atmosphere of multiculturalism and knowledge. Chicago's red brick architecture, supplemented by modern architectural style and American academic style, gives people a sense of nobility, modesty and elegance as a whole.



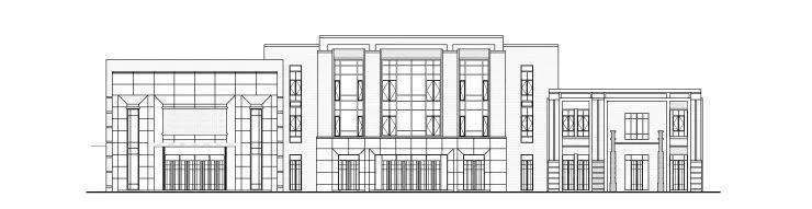
沿街界面延续高营大街的“遇见”街角风格,大体量的精神堡垒,增强了昭示性。
The "meet" corner style of Gaoying Street continues along the street interface, and the large-scale spiritual fortress enhances the visibility.

入口震撼呈现7米之宽的旋涡水景,层层下跌的水景集声、光、视觉享受于一体,拥有强烈仪式感的入门体验,并以绿化界面、围挡形象、增设道旗及岗哨等手段靓化沿街界面。
The entrance is shocked and presents a vortex waterscape with a width of 7 meters. The falling waterscape integrates sound, light and visual enjoyment. It has a strong ritual entry experience, and beautifies the street interface by means of greening interface, enclosure image, adding road flags and sentry posts.



示范区建筑立面以米黄色石材、红色面砖、深灰色金属铝板、玻璃为主要建筑材料,呈现出古而新的学院风格,其将怀古的浪漫情怀与现代人对生活的需求相结合,兼容华贵典雅与时尚现代。
The building facade of the demonstration area takes Beige stone, red face brick, dark gray metal aluminum plate and glass as the main building materials, showing an ancient and new college style. It combines the romantic feelings of nostalgia with the needs of modern people for life, and is compatible with luxury, elegance and fashion.


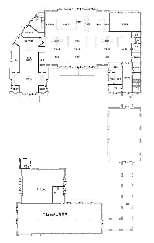
由入口接待引导区进入荣誉长廊,挺拔的室内高度,带有古典气质与细节的顶棚,呈现出了示范区整体古典庄重的氛围,而矗立视觉中心的是在西方历史中隐喻知识与智慧的雕塑艺术品。
Entering the honor corridor from the entrance reception and guidance area, the tall and straight indoor height and the ceiling with classical temperament and details present the overall classical and solemn atmosphere of the demonstration area, while the sculpture art metaphoring knowledge and wisdom in western history stands in the visual center.



随后步入艺术长廊,半弧形的拱廊采用了贴近自然的实木,层层迭至,延展开来。书架上摆放着各种类型的图书,坐在淡黄色的暖光之下,窗外点点绿意透过大面积的玻璃窗映射出来,优雅文艺的氛围油然而生。
Then enter the art gallery. The semi arc arcade adopts solid wood close to nature, which is stacked layer by layer and extended. There are various types of books on the bookshelf. Sitting under the warm light of light yellow, the little green outside the window is reflected through the large-area glass window, and the atmosphere of elegant literature and art arises spontaneously.

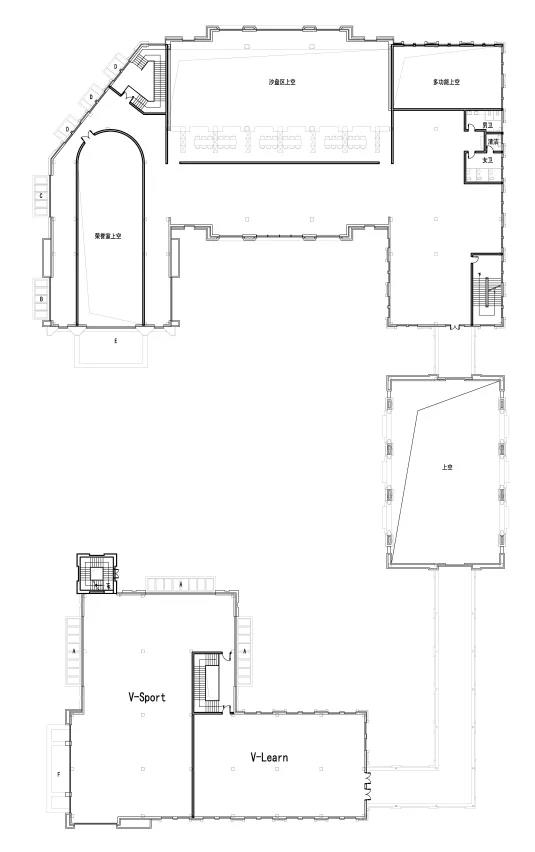
内庭三面空间的围合,形成了中心半私密半开放的空间,中心空间的下沉增加了整个内庭空间的流动性。
The enclosure of the three sides of the atrium forms a central semi private and semi open space. The sinking of the central space increases the fluidity of the whole atrium space.



北边的餐吧区和南边的景观空间互通有无,闲暇时的一杯咖啡,或站、或坐、或漫步、或交谈,入目的都是精致的花镜、融入科技感的装置和动态的雕塑艺术,整个空间达到了人与自然和谐互动的效果。
The dining bar area in the north and the landscape space in the South communicate with each other. A cup of coffee in leisure time, or standing, sitting, walking, or talking, focuses on exquisite flower glasses, devices with a sense of science and technology and dynamic sculpture art. The whole space achieves the effect of harmonious interaction between man and nature.

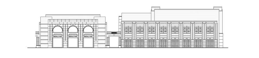
项目的东侧是通向翡翠书院样板房的大门,立面以红色面砖和米黄色石材为主,显得大气端庄,半圆形的拱和矩形的入口,打破了传统立面的单一和呆板,突出了建筑的层次感和空间感。傍晚时分,配上淡黄色的壁灯,整个空间显得温暖典雅、豪气内敛。
The east side of the project is the gate leading to the model room of the emerald Academy. The facade is mainly made of red brick and beige stone, which looks dignified. The semicircular arch and rectangular entrance break the singleness and rigidity of the traditional facade and highlight the sense of hierarchy and space of the building. In the evening, with light yellow wall lamps, the whole space looks warm, elegant, heroic and restrained.



穿过东侧的大门,展露在眼前的是一片绿色。美式庭院设计中喜欢把自然的元素拿来使用,让整个空间亲近自然,融入其中身心是轻快活跃的。美式庭院风格在随性中又追求规律之美,让所有元素配合整齐,达到视觉上的韵律之美,无形中营造她的自然美。
Through the gate on the east side, there is a piece of green in front of you. American courtyard design likes to use natural elements to make the whole space close to nature and integrate into it. The body and mind are light and active. The American courtyard style pursues the beauty of regularity in the casual, so that all elements cooperate neatly to achieve the beauty of visual rhythm, and virtually create her natural beauty.

常春藤公园以其轻松自然的景观环境与西面建筑的浓烈形成对比,开放的草坪上放置着的小舞台有着夸张而饱满的艺术造型,柔中带刚,曲线的形式给人以欢快的气息,给人们提供了良好的交流互动的平台。
Ivy Park contrasts with the strong Western architecture with its relaxed and natural landscape environment. The small stage placed on the open lawn has exaggerated and full artistic modeling, soft and rigid. The form of curve gives people a cheerful atmosphere and provides people with a good platform for communication and interaction.


项目南侧独立商业提前落地V-food/learn/sport,前置向客户呈现丰盛配套。商业和东侧的大门通过一条风雨连廊相连,连廊融汇古今建筑经典人本精髓,人们在这里,或遮风挡雨闲庭信步,或谈笑风生联通邻里情感,这是翡翠书院洞察美学人居奢适本质后的细节彰显。
The independent business on the south side of the project landed v-food / learn / sport in advance, presenting abundant supporting facilities to customers. The business and the east gate are connected through a rain and wind corridor, which integrates the humanistic essence of ancient and modern architectural classics. People can stroll here to protect themselves from the wind and rain, or talk and laugh to connect the neighborhood emotion. This is the details of the emerald Academy's insight into the essence of aesthetic living luxury.

一道风雨连廊,是自然与生活的连接线。通过情境廊架的铺设,将室外风光有效延展,置身廊架之下,休闲座椅之上,仿若沉浸在生态自然之中,花木在侧,鸟鸣啾啾,清新怡然。
A storm corridor is the connecting line between nature and life. Through the laying of the situational corridor frame, the outdoor scenery can be effectively extended. Under the corridor frame and on the leisure seat, it is like immersing in the ecological nature, with flowers and trees on the side, birds chirping, fresh and pleasant.

翡翠书院融合美式学院派和现代建筑风格,注重建筑细节,带有古典情怀,具备化繁为简的自然美。壮观大气的建筑围合布置,最充分体现了中国传统“天人合一”的思想,建筑立面在看似平常的处理中透露出一种直率的美感和低调的张扬,并在对绿色的原始向往中,创造了人、自然与建筑的和谐共生。
The classical academy, with its complex architectural style and modern style, pays attention to the integration of jade and classical architecture. The spectacular architectural enclosure layout most fully reflects the Chinese traditional thought of "unity of heaven and man". The architectural facade reveals a straightforward aesthetic feeling and low-key publicity in the seemingly ordinary treatment, and creates the harmonious coexistence of man, nature and architecture in the original longing for green.








项目名称丨石家庄万科翡翠书院示范区
项目位置丨石家庄 长安区 高营大街
业主单位丨石家庄万科文泽房地产开发有限公司
建筑设计丨上海日清建筑设计有限公司
设计总负责丨宋照方
设计团队丨易爱生 徐大伟 汪晔 李文科 王克文 张腾腾 崔娟 高伊娜
建筑施工图单位丨河北拓朴建筑设计有限公司
景观设计单位丨北京凯盛上景景观设计有限公司
室内设计单位丨上海意嘉丰室内设计有限公司
建筑面积丨6000m²
建筑摄影丨是然建筑摄影
Project Name: Shijiazhuang Vanke emerald academy demonstration area
Project location Gaoying street, Chang'an District, Shijiazhuang
The owner Shijiazhuang Vanke Wenze Real Estate Development Co., Ltd
Architectural Design Shanghai Riqing Architectural Design Co., Ltd
Chief designer song Zhaofang
Design team Yi Aisheng, Xu Dawei, Wang Ye, Li Wenke, Wang Kewen, Zhang tengtengteng, Cui Juan, Gao Yina
Construction drawing unit: Hebei topu Architectural Design Co., Ltd
Beijing Shengkai Landscape Design Co., Ltd
Interior design unit: Shanghai yijiafeng Interior Design Co., Ltd
Building area: 6000m ²
Architectural photography? Yes, architectural photography














