安吉尔庐度假酒店,浙江 / 建筑
尔庐·澄然居:享闲暇之福,宁静致远,心无芥蒂,一扫尘世缘系之忧。如静静竹林清净怡人,求澄然之境。澄然居起于明朝学士崔铣”六然训”之无事澄然,意在追求平常心,追求凡世尘嚣中的片刻宁静。
Enjoy leisure, be peaceful so that the mind reaches out, be care-free and be far from the dust. The building is named as “ChengRanJu”, which comes from a famous paper by a Scholar Cui Xian in the Ming Dynasty and which literally means “worry-free happiness”. This state of mind is like those ancient hermits who live in bamboo forests with tranquilities. To sum up, the name of the building implies seeking peace of mind by getting rid of all things flashy.
▼度假酒店外观,exterior view of the resort
尔庐·澄然居位于浙江省湖州市安吉县天荒坪镇港口村陶子坑一山路处,此处山川被竹林覆盖满目翠绿。尔庐是与好友茶闲之余的梦想。一亩山林,一处小庐,一杯茶或一壶酒,各自取乐,轻松暇意。寻觅半年,偶遇安吉项目地,一拍即合。
The building is located besides a hilly road in a quiet countryside somewhere in the Huzhou city, Zhejiang province, where the mountains are covered by trees, grass, shrubs, and bamboos. This building is the place where we meet our best friends. In our private parties, we enjoy tea or wine with our friends in this folk house, which appears rather small in the green mountain. We have been searching for such a place for half a year, when the idea of opening up a folk hotel came up, everyone supported it.
▼度假酒店位于竹林苍翠的山川之中,the resort is located among mountains covered by trees, grass, shrubs, and bamboos
▼度假酒店雪景,snow scene of the resort
整个建筑的起形都基于平面功能的完整性。在满足空间本身的诉求与环境的融合基础上再考虑外在,顺势而为。场地比较陡,正面被一个水系阻挡,因此在空间处理上我们把入口放置在建筑的后方。这样既保证了建筑的私密性又不破坏建筑与原有场地的层次关系。还利用原有的山泉水系在场地外构筑了一个自然型水系,层层叠叠,趣意盎然。入口由停车场边的竹林进入,通过几阶台阶及一条水系步道后进入一水系灰空间。近处水杉,远处竹海。
The design is based on unifying all functionalities of the building. After meeting the functional requirements and fitting into the evironment, we leave the rest of the freedom to the exterior. Due to the narrowing of the space of the waterfront, we put the main entry to the back of the building. In this way, we not only enhance the privacy of the building but also achieve the harmony between the building and the surroundings. We also create a water system from a mountain creek so that the outside consists of multiple levels of delightful scenaries. The path between the parking lot and the main entrance goes through a shade of bamboo trees. After a few steps and a small distance of wooden road, a guest will find her view widened to a space of water decorated by nearby redwood and grass.
▼场地鸟瞰,aerial view of the site
▼场地比较陡,正面被一个水系阻挡,the site is sleep and a waterfront is in front of the building
▼利用原有的山泉水系在场地外构筑一个自然型水系,形成层层叠叠的景观
a water system is created from a mountain creek making the outside consists of multiple levels of delightful scenery
外建筑由两个方盒子交叠而成。一层建筑完全覆盖在植被之下以洞穴形式展现,由三个灰空间与两个玻璃室内空间组成。二层建筑形态以轻奢简练为主。
The building looks like two crossed squares. With its entrance lower than the ground, the bottom floor of the building has an entrance masquerading as a fun cave and contains three gray segments and two glass sections. The exterior on the upper floor have a different style of mild luxury.
▼外建筑由两个方盒子交叠而成,the building looks like two crossed squares
▼一层建筑完全覆盖在植被之下以洞穴形式展现,the bottom floor of the building has an entrance masquerading as a fun cave
▼二层建筑形态以轻奢简练为主,the exterior on the upper floor have a different style of mild luxury
▼夜景,night scene
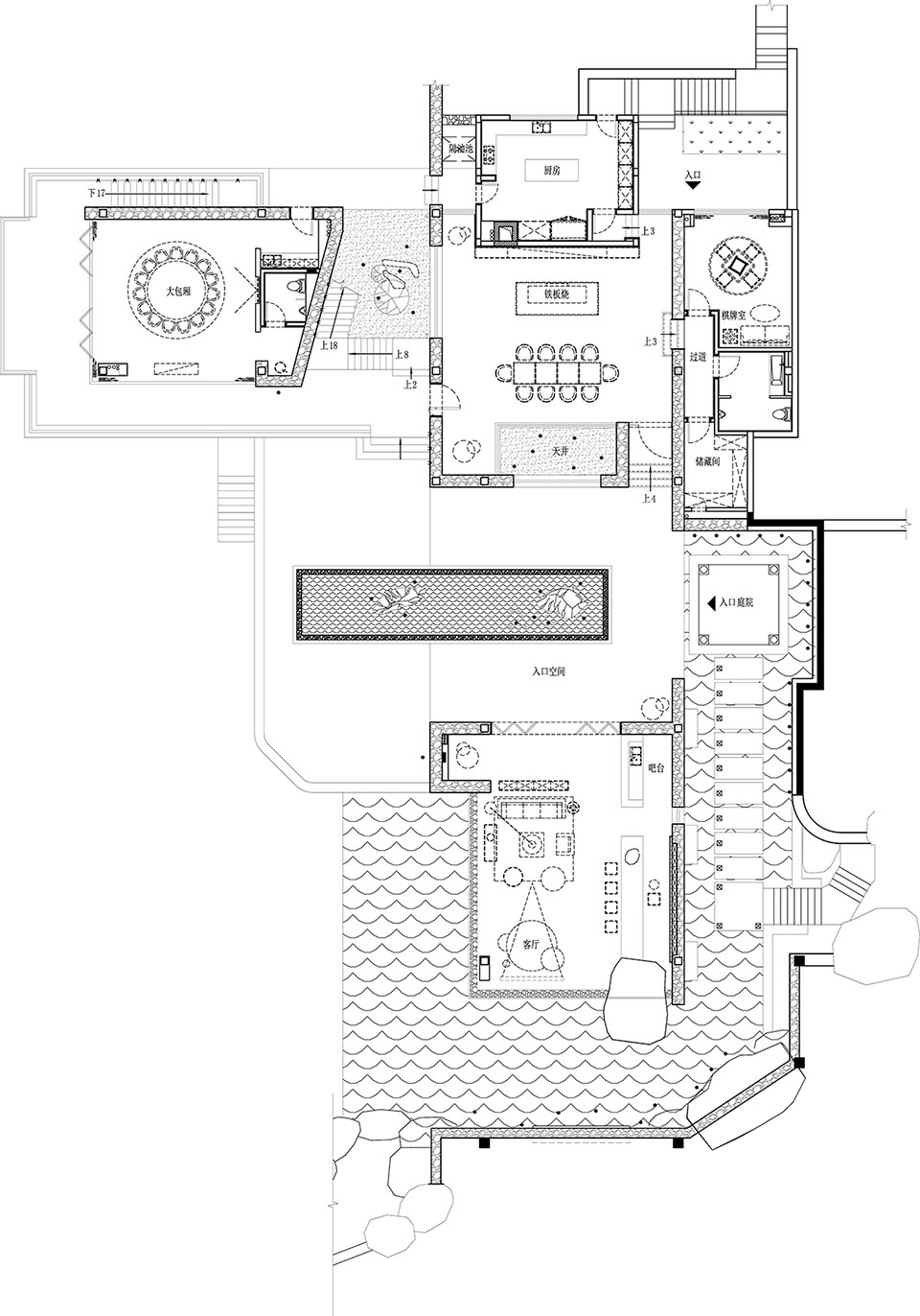
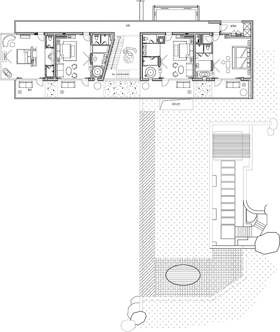
一层为公共空间,此处设置有客厅、中餐厅、铁板烧、西餐、棋牌室,配置厨房等后勤。二层主要是 “茶”“竹”“山”“涧”为主题的四间客房。并将局部地下室作为酒窖。建筑是由历经岁月洗礼的石头垒砌而成,触手可及的石墙给人一种岁月、坚硬、质朴的感觉,经过7道复杂的处理给石头带来了新的生命力。环境道用原有地势的层叠关系,取原有一处涌泉围绕建筑;植被上提取原有场地水杉作为铺垫,地面野草顺其自然生长,近处水杉野草,远处竹林环抱。
The first floor is public area, consisting of a meeting room, a Chinese restaurant, a western restaurant, a barbeque restaurant, a chess-and-poker room, and other supply facilities. The second floor hosts the main four guest rooms named as “tea”, “bamboo”, “mountain”, and “creek”. Some of the basements serve as wine storages. The main materials of the building are tempered stones, which had been around for a long time and underwent seven complex procedures to appear solid, candid, and sophisticated. The corridor of these four rooms reflects the varying elevations and encirlces a natural fountain in the middle.
▼入口空间,the entrance space
▼走廊及空间细节,corridor and space details
▼一层公共空间设置有客厅、中餐厅、铁板烧、西餐、棋牌室,配置厨房等后勤
the first floor is public area, consisting of a meeting room, a Chinese restaurant, a western restaurant, a barbeque restaurant, a chess-and-poker room, and other supply facilities
▼二层主要是 “茶”“竹”“山”“涧”为主题的四间客房
the second floor hosts the main four guest rooms named as “tea”, “bamboo”, “mountain”, and “creek”
▼客房空间,guestroom
▼洗手间,bathroom
不忘初心,方得始终。尔卢是三俩好友对于现世生活的一种叛逆,想着回到最初自己想要的状态,留住本心。
Stick to original motives and one gets her dreams fulfilled. This folk house is a symbol of our retreat from the mundane world back to our pristine state of minds.
▼从建筑中眺望山林景色,view from the resort to the mountain view
▼场地平面,site plan
▼一层平面图,first floor plan
▼二层平面图,second floor plan
▼剖面图,section
项目名称:安吉尔庐度假酒店
设计方:中国美术学院风景建筑设计研究总院
完成年份:2018年
主创:黄志勇,马列
设计团队:林燕华,丁田亮,梁章孟,黄晓峰,杨建,王杰杰,吴艳华,黄晓松,邵梦迪
项目地址:浙江省湖州市安吉县天荒坪镇港口村陶子坑自然村
建筑面积:1103平方米
摄影版权:奥观建筑视觉
合作方:浙江中汇华宸建筑设计有限公司
客户:尔庐酒店管理有限公司
品牌:1.乐翰照明 + 照明灯具 2.西顿照明 +照明灯具 3. 欧宝 + 洁具
Project name: Anji Erlu Resort
Design: The Design Institute of Landscape and Architecture China Academy of Art
Completion Year: 2018
Leader designer: Huang Zhiyong, Ma Lie
Design Team: Lin Yanhua, Ding Tianliang, Liang Zhangmeng, Huang Xiaofeng, Yang Jian, Wang Jiejie, Wu Yanhua, Huang Xiaosong,Shao Mengdi
Project location: TaoziKeng,TianHuangPing,Huzhou,Zhejiang
Gross Built Area: 1103 ㎡
Photo credits: Aoguan Performance of Architecture
Partners: Zhejiang Zhonghui Huachen Architecture design consulants Co., Ltd
Clients: Erlu Hotel Management Co., Ltd.
Brands / Products used in the projrct: Lohan lighting & Lighting lamps;Sidon lighting & Lighting lamps ;Obou & Sanitary ware











































