秋谷住宅,日本 / 建筑
项目基地位于横须贺市秋谷的一处小山坡上。地块背靠山丘,形状狭长,可以俯瞰前方的大海。建筑师第一次和业主一起参观基地时被这一美景震惊,站在基地尽端久久不愿离去。将这里的景色牢记在心中,建筑师考虑设计一栋植根于土地的住宅,与周边环境产生连接。
The site is located on the hillside of a small mountain in Akiya, Yokosuka City. The site, with its back to the mountain, is long and narrow, with a view overlooking the ocean in front of it. When we visited the site with the clients for the first time, we were struck by the image of him staring beyond the end of the site for a long period of time. Keeping in mind these impressions and the world we saw at the site, we thought about what it takes for a house to be rooted in the land and connected to the surrounding environment.
▼远景鸟瞰,distanced aerial view of the house
业主在悉尼生活了很长一段时间,大海一直是他生活方式的一部分。为了找到一个可以感受大海和自然的地方,他们最终来到了这片基地。与现在这个时代相应,他将家庭住宅搬到了郊区,并且继续在东京工作。带着工作生活和家庭时光的对比,城市与自然环境的平衡,这里会成为一个适于抚养孩子的场所,同时可以尽享大海风光。以上是业主的项目的要求,而这些在被建筑环绕的城市空间中是不可能实现的。
The client has lived in Sydney for a long time, and the ocean has always been part of his lifestyle. In search of a place where they could feel the sea and nature, they arrived to this plot of land. Appropriate to the times we live in, he moved his family residence to the suburbs while continuing to work in Tokyo. The contrast between work life and family time, the balance between the urban and natural environments, an environment suited to raising children, and a house with views towards the ocean – these were requests from the client, which could not be achieved in a city setting surrounded by neighbouring buildings.
▼近景鸟瞰,closer aerial view
基于最初的研究,设计提出了两个方向。首先是创造一栋可以将人们对周边自然环境的感知最大化的住宅。为此,项目不仅要提供朝向大海的视野,还要塑造海边城镇特有的宁静氛围,在室内外之间建立起连续性,并且尊重当地的植被。其次,设计需要让住宅显得尽可能宽敞,以巨大而开放的空间来适应业主优雅慷慨的人格与生活方式。设计延续一开始的研究,将上述两个主题融合在一起,探寻可以满足不同想法的空间品质。
We proposed two directions in the course of the initial study. The first was to create a house that maximizes the feeling of the surrounding natural environment. This not only included the views towards the sea, but also the tranquil ambiance specific to a seaside town, the continuity between interior and exterior, and respect for local vegetation. The second was to make the house seem as large and spacious as possible. This large and open space was to accommodate the elegant and generous personality and lifestyle of the client. These two main themes were gradually put together into a single study as we continued to search for a space quality that blended these ideas.
▼建筑与山体,building and the mountain
最终,建筑由朝向不同方向的盒子相互堆叠而成。这些盒子如同岩石,受到来自基地后部的山体的自然之力影响;盒子中部置入了一个轻盈明亮的体块,向前方的大海开放。
We arrived to a final shape where boxes pointing in various directions are stacked on top of each other. The boxes are like rocks receiving the force of nature from the mountains soaring behind them, and we inserted a light and bright box in the centre of this image. This central box represents the lightness and freshness that opens up to the sea in front.
▼住宅由堆叠的盒子组成,house composed of stacked boxes
▼巨大开放的上层空间
large and open space on the upper floor
▼沿街外观,不同朝向的体块,external view along the street, boxes with different directions
这些盒子创造了丰富的视野,并且可以在一天的不同时段获得来自不同方向的自然光照。设计在房间内部以及层叠的体量形成的缝隙中建造了一些光影空间,在内与外之间创造出或对比或连续的氛围。建筑师希望通过这种方式找出一些有趣的场所,并将其融入到住户的日常生活之中。
These boxes create a variety of views, and receive natural light from different directions at different times of the day. By creating dark and light spaces within the rooms and in the gaps created by the shifting and overlapping volumes, a contrast and or a continuity between inside and outside is created. In this way, we searched for a number of interesting places that could be created and mixed into the daily routine of the residents.
▼室外庭院,outdoor garden
▼与庭院相连的卧室,bedroom connected with the garden
▼庭院细部,details of the garden
▼入口,entrance
▼体块堆叠形成的丰富光影,light and shadows created by the stacked boxes
设计还设想了体量交接处可能发生的趣味场景。暗空间和亮空间,开放空间和封闭空间,高空间和低空间。为了将这些不同的品质混合在一起,设计师创造了一个通向屋顶的连续中庭,形成了一个巨大的垂直空间。它不仅满足了空间上的期待,还在多个方面体现了设计之上的想法,如对环境的控制,以及影响居民的生活习惯等。
We also imagined something interesting would happen at the intersection of these volumes: Dark places and bright places, open places and closed places, high places and low places. In order to mix these qualities, the intersecting part is made into a continuous atrium to the roof structure, creating a large vertical space. This is not only an expectation of spatiality, but also a device that we hope will go beyond our design intentions in various aspects, such as the idea of manipulating the idea of controlling the environment, and the impact on the living habits of the residents.
▼入口楼梯,staircase at the entrance
▼通高中庭,double-height atrium
▼从客厅望向大海,view to the ocean from the living room
▼百叶改变空间的私密程度,louvers changing the level of privacy of the space
▼开放厨房和餐厅,open kitchen and dining space
▼餐厅与室外露台相连,dining space connected to the outdoor terrace
▼从露台回望餐厅,view to the dining space from the terrace
▼厨房,kitchen
▼夹层空间,mezzanine
▼天窗,skylight
这些通过此手段混合在一起的场所可能以自己的方式形成交错的空间。私密空间和公共 空间也许会被分开,而整栋住宅也许会变成一个巨大的立体开放空间。设计希望建筑鼓励探索,与住户的生活方式产生关联,以地方化的整体外观成为其所处山丘景观的一部分。
The places that are mixed together in this way may become alternative spaces in their own right. Or the private and public spaces may become separated, or the whole house may become a large three-dimensional “one-room” space. We hope the architecture encouraging constant discovery within itself, connects to the lifestyle of the residents – making the building a vernacular entity that forms the landscape of the hill it sits on.
▼通向屋顶露台的楼梯,staircase towards the roof terrace
▼屋顶露台,roof terrace
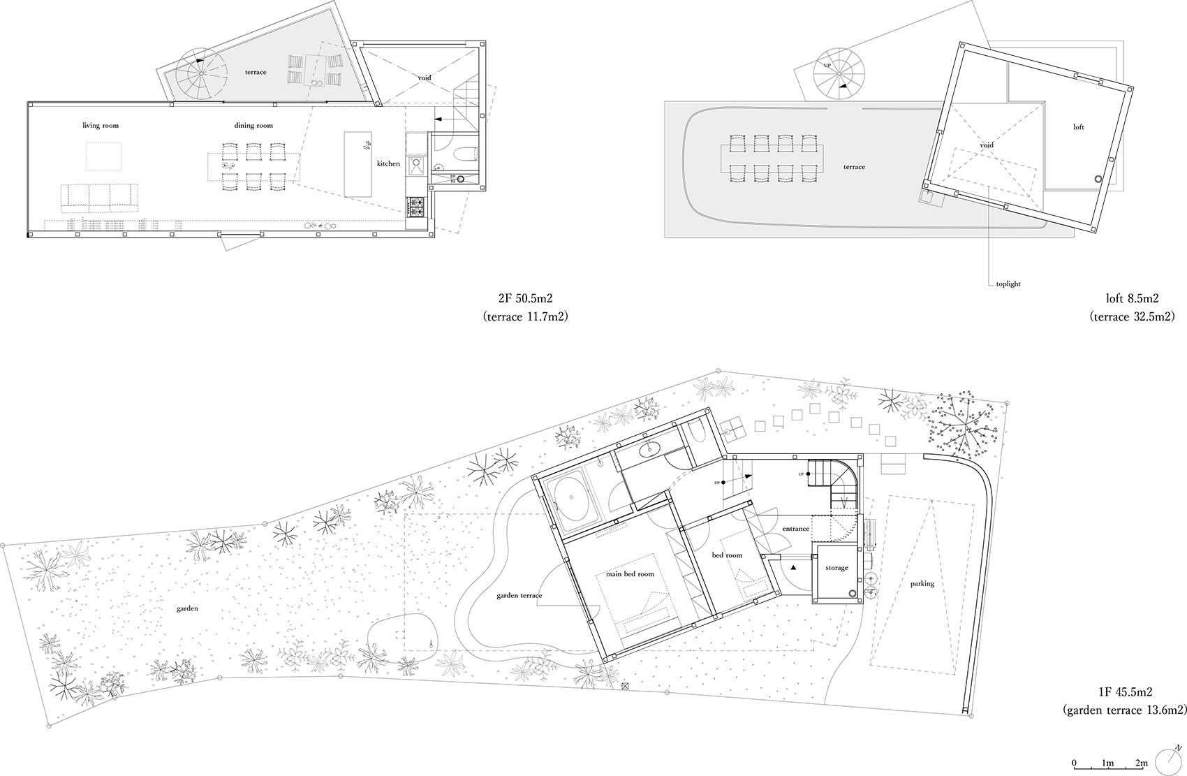
▼平面图,plans
▼剖面图,section
地点:日本横须贺
节目:豪斯
客户:私人
建筑师:小野寺昭,上原弘
结构:平川义之
承包商:Nanaho有限公司(有限公司)。
场地面积:200.14平方米
总面积:91.2平方米
身高:7.8米
结构类型:木质
设计周期:2020年3月至2021 1月
建设期:20212月至2021 10月
主要材料:地板-桦木地板/混凝土;墙面——石膏板+油漆;天花板-桦木地板/石膏板+油漆
图片来源:©三岛一郎
LOCATION: Yokosuka, Japan
PROGRAM: House
CLIENT: Private
ARCHITECT: Shogo Onodera, Hiroshi Uehara
STRUCTURE: Yoshiyuki Hiraiwa
CONTRACTOR: Nanaho Co., Ltd.
SITE AREA: 200.14 sqm
TOTAL AREA: 91.2 sqm
HEIGHT: 7.8m
STRUCTURE TYPE: Wood
DESIGN PERIOD: Mar. 2020 – Jan. 2021
CONSTRUCTION PERIOD: Feb. 2021 – Oct.2021
MAIN MATERIALS: Floor – Birch flooring / Concrete; Wall – Plasterboard + Paint; Ceiling – Birch flooring / Plasterboard + Paint
PHOTO CREDIT: ©Ichiro Mishima















































