謇里小镇展览馆,江苏/建筑
城镇历史文化处于不断演化之中,
历史建筑的保护与活化需要更俗立新,
结合新时代精神、新业态,
才能成为焕发活力、可持续的城镇空间。
As urban history and culture are constantly evolving, historic buildings’ preservation and revitalization need to integrate the spirit of the new era and new forms of business to build a vibrant and sustainable urban space.
▼项目概览,general view
南通市海门区的常乐镇,是清末民初著名的实业家、政治家、教育家张謇(1853-1926)的故里。因常乐老街改造的文旅项目中南·张謇故里小镇而得名“謇里小镇”。goa大象设计承担了整座小镇的规划和设计,其中謇里小镇展览馆是项目核心区常乐老街的门户所在。常乐老街成于乾隆年间,青石板路东西延伸300多米,小镇展览馆场地位于老街东端起始点,北侧毗邻的常乐镇供销社是一座有着百年历史的木构保护建筑。新展馆如何与小体量的历史保护建筑和谐共生?文旅功能如何融合当地文脉特征,在唤起文化归属感的同时也让謇公“更改旧俗,树立新风”的精神在今日延续?设计由此展开。
Located in Haimen District of Nantong City, Changle Town is the hometown of Zhang Jian (1853-1926), a critical industrialist, political leader, and educator in the late Qing Dynasty and the early Republic of China. The cultural tourism project developed by ZOINA Group, intended to renovate the old center of Changle under the spirit of Zhang Jian and renamed it as Jianli (the Hometown of Zhang Jian).GOA undertook the masterplan and design of the whole project, where Jianli Art Center acts as the gateway of the old main street, the core of the whole project. The main street of Old Changle is built during the reign of Emperor Qianlong. Paved with grey stone slabs, it extends more than 300 meters from east to west, and the art center sits at the east end. Adjoining the art center is the old Changle Town Supply and Marketing Cooperative on the north, a century-old wooden building under preservation. Regarding the site, the design starts by answering the question of how to place a new cultural tourism construction within the local context of a small-volume historical building to carry on Zhang Jian’s spirit of “eradicating the old and fostering the new” while arousing a sense of cultural belonging.
▼场地示意图,site diagram
“四汀宅沟”的启发:
延续传统民居策略,建筑与自然相互融合
Inspiration from the “House Surrounded by Moats”:
Inheriting the Traditional Dwelling Style and Blending Architecture with Nature
謇里小镇展览馆依水而建,借鉴长江入海口北岸崇启海地区(崇明、海门、启东)特色民居原型“四汀宅沟”:崇启海地区位于长江入海口,地势低洼、积沙成陆,劳动人民从宅地周边挖沟取土,筑高基地,形成环宅沟渠形态;宅沟常设于南侧,若以四周环绕,则被称为“四汀宅沟”。宅沟形态体现了传统农耕文化的智慧:水源可供日常饮用、洗涤、灌溉、消防,又是一道“护宅河”,宅前以小桥为径。时至今日,沙洲地貌已随着现代化建设而变迁,但环宅水系和小桥,仍普遍延续在当地的乡村民居的形态中,是当地风土的宝贵印记。
Jianli Art Center is built by the water, drawing on the dwelling prototype “house surrounded by moats,” peculiar to the Chongming-Qidong-Haimen region on the north bank of the estuary of the Yangtze River. Affected by the low-lying and sandy geographical condition, local people use to build high foundations and dig moats by houses to collect soil. Usually, the moat is located on the south of the house. When it is around the house, this dwelling form is called the “house surrounded by moats”. The dwelling form of the “house surrounded by moats” reflects the wisdom of the traditional farming culture. A moat provides water for drinking, washing, irrigation, and firefighting while serving as the house guard. A small bridge in front of the house becomes the entering path. Although the sandbank landscape has changed along rural modernization, the moats around houses and the small bridges are generally preserved in local homes as a precious mark of traditions.
▼崇启海地区“四汀宅沟”空间形态示意图,spatial layout of the “house surrounded by moats” in the Chongming-Qidong-Haimen region
建筑师延续了“宅沟”形态的策略,保留场地原始水系,在建筑南、东两侧设计新桥,建立场地与对岸空间的联系;在建筑周围以绿植和水景营造汀洲特色风貌,遵循木构老建筑的尺度,延续当地的人文风土和空间肌理。
As a continuation of the “moat” idea, the project retained the surrounding water system and placed new bridges on the south and east of the art center to connect the site with spaces across the water. By respecting the scale of the existing wooden architecture and designing a sandbank landscape composed by green plants and water features, the new art center continues the traditional spatial layout, creating a dialog between itself and the local culture.
展馆整体为钢结构,门厅和序厅内柱体消隐于幕墙的竖挺中,展厅内钢柱与墙体结合巧妙,内部空间最终以无柱的形式呈现。建筑师在核心功能空间的交汇处置入窄院,将阳光、园景充分引入内部。玻璃与墙体虚实相间,使建筑内外交融,光影纯净而变化丰富。
The art center features an steel structure system. Columns are concealed in curtain wall’s vertical bracings, forming an open indoor space. A narrow courtyard at the intersection of core functional spaces allows sunlight and garden views to the interior. The glass and walls are placed between each other along the edge, blending the boundary of the interior and introducing vibrant lights and shifting shadows.
▼展厅幕墙可开启,实现室内外展陈空间融合
the curtain wall of exhibition halls a + b can be opened to integrate the interior space and the outdoor landscape
轻盈的屋顶:
以新语言解构传统符号、缝合肌理
Lightweight Roof:
Deconstructing Traditional Symbols and Seaming Modules in a New Language
屋面最高点达15m,建筑师尝试以新的建筑语言回应历史,将传统的屋顶形式解构为四片单坡双曲屋面。低矮的檐口回应老街既存建筑尺度,屋顶向中心汇聚,为展览功能创造空间。化整为零的策略既巧妙地化解了大体量展馆与小体量历史保护建筑的矛盾,又形成了具有当代精神的标志性文化形象。
The decentralization and deconstruction strategy endows the architecture with a contemporary spirit, thus creates an iconic cultural image. One whole architecture form is decentralized into four individual venues to minimize the volume contrast between the new art center and the existing wooden construction. The canopy is deconstructed from a traditional roof into four hyperbolic pieces to interpret the tradition with a modern language, with low cornice echoing the scale of the existing construction. Each of it tilts towards the center, reaching a 15-meter-height at the peak to provide adequate vertical spaces for the indoor exhibition area.
屋面由中心向四周延伸,解构的屋顶分别对应不同的功能分区:门厅、序厅、展厅和服务,构成不对称的风车状微型聚落,在古典建筑对称性构图的基础上增加现代建筑非对称的均衡感与动态性特征。建筑北侧做双层屋檐处理,分别呼应北侧老供销社商店木构建筑的两层屋檐,与遗存的老建筑取得体量尺度上的协调。
The roof extends from the center to different directions. The deconstructed roof correspond to different functional zones: lobby, preface hall, exhibition hall, and service zone. An asymmetrical windmill-shaped cluster is formed, adding asymmetrical rhythm and dynamics of modern language within the symmetrical structure of traditional architecture. The art center’s double-layer eaves are consistent with those ones of the old wooden building of the Supply and Marketing Cooperative on the north side to harmonize the volume of the new and old.
开阔的坡顶从东侧向西侧逐步抬升,展厅内纯净白色天花则呈阶梯状,顺势层层递进,形成强烈的秩序感,结合序列性参观流线,引导人们参观展品。室内的展陈与空间形态完美配合,浑然一体,呈现艺术之美。
In the exhibition hall, an open slope rises gradually from east to west. The pure white ceiling steps in a progressive way, not only creating a strong sense of order but also guiding visitors according to the sequence of visits. The spatial form perfectly integrated with the exhibits, presenting the beauty of art.
屋面的选材上,建筑师重点关注环境可持续表现。结合海门当地的气候特征,选用了绿色环保的钛锌板。这种轻质的屋顶材料具有天然的抗腐蚀性,适应海门湿润的亚热带季风气候。石墨灰色搭接型曲面钛锌板金属屋面与老街区域内传统的灰瓦白墙形成呼应。随着时间的推移,钛锌板逐渐形成的致密钝化保护层,也会为建筑增添独特的魅力。屋面找形采用了双曲面数形逻辑,便于有效地控制施工。在屋面中,横向与纵向的梁皆为正圆弧,各自弧度、形状完全相同。四片双曲面屋顶采用三维建模设计,控制球面施工精确定位。
The roofing material is environmentally-friendly titanium-zinc panels. This lightweight roofing material is naturally corrosion-resistant and adapted to the humid subtropical monsoon climate of Haimen. The graphite grey metal with overlapped curved titanium-zinc panels echoes the traditional grey tiles and white walls in the old town buildings. As time goes by, the titanium-zinc panels will form a dense passivation protective layer, lending the building a unique charm. The canopy design applies a hyperboloid numerical logic for efficient construction control. The transverse and longitudinal beams are positive arcs following the same radian and shape. Four hyperbolic canopies use 3D modeling as a design method to control the precise positioning of the spherical construction.
▼参数化工具辅助研究及定位屋顶结构,parameterization tools assist in the study and positioning of the roof structure
为了塑造轻盈感,建筑师将屋面内部构造设计为“气枕”状空腔:整体造型中间厚边缘薄,500mm厚的钢梁结构隐藏在构造内部,檐口收薄。从各个角度看,屋檐都是一条纤细优雅的弧线。吊顶材料采用了天然木皮树脂板,利用参数化软件进行模块划分。曲线屋面强化了开放的空间边界,轻盈优美。为了适应多功能场景,让室内空间与室外场地景观更好结合,展厅15m宽折叠门可以完全打开。
The structure of the roof is designed as a cavity in the shape of an “air pillow” to create a sense of lightness. Each piece of canopy is thick in the middle and thin at the edges. The 500mm thick steel beam structure is hidden inside the structure, with thin cornice, forming a slender and graceful arc at the eave. The natural wood veneer resin ceiling panel is divided into modules in parameterization software. The curved ceiling panel extends from the interior to the exterior, blending the boundary of the open space. When the 15m wide folding door of the exhibition hall is fully opened, the indoor scenarios integrate with outdoor landscapes.
▼左:屋顶施工现场;右:屋顶构造详图,left: construction site; right: details of roof construction
城镇历史文化处于不断演化之中,在社会快速发展的当下,历史建筑的保护与活化,需要接轨新业态,创造新话题,激发新活力,才能真正再度成为有温度、可持续的城镇空间。謇里小镇老街更新及展览馆设计,是一次历史保护语境下的积极探索,建筑师运用当代材料和设计手法,延续謇公“更改旧俗,树立新风”的开创精神,为当地创造了一座新的文化交流中心,为南通海门的城镇发展注入了新的活力。
As urban history and culture are constantly evolving, historic buildings’ preservation and revitalization need to integrate new forms of business to create new topics and inspire new vitality, and to build a vibrant and sustainable urban space under the rapid development of society. It is an active exploration in the context of historical preservation to revitalize the old street and design the art center of Jianli. Adopting contemporary materials and design strategies, the project carrys on Zhang Jian’s pioneering spirit of “eradicating the old and fostering the new”, allows a new cultural exchange center the local, and improves the urban development of Haimen in Nantong.
▼夜景,night view
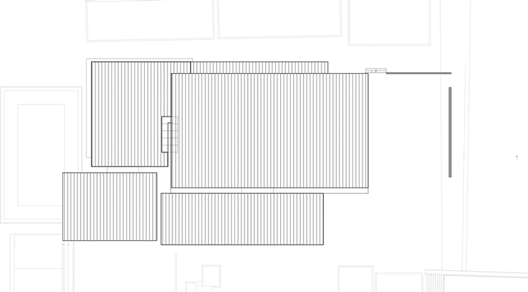
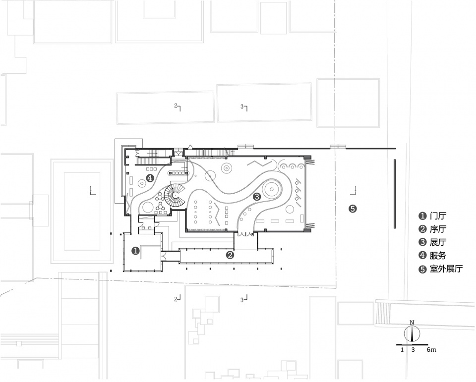
▼一层平面图,ground floor plan
▼二层平面图,first floor plan
▼西立面图,west elevation
▼南立面图,south elevation
▼剖面图,section
项目名称:謇里小镇展览馆
设计单位:goa大象设计
所在地:江苏省南通市
设计/竣工:2018-2021
建筑面积:约952㎡
图片版权:此间建筑摄影、goa大象设计
Project Name: Z-Town
Designed by: GOA
Location: Nantong, Jiangsu Province
Design/Completion: 2018-2021
Floor Area: about 952m2
Copyright: IN BETWEEN, GOA









































