冯小刚电影公社,海口/建筑
电影公社位于海南省海口市龙华区,始建于2011年。是由观澜湖集团携手华谊兄弟公司、著名导演冯小刚,巨资打造的中国独具特色的电影主题旅游胜地,集旅游、商业、电影于一体。
Located in Longhua District, Haikou City, Hainan Province, the Film Commune was founded in 2011. Mission Hills Group, together with Huayi Brothers and the famous director Feng Xiaogang, is a unique film theme tourist resort in China, which integrates tourism, business and film.
▼电影公社,The film commune
这是全球首个以导演个人命名的电影主题旅游项目。电影公社包括三条主街,分别是1942风情街、南阳风情街、老北京风情街;三个主题区,分别是冯氏贺岁电影景观区、教堂广场区和全球最大的8000㎡摄影棚及配套服务区,还有一个影人星光大道,有80位明星的手印和签名,包括好莱坞巨星尼可基德曼、摩根弗里曼等。
It is the world's first film-themed tourism project named after a director.The film commune includes three main streets, which are 1942 Street style, Nanyang Street style, old Beijing street style; The three theme areas are the Feng's New Year Film landscape area, the Church Square area and the world's largest 8000 square meters of studio and supporting service area. There is also a movie star Avenue, with 80 stars' handprints and signatures, including Hollywood superstar Nicole Kidman, Morgan Freeman and so on.
▼电影公社,The film commune
电影公社项目二(社会主义老北京风情街D-01-1、 D-01-2)一期由华诚博远工程技术集团有限公司所设计。整个电影公社项目二(社会主义老北京风情街D-01-1、D-01-2)一期被划分了三个红线地块(B-01、D-01、J-01),共设计了A、B、C、D、E五个区;此次报建的为D-01-1地块一期,该一期工程包括了南边胡同、城隍庙、15号院、娱乐中心、北边胡同五个区域。
The Film Commune Project II (D-01-1, D-01-2, Old Style Street of Socialist Beijing) Phase I was designed by Huacheng Boyuan Engineering Technology Group Co. LTD. The whole film commune project II (D-01-1 and D-01-2 of the old socialist Beijing Style Street) is divided into three red lines (B-01, D-01 and J-01), and A, B, C, D and E zones are designed. The project applied for construction this time is the first phase of D-01-1 lot, which includes five areas: the southern hutong, the Town God Temple, the 15th Yard, the entertainment center, and the northern Hutong.
▼鸟瞰图-日景,Aerial view - Day view

▼鸟瞰图-夜景,Aerial view - Night view

本项目在设计过程中坚持“以人为本、保护环境、节约土地、降低成本”的原则,努力打造成功能合理、环境优美、国内领先、国际一流的影视制作园区。本项目是集旅游观光和影视拍摄为一体的多功能项目,在总体布局上,既要体现旅游观光的趣味性,又要尽可能准确的反应老北京风情街的原貌,以满足旅游观光和影视拍摄的多功能需求。
北边胡同墙面做了时代人物的设计,搏缝板为灰色方砖贴挂,青砖造型柱,颜色稳重大方。
This project adheres to the principle of "people-oriented, environmental protection, land saving and cost reduction" in the design process, and strives to build a film and television production park with reasonable functions, beautiful environment, leading in China and first-class in the world. This PROJECT is a multi-functional project integrating tourism and film shooting. In the overall layout, it should not only reflect the fun of tourism, but also reflect the original appearance of old Beijing street as accurately as possible, so as to meet the multi-functional needs of tourism and film shooting.
The wall of the north alley is designed for the characters of The Times. The seam board is hung with gray square bricks, and the column is made of blue bricks. The color is stable and generous.
▼北边胡同,The north alley


老北京景区以新中国成立之后50-70年代城市风貌为规划的主要风格元素。让人回味悠长的老北京胡同,再现上世纪50年代-70年代老北京胡同的市井生活场景,身着那个年代服饰的演员来回穿行,充满着浓郁的生活气息,让游客体验了一把瞬间穿越的“年代感”。
15号院内院室外楼梯为绿色构件。
The Old Beijing Scenic area takes the urban landscape of the 1950s and 1970s after the founding of New China as the main style elements in the planning. People can recall the long old Beijing hutongs and reproduce the market life scene of the old Beijing hutongs from the 1950s to the 1970s. Actors dressed in costumes of that period walk back and forth, full of rich life atmosphere, and let tourists experience the "sense of time" of passing through in an instant.
The stairs outside the courtyard of No. 15 are green components.
▼15号院,15 yuan

在交通设计上,由于本项目主要功能是旅游观光的性质,考虑的是人车分流的交通组织方式,车行道主要设置于用地的东侧和北侧,除了满足消防车的通行外,也可以方便摄影道具的运输。场地内部由于消防的要求,设置了隐形消防车道,消防车道设置在本地块南部,人流是通过东侧、北侧的大门进入进行游览,避免与车流的交叉。
南边胡同外门窗采用红色、绿色、木色的颜色丰富。
In terms of traffic design, since the main function of this project is tourism, it considers the traffic organization mode of separating people and vehicles. The traffic ways are mainly set on the east and north sides of the land, which can not only meet the passage of fire trucks, but also facilitate the transportation of photography props. Due to the requirements of fire protection, an invisible fire lane is set up inside the site. The fire lane is set in the south of the local block, and the people enter through the gates on the east and north sides for sightseeing, avoiding crossing with the traffic flow.
The Windows and doors of the southern hutong are rich in red, green and wood colors.
▼南边胡同,South lane

城隍庙采用青砖红色墙面,灰色瓦屋面。
Chenghuang Temple with red brick wall, gray tile roof.
▼城隍庙,Chenghuang temple

本项目由于总体布局上的特殊性,覆盖率较大,在场地内采取了“见缝插针”的绿化布置方式,在有限的空地内尽可能多的布置绿化,使整个项目设计在满足功能需求的同时,也有足够的绿化来衬托优越的环境。
娱乐中心的室外栏杆为绿色。
Due to the particularity of the overall layout and large coverage rate, this project adopts the greening arrangement of "sewing needles" in the site. Greening is arranged as much as possible in the limited open space, so that the whole project design not only meets the functional requirements, but also has enough greening to set off the superior environment.
The outdoor railing of the recreation center is green.
▼娱乐中心,The recreation center

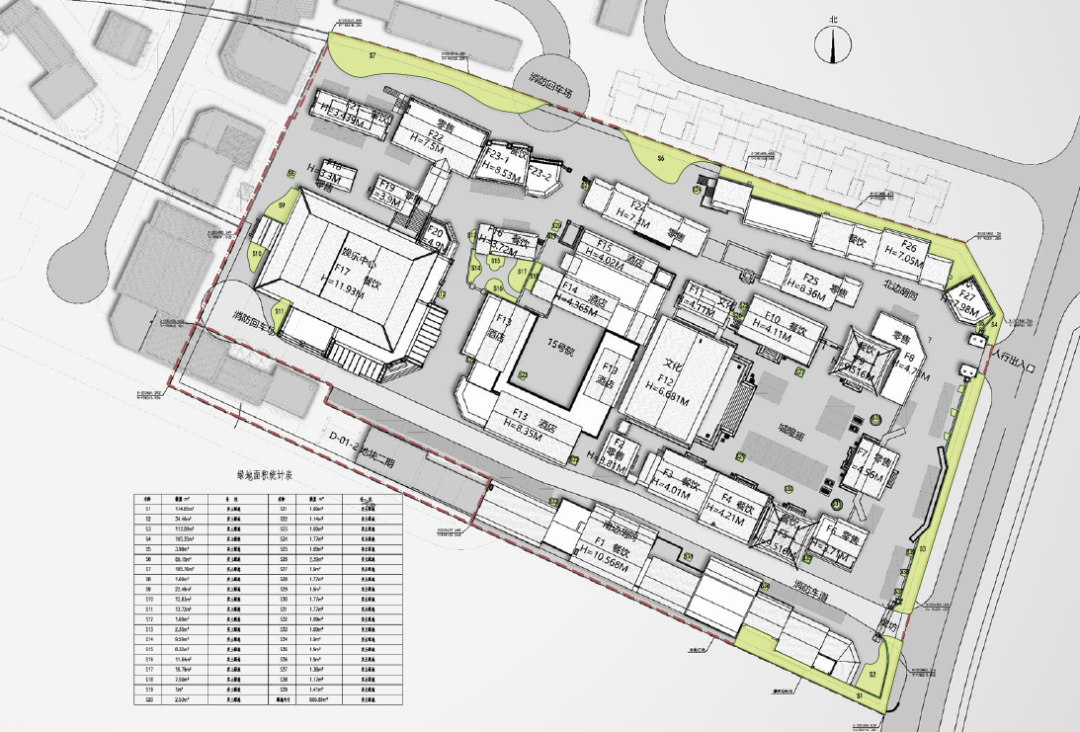
▼总平面图,The total floor plan

▼日照分析图,Sunshine analysis chart

▼交通分析图,Traffic analysis chart

▼绿地总平面图,Master plan of green space

▼业态布置图,Layout of the business format

项目名称:电影公社项目二(社会主义老北京风情街D-01-1、 D-01-2)一期
建设单位:海南观澜湖华谊冯小刚文化旅游实业有限公司
勘察单位:海南水文地质工程地质勘察院
设计单位:华诚博远工程技术集团有限公司
建筑主要设计人员:周文(一级注册建筑师)、王艳(工程师)
结构主要设计人员:周伟(一级注册结构师)、于日峰(工程师)
给排水主要设计人员:王云(注册设备师)
暖通主要设计人员:方政武(注册设备师)
电气主要设计人员:葛阳(注册电气工程师)
Project Name: Phase I of Film Commune Project II (D-01-1, D-01-2, Style Street of Socialist Old Beijing)
Construction unit: Hainan Mission Hills Huayi Feng Xiaogang Cultural Tourism Industry Co., LTD
Investigation unit: Hainan Hydrogeology Engineering Geology Investigation Institute
Design unit: Huacheng Boyuan Engineering Technology Group Co., LTD
Main architects: Zhou Wen (Grade A registered architect), Wang Yan (engineer)
Main structural designers: Zhou Wei (Level 1 registered structural engineer), Yu Rifeng (engineer)
Water supply and drainage Main designer: Wang Yun (registered equipment engineer)
Hvac Main designer: Fang Zhengwu (registered equipment engineer)
Main Electrical designer: Ge Yang (registered Electrical engineer)














