空间的赋格:上海浦东民生码头E15-3街区城市再生,上海 / 规划
由EID Arch / 姜平工作室设计的上海浦东民生码头E15-3街区城市更新项目近期峻工,项目基地毗邻浦东民生码头,是著名工业遗址与历史文保建筑围合的街区, 北起滨江路,南邻规划中幼儿园,西侧毗邻公共绿地,东临美国建筑师罗伯特·斯特恩所设计的新古典主义的翡翠滨江二期住宅区。
The recent completion of the Shanghai Pudong Minsheng Wharf E15-3 Block Urban Renewal Project designed by the EID Arch/Jiangping Studio is adjacent to the Minsheng Wharf in Pudong. The project base is a block surrounded by famous industrial sites and historical and cultural preservation buildings. It starts from Binjiang Road in the north, adjoins the planned kindergarten in the south, adjoins the public green space in the west, and adjoins the Neoclassical Jade Binjiang Phase II residential area designed by American architect Robert Stern in the east.
E15-3街区城市更新项目历时六年, 设计介入的范围包括:新建L型地块中华企业办公及配套, 基地西侧地块老建筑的办公空间改造,历史文保建筑的风貌协调与基地内部街区营造, 以及西侧临时建筑文化艺术空间的植入。
建筑师从基地环境切入,结合有机更新的理念,通过对周边城市关系的梳理,缝合新旧城市肌理,重构街区空间关系,为浦东民生码头滨江片区的城市空间注入活力。
The E15-3 Block Urban Renewal Project lasts for six years. The scope of design intervention includes: the office and supporting facilities of Chinese enterprises in the new L-shaped plot, the reconstruction of office space of the old buildings in the plot on the west side of the base, the coordination of the style and features of historical and cultural buildings and the construction of the inner blocks of the base, and the implantation of the temporary cultural and artistic space on the west side.
The architect starts from the base environment, combines the concept of organic renewal, combs the relationship between surrounding cities, stitches up the texture of new and old cities, and reconstructs the spatial relationship of blocks, so as to inject vitality into the urban space of the riverside area of Pudong Minsheng Wharf.
周边建筑与环境难以忽略的强势与矛盾性决定了E15-3项目基地的特殊性,场地周边不同时期、不同风格的建成要素,为基地限定出独特场域边界。在基地西北侧,是民生码头中极具震撼力的工业遗产——八万吨筒仓改造项目,作为2017年上海城市空间艺术季等重要文化活动的主要展览场地,其巨型混凝土筒仓带有独特的工业历史印记,野性的色彩与形态成为江畔强烈的视觉要素。L型地块退让出的空间南侧是三幢低矮的历史保留建筑,隶属于民生码头,是早年由英商公和洋行设计的德式花园别墅。
由于其周边环境的复杂性和历史文脉的特殊性,项目基地是在杂乱无序的城市语境中被“挤压”出的一个城市空隙。浦东民生码头E15-3街区的建筑设计力图在城市更新改造中创造一组属于城市的建筑群落,它们尺度与类型多元,新旧建筑起伏交融,形成相互呼应的空间复调。
The strength and contradiction of the surrounding buildings and environment that cannot be ignored determine the particularity of the E15-3 project base. The building elements in different periods and styles around the site define a unique boundary for the site. On the northwest side of the base, the 80000 ton silo transformation project, which is a very impressive industrial heritage in Minsheng Wharf, is the main exhibition site for important cultural activities such as the Shanghai Urban Space Art Season in 2017. Its huge concrete silos have unique industrial historical marks, and the wild colors and shapes become strong visual elements along the river. To the south of the space conceded by the L-shaped plot are three low historical buildings, which are subordinate to Minsheng Wharf. They are German style garden villas designed by British businessmen and foreign firms in the early years.
Due to the complexity of its surrounding environment and the particularity of its historical context, the project base is an urban gap "squeezed" out of the chaotic urban context. The architectural design of the E15-3 block of the Minsheng Wharf in Pudong strives to create a group of urban architectural communities in the process of urban renewal and transformation. They have multiple scales and types, and the new and old buildings are mixed up to form a spatial polyphony that echoes each other.
建筑师面临最大的挑战与机遇,是如何在不同年代、不同类型与尺度的建筑群的缝隙间置入新的功能,以重塑街区的城市空间关系, 构建舒适人性、绿色健康的公共场所及综合服务环境。同时可以逻辑自洽地融入城市语境,以更新的形式激活当地社区,使其焕发新的城市活力。
The design ambition does not lie in creating an eye-catching spectacle building, on the contrary, it is intended to address the urban conditions in a restrained manner, providing a monolithic, minimal building responding and correlating to the surroundings.
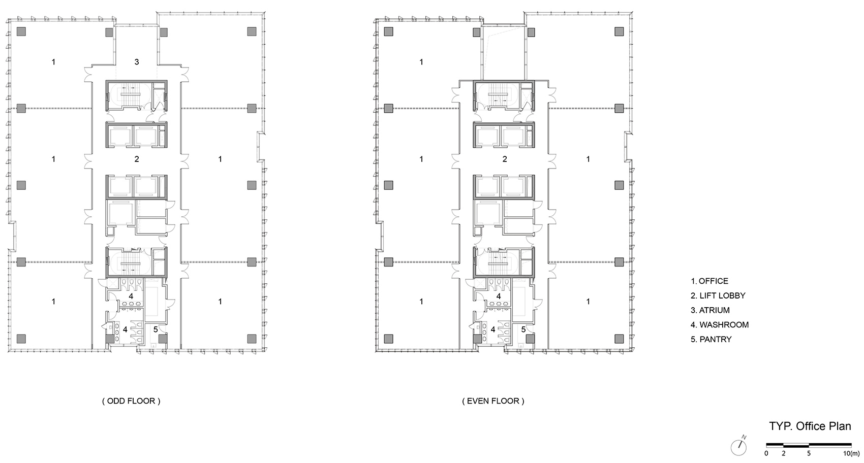
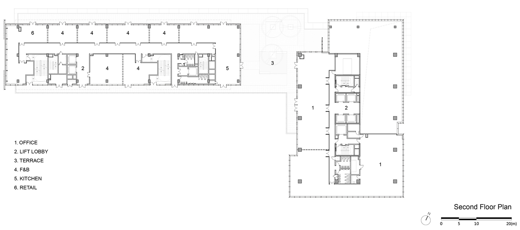
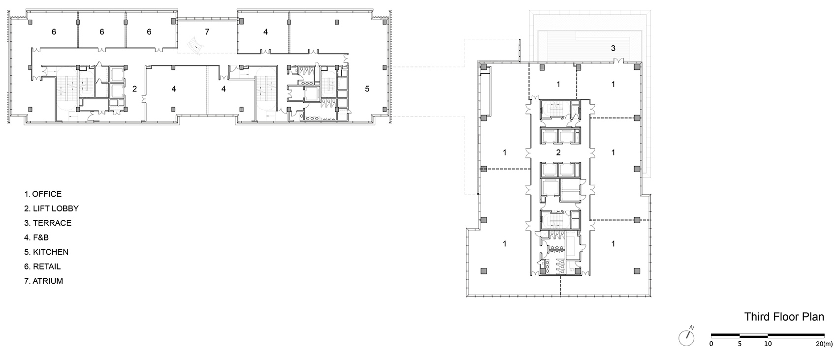
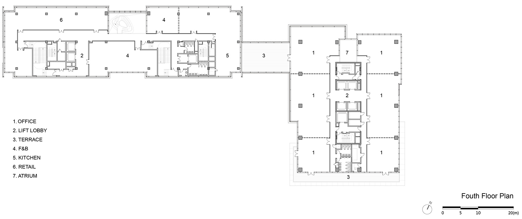
新建的中华企业办公项目同时面向城市与内部街区,是E15-3街区城市更新项目的设计核心。项目占地面积约9,640平方米,建筑面积约四万平方米,设计以建造陆家嘴黄浦江沿岸独特的办公工作场所及配套服务为目标。
在整体设计策略上,塔楼拉高整体高度、减小标准层的面积,偏心设置核心筒,以争取最优化的景观条件,于建筑高区可以俯瞰整个黄浦江景;还有部分办公空间以顺极而流的形态,被延续折叠成亲切宜人低层的体量,以此呼应南侧低矮的文保建筑群,楔入场地中,作为内部界面与周边建筑共同打造新的街区,塑造城市空间新旧肌理融合交织的新格局。
The newly-built office project of Chinese enterprises faces both the city and the inner block, which is the design core of the E15-3 block urban renewal project. The project covers an area of about 9640 square meters, with a building area of about 40000 square meters. It is designed to build a unique office and working place and supporting services along the Huangpu River in Lujiazui.
As for the overall design strategy, the tower will raise the overall height, reduce the area of the standard floor, and set the core tube eccentrically to strive for the optimal landscape conditions. The whole Huangpu River scenery can be seen from the high building area; Part of the office space, in the form of flowing along the pole, has been continued to be folded into a friendly and pleasant low rise volume, which echoes the low cultural heritage buildings on the south side, wedges into the site, serves as the internal interface to jointly create a new block with the surrounding buildings, and shapes a new pattern of urban space where the new and old textures blend.
E15-3街区城市更新项目的设计初衷并不在于突出展现一个吸睛的建筑奇观,而恰恰相反,它更想以内敛沉静的方式平实叙事,讲述一个城市时空加叠与新旧融合的故事,谱写新的城市空间赋格。在设计手法上,“消解”与“对位”成为关键词。即便在高层办公空间,一个完整敦实的矩形体块也会让人在视觉上感到压迫。设计团队采用“化整为零”的手法,将整体化解为四个竖向起伏相契的玻璃盒子,既保证了功能空间的统一,又在立面韵律上与周边筒仓工业遗址产生时空的对话,有关新与旧、有关历史与现代、有关保护与传承。
The original intention of the E15-3 Block Urban Renewal Project is not to highlight an eye-catching architectural spectacle, but on the contrary, it wants to tell a story about the superposition of urban time and space and the integration of the old and the new, and compose a new urban space. In terms of design techniques, "digestion" and "counterpoint" become key words. Even in the high-rise office space, a complete and solid rectangular block can make people feel oppressive visually. The design team adopts the approach of "breaking the whole into parts" to dissolve the whole into four glass boxes with vertical ups and downs, which not only ensures the unity of functional space, but also has a time-space dialogue with the surrounding silo industrial sites in terms of facade rhythm, about the new and old, about history and modern, about protection and inheritance.
塔楼和裙楼之间以较纤细的横向通廊相连接,除了满足建筑本体内交通的便捷性,在更大图景上对西北侧体量韵律感极强的筒仓项目起到了“对话”与“破题”的作用——“空间赋格”设计逻辑的核心得以体现:跃动起伏的变化中保持格调一致,简约体量的设计中以细节呼应。建筑师对E15-3街区城市更新项目的思考不仅仅停留在项目本体的设计,更关照到整体周边环境,在意“新生”的空间对城市生活的意义。
The tower and podium are connected by a thin horizontal corridor. In addition to meeting the convenience of traffic in the building body, they play a role of "dialogue" and "problem solving" for the silo project with strong volume rhythm in the northwest on a larger picture. The core idea of the "space fugue" design logic is reflected: keep the style consistent in the changes of the ups and downs, and echo the details in the design of the simple volume. The architects' thinking on the urban renewal project of E15-3 block is not only about the design of the project itself, but also about the overall surrounding environment and the significance of the "new" space for urban life.
建筑中的对位关系和传统园林中框景的手法也被巧妙应用在项目中。塔楼四个竖向的空间体量与筒仓的体态相呼应、东高西低的高度变化与周边建筑的体量相呼应、建筑立面横纵栅格清晰的几何划分与工业旧址氤氲的气氛相呼应。
塔楼滨江一侧设有多个竖向叠加的共享中庭,户外在不同高度设有一系列景观露台,为办公用户提供室内外交流互动的场所,形成多维的景观系统。在新建筑的罅隙间,不经意的一瞥就可以看见如取景框般精准对周边景观的抓取,两者互为风景。
The counterpoint relationship in architecture and the method of framed landscape in traditional gardens are also skillfully applied in the project. The four vertical space volumes of the tower correspond to the shape of the silo, the height change from high in the east to low in the west corresponds to the volume of the surrounding buildings, and the clear geometric division of the horizontal and vertical grids of the building facade corresponds to the dense atmosphere of the old industrial site.
On the riverside side of the tower, there are several shared atriums with vertical superposition, and a series of landscape terraces are set at different heights outdoors to provide office users with a place for indoor and outdoor communication and interaction, forming a multi-dimensional landscape system. Between the cracks of the new building, you can see the precise capture of the surrounding landscape like a viewfinder at a casual glance. The two are landscapes of each other.
与传统办公建筑不同,E15-3街区城市更新项目在城市界面选择摩洛哥灰的石灰岩,在喑哑低调的灰色基调与筒仓的混凝土材质相应,塔楼上的竖向及横向线条细节材质呈金属铜及原木等暖色调,在空间色彩性格上很好地与周边历史建筑氛围氤氲相融。同时在横向通廊及面向筒仓的公共平台的立面格栅等设计细部采用工业建筑元素,既具有精细的肌理和自然的质感,同时延续了民生码头场所精神,赋予建筑更多可读性。
幕墙之上的实体部分根据周边建筑肌理和形态,优化四个竖向体量各立面的设计模数,竖向节奏变换形成不同韵律,在比例上呼应周边形态风格各异的建筑群。根据朝向,建筑师进一步调整幕墙杆件尺寸,以平衡室内光线亮度,柔和采光。
同时,面向住宅的部分采用7%反射率的节能LOW-E玻璃,防止光污染,降低对环境的影响。当四周建筑映射在塔楼的抽象体量上,疏密有致的分割构件随时间行进成为一组光影变奏曲,时间、城市与建筑建立起更感性的联系。
Different from traditional office buildings, the urban renewal project of E15-3 block selects Moroccan gray limestone at the urban interface, and the dumb and low-key gray tone corresponds to the concrete material of the silo. The vertical and horizontal line details on the tower are made of warm colors such as metal copper and logs, which is well integrated with the surrounding historical building atmosphere in terms of space color character. At the same time, industrial building elements are used in the design details of the horizontal corridor and the facade grid of the public platform facing the silo, which not only has fine texture and natural texture, but also continues the spirit of the people's livelihood wharf, giving the building more readability.
The physical part above the curtain wall optimizes the design modulus of each facade of the four vertical volumes according to the texture and shape of the surrounding buildings. The vertical rhythm changes to form different rhythms, echoing the buildings with different shapes and styles in proportion. According to the orientation, the architect further adjusted the size of curtain wall members to balance the indoor light brightness and soft lighting.
At the same time, energy-saving LOW-E glass with 7% reflectivity is used for the residential part to prevent light pollution and reduce the impact on the environment. When the surrounding buildings are mapped on the abstract volume of the tower, the densely divided components become a set of light and shadow variations over time, and time, city and architecture establish a more emotional connection.
上海浦东民生码头E15-3街区城市更新项目在完成建筑本身功能需求的同时,不但有力回应了城市抛出的问题,完善肌理脉络与结构,并且作为植入的新空间也激活了旧有环境。它们以织补的手法完善城市空间结构、以空间赋格的曲式逻辑对位城市周边环境、以“针灸式”的细腻姿态温和介入整体场域中,在滨江沿岸串联出全新的办公商务空间、旧改建筑和临时文化展陈空间,为城市生活带来更深层次的价值提升。
Shanghai Pudong Minsheng Wharf E15-3 Block Urban Renewal Project, while fulfilling the functional requirements of the building itself, not only effectively responds to the problems thrown out by the city, improves the texture context and structure, but also activates the old environment as a new space implanted. They improve the urban spatial structure by means of mending, align the surrounding environment of the city with the musical logic of space fugue, and gently intervene in the overall field with the delicate posture of "acupuncture", connecting new office and business spaces, old buildings and temporary cultural exhibition spaces along the riverside, bringing deeper value enhancement to urban life.
项目地点:中国上海浦东新区
业主:中华企业/上海地产
设计时间:2015-2021年
街区面积:15,569平方米
办公地块面积:9,640平方米
办公建筑面积:38,240平方米
项目类型:城市更新 | 办公及配套
建筑师:EID Arch / 姜平工作室
主持建筑师:姜平, AIA
技术总监:陆生云
幕墙顾问:Inhabit英海特工程咨询(北京)有限公司上海分公司
景观顾问:瀚翔景观国际有限公司/上海兰境景观设计咨询有限公司
室内顾问:DU Studio 向和空间
标识顾问:Selbert Perkins Design博津思设计
灯光顾问:LEOX黎欧思照明(上海)有限公司
BIM顾问:中国建筑上海设计研究院有限公司
历史建筑改造:华建集团历史建筑保护设计院
施工图设计院:上海天华建筑设计有限公司
Location: Shanghai, China
Client: China Enterprise Co., Ltd. / Shanghai Real Estate (Group) Co. Ltd.
Urban Renewal Scope:15,569 sq m
Site Area: 9,640 sq m
Gross Built Area: 38,240sq m
Completion Year: 2021
Type: Urban Renewal, Office, Retail
Architect: Atelier Ping Jiang / EID Arch
Design Principal: Ping Jiang, AIA
Technical Director: Sean Lu
Curtain Wall Consultant:Inhabit Group
Landscape Consultant: H & A Landscape / LAN·G.
Interior Consultant: DU Studio
Logo Consultant:Selbert Perkins Design
Lighting Consultant:LEOX Design Partnership
BIM Consultant:China Shanghai Architectural Design & Research Institute Co.,Ltd
Historic Building Preservation:Arcplus Historic Building Preservation Design Institute
LDI: Shanghai TIANHUA Architecture Planning & Engineering Ltd.






























































