PROGEN 理型公园,宁波/室内
沿街的属性也使得它与街区有了紧密联系的契机。大犬试图建立“公共性”的空间语境,在重视空间与城市、 居民、街区共通融合的同时,联动“内与外”,把自然与户外的日常元素融入到店铺设计中。
The store along the street also give it an opportunity to closely connect with the block.The Greater Dog Architects tries to build a “public” spatial language, connect with “inside and outside”, and integrates the common elements of nature and outdoors into the retail design.
在城市公园中接触到的日常健身器材和公共设施:移动伸缩门,站台座椅,扭腰器,云手转轮, 凉亭,路灯,粗糙的石头,树杆与树枝等等… 这些大众熟悉的日常物件,被带入到空间里, 由于使用场景和功能的切换,为其创造一个具有趣味性的体验空间。
Daily fitness equipment and public facilities in urban parks: like extension railings, platform seats, waist twisters, hand rotating wheels, pavilions, street lamps, rough stones, tree and branches, etc. These familiar daily objects are brought into the space. Due to the different location and changes in function of the objects, it not only brings unexpected surprises, but also makes the space full of fun in experience.
外立面的更新设计中,和传统的广告屏不一样的是,设计师在外墙上应用了抽象且具有数字感的图形方式来体现需要传达的内容。每格灯光设置的程序编程带来了外墙应用上的变化性,极简的动态变 化,成为街区中具有记忆点的建筑外立面。
In the renewal design of the facade, the application of digital light with abstract graphic to reflect what needs to be communicated visually. The programming of each grid light setting brings changeable combination and dynamic visual, which has become the facade with highlights in the block to compare with the traditional advertising screen.
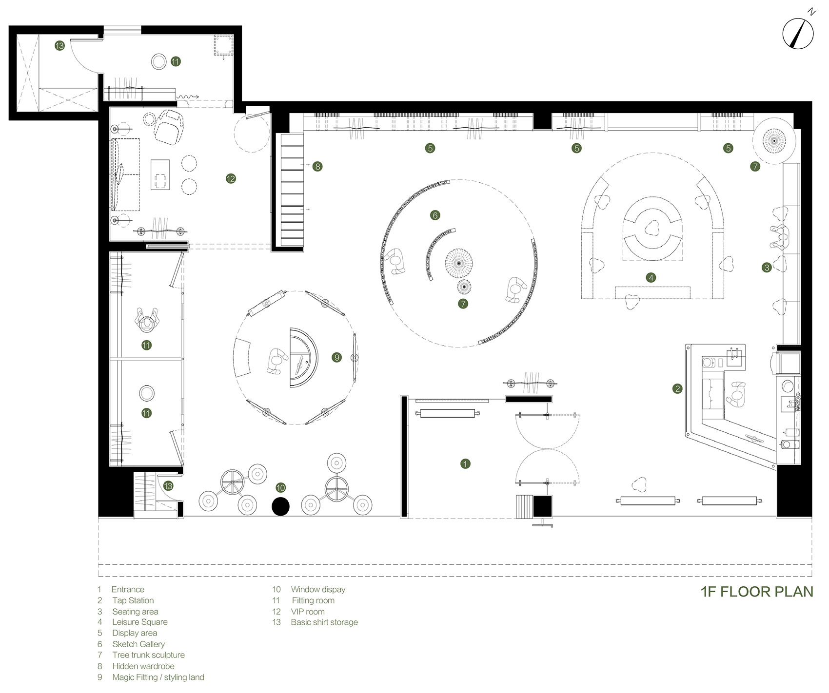
「 穿搭 」之旅由一张入口的地图展开,依照地图的路线分布,内部空间以:入口,凉亭取水站, 休憩广场,手稿画廊,魔镜穿搭区,展示区,VIP室为主。 在入口的设计上,借用了内退的距离创造了一个半户外的休憩空间,提供给大众在此处歇脚, 聊天,避雨,等候,打发时间…它的多重功能回应了城市居民所需,而非营造产生距离感的 商业空间。
The “Styling” journey begins with a hunting map at the entrance hall, which is curved visiting routes and spatial function zoning . It includes: Tap Station, Leisure Square, Sketch Gallery, Magic Fitting area, Display area, and VIP room mainly. The retreating entrance creates a semi outdoor space where available to the public to rest, chat, wait or even killing time… Its multiple functions respond to the needs of urban residents, rather than creating a commercial space with a sense of distance.
一个具有动作性的词汇,同时也暗指了对新鲜事物有着灵敏的嗅觉,在形容对时尚穿搭的把握度上,它成为了潜在的隐喻。“它不同于买手店,它是 一个集线上线下“穿搭“体验为一体的空间。在这里希望通过专业理型师,为消费者提供专属又个性化的穿搭规划”。「 PROGEN 理型公园 」主理人 Tom Lu 如此阐述其品牌理念。
It has become a potential metaphor in describing its grasp of fashion and It refers to a keen sense of searching new things. Progenius Park is different from a buyer’s shop in that it is a “Styling” retail that combine bricks and clicks. It provides consumers with personalized wear planning through professional stylist. Tom Lu, the director of Progenius Park, explains its brand philosophy.
可旋转的手稿画廊展示了一千多位服装设计师的手稿,它们以阵列的形式排列,双向进入的环形廊道,在动线中创造了更为丰富的路径, 也尽可能的在有限的空间里创造更长的阅读路径。
The Sketch Gallery displays hand-sketch from more than one hundred fashion designers, and each of sketch is arranged in the form of array by rotatable mental box with two side display method. Moreover, the circular corridor with two-way access creates a richer routes, and also creates a longer reading path in a limited space.
通过对大小不一的老树杆的重新组合,形成了树杆新的比例关系。不锈钢片的穿插带来冰冷材质与自然木的冲突性,同时它的出现也“ 缝合” 了树杆被切割后带来的伤痕。 老树矗立其中,使之与空间形成新的对话,如同雕塑与自然的低语。
A new proportion of tree is formed by recombining different sizes of tree trunks. The embedded mental plate brings the conflict between cold material and natural wood. At the same time, its appearance also “stitched” the scars caused by the cutting of tree trunks. The old tree stands in it, forming a new dialogue with the space, like the whispers of sculpture and nature.
广场作为城市必备的公共场所,是市民进行交流,沟通,小憩,聚集等活动的重要场所。粗糙质地的洞石作为大自然的馈赠,拙感中带有天然的呼吸感。在「 PROGEN 理型公园 」 的休憩广场里,盲道钉,洞石,绿色绒布的运用,强化了户外与自然气息。 半围合的石凳摆放方式,带来不同群体或个人之间社交的可能性,更多的专业内容如:沙龙,设计品牌分享会也将在此处发生。
As a necessary public place in the city, the square is important for citizens to communicate, gathering and hold various activities. As a gift from nature, the rough texture has a sense of breathing. Therefore, in the Leisure Square, the designer used the material of blind road stud, volcanic stone and green velvet fabric to increase the sense of outdoor context and natural atmosphere. The placement method of semi-enclosed stone stool brings more possibilities for social interaction between different groups or individuals. And also group sharing such as salons, design talks will also happen here.
被藏起来的套装,通过墙面按压式的隐形高柜打开。制造了开魔力盲盒的惊喜感,也让消费者多了几分在空间里寻觅的趣味。丛林中的小树枝,带来了衣架设计的灵感。洞石穿孔的模块组件,满足了陈列可变化性的 需求。自动旋转的扭腰器也被运用在空间里作为陈列道具。
The suit display is hidden in a wardrobe on the wall and opened by kick-back system.It creates a surprise like people opening mystery boxes, and also gives consumers a bit more fun to “hunt” new cloths. The twigs have inspired the design of cloths hanger. The perforated mental modular components is inserted into volcanic stone on the wall, which meet the needs of display variability. Automatically rotating waist twisters are also used in space as display props.
取水站为整个空间提供咖啡的服务。作为独立的凉亭造型,设计师运用了不锈钢圆管和金属板进行结构的支撑与搭建,斜坡式的屋顶使其独立的结构变得更加的完整。
The tap station is a pavilion-like space with an independent structure that provides coffee and drinks.The designer applied stainless steel pipes and metal plates to support and build the whole structure, and the sloped roof makes its independent structure more complete.
作为理型专家服务的区域,大犬延续日常的、公共性的设计语言,借用街道出现的凸面镜, 创造出五个看似放大镜的奇幻领地。消费者将在此完成搭配问询,测肤,沟通,量体,试穿 等一系列的专业「穿搭」服务。VIP 室的设置提供了更为隐私化交流的空间。
Magic Fitting area served by stylist, the Greater Dog Architects borrow the public facilities that appear on the street to create a fantasy land with five convex mirrors. A series of professional “styling” services such as skin test, body measurement,fitting,styling suggestion and it all happens here. Furthermore, VIP room provides a more private space to communicate.
通过不同功能的设置,让顾客自由的探索其中:找到自己喜欢的手稿,刻在墙上的量体细节, 液压式的套装隐形高柜…它更像是一个符合当代年轻人玩耍的城市空间,没有距离感,多了几分在空间里寻觅的趣味,同时为整个商业街区带来新鲜血液与活力。
Progenius Park is more like an public urban space for contemporary younger to play. They can freely explore through different functions, like seeking for a favorite sketch, carved stone tells the details of the body measurement on the wall; the hidden suit, etc…There is no sense of distance, and it is a bit more fun when consumers “hunting”clothes or accessories here. At the same time, it brings fresh blood and vitality to the whole commercial block.
项目名称: Progen 理型公园
项目委托: PROGEN Group
设计范围: 室内设计 建筑外立面
设计面积: 220 平方米
空间设计: 大犬建筑设计
主创设计: 胡志红, 辛晋
设计团队: 郭林昂, 顾丽玲, 沈修文
品牌视频: 徐峰立工作室
空间摄影: 孟庆伟, 谢亦伦
施工单位: 浙江杭州昇民建筑装饰工程
项目地址: 浙江省宁波市中山东路205 号
设计时间: 2020
完工时间: 2021,08
Project Name: Progenius Park
Client: PROGEN Group
Design Scope: Interior Design, Facade Design
Site: 220 sqm
Design Company: Greater Dog Architects
Design Director: Red HU ,Jin XIN
Design Team: Keith Guo, Abigale Gu, Hugh Shen
Video Credits: Peter Xu Studio
Photo Credits: Qingwei Meng,Yilun Xie
Constructor: Hangzhou Shenming Construction
Location: No.205, East Zhongshan Road, Ningbo city, Zhejiang, China
Year began: 2020
Completion Year: 2021,08










































