平和图书剧场,上海/建筑
平和图书剧场是OPEN设计的“聚落校园/上海青浦平和双语学校”中的核心建筑。一个大型图书馆、一个500座的专业剧场和一个150座的黑匣子剧场,在一栋建筑中创造性地结合在一起。有的孩子说它像一头蓝鲸,也有的说它像一艘巨轮。独特的建筑形态和充满自由的空间,不仅可以培养孩子们对阅读和表演的兴趣,也让他们的想象力在知识的海洋里尽情遨游。
Pinghe Bibliotheater is the core of OPEN’s latest project—School as Village/Shanghai Qingpu Pinghe International School. A library, a theater, and a black box interlock together like a Chinese puzzle to form this characteristic building that some call ‘the blue whale’ while others see it an ocean liner. The unique form of the building and the free-flowing spaces not only cultivate the students’ interests in reading and performing, but also encourage their imagination to roam freely in the ocean of knowledge.
▼南立面夜景,south facade night view

图书剧场位于聚落校园重要的一角,靠近一条城市主干道和一条古运河的交汇处,从远处就可以看到它醒目的蓝色和倾斜的屋顶。一个个有机形态的天窗、舷窗和圆洞,组合成生动的表情,将这个K12学校的天真与童趣引入城市界面。
The Bibliotheater abuts an important corner of this school-village, at a junction near which a major city highway and an ancient canal also meet. The slanted roof with spiky skylights, ship portholes like round windows, and eye-catching blue color leave a strong impression for passersby.
▼天窗及圆窗,spiky skylights and round windows

▼舷窗,portholes

▼圆窗,round windows

为了避免孩子们常年待在一栋房子里的枯燥乏味,我们摒弃了近年流行的校园巨构建筑,将原有设计书中的功能进行拆解并重新组合,形成一个个单体建筑组成的聚落。将图书馆和剧场放在一起,是因为我们认为广泛的阅读、思考和通过表演来表达,都是早期教育的重要组成部分,而在应试教育中是常常被忽略的。两种行为一静一动,不同的空间气质和需求,激发了独特的设计策略。
When we were given the extensive and jumbled-together program of a new school for 2000 students aged from 3 to 18 years, the immediate reaction was how dreadful it would be for a kid spending these many years fixed in one building. We decided to break away from the current trend of school-as-megastructure. Instead, the original program was deconstructed and grouped into many smaller and distinctive buildings, forming a village like campus. The marriage of library and theater came from the architect’s belief that the act of extensive reading and thinking, and the act of expression through performances, should be critical components of education but are often ignored in test-driven educational systems. The distinctive qualities of these two programs and the respective physical needs, came to inspire the design of the building.
▼分析图,diagram

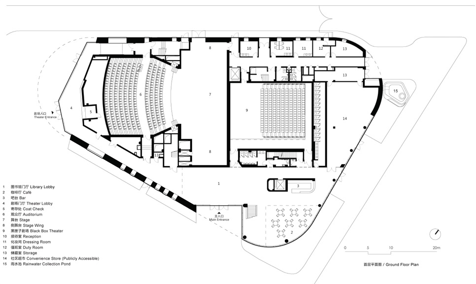
专业剧场和黑盒子剧场需要最少的自然光和最好的隔音效果,于是它们被放置在了建筑的下半部分和中心区域。图书馆则占据了建筑的上半部分。OPEN充分利用了剧场观众厅与台塔之间的高差,将图书馆的各个空间楔入其中,并将不同高度的空间用阶梯阅览室串联起来,组成环状的空间序列,这一序列在一个沉浸在光与书包围中的圆形阅览室达到顶峰。
The proscenium theater and the black box, which require the least natural light and the most acoustic isolation, occupy the lower part and the deep central area of the building, while the library occupies the upper part. A loop of different reading spaces rises and drops according to the varying heights of the theater volumes below, creating a terraced spatial sequence that climaxes at a central reading area that is surrounded by books and light.
▼主入口门厅,main lobby

▼阶梯阅览室,the terraced reading area

▼图书借阅处,library reception & book retrieval

▼开架阅览室,open stacks

▼楼梯,staircase

▼共享阅读桌,the shared reading table

阅读是一种内向且私密的体验。我们为不同的年龄段的学生,从幼儿到青少年,都创造了丰富而舒适的阅读空间,让他们自由自在地找到属于自己的角落。阶梯阅览室中间还设有户外阅读区,天气好的时候,下沉的屋顶花园可以让孩子们在室外享受新鲜空气。
The experience of reading is inevitably introverted and highly personal. Facing readers from early years to young adults, the architect created many comfortable reading zones of different qualities. A sunken roof garden gives kids breathes of fresh air and an outdoor reading area when weather permits.
▼从阶梯阅览室望向户外花园,view to the roof garden from the terraced reading area

▼屋顶花园,roof garden

另一方面,舞台表演的体验则是外向且兴奋的。因此空间也做了更加戏剧化的处理——剧场的主入口是直接斜切建筑而形成的夸张开口;剧场中的暖色木板和深蓝墙面形成了强烈的视觉冲击;首层的咖啡厅还为家长们提供了阅读和交流的空间。
The experience of performing in theaters, on the other hand, is extroverted and exciting. The main entry to the theater is where the building is ‘cut’ diagonally to form a theatrical opening. The juxtaposition of warm wood panels and deep blue walls create a visually stimulating auditorium. The café on the ground floor also plays an important role. During normal school days parents waiting to pick up kids can read and socialize there.
▼咖啡厅,cafe

▼咖啡厅及楼梯,cafe and staircase

▼剧场,theater

▼剧场观众席,theatre seating area

光线对于图书馆至关重要,不仅满足功能需求,也赋予了空间形体和韵律。倾斜屋面上的大量天窗可以让自然光柔和地洒入,提供静谧、亲切的阅读氛围。中央阅览室垂下来一个巨大的鼓形天窗,把位于中心位置的环状共享阅读区照亮,让整个空间充盈着一股强大的凝聚力。剧场则完全地隔绝了自然光,通过精心设计的人工照明来满足演出需求。
Light is crucial to the design of the library, not only fulfilling the functional needs, but also giving form to the spaces and animating them with musical rhythm. Abundant skylights on the slanted roof bring filtered light to the central reading area, a giant oculus dropping down from the ceiling illuminates the very center in an almost spiritual way, forming an emotionally charged central space. While in the theater, natural light is avoided entirely, and artificial lighting was carefully designed to meet functional requirements.
▼中央阅览室,central reading area

▼中央阅览室坡道,ramps in the central reading area

▼北立面夜景 – 从外部看窗口,north facade – exterior view of the windows

广义来说,图书剧场是一个综合性的文化中心,它不仅仅是学校的“精神核心”,也可服务于周边社区。这座建筑被特意放置在校园的次入口,可以在不影响学校管理的情况下单独开放,希望能起到凝聚师生、家长和社区的重要作用。
In a sense, the Bibilotheater was conceived of more broadly as a cultural center for not only the school but also the surrounding communities. Carefully placed near the secondary entrance of the campus, the building may be used independently without disturbing the campus management. It was the architect’s hope that the Bibliotheater will become the social energizer that brings together parents and community members.
▼北立面夜景,north facade night view

▼首层平面图,ground floor plan

▼剖面图,section

设计时间:2016-2020
阶段:建成
甲方:上海题学教育科技有限公司
功能:500座剧场,150座黑盒子剧场,图书馆,咖啡厅
建筑面积:5372平方米
占地面积:2312平方米
地点:中国,上海
CREDITS
项目团队
建筑及室内设计:OPEN建筑事务所
主持建筑师:李虎,黄文菁
设计团队:叶青,史冰洁,杨玲,卢笛,邹晓薇,刘浔风,李凌娜
合作设计院:上海原构设计咨询有限公司
结构机电顾问:建研科技股份有限公司
幕墙顾问:建研科技股份有限公司
剧场及声学顾问:上海网音文化发展有限公司
照明顾问:上海现代建筑装饰环境设计研究院有限公司
Project Name: Pinghe Bibliotheater
Design Year: 2016-2020
Status: Completed
Client: Shanghai Tixue Education and Technology Co., Ltd.
Program: 500 seated theater, 150 seated black-box theater, Library, Café
Building Area: 5,372 m²
Site Area: 2,312 m²
Location: Shanghai, China
Architecture and Interior Design: OPEN Architecture
Principals in Charge: LI Hu, HUANG Wenjing
Design Team: YE Qing, SHI Bingjie, YANG Ling, LU Di, Zou Xiaowei, LIU Xunfeng, LI Lingna
Local Design Institute: Shanghai Yuangou Architects and Consultants
Structural and MEP Consultant: CABR Technology Co., Ltd.
Curtain Wall Consultant: CABR Technology Co., Ltd.
Theater/Acoustic Consultant: Shanghai Net Culture Development Co., Ltd.
Lighting Consultant: Shanghai Modern Architecture Decoration Environmental Design Research Institute Co., Ltd.














