厦门庄家自宅,厦门/建筑

简介:本自建宅位于福建厦门,两座临近自建房靠近场地东、北两角。为保证用户 的隐私,所以我们根据临近自建房的视线制定了坡屋顶的坡度方向。阶梯式 的中庭能保证在尺寸限制紧张的情况下保证采光和通风。错开的楼层能让底 下客厅的通高得到保证。
Introduction: This self-owned hosued loacated in Xiamen, Fujian. Two existing houses were close to the east and north corner of the site. We shaped the roof according to the sight from the closing blocks to keep the privacy of the user. The funnel shaped atrium contributed to the lighting and ventilation in the situation that the size of the structure are strictly limited. The straggered floor lead to the hight ceilling of living rooms on the first floor.

项目背景
项目位于莆田的一个小村,村里每家每户都住在小洋楼里。基地进深二十余米,东面有建筑遮挡,南面视线开阔,西面靠山。开始修建之后发现问题诸多,决定拆掉重建。
Project Background
The project is located in a small village in Putian, where every household lives in a small villa. The base is more than 20 meters deep, with buildings blocking it to the east, a wide view to the south, and a mountain to the west. After starting construction, many problems were discovered and it was decided to demolish and rebuild.

设计难点
基地狭长,东面的两栋建筑较高,且紧靠基地,势必会影响基地内建筑的采光。甲方要求在一个月内完成所有的设计,时间紧迫。
Design difficulties
The base is narrow and long, and the two buildings to the east are tall and close to the base, which will inevitably affect the lighting of the buildings inside the base. The first party requires that all designs be completed within one month, and time is tight.

设计构思
Design concept

▼方案推敲,Scheme deliberation

▼确定方案,Determine the plan

将建筑主体分为主楼和副楼,在主体建筑里设中庭,让建筑拥有良好的采光。
Divide the main building into the main building and the auxiliary building, and set up an atrium in the main building to provide good lighting for the building.

为了让更多的南向阳光进入室内,将建筑体块的东南角以倾斜的角度削去一块。
In order to allow more southward sunlight to enter the interior, the southeast corner of the building block is cut off at an inclined angle.

将面积尽可能多的让给室内空间,并保证中庭内部方便采光,让中庭面积自下到上逐渐变大。
Allowing as much area as possible to indoor space and ensuring convenient lighting inside the atrium, gradually increasing the atrium area from bottom to top.

每个卧室都配一个露台,方便居住者享受中庭里的阳光。
Each bedroom is equipped with a terrace for residents to enjoy the sunlight in the atrium.
▼方案成型,Scheme forming

设计亮点
Design highlights
青砖外墙,倾斜屋顶,水泥围墙,再加上几株翠竹点缀在内外,几分传统建筑神韵油然其间。
The green brick exterior walls, sloping roofs, cement walls, and a few green bamboo trees adorn the interior and exterior, exuding a touch of traditional architectural charm.

L形的副楼绕着水池,池水环着水中央的樱花树。闲步在水边,徜徉在这灵动之美里。
The L-shaped auxiliary building surrounds the pool, with the water surrounding the cherry blossom tree in the center of the water. Walking leisurely by the water's edge, strolling in this dynamic beauty.

中庭的露台层层叠叠,上下层之间视线通透,给居住者之间创造了更多交流的可能性。
The terraces in the atrium are stacked one after another, with a clear view between the upper and lower levels, creating more possibilities for communication among residents.


客厅和餐厅靠在水池东侧,可以开合的落地玻璃窗让人在室内便可将池中美景一览无余。
The living room and dining room are located on the east side of the pool, and the floor to ceiling glass windows that can be opened and closed allow people to have a panoramic view of the pool from inside.


▼效果图,Rendering

▼能容纳六七辆车的停车坪,A parking lot that can accommodate six or seven vehicles

▼造型别致大方,Unique and elegant design

▼四周绿植环绕,Surrounded by green plants

▼中庭空间层次丰富,楼梯间也有丰富的阳光,The atrium space is rich in layers, and the stairwells also have abundant sunlight

▼模型照片,Model photos







图纸中心
Drawing Center
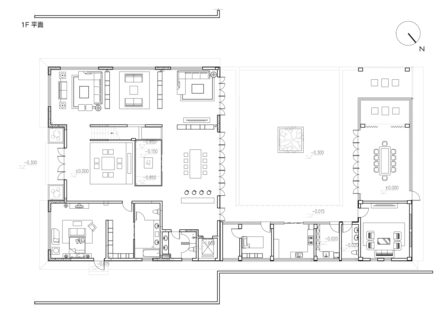
▼一层平面图,First floor plan

▼一层轴侧图,First floor axis side view

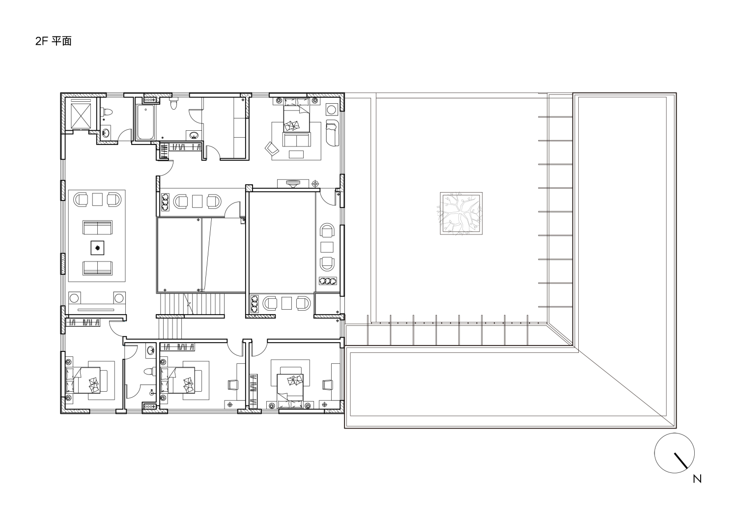
▼二层平面图,Second floor plan

▼二层轴测图,Second floor axonometric drawing

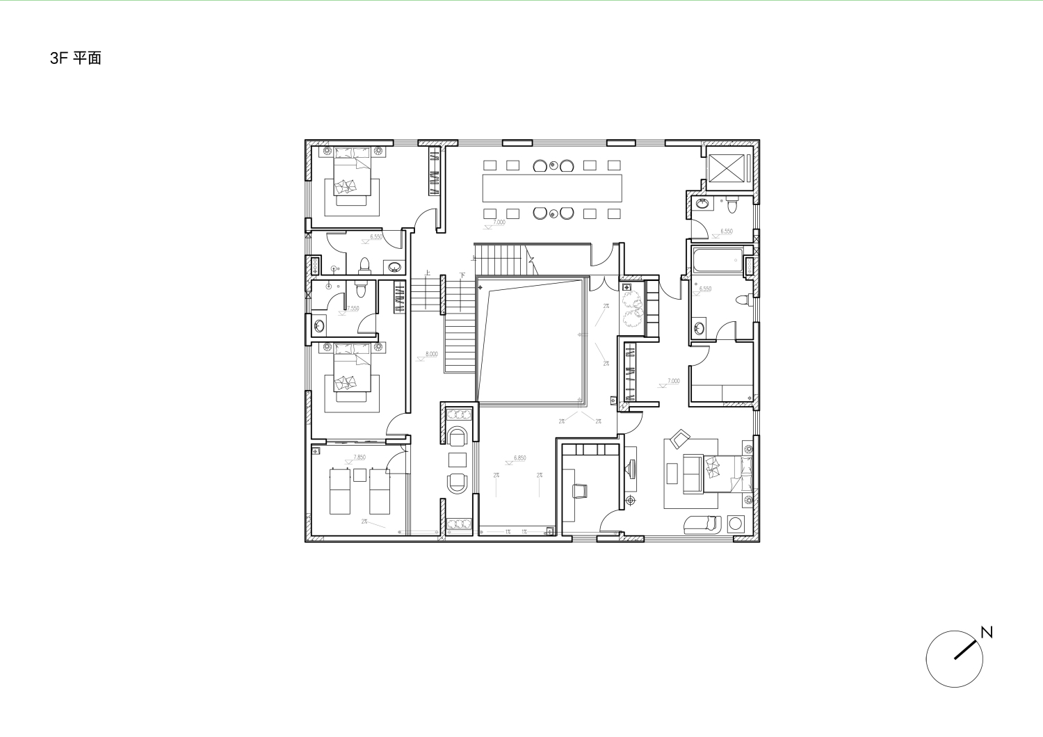
▼三层平面图,Third floor plan

▼三层轴侧图,Third floor axial side view

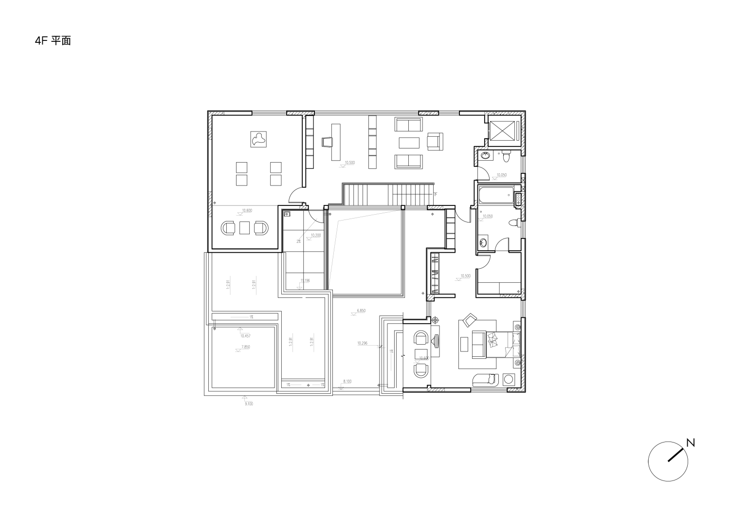
▼四层平面图,Fourth floor plan

▼四层轴测图,Fourth floor axonometric drawing

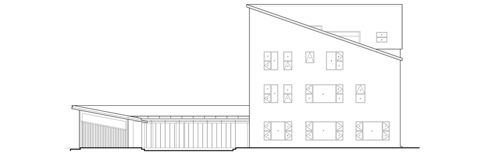
▼南立面,South facade

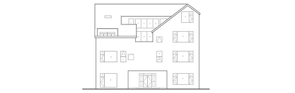
▼东立面,East facade

▼剖透视1,Sectional perspective 1

▼剖透视2,Section and Perspective 2

▼剖透视3,Perspective 3

项目名称:厦门庄家自宅
地点:福建厦门
建筑面积:999 平方米
占地面积:1200.0㎡
面宽:80.5米
进深:20.0米
造价:130万左右
设计时间:2015 年10 月- 2015 年11 月
设计机构:殊舍建筑
Project Name: Xiamen House
Location: Xiamen, Fujian
Area:999 square meters
Floor area: 1200.0 square meters
Face width: 80.5 meters
Depth: 20.0 meters
Cost: About 1.3 million yuan
Date:October, 2015 - November, 2011
Design Institute: ShuShe Architecture














