赵俊良工作室,北京/建筑
简介:本项目位于北京宋庄艺术区,位于一个大院内,院内都是每户一亩的艺术家工作室,在紧凑的场地内需要保持私密性,所以我们把南北的露台全部移到中间部分,另外也通过露台庭院把建筑内部功能相对隔开,有较好的视线景观。
Introduction: This project is located in the Songzhuang Art District of Beijing, in a large courtyard with one acre of artist studios per household. In a compact venue, privacy needs to be maintained, so we have moved all the north and south terraces to the middle part. Additionally, the internal functions of the building are relatively separated through the terrace courtyard, providing a good view.

项目背景
项目位于北京郊区,该地尚未被开发,周边有许多文化建筑,艺术氛围浓厚。基地西面有一个玻璃制造厂,北面与城市道路相临。
Project Background
The project is located in the suburbs of Beijing, which has not yet been developed and is surrounded by many cultural buildings, creating a strong artistic atmosphere. There is a glass manufacturing factory to the west of the base, and to the north is adjacent to the city road.

设计难点
业主希望建筑能够兼备居住和工作室功能,工作室用于将来出租。
Design difficulties
The owner hopes that the building can serve both residential and studio functions, and the studio will be used for future rental.

设计构思
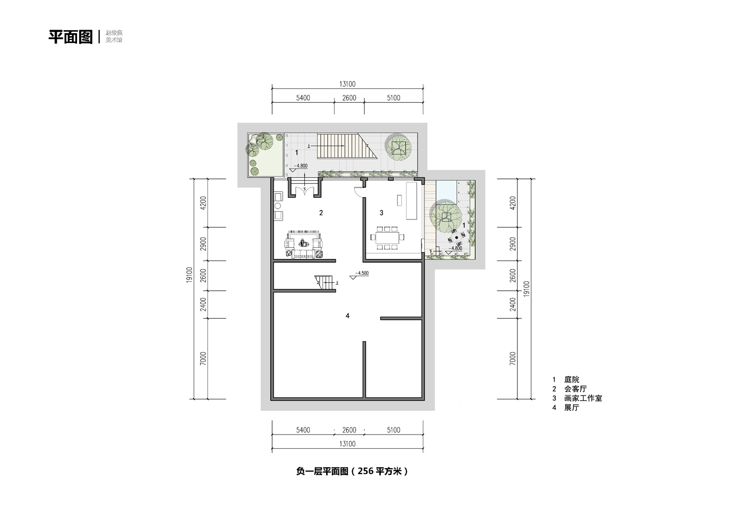
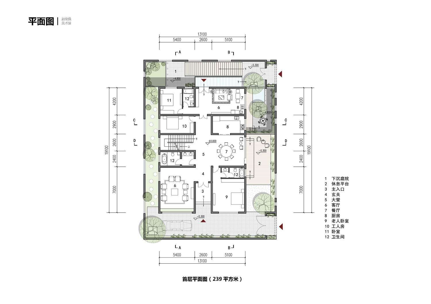
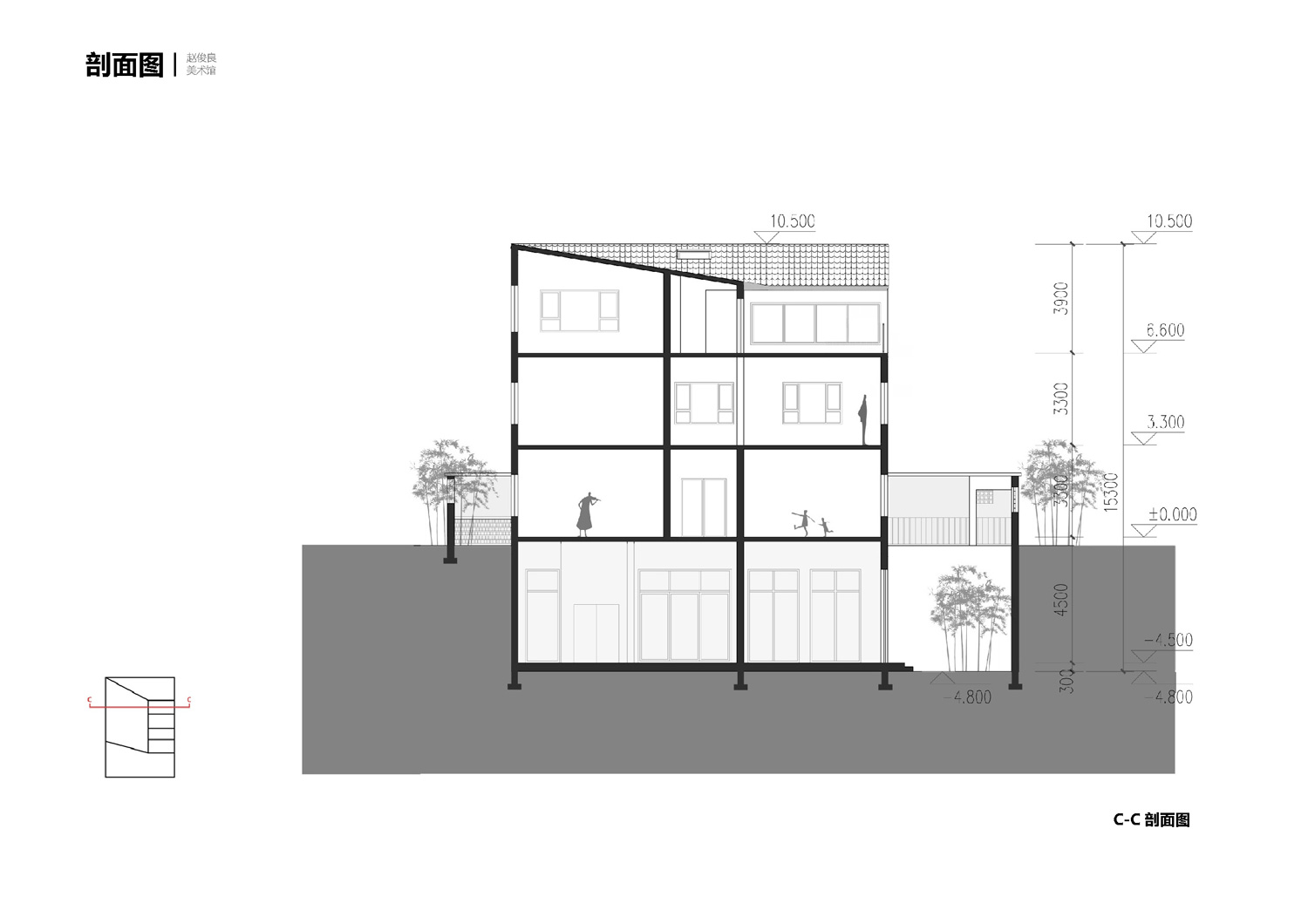
为满足日照要求以及保证建筑私密性,在南、北、东面留出较宽的位置,让建筑被庭院环绕。通过两个下沉庭院将工作室区域和生活区域分开,居住空间入口在南,工作室入口在北。
Design concept
To meet the requirements of sunlight and ensure the privacy of the building, wide spaces are left in the south, north, and east to allow the building to be surrounded by a courtyard. The studio area and living area are separated by two sunken courtyards, with the living space entrance in the south and the studio entrance in the north.

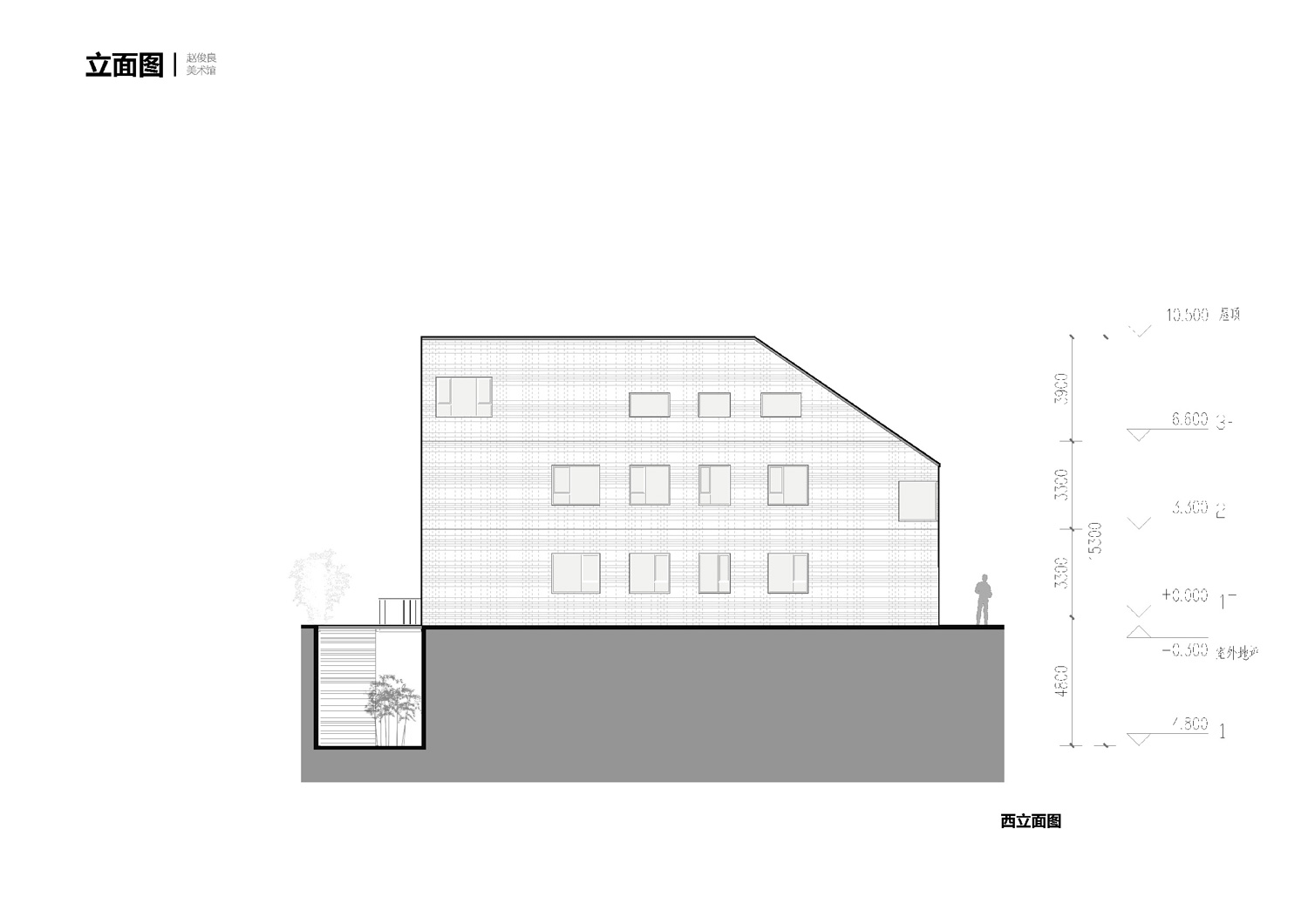
建筑采用坡屋顶,并使用传统建筑元素。为给居住者提供私密的室外活动空间,做内凹庭院。
The building adopts sloping roofs and uses traditional architectural elements. To provide residents with a private outdoor activity space, create a concave courtyard.

设计亮点
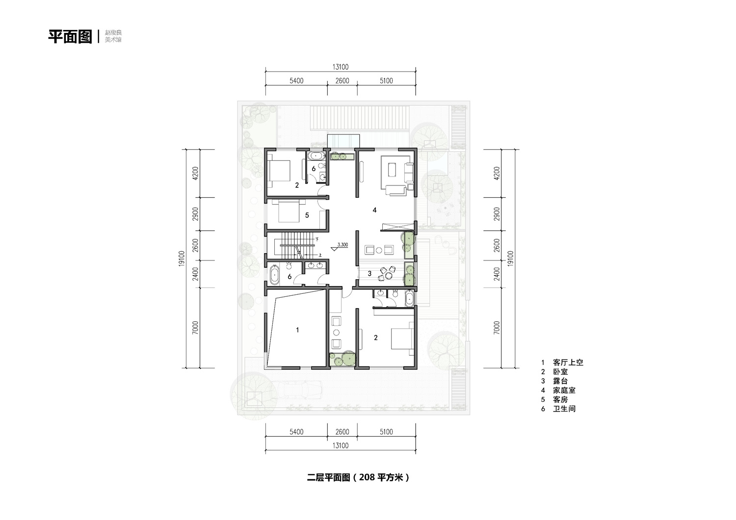
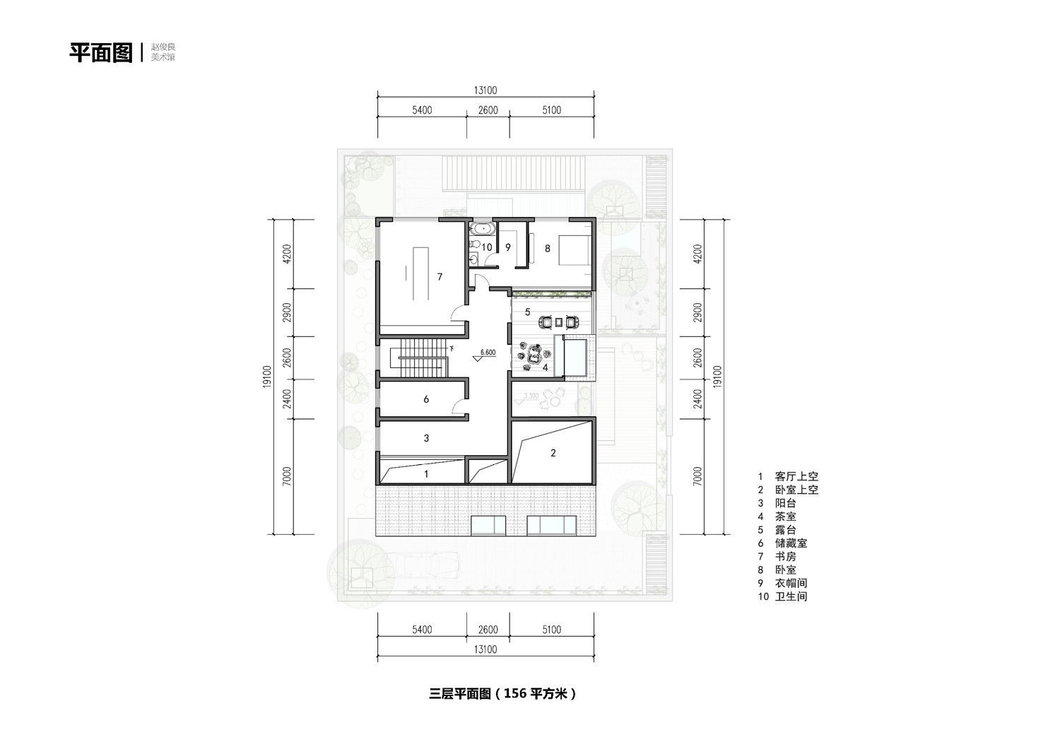
庭院向地下延伸,造就美景的同时,也让自然光线能够漫入地下空间,让每一层空间都拥有露台,是居住者放松、休憩的好去处,也是绝好的会客之地。
Design highlights
The courtyard extends underground, creating beautiful scenery while also allowing natural light to permeate the underground space. Each floor has a terrace, making it a great place for residents to relax and rest, as well as an excellent gathering place.
▼效果图,rendering




























项目名称:赵俊良工作室
建筑设计:殊舍建筑
项目地点:北京宋庄
建筑面积:859平米
设计时间:2014年10月-2015年2月
设计团队:何红才、何宏仕、 王萍、张旭、张雨慧、傅超、陈岩、陈达理
Project Name: Zhao Junliang Studio
Architectural Design: Shushe Architecture
Project location: Songzhuang, Beijing
Building area: 859 square meters
Design time: October 2014- February 2015
Design team: He Hongcai, He Hongshi, Wang Ping, Zhang Xu, Zhang Yuhui, Fu Chao, Chen Yan, Chen Dali














