多彩农庄别墅,北京/建筑
简介:此项目主要理念想通过木结构标准化构建预制组装建筑,可以节省施工时间和造价。
The major idea of this project is to assemble the construction by the standardized prefabricated wooden structure built to save time and cost.
本项目位于北京,建筑面积500平米。全部采用木结构,工厂加工现场组装。木结构的组装区别于中国传统榫卯构造,施工简单,速度非常快。构建采用标准模数尺寸,可以大批量工厂预制。构建工厂大批量生产,现场组装。而且每个构建非常小,方便搬运,组装方式轻巧方便。而且可以大规模同时施工。
This project is located in Beijing with the covered area of 500 square meters. It adopts the timber structures which are processed in the plant and have been conducted the field assembly. The assembly techniques of the timber structures differ from Chinese conventional tenon techniques, they are simple and rapid. The construction plant can produce with large scales and then send them for field assembly. In addition, each construction is very small in size suitable for the transportation, resulting in assembly lightly and conveniently. And the construction can be conducted at the same time with a large scale. There is no wet work with no influence from the weather on the time limit for the project. The field construction period of a villa does not exceed one week (not including the decoration) .

没有湿作业,工期不受天气影响。一栋别墅现场施工周期不超过一个星期(不含室内装修),材料环保、保温性能非常好。可以大范围推广。
Materials are environmental protection with very good insulation properties which can be promoted into a wide range.

渔舟逐水爱山春,两岸桃花夹古津。坐看红树不知远,行尽青溪不见人。这是小盖子看到这个多彩农庄项目的背景时,突发的联想。正所谓平明闾巷扫花开,薄暮渔樵乘水入。初因避地去人间,更问神仙遂不还。
Fishing boats chase water and love mountains in spring, with peach blossoms on both sides sandwiched in ancient Tianjin. Sitting and watching the mangroves, I don't know how far away, but walking through the green stream, I don't see anyone. This is a sudden association when Little Lid saw the background of this colorful farm project. As the saying goes, sweeping flowers in the Pingming Lu Lane, fishermen and woodcutters ride in the water at dusk. At first, he fled to the mortal world and asked the gods if he would return it.

项目背景
项目位于北京平谷区桃花源,平谷的“十三五”规划纲要中提到,打造一批特色小镇。建造一批农村别墅,出售给有经济实力、有审美情趣的农民。此项目便是第一个建造的别墅。
Project Background
The project is located in Taohuayuan, Pinggu District, Beijing. The "13th Five Year Plan" outline of Pinggu mentions the creation of a number of characteristic towns. Build a batch of rural villas and sell them to farmers with economic strength and aesthetic taste. This project is the first villa built.
材料环保,保温性能非常好,冬暖夏凉。施工不受天气影响。适合大规模同时施工。建造速度非常快,7天建完,节约人工费用。省钱省心的木结构建筑在欧洲国家非常盛行。
The material is environmentally friendly, with excellent insulation performance, making it warm in winter and cool in summer. Construction is not affected by weather. Suitable for large-scale simultaneous construction. The construction speed is very fast, completed in 7 days, saving labor costs. Wood structures that save money and worry are very popular in European countries.






图纸中心
Drawing Center
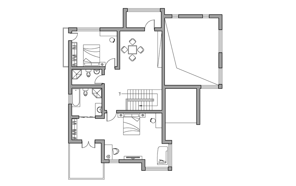
客厅与餐厅相连,少了隔断,空间更通透,阳光更充足。
The living room is connected to the dining room, with fewer partitions, making the space more transparent and providing more sunlight.
▼一层平面图,First floor plan

二楼主卧室配有朝南观景大阳台,采光足、通风好,有利于居住者身心健康。
The main bedroom on the second floor is equipped with a large balcony facing south, with sufficient lighting and good ventilation, which is beneficial for the physical and mental health of residents.
▼二层平面图,Second floor plan

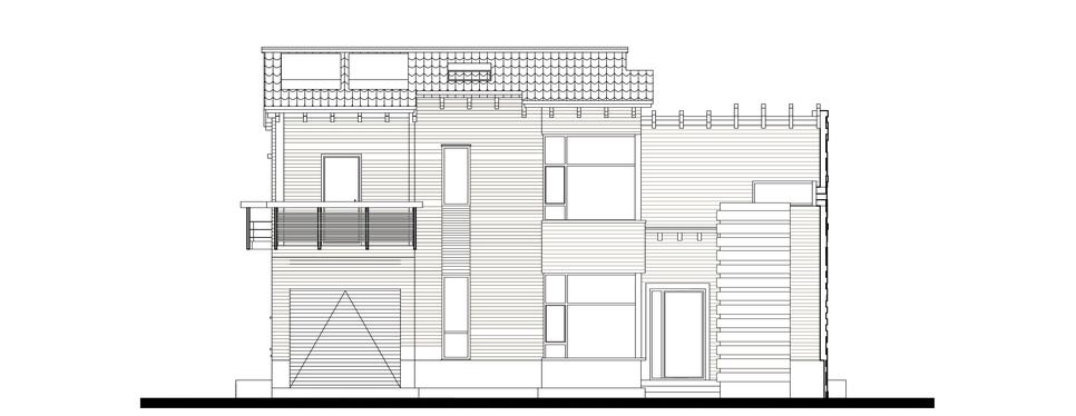
▼南立面,South facade

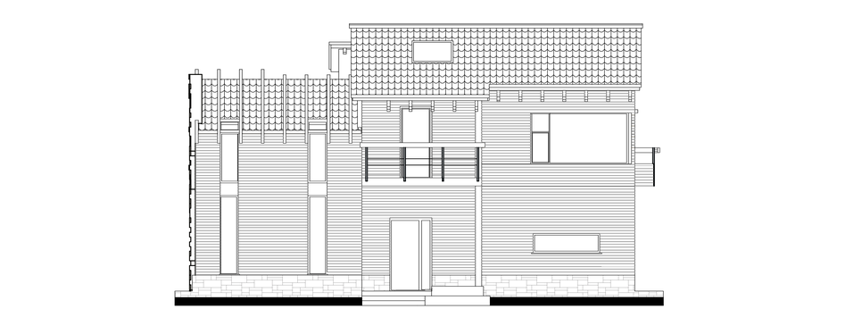
屋顶的老虎窗,提供更长的日照时间,为二楼的起居室引入更多自然光线。
The dormer window on the roof provides longer sunlight and introduces more natural light into the living room on the second floor.
▼北立面,North facade

东立面局部采用石材做装饰,突出客厅空间体量,打破只有一种材质的单调性。
Part of the east facade is decorated with stone, highlighting the size of the living room space, breaking the monotonicity of only one material.
▼东立面,East facade

坡屋顶不仅有利于疏散雨水,而且防水性能与保温性能都比平屋顶更好。
Sloping roofs are not only beneficial for evacuating rainwater, but also have better waterproof and thermal insulation performance than flat roofs.
▼西立面,West facade

项目名称:多彩农庄别墅
设计机构:殊舍建筑
项目地点:北京平谷
建筑面积:500平米
用地面积:3.2万平米
设计团队:何红才 李福森 邵明强 何宏仕 设计时间:2009.6—2011.8
Project Name: Colorful Farm Villa
Design Agency : Beijing Shu She Architecture
Project Location: Beijing
Covered Area:500 square meters
Covered Area:32000 square meters
Design Team: Hongcai He, Fusen Li, Mingqiang Shao, Hongshi HeDesign Time: June, 2009 --- August, 2011














