日熹阁与月在庭,深圳 / 南沙原创NODE
项目选址于深圳市光明区虹桥公园片区内,周边植物茂密,群山环绕,自然条件优渥。鲜艳的空中步道犹如一条红色飘带在山间环绕,为公园注入了动感与活力,也为“日熹阁”与“月在庭”的设计提供了独特语境。这两栋建筑是公园入口区的重要公共配套建筑及标志性门户, 作为虹桥公园二期项目的一部分,光明区旨在为公园提供有别于公园内其他运动设施,希望融合文化、艺术和休闲功能的特色小型公共建筑综合体。这是一个有很大挑战的项目,如何不抢“红色廊桥”的醒目,策略性呈现其建筑独特标志性;同时,自然与景观作为场地的最大资源,如何“物尽其用”也是设计的出发点和最大挑战。
The project, located in the Hongqiao Park of Guangming District in Shenzhen, is embedded in a captivating natural setting of lush vegetation and majestic mountains. The vibrant-colored sky trail, like a red ribbon wrapping around the mountains, injects energy and vitality into the park while providing a distinctive backdrop for the design of the Sunshine Loft and Moon Pavilion. The two buildings, as key public facilities and iconic gateways at the park’s entrance, form part of Phase II of Hongqiao Park. They are envisioned as small-scale public complexes well differentiated themselves from other sports facilities within the park and offering cultural, artistic, and recreational spaces. The design process has been quite challenging, as we need to effectively highlight the complex as a unique landmark without overshadowing the striking “Red Corridor Bridge”. Meanwhile, it is essential to maximize the natural setting and views, the best assets of the project site.
▼项目概览,Bird’s-eye View of Diverse Homology Pavilion

日熹阁 Sunshine Loft
背景 Background
日熹阁原来定义为公园管理用房,项目占地664平方米,是个在自然坡度上直径30米的圆形用地,也是虹桥公园入口区最近的配套建筑用地。前有开阔的湖面和标志性虹桥,后临京港高铁与广深港高铁两条铁路,拥有绝佳的景观视角和交通条件。面对场地自然坡度特性与建筑红线的限制,采用了圆形空间布局。通过巧妙的路径设计,将公园流线与建筑内部功能有机融合,公共活动空间、书吧等区域紧密相连,打造一个集文化、休闲与观景功能于一体的多元化场所。
Formerly planned for park management, Sunshine Loft stands on a sloped, circular site of 664 m2 with a diameter of 30 meters, which is also the nearest land for supporting facility from the entrance of Hongqiao Park. The project enjoys superior views and convenient transportation, with a broad lake and the iconic Hongqiao Bridge in the foreground, and two major railways — the Beijing-Hong Kong High-Speed Railway and the Guangzhou-Shenzhen-Hong Kong High-Speed Railway—at the back. To accommodate the site’s natural slopes and the restraints imposed by building lines, a circular spatial layout is planned. The pathway design skillfully intertwines park circulation routes with the building’s interior functions, closely linking up public activity areas, a book bar, and other zones, thereby creating a multi-functional venue for cultural, recreational, and viewing activities.
▼日熹阁、月在庭场地位置关系,The spatial relationship between Sunshine Loft and Moon Pavilion

▼日熹阁场地原状(施工前),Sunshine Loft Site (Before Construction)


方案设计 Design
日熹阁的设计为了最大程度地保留原生态环境,采用了顺势而为的策略,以首层架空形式减少对自然地形的干预,并采用了坡道的方式进入建筑内部。设计致敬了经典——勒·柯布西耶的卡彭特视觉艺术中心(Carpenter Center)的“漫步式“”穿越式”流线设计,将公园现状的顺坡步道与建筑进出流线及内部功能空间有机结合,同时也解放了地面层空间,作为公共休憩的“路过”场所。整体建筑如同一幅逐层展开的画卷,强调了空间的连贯性与流线的流畅性。
To preserve the original ecological environment as much as possible, the design of the Sunshine Loft follows the natural contour of the terrain. By elevating the first floor and creating a ramp for entry, the design minimizes intervention to the natural landscape. As a tribute to Le Corbusier’s “Carpenter Center”, a “strolling” and “crossing” circulation approach is adopted to seamlessly connect the existing sloped pathways of the park with the building’s circulation routes and interior spaces, while releasing the ground floor for public relaxation and passage. In this way, the whole building appears to unfold like a scroll painting, highlighting the coherence of spaces and the fluidity of movement.
▼勒·柯布西耶卡朋特艺术中心,Le Corbusier Carpenter Art Center

建筑的功能布局采用了动静分区的方式。底层作为开放的公共空间,连接外部环境,提供自由流动的步道和休息区;二层设置了书吧和咖啡厅,并可以利用灰空间进行外摆,增强了空间的互动性和开放性。三层则设有沙龙空间,相对安静,提供了更好的视野和舒适的环境,适合举办私密的交流和展览活动。各层之间紧密相连,形成了一条连续的游览路线。游客从公园的入口踏入建筑,仿佛进入了一次旅程,随着层层递进,最终从另一端出口,重新回归自然的怀抱。建筑与公园的路径自然衔接,仿佛与自然的对话从未中断。
Dynamic and static functions are separately planned in floor plan. The ground floor features an open public space that interacts with the external environment, offering free-flowing walkways and relaxation areas. The second floor houses a book bar and a coffee shop, turning grey space into an outdoor seating area, thereby enhancing interactivity and openness. The third floor includes a quieter salon space that provides a pleasant view and comfortable environment, ideal for intimate gatherings and exhibitions. These interconnected floors jointly create a continuous, flowing visiting route. Visitors may enter the building via the park entrance, walking through different floors before eventually returning to the nature via the exit at the opposite end. The seamless connection between the building and the park pathway symbolizes the ongoing dialogue with the nature.
▼体量与流线分析,Massing and Circulation Analysis

▼轴侧爆炸图及各层示意效果图,Axonometric and Diagrammatic Renderings

结构、空间、表皮与景观Structure, Space, Skin and Landscape
日熹阁的设计旨在尽量减少对场地自然及现状地形的干扰,最大化地利用好周边开阔的廊桥景观,同时营造轻盈的建筑体量感。结构选型、功能布局、空间流线以及立面设计是关键。
The design of the Sunshine Loft minimizes the disruption of nature and the existing terrain of the site, maximizes the spectacular views from the surrounding corridor bridge and create a pleasant, lightweight building volume. Key design factors include structural selection, functional layout, circulations, and facade design.
▼工作模型,Working Models

结构与空间 Structure and Space
整体建筑结构是下部混凝土结构和上部钢结构的组合结构体系。
The building features a composite structural system, comprising a lower concrete section and an upper steel structure.
▼结构示意图型,Structural Diagram

▼架空层平面方案型,Raised Floor Plan Scheme

地面层顺应地势,保留了自然坡道,希望最大化地开放给公众,因而具有较大的公共性需求。为了确保空间的开阔性,设计通过三根立柱支撑,形成了一个大跨度的开放空间。由于首层层高相对较低且内部空间较为扁平,为了避免压抑感,设计摒弃了传统框架结构,选用了大跨度的预应力拱板与边框梁的结构系统,拱板的上凸形态不仅缓解了压迫感,还形成了一个独特的顶部空间,丰富了视觉体验。底层的架空设计极大地增强了建筑的通透性,使日熹阁在视觉上呈现出轻盈悬浮的姿态。同时,这一设计优化了空气流通,将自然通风融入建筑之中。底层的休息平台与架空层相结合,不仅为公众提供了舒适的停留空间,还提升了使用者的热舒适性,为场地营造出一个开放、宜人的公共环境。
▼大跨度拱板施工现场,Construction Site of Large-Span Arch Slabse

The ground floor follows the terrain and retains the natural slope. To maximize openness to the general public and ensure the openness for public uses, three supporting columns are planned to create a large-span open space. Moreover, a large-span prestressed arch plate and frame beam system is adopted to replace the traditional frame structure, avoiding the sense of oppression brought by the relatively low height and flat layout of the first floor. The convex of the arch plate alleviates of the sense of oppression while creating a distinctive top space that enriches people’s visual experience. The elevated ground floor greatly enhances the building’s transparency, giving the Sunshine Loft an airy, floating appearance. It also improves air circulation and brings natural ventilation into the building. The combination of the resting platform and the elevated level creates comfortable public spaces and enhances thermal comfort, fostering an open and inviting environment.
▼地面层公共空间实景场,The Ground Floor Public Space

地面层的三个混凝土立柱顺延至首层,成为三个V形钢结构组合柱,这不仅有效支撑了上层结构,还为首层和二层的半透明立面提供了良好的结构基础和视觉机会。
The three concrete columns on the ground floor extend to the first floor, forming three V-shaped composite steel columns. This configuration effectively supports the upper structure while offering a solid foundation and great viewing opportunities for the semi-transparent facades of the first and second floors.
▼方案剖面图,Scheme Section

首层出入口的公共空间与公园步道联通,内部空间受限于规划设计条件的面积要求,仅设置了可闭合的阅读空间和开放的咖啡厅,具有次级公共性,起始设计中便考虑本层作为行人休憩处,台基状的室内空间即满足停留座憩的需求,也与一层的拱板在结构形势上暗合。另一方面该层的公共性也要求内部尽量不落柱,而地面层拱板结构也不适合承托立柱,两者在需求上统一。
The public space at the entrance of the first floor connects seamlessly with the park pathway. Due to limited floor area allowed in planning permit, the interior space includes only a closable reading area and an open coffee shop, with secondary public character. Initially this floor has been planned as a pedestrian resting area. The platform-shaped indoor space not only accommodates such resting needs, but also aligns with the arched structural form of the first floor. In fact, column-free space is preferred on this floor to ensure public uses, and supporting columns do not fit the arch plate structure on the ground floor. So the current solution is ideal to meet both demands.
▼一层公共区域实景,First Floor Public Space

▼V形组合柱实景,V-shaped composite columns

二层活动空间相对私密,也因面积要求,未占满整个二层,因此夹层采用从屋顶钢结构梁下吊挂方式成为合理选择,达到了空间需求与结构合理性之间的统一。空间设置了沙龙与展览区,通过大面积玻璃窗,访客可以眺望对岸标志性的虹桥,打造独特的景观体验。同时,二层的层高变化与一层形成对比,创造了不同的空间感受,为建筑增添了更多的层次感。
On the second floor, the activity space is relatively private and does not occupy the entire floor due to area limitation. Consequently, a hanging system from the steel roof beams becomes a practical solution for the mezzanine, as it can strike a balance between spatial needs and structural integrity. This space includes a salon and an exhibition area, offering a unique, distant view of the iconic Hongqiao Bridge across the water through the extensive glazed facade. The height variation on the first and second floors enriches spatial experience in the building.
▼二层展览、沙龙空间,Second Floor Exhibition and Salon Space

屋顶空间设计为全开放视野,访客可全方位无死角地环视周围景色,尽览公园及远山的自然风光,为整体空间体验增添一份开阔与自由的感受。
The roof space is designed fully open with a panoramic view of the surrounding scenery, including the park and distant mountains. It adds certain open and free air into the overall spatial experience.
▼屋顶层可环视日熹阁周围景色,Panoramic View of the Surrounding Scenery of Sunshine Loft from the Rooftop

灰空间:立面厚度 Grey Space: Façade Depth
日熹阁的外立面并非传统意义上的封闭立面,而是一个开放的“空间装置”。其空间与“神秘面纱”共同形成了“灰空间”。金属板表皮采用穿孔曲折板的形式,可以让立面有似一层轻盈通透的薄纱:其折板状的设计本身具有良好的受力性能,可以减少次级龙骨的使用,而A与B两种不同曲度折板的组合也使得整体立面轻柔婉约而富有变化,有如自然的飘逸随性。这种表皮的设计不仅赋予建筑轻透的视觉效果,还通过双向的视线连接,模糊了室内外空间的界限,营造出宁静且诗意的氛围。
Instead of a traditional enclosed solution, the facade of the Sunshine Loft features an open “spatial installation”. Its space, together with a “mysterious veil”, creates a “grey space”. Lightweight metal perforated plates are used in the form of perforated, folded panels, creating a façade that resembles a delicate, translucent veil. The folded design itself has excellent structural performance, reducing the need for secondary framing. The combination of two different curvatures, A and B, gives the overall façade a soft, graceful appearance with dynamic variation, much like the natural flow of a gentle breeze. In doing so, the building imparts a light and transparent visual effect, blurring the boundaries between indoor and outdoor spaces through bidirectional visual connections and fostering a serene and poetic ambiance.
▼金属穿孔板表皮构造,Construction of Lightweight Metal Perforated Plates


建筑的立体表皮与地面层的开放共同创造了丰富的灰空间与视觉层次,巧妙地模糊了内外界限。从建筑内部向外投射出流动的光影,光线在金属穿孔板的表面上反射,形成细腻的变化与动态的空间体验。而从外部望去,建筑又恰如其分地融入周围自然景观,表现出一种低调却独特的现代感。这种设计通过流动的表皮和深浅交替的空间结构,不仅让建筑与环境展开对话,也在视觉上创造了层叠的景深,强化了空间的流动感与互动性。与此同时,穿孔板的设计有助于调节建筑内部的热量与光线,减少直射阳光对室内空间的影响,提升建筑的气候适应性。通过有效的遮阳与通风,建筑能够在炎热的夏季保持凉爽,确保空间的舒适性与可持续性。
The three-dimensional skin of the building, along with the openness of the ground floor, generates rich grey spaces and visual layers that subtly blur the line between interior and exterior. Light and shadow flow outward from within, reflecting off the surface of the perforated metal plates and creating a delicate and dynamic spatial experience. Viewed from the outside, the building seamlessly integrates with the surrounding natural landscape, presenting a low-profile yet distinctive sense of modernity. This design, characterized by flowing skin and varied spatial depths, not only encourages interaction of the building with its surroundings but also creates visual layers that enhance both fluidity and connectivity within the space. Additionally, the use of the perforated plates helps regulate heat and light within the building, reducing the impact of direct sunlight indoors and enhancing the building’s climate adaptability. Effective shading and ventilation keep the interiors cool during hot summers, ensuring comfort and sustainability.
▼半透明立面与首层的V形柱,Translucent Facade and V-shaped Columns on the First Floor

▼金属穿孔板幕墙立面细节,Details of Lightweight Metal Perforated Plates

▼立面幕墙投射的光影,The Light and Shadow Cast Through the Curtain Wall

小结 Summary
日熹阁在圆形场地的限制下,建筑通过功能叠加的方式巧妙布局,将不同的功能区域有效地组合。由于结构和材料的差异,各层的层高有所变化,既改变了每层的视觉效果,也带来了独特的景观视野。这种设计不仅增强了空间的层次感和多样性,还在有限的圆形场地中展现了建筑的独特韵味和美学体验。设计试图在有限的场地上充分利用四维时空,通过“建筑散步”(Promenade Architecturale)的立意,让建筑内部的空间顺应自然景观,在不同高度及功能之间发生交替、切换和变化,为人们提供了丰富的视觉体验与空间探索感。
Constrained by the circular site, the Sunshine Loft effectively integrates functional areas through tactful stacking of functions. The variations in structure and materials lead to differing floor heights, which not only alters the visual effect of each level but also provide unique views of the surrounding landscape. This design approach not only enhances sense of hierarchy and diversity within the space, but also highlights the building’s distinct charm and aesthetic appeal within the limited circular framework. It seeks to fully practice the concepts of “Four-Dimensional Space-Time” and “Promenade Architecturale” within the confined site, and by harmonizing the interior spaces with the natural landscape and allowing for their transitions and changes between varying heights and functions, ultimately offer a rich visual experience and a sense of spatial exploration.
▼十一假期的日熹阁,Sunshine Loft during the National Day Holiday

▼十一假期的日熹阁,Sunshine Loft during the National Day Holiday

月在庭 Moon Pavilion
背景与挑战 Background and Challenges
月在庭项目占地约3700平米,原场地为BMX自由式运动场用地,后政府根据公园内整体文化与体育功能差异配置的原则调整为对公众24小时开放、建筑面积300平米的艺术驿站,结合了小型艺术展示空间、咖啡茶室和简易驿站的便利功能。
The Moon Pavilion is planned on a 3,700 m2 site which was previously planed for BMX freestyle sports field. Later the government decided to redevelop the sports field into a 300 m2 around-the-clock art pavilion to align with the park’s need for differentiated cultural and sports facilities. The Pavilion seamlessly integrates compact art exhibition spaces, coffee and tea rooms, and basic postal station facilities.
▼场地原状高差示意图,Site Elevation Difference Diagram

▼设计灵感来源于诶舍尔的“梯城”:连接与体验,Design Inspiration from “Ladder City”and Lingering Garden

月在庭有着典型的岭南荔枝林坡地条件,在便利的园路和滨水栈道之间,背山面水。如何利用现有坡地,又要串联起不同功能空间,又能极大化把场边周边各角度的景色尽收眼底,还要最大化地保留坡地的荔枝林,是我们设计的出发点和初衷。
The site features sloping terrain that is typical for Lingnan lychee forests. It is nestled between accessible garden pathways and waterfront boardwalks, with mountains in the background and water in the foreground. The primary design objectives are to maximize the use of the existing slopes while preserving the lychee forest, and to connect the various functional spaces while offering panoramic views of the surrounding landscape.
▼体块生成过程,Building Volume Generation Process

▼功能流线,Functional Circulation

景与观的流动性 Flowing Views and Viewing
相比于日熹阁极限的圆形场地,月在庭的场地相对宽松、坡向自然,荔枝树茂密,湖面与远山的视野开阔。方案尝试借鉴岭南园林游廊的理念和组织手法,根据场地高差及林木疏密程度,设计了连续多条的环廊空间,贯通场地不同标高层面,并自然形成了内向的坡地静谧庭院和临湖自然雨水花园庭院,在关键节点处还设置了观景平台,不仅提供休憩空间,还与对岸的虹桥景观相呼应,营造出多层次的视野观感。
共同组合成一个立体的“交叉路径花园”。
In contrast to the confined circular site of the Sunshine Loft, the Moon Pavilion site features a more expansive and naturally sloping terrain, dotted with dense lychee trees and offering sweeping views of the lake and distant mountains. The design is inspired by the concepts and organizational techniques of Lingnan garden corridors. By taking the site’s elevation changes and tree density into account, a series of interconnected circular corridors were created to link the different levels. This layout naturally forms quiet courtyards that slope inward, as well as rainwater gardens facing the lake. Key nodes in the design feature viewing platforms that serve as resting areas while echoing the Hongqiao Bridge across the water, providing a multi-layered visual experience. Together, these elements form a three-dimensional “garden of intersecting paths”.
▼地面层平面方案,Ground Floor Plan Scheme

▼剖面方案,Section Scheme

漫步的流线,像是书卷长轴, 顺应着标高徐徐展开,通过廊道、坡道台阶和平台的上下串联或并联,与咖啡、展览等功能空间相遇,与自然相互借景,构成了高低错落、移步易景的循环路径,营造出“观”的动感和漫步体验;而廊道内的窗洞设计, 运用了借景、对景、框景等手法,将不同层次的“景”——植入的特色树木及山石等元素的庭院及远近的自然景观,引入室内,制造了“观”的戏剧性和立体感, 形成不同视角的层次感和深度感,既丰富了空间层次感,也增添了趣味性。
The walking routes gradually extend along the elevation, resembling the long axis of a scroll. Connected via corridors, ramps, steps, and platforms, these paths lead to functional spaces like cafes and exhibition areas, all while integrating natural scenery to create a seamless transition through varying elevations and vistas. This dynamic configuration provides an evolving “viewing” and wandering experience. The corridors feature window openings, employing techniques such as “borrowed scenery”, contrasting views, and framed vistas. These elements introduce layers of visual complexity, such as featured trees, stones, and distant landscapes, enriching the spatial experience. This intricate approach not only enhances the experience of “viewing” but also deepens the spatial hierarchy and enjoyment.
▼鸟瞰实景,廊道建筑体块相互错落,Aerial View of the Interwoven Masses of Corridor Building Blocks

▼二层平台空间实景,Second Floor Platform Space

▼“内”坡地庭院,Inner Sloped Courtyard

▼“外”临湖自然雨水花园庭院,External Lakeside Rain Garden

这个“交叉路径的花园” 即是游径、又是建筑、还是园林。用传统园林的手法,将体验的时空线“无限”延长; 而建筑本身则以水平及垂直向简洁的体量组合,静而不宣地展示给外部的自然环境. 既是“交叉路径的花园”,也是一个没有立面的建筑.
This “garden of intersecting paths” serves as both a walking path and an architectural feature, extending the experiential timeline through traditional gardening techniques. The building, devoid of a distinct façade, presents a simple, understated composition of horizontal and vertical volumes, blending harmoniously with the surrounding nature.
▼一层平台与主庭院,First Floor Platform and Main Courtyard


▼墙廊空间,Wall Corridor Space


▼月在庭中的框景,Framed View in the Moon Pavilion


清水混凝土 Fair-Faced Concrete
如何通过材料与结构的可能性去营造空间的纯粹感和流线的连续性,是本设计的关键。经过多轮结构选型、材料与供应商的比选,还包括分段预制混凝土拼接等方案,最终选定了一次性浇筑的清水混凝土。这一材料以其自然质感与独特肌理,与周围岭南荔枝林的景观和谐融合,展现了建筑对质朴与细腻之美的追求。设计达到了“四两拨千斤”的效果——既保留了建筑的简洁质朴,又在有限空间中创造了极具表现力和层次感的视觉效果。
清水混凝土的制作工艺要求极高——通过精细打样、现场放样和模板拼接,木纹与光面两种质感组合的清水混凝土成为建筑的主形体,同时兼具结构承重、空间分割和饰面效果,实现“一步到位”的目标。支模浇筑时,错台和垂直度的偏差需严格控制在3mm以内,力求一次浇筑完成,减少后期修复工作,并适当进行表面打磨以确保效果完美。为避免色差问题,使用了特制的保护剂,并严格控制表面无气泡。
A core principle of this design is to create a sense of purity and continuity through the innovative use of materials and structures. After thorough evaluations of structural options, materials, and suppliers, as well as testing segmented precast concrete splicing schemes, the decision was made to use monolithic fair-faced concrete. This material, with its natural texture, seamlessly integrates with the surrounding Lingnan lychee forest landscape, reflecting the architecture’s pursuit of simplicity and refined beauty. The design achieves a harmonious balance between simplicity and complex visual expression, effectively creating a rich, layered aesthetic within limited space.
Producing fair-faced concrete requires extremely high standards. Through meticulous sampling, on-site layout, and template splicing, the combination of wood grain- and smooth-surfaced concrete became the building’s defining feature, serving structural, spatial, and decorative functions at one go. Strict control is necessary during formwork pouring to minimize misalignment and ensure verticality within a 3mm margin, reducing the need for later repairs and polishing the surface to ensure a flawless effect. A special protective agent was used to prevent color discrepancies, and the surface was meticulously controlled to avoid any bubbles.
▼选材、打样现场,Material Selection and Mock-up Site

施工过程中,木模的挑选与使用是关键技术难点:由于不同木材的吸水性与纹路存在差异,需在现场进行1:1样板制作。精准的放线与定位确保木模板自然错缝,特别是在平面转角及墙面与天花交接处,必须保证整板排列整齐、对缝精确,以确保整体效果的一致性。此外,清水混凝土结合木纹与光滑面的表面处理方式,创造出丰富的质感对比,进一步提升建筑的细腻表达。
The selection and use of wooden molds in construction presented significant technical challenges. On-site production of 1:1 mock-up was necessary to account for variations in water absorption and grain patterns. The precise layout and positioning ensured that natural staggered patterns appeared at plane corners and wall-to-ceiling junctions, with neat arrangements and exact joints to maintain consistency. Additionally, the surface treatment of fair-faced concrete, combining wood grain with smooth finishes, provides a rich textural contrast that enhances the building’s refined representation.
▼室内线性藏灯方案,Interior Concealed Lighting Scheme

为保证一次性浇筑的效果,所有机电点位在支模前均需提前协调并预留好。施工过程中,每个环节都需进行高度专业化的修复与保护工作,层层控制以保证现场施工的完成度。这一切精益求精的工艺,不仅赋予建筑独特的美感,也确保了月在庭在结构与材质上的高质量呈现。最终,这种兼具巧妙与力量的设计成功实现了建筑目标,展现出对空间、材料与工艺的深刻理解与创新应用。
To ensure a successful single pour, all mechanical and electrical points must be carefully coordinated and reserved in advance. Each stage of construction requires specialized repair and protection work, with stringent control measures to ensure meticulous on-site execution. This high level of craftsmanship not only imparts a unique beauty to the building but also guarantees the high-quality presentation of the Moon Pavilion’s structure and materials. Ultimately, the innovative design, combining craftsmanship and strength, achieves its architectural goals, demonstrating a deep understanding and creative application of space, materials, and technique.
▼室内线性灯光实景,Interior Linear Lighting


小结 Summary
远眺那条热情似火的红飘带,“月在庭”却以灰色的沉静淡然矗立其中,仿佛在城市的喧嚣与活力中提供了一处安宁的栖息地。作为一个艺术驿站,不仅仅是一个建筑空间,它承载着对自然与人文之间微妙关系的探索。设计灵感源自岭南地区丰富的自然景观和文化底蕴,以及对当代城市生活中人们内心渴望宁静的感知。建筑布局的流动性、材料的质朴感,希望“月在庭”能够成为繁华城市深处的一片净土,如诗中所述,凝聚自然之美与人文之境。在这里,建筑与环境融为一体,展现出一种宁静、内敛的力量。
Amidst the vibrant red ribbon in the distance, the Moon Pavilion stands calmly in grey, offering a tranquil retreat in the bustling city. As an art station, it represents not only an architectural space, but also an exploration of the subtle relationship between nature and culture. Drawing inspiration from the lush landscapes and rich cultural heritage of the Lingnan region, as well as the urban dwellers’ yearnings for inner peace, the design emphasizes the simplicity of materials and the fluidity of the architectural layout. The Moon Pavilion aspires to be a sanctuary in the heart of the city, showcasing the beauty of nature and culture as described in the poem above. Here, architecture and environment become one in calm, reserved strength.
▼月在庭鸟瞰实景景,Aerial View of Moon Pavilion

设计的南方性、公共性与当代性 Southern, Publicness and Contemporary Design Attributes
“日熹阁”与“月在庭”的设计在自然与建筑之间尝试去寻找一种动态的平衡。两座建筑通过简洁的体量与流动的视觉、身心体验,探索了人、空间与自然之间的全新互动方式。设计将南方特有的“轻”与开放的“融”结合在一起,不仅提供了开放的驿站,更成为人与人、人与自然交汇的场所。低调的灰色、简洁有进深感的立面与周围环境和谐共生,始终让色彩热烈的虹桥成为突出的视觉焦点。
▼日熹阁(右)与月在庭(左)模型,Model of Sunshine Loft (Right) and Moon Pavilion (Left) Model

The designs of both the Sunshine Loft and the Moon Pavilion seek to achieve a dynamic balance between nature and architecture. These two structures explore new ways of interaction between people, space, and nature through their concise volumes and the fluid visual and physical experiences they offer. By blending the unique “lightness” of southern China with an open “fusion”, the design provides an open station that also serves as a meeting point where people can connect with each other and with nature. The subtle gray tones and simple yet profound facades harmonize with the surrounding environment, ensuring that the vibrant Hongqiao Bridge remains the visual focal point.
▼日熹阁鸟瞰视角,Aerial View of Sunshine Loft

▼日熹阁鸟瞰视角,Aerial View of Sunshine Loft

“一方一圆”、“一放一收”、“一刚一柔” 互补差异化的空间张力, 让造型稳重的“日熹阁”与形体流动的“月在庭”在公园里形成鲜明的对比,又相互呼应。呈现出开放与包容、收纳与引导的双重特质。流动的空间、立体的园林、举重若轻的存在,体现了设计中的轻盈感与内敛之美,吸引着人们穿梭于交错的路径中,感受自然的独特魅力,呼应了这片土地的历史与未来。
The complementary spatial dynamics of “square v.s. circle”, “restraint v.s. release”, and “strength v.s. gentleness” create a striking contrast and resonance between the stable Sunshine Loft and the fluid Moon Pavilion. This design embodies the dual characteristics of openness and inclusivity, as well as containment and guidance. The flowing spaces, three-dimensional gardens, and effortless strength convey a sense of lightness and understated beauty, inviting people to explore the intertwining paths and experience the unique allure of nature. This design reflects both the history and the future of the land.
▼第二届深圳·光明国际公共艺术季「在·自然」公共艺术作品展,Shenzhen Guangming International Public Art Season II: [ In Nature ]

▼沈烈毅作品,Artwork by Artist Shen Lieyi




后记 Afterword
第二届深圳光明国际公共艺术季「在·自然」公共艺术作品展于2024年11月在日熹阁与月在庭举行。在这一展览中,策展人沈少民和艺术家管怀宾、沈烈毅的作品与南沙原创NODE这两座建筑的空间完美融合。日熹阁与月在庭不仅成为了公共艺术展示的场所,也通过建筑与艺术的对话,进一步深化了人与自然、建筑与环境之间的联系,赋予了空间新的生命力与表现力。在日月交替的时光中,建筑与艺术作品相得益彰,共同创造了一个充满诗意与思考的艺术体验空间。
The “In Nature” Public Art Exhibition of Shenzhen Guangming International Public Art Season II was unveiled at the Sunshine Loft and Moon Pavilion in November 2024. The works displayed, from the curator Shen Shaomin and artists Guan Huaibin and Shen Lieyi, were seamlessly integrated into the architectural spaces of these two buildings crafted by NODE. While serving as venues for public art, the Sunshine Loft and Moon Pavilion strengthen the connection between humans and nature, as well as between architecture and the environment, through a dialogue between architecture and art. This interplay breathes new vitality and expressiveness into the space. In the interplay of sun and moon, architecture and art complement each other, creating a poetic and contemplative environment for the art experience.
▼日熹阁、月在庭区位首层总平面图,Site and Ground Floor Plan: Sunshine Loft and Moon Pavilion

▼日熹阁地面层平面图,Sunshine Loft Ground Floor Plan

▼日熹阁一、二层平面图,Sunshine Loft First and Second Floor Plan

▼日熹阁屋顶平面图,Sunshine Loft Roof Plan

▼日熹阁剖面图,Sunshine Loft Section 1-1 & Section 2-2

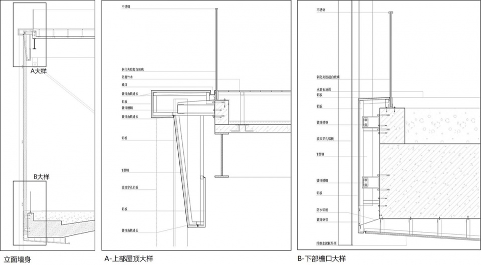
▼日熹阁墙身结构大样图,Wall Structure Detail of Sunshine Loft

▼月在庭地面层平面图,Moon Pavilion Ground Floor Plan

▼月在庭地下层平面图,Moon Pavilion Underground Floor Plan

▼月在庭屋顶层平面图,Moon Pavilion Roof Plan

▼月在庭剖面图,Moon Pavilion Section


▼月在庭墙身结构大样及其藏灯细节大样图,Detail of Wall Structure and Concealed Lighting in Moon Pavilion

项目信息
日熹阁:
设计时间(起迄年月):2022年5月-2023年5月
建设时间(起迄年月):2023年9月-2024年10月
月在庭:
设计时间(起迄年月):2022年5月-2023年5月
建设时间(起迄年月):2023年8月-2024年5月
日熹阁:
用地面积(平方米):664
建筑面积(平方米):533
月在庭:
用地面积(平方米):3678
建筑面积(平方米):300
设计单位(建筑、景观及室内设计):南沙原创建筑设计工作室
设计单位联系方式(网站或邮箱):http://www.nodeoffice.com、node@nodeoffice.com
主创建筑师:刘珩
设计团队完整名单:
日熹阁:刘珩、黄杰斌、史华熙、吴义娟、庄蔚航、李帅
月在庭:刘珩、黄杰斌、陈彦霖、孙嘉奥、吴义娟、庄蔚航、黄国良
结构顾问:和作结构建筑研究所 张准、蔡研明、许悦
建筑、景观、室内顾问:陈振华、陈锋、张再明
施工图设计:武汉理工大设计研究院
室内施工图设计:深圳三图建设集团有限公司
代建单位:华侨城光明(深圳)投资有限公司
施工方:中国中铁十局集团有限公司
【月在庭】清水混凝土施工单位:中建一局集团华南建设有限公司
项目建设方:深圳市光明区城市管理和综合执法局
摄影师:张超(张超摄影工作室)、胡康榆(直角建筑摄影)
Project Information
Project: Sunshine Loft and Moon Pavilion
Type: Architecture (primary), Interior, Landscape
Location: Hongqiao Park, Guangming District, Shenzhen
Status: Completed
Sunshine Loft:
Design: May 2022 – May 2023
Construction: Sep 2023 – Oct 2024
Moon Pavilion:
Design: May 2022 – May 2023
Construction: Aug 2023 – May 2024
Sunshine Loft:
Site: 664 m2
GFA: 533 m2
Moon Pavilion:
Site: 3,678 m2
GFA: 300 m2
Design (Architecture, Landscape, and Interior): NODE Architecture & Urbanism
http://www.nodeoffice.com、node@nodeoffice.com
Contact Information (website or email): http://www.nodeoffice.com, node@nodeoffice.com
Lead Architect: Doreen Heng Liu
Team:
Sunshine Loft: Doreen Heng Liu, Huang Jiebin, Shi Huaxi, Wu Yijuan, Zhuang Weihang, Li Shuai
Moon Pavilion: Doreen Heng Liu, Huang Jiebin, Chen Yanlin, Sun Jiaao, Wu Yijuan, Zhuang Weihang, Huang Guoliang
Structure Consultants: Zhang Zhun, Cai Yanming, and Xu Yue from AND Office
Architecture, Landscape, and Interior Consultants: Chen Zhenhua, Chen Feng, Zhang Zaiming
Construction Documents: WHUT Design & Research Institute Co., Ltd.
Interior Construction Documents: Shenzhen Santu Construction Group Co., Ltd.
Construction Agent: OCT Guangming (Shenzhen) Investment Co., Ltd.
Construction Contractor: China Railway No. 10 Engineering Group Co., Ltd.
Moon Pavilion Fair-Faced Concrete Construction Contractor: Huanan Construction Group Co., Ltd.
Client: Shenzhen Guangming District Urban Management and Comprehensive Law Enforcement Bureau
Photographers: Zhang Chao (Zhang Chao Photography Studio), Hu Kangyu (Right Angle Image)














