Moment买手店,南京 / 衡建筑
Part 1
藏在古建群中
Hidden in an Ancient Buildings
Moment服装店位于南京熙南里。这里曾是老城南最繁华的地区。以评事街及众多巷道为骨架的街区内分布着大量二层老式木房,不乏有清代民居。Moment所在建筑东南紧邻着有“九十九间半”之称的甘熙故居,这座建筑群是国内现存规模最大的城市古民居之一。以其为核心,整个区域被规划为历史文化街区,包括店铺所在的建筑在内,周边均为统一的仿古风格。然而,这种千篇一律的建筑设计对商铺的改造带来了诸多限制。
Moment boutique store is located in Cinnalane, Nanjing. This area was once the most bustling part of the old city south. A large number of two-story old wooden houses are distributed in the neighborhood crisscrossed by Pingshi Street and numerous alleys, and there is no shortage of Qing Dynasty residences. To the southeast of Moment boutique store is the Ganxi Mansion, one of the largest surviving urban residential complexes in China, known as the “Ninety-nine and a half rooms”. With this architectural complex as the core, the entire area is planned as a historical and cultural district, and all surrounding buildings, including the one where the store is located, are in a unified antique style. However, this uniform architectural design brings many restrictions to the renovation of the shop.
▼改造后立面,Facade After Renovation

更为棘手的问题是,Moment承租的场地几乎完全位于建筑的二层。相较于底层商铺,其天然存在着客流上的劣势。如何在解决这一难题的同时,为店铺打造既融入古朴环境又独具特色的品牌形象,成为设计的核心出发点。
An even more challenging issue is that the space leased by Moment is almost entirely on the second floor of the building. Compared to ground-floor shops, it naturally has a disadvantage in terms of customer flow. How to solve this problem while creating a brand image for the store that both blends into the ancient environment and has its own unique features has become the core starting point of the design.
▼立面,facade

Part2
“老屋”新生New Life for the “Old House”
Moment所在建筑的一层商铺被分割出租,其中大部分区域被消防楼梯占用,剩余的可用空间宽度仅为3.5米。相比室内的局促,室外空间更具亮点。被建筑藏于身后的庭院内,高耸的枣树枝繁叶茂,浓密的树影斑驳洒落在地面上,隐于熙攘街巷的景致静谧而美好。因此我们建议业主,与其将一层仅有的狭小空间设计成局促的售卖区,不如将其开放为室外空间,形成一条连接内院与街道的过廊。内院的景观直接呈现在街面上,吸引着行人驻足徘徊。步入其中,正如《桃花源记》所描述的那样:“初极狭,才通人,复行数十步,豁然开朗。”这使得狭小的店面获得更多视觉延伸,也为顾客带来如同进入“世外桃源”的体验。
▼一层展示过道分析图,First Floor Display Aisle Diagrams

The first floor of the building where Moment is located is divided into rented spaces, most of which are occupied by fire escape stairs, leaving only a width of 3.5 meters for the remaining usable space. Compared to the cramped interior, the outdoor space is more attractive. Hidden behind the buildings, the courtyard is home to towering jujube trees with lush foliage, and dense shadows dappled on the ground, creating a quiet and beautiful scene hidden from the bustling streets. Therefore, we suggested to the owner that instead of designing the limited narrow space on the first floor into a cramped selling area, it would be better to open it up as an outdoor space, forming a corridor connecting the inner courtyard with the street. The landscape of the inner courtyard is directly presented on the street, attracting passers-by to stop and linger. Stepping into it is like the description in “The Peach Blossom Spring”: “At first, it was very narrow, just enough for one person to pass, but after walking dozens of steps, it suddenly opened up.” This gives the narrow store more visual extension and also brings customers an experience as if they are entering a “paradise on earth”.
▼正立面,Facade



▼一层展示过道,First Floor Display Aisle

针对仿古建筑的商铺改造这一主题,需要为立面找寻到了一种既能保留老屋风貌,又能突出商铺品牌形象的介入方式。设计采用了一种类似欧洲古建筑修复与再利用的策略,通过现代化的窗框和开窗方式,为建筑带来新的生命与视野。窗构件材料选择了耐候钢,其表面的斑驳锈迹蕴含着一种时间感,与立面青砖的调性隐隐契合。同时,醒目的颜色和工业制品的平整度都与砖墙有所区分,能清晰地展现立面的新旧关系。二层正立面的窗洞维持在原有的位置,其尺寸被扩大成落地窗使室内更多地被看见。西南面山墙上的窗装饰有飞檐,通过钢板的织补将转角两侧的窗形成一个完整的、虚实相间的角窗。
▼窗系统分析图,Window System Analysis Diagram

For the theme of renovating shops in antique buildings, it is necessary to find a way to intervene on the facade that can both preserve the style of the old house and highlight the brand image of the shop. The design adopts a strategy similar to the restoration and reuse of ancient European buildings, bringing new life and vision to the building through modern window frames and opening methods. The window components are made of weathering steel, whose mottled rust contains a sense of time, subtly matching the tone of the blue bricks on the facade. At the same time, the eye-catching color and the flatness of the industrial products are distinct from the brick wall, clearly showing the new and old relationship on the facade. The window opening on the main facade of the second floor is maintained in its original position, and its size is enlarged to a floor-to-ceiling window, allowing more of the interior to be seen. The window on the southwest gable wall is decorated with eaves, and the windows on both sides are formed into a complete, interlaced corner window through the weaving of steel.
▼立面开窗,Bay Window in the Facade


在庭院内部,两侧建筑立面延续了街道一侧的设计语言,且由于不再受街道连续性限制,立面得以有了更大的改造自由度。因此,介入构件的尺度从窗扩大到立面,将原有的“古建筑”内部全部掏空,嵌合进一件金属雕塑。消防楼梯疏散口的外墙被整个移除,改作商店的主入口。与走廊相连,建筑底层呈现出一个完整的大跨度开口。橱窗穿插于正中将开口一分为二。
Inside the courtyard, the facades on both sides of the building continue the design language of the street side, and since they are no longer restricted by the continuity of the street, the facades have greater freedom for transformation. Therefore, the scale of the intervention components has expanded from windows to facades, completely hollowing out the original”ancient building”and embedding a metal sculpture inside. The outer wall of the fire escape stairwell has been completely removed and replaced with the main entrance of the store. Connected to the corridor, the ground floor of the building presents a complete large-span opening. The display window is interspersed in the middle, dividing the opening into two.
▼主入口,Main Entrance



靠近入口一侧做了斜切偏转,使楼梯得以更多展示来引导顾客顺畅地前往二层,呈现出一种更加亲切、友好的商业姿态。在底层的大跨度洞口上方设置了一个水平延伸的长雨棚。除提供室外避雨功能外,它形成的阴影为体量之间的立面互动增添了一层朦胧而柔和的美感。两根角钢牵拉住雨棚的边缘,仿佛它们承担起主要的结构功能。耐候钢板带来的重力感与角钢的纤细形成了反直觉的对比,令雨棚似乎漂浮于空中,使整体显得既活泼又轻盈。
The side near the entrance is obliquely shifted to allow the stairs to be more displayed, guiding customers smoothly to the second floor, presenting a more friendly and welcoming commercial attitude. A horizontally extended long canopy is set above the large-span opening at the ground floor. In addition to providing outdoor shelter from the rain, the shadow it forms adds a hazy and soft aesthetic to the interaction between the facades. Two corner steels pull the edges of the canopy, as if they bear the main structural function. The gravity of the weathering steel and the slenderness of the corner steel form an intuitive contrast, making the canopy seem to float in the air, making the whole appear lively and light.
▼一层展示区,Ground Floor Exhibition Area

Part3
私域会客厅与游廊
Private Parlor and Corridor
买手店是与主理人个体属性紧密相连的商业模式,主理人的独特审美品味是吸引顾客的核心。店主与顾客间的关系更加紧密,从传统的销售场景转变为基于信任与品味的互动交流。为核心社群打造一个专属的活动场域,一个能感受到归属感与独特体验的社交与文化空间,是非常重要的。为此,在空间中置入了一个“亭”的空间。
The boutique store is a business model closely connected to the individual attributes of the manager, whose unique aesthetic taste is the core to attract customers. The relationship between the owner and customers is closer, transforming from a traditional sales scene to an interactive exchange based on trust and taste. It is very important to create an exclusive activity field for the core grouping, a social and cultural space where a sense of belonging and unique experience can be felt. Therefore, a”pavilion”space is placed in the space.
▼二层概况,Overview of the First Floor

▼空间置入木盒子,Space Placement Wooden Box



利用坡屋顶带来的高度优势,在平面转角位置盖起一座单坡面木亭,作为业主接待常客友人的休憩区。木亭内部布置如一间茶室,围绕长案设有卡座沙发和几张小椅。木亭正面与背面完全打开,保持了视觉上的通透感。木亭底部由四根矮方柱垫起,整体抬高75公分,由一段悬浮楼梯与地面相连。下方地面采用水洗石,与散落布置的石块共同营造出一个虚构的户外地形。木亭的漂浮细腻与地面的粗粝相对,仿佛它原本不在此处而是从远方流浪而来,只是小作停留。L形转角处放置了一个圆柱体来削弱阳角的尖锐感。其内部分为试衣间和美甲服务区。圆柱体延伸至木亭内部,支撑木亭的山体,与屋顶形成的圆弧交线柔化了空间。木亭与圆柱空间成为空间中最核心的“会客厅”场域,定期邀请核心顾客参与沙龙、分享会或新品试穿会,通过这些互动来增强顾客与品牌之间的黏性。
▼空间分析图,Spatial Analysis

▼小屋轴侧图,Cottage Axonometric

Taking advantage of the height advantage of the sloping roof, a single-slope wooden pavilion is built at the corner of the plane, serving as a rest area for the owner to receive regular customers and friends. The interior of the wooden pavilion is arranged like a tea room, with booth sofas and a few small chairs around a long case. The front and back of the wooden pavilion are completely open, maintaining visual permeability. The bottom of the wooden pavilion is raised by four short square columns, 75 centimeters off the ground, connected to the ground by a suspended staircase. The ground below uses washed stone, together with scattered stones, creating a fictional outdoor terrain. The delicacy of the floating wooden pavilion contrasts with the roughness of the ground, as if it was not originally here but wandered from afar, just making a short stop. A cylindrical body is placed at the L-shaped corner to weaken the sharpness of the right angle. Its interior is divided into a fitting room and a nail service area. The cylindrical body extends to the interior of the wooden pavilion, supporting the mountain of the pavilion, and the arc formed by the roof softens the space. The wooden pavilion and the cylindrical space become the core “Parlor” field in the space, regularly inviting core customers to participate in salons, sharing sessions, or new product trials, enhancing the stickiness between customers and the brand through these interactions.
▼空间置入木盒子,Space Placement Wooden Box


▼木盒子立面,Wooden Box Facade


▼木盒子细节,Wooden box detail

▼木盒子内部布景,Wooden Box Interior Scene


服装陈列同样需要更沉浸的体验。尝试把销售空间转变为一个充满故事性、情感共鸣与体验价值的“展览”。通过引入传统园林中“廊”的概念,为顾客设计了一条流动且叙事感十足的参观动线。服装陈列围绕“会客厅”缓缓展开。与路径对应的天花微缓上翘,其下自然形成了“廊”的空间。天花舒展的弧线为空间带来当代美感,也同时与甘熙故居的屋脊曲线相呼应。天花实际上由吊锁固定在屋顶上,两侧端头各设置了一根纤细的、没有结构功能的立柱。它们在视觉上作为支点顶起板体,使整体仿佛漂浮起来更加轻盈。
Clothing display also requires a more immersive experience. Try to transform the sales space into an “exhibition” full of storytelling, emotional resonance, and experiential value. By introducing the concept of “corridor” from traditional gardens, a flowing and narrative visit route is designed for customers. Clothing display unfolds slowly around the “Parlor”. The ceiling corresponding to the path is slightly raised, naturally forming the space of the”corridor”. The arc of the ceiling brings a contemporary aesthetic to the space and also echoes the ridge curve of the Ganxi Mansion. The ceiling is actually fixed on the roof with hanging locks, with a slender, non-structural column at each end. They visually act as fulcrums to lift the plate, making the whole seem to float and become more light.
▼通道的空间关系,Spatial Relationship of the Passageway


▼盒子与通道,box and passage


▼试衣区,Fitting Area

与传统卖场将服装作为空间唯一主角不同,Moment注入了更多景观元素。沿着“游廊”,由不同形式的窗与镜子构建出一系列“洞口”,宛如相机的取景框,捕捉周围环境的影像将其作为景观引入室内。通过如电影长镜头般的视觉叙事,Moment创造出与人文环境融为一体的氛围。这些景观不仅成为顾客试穿服装时的背景,也赋予空间更多打卡拍照和社交传播的价值。
Unlike traditional sales spaces where clothing is the only protagonist, Moment injects more landscape elements. Along the “corridor”, a series of “hole” are constructed by different forms of windows and mirrors, like camera viewfinders, capturing the surrounding environment’s images and bringing them indoors as landscapes. Through a visual narrative like a movie long shot, Moment creates an atmosphere that integrates with the cultural environment. These landscapes not only serve as a backdrop for customers to try on clothes, but also give the space more value for photo-taking and social communication.
▼陈列区,Display area

▼美甲区,Nail Care Area

▼陈列架细节,Detail of display shelf


入口处的巨大竖向窗面安装了冲孔网板,透过网孔筛入的树影朦胧斑驳。西南角两扇窗之间的墙面上布置了一面镜子,室内反射的影像与窗外景色接续交织在一起,形成了有趣的视错觉。面向绒庄街一侧的两扇落地窗框入了甘熙故居屋顶的延绵景致。作为空间的结尾,出口楼梯处改造了一个户外阳台,水平长窗将外面的树影定格成一幅流动的长卷。游廊将这一系列影像片段串联成一个闭环,将服装店的闲逛体验转化为穿行园林的沉浸式感受。
A large vertical window at the entrance is installed with punching mesh, with the dappled tree shadows sieved through the mesh. A mirror is arranged on the wall between two windows on the southwest corner, with the reflected images inside and the outdoor scenery intertwined, forming an interesting visual illusion. Two floor-to-ceiling windows on the side facing Rongzhuang Street frame the continuous scenery of the Ganxi Mansion’s roof. As the end of the space, the exit staircase is transformed into an outdoor balcony, with a horizontal long window freezing the outside tree shadows into a flowing long scroll. The corridor corridor these image segments into a closed loop, transforming the shopping experience in the clothing store into an immersive feeling of walking through a garden.
▼休息区,Lounge Area


▼区位分析图,Location Analysis Diagram

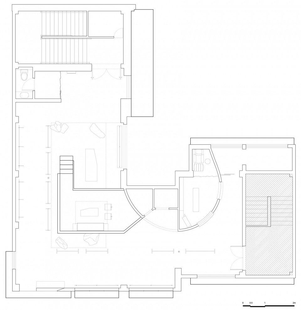
▼平面图,plane

▼剖面图,section view


▼小屋立面展开图,Cottage Elevation Unfolded

Project Name: Moment boutique store
Design Team: Zhang Siyi, Huang Xing, Luo Suhan, Yang Junbo, Zhou Ruizhe
Construction: Nanjing Lishu Construction & Decoration Co.
Address: Nanjing, China
Building Area: 250㎡
Design Period:June 2024-August 2024
Construction:October 2024
Material: Punching Mesh, Washed Stone, Art Paint, Natural Wood Veneer, Weathering Steel
Photography: Howie
Contact Email: modumatelier@163.com














