新疆塔里木大学新校区图信中心 / 中国建筑设计研究院有限公司
塔里木大学图信中心位于新疆阿拉尔市,校园地处塔克拉玛干沙漠边缘,南临塔里木河,是新疆最南的高等学府,具有特殊历史意义及光荣革命传统。当地气候夏季干热、冬季寒冷,太阳辐照强、昼夜温差大,蒸发量大、沙尘暴多,经济发展水平尚不发达。图信中心集电子图书馆、共享办公、工科基础公共教室及实验室等功能于一体,是塔里木大学新校区的重要建筑。设计需在造价低、成本高、周期短的情况下,传承传统建筑智慧,适应南疆气候和当地建设水平,降低运营成本。
▼图信中心整体环境,Overall environment

由此,在应对“文脉”、“气候”、“造价”三大基础条件下,设计团队学习当地传统民居语言并现代转译,采用质朴方正简洁实用的建筑布局、被动式遮阳采光通风与多样化主动调节相结合的设计方法,尊重当地习惯工法及用材,适应南疆气候特征和当地建设水平,设计适应低建设造价与低成本运营,并通过大量计算机模拟调整设计,达到舒适、能源与环境的平衡。
▼图信中心鸟瞰,Bird ‘s-eye view

01延承自然景观
大漠苍茫、戈壁广袤、塔河逶迤、古道无垠、胡杨连绵,这种水平方向延伸的线条是南疆大地景观的艺术特色。在设计中,建筑采用方正规整的建筑布局,简洁实用、灵活可变,并结合适应当地气候特征的结构遮阳构件的设置,让建筑以水平延展的方式,在尺度和气质上与南疆的大沙漠、大戈壁、大山川、大草原和广袤的胡杨树林遥相呼应,展现出水平延伸的形态和特色。
▼地域景观,Regional landscape

▼抽象转译,Abstract translation

▼体块生成,Volume generation

▼图信中心与塔河,Library and Information Center and the Tower River

▼图信中心入口,Library and Information Center entrance

▼遮阳构件与V型柱,Sunshade member and V-shaped column


02借鉴传统智慧
设计团队学习当地民居应对地域气候的传统智慧,将传统元素转化为现代设计手法,在“遮阳”、“通风”、“有遮蔽的露台”、“地下、半地下空间”等方面,适应南疆气候,表达地域风土。
▼抽象转译,Abstract translation

▼通风策略,Ventilation strategy


设计学习传统民居庭院式布局方式,以封闭中庭、庭院来组织图信中心的平面功能,同时开设采光天窗、热压通风井,兼顾自然采光通风、保温节能与排烟防尘,为师生提供了良好的室内外交流共享空间。
▼开敞庭院,Open courtyard

▼配楼中庭,Annex atrium

▼配楼中庭天窗,Skylight in the atrium of the annex

▼主楼中庭顶部,Top of main building atrium

结构一体的外遮阳花格梁,为室内空间及室外连通过渡空间进行夏季遮阳,减少阳光辐射,有效改善相应空间的使用舒适性,并通过软件模拟,量化分析遮阳效果,优化遮阳构件尺寸,形成正向遮阳、垂直遮阳、水平遮阳等多种遮阳形式。
▼遮阳策略,Shading strategy

▼南立面,South elevation

▼主配楼通道,Main wing access

▼主入口平台,Main entrance platform

03低成本高能效
当建筑师的创作场所转移到南疆大漠,生产水平、建设技术、施工水平发生了变化,在有限预算下,设计团队尊重当地习惯工法与用材,选择当地易获取的材料,内外一体化设计,减少二次装修。另一方面,使用常规结构及设备造型,注重结构性表达,实现低成本建造。同时强调建筑保温结构一体化工艺,外墙保温采用匀质保温砌块,保温与主体结构同寿命,减少保温材料的二次更换,有效降低建筑运行周期的建材能源消耗。
▼水平与垂直遮阳结合,Combination of horizontal and vertical shading

▼水平遮阳,Horizontal shade

▼垂直遮阳,Vertical shade

▼遮阳棚架,Shade trellis

▼水平遮阳,Horizontal shade

04性能化设计方法
为实现气候适应性措施的可实施性,通过引入节能计算模拟来实现高能效和舒适度。设计团队对场地气候、风环境等作了大量模拟分析,在自然采光方面,通过对室内各房间的采光分析,研究外遮阳对室内空间的影响,比较分析不同尺寸的室内采光系数,为外遮阳构件尺寸提供数据支撑,实现冬季得热与夏季遮阳的平衡优化。通过对各空间通风等方面模拟,调整设计,改善空间风、光、热等环境,寻找最佳平衡点。
▼遮阳杆件与V型柱,Sunshade rod and V-shaped column

▼遮阳杆件,Sunshade rod

▼采光模拟,Daylighting simulation

▼通风模拟,Ventilation simulation

▼总平面图,General plan

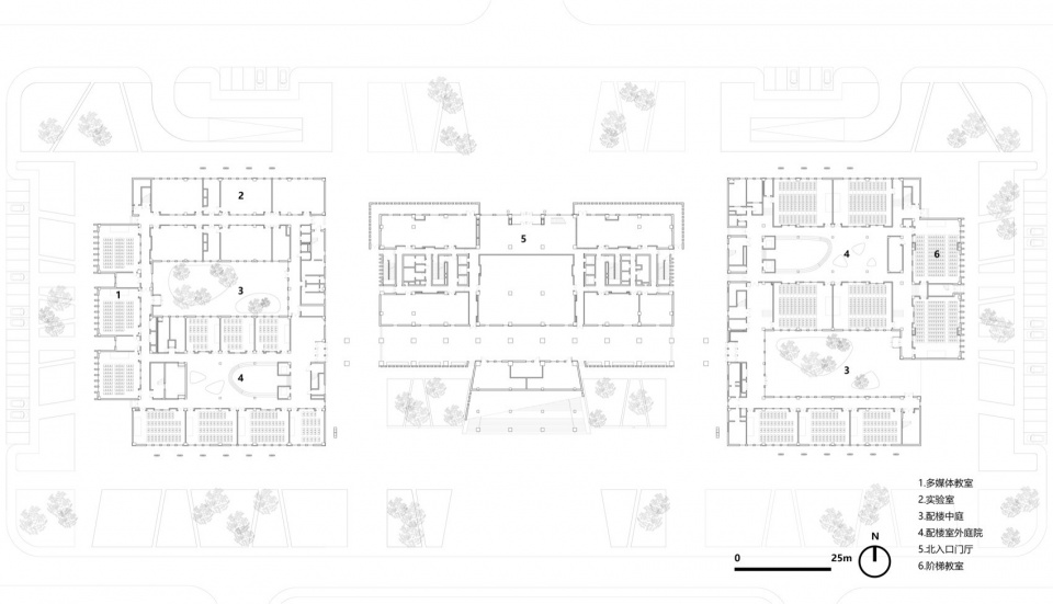
▼首层平面图,Ground floor plan

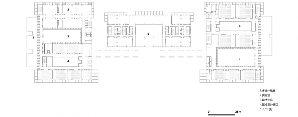
▼二层平面图,First floor plan

▼三层平面图,Second floor plan

▼南立面图,South elevation

▼北立面图,North elevation

▼东立面图,East elevation

▼剖面图,Section

▼剖面图,Section















