Verde Gago住宅,葡萄牙 / Bruno Dias Arquitectura
Verde Gago住宅位于Ansião历史中心,是对一栋旧建的翻新项目。该项目体现了对其历史环境记忆的尊重,同时展现出一种具有创新性的当代风格。在保留场所本质的同时,项目在过去与现在之间建立了对话,而不会削弱在设计和施工阶段所体现的历史身份。
Casa Verde Gago is located in the historic centre of Ansião and is the result of the renovation of an old building. This project has a contemporary feel that respects the memory of its historical context. At the same time, it is capable of reflecting an innovative approach, preserving the essence of the site, while establishing a dialogue between the past and the present, without compromising the historical identity reflected in the choices made during the design and construction phase.
▼住宅概览,overview of the house


Verde Gago这个名字来源于建筑所在街道的名称与外立面选择的颜色的结合。绿色,作为传统葡萄牙房屋色彩的代表,唤起了一种将传统与现代结合的微妙怀旧感。它不仅仅是一种美学选择,更象征着对过去记忆的承载。
▼立面图,elevation

The name Casa Verde Gago comes from the fusion of the name of the street where the building is located and the colour chosen for the façade. Green, which refers to the colour palette of traditional portuguese houses, evokes the subtle nostalgia that combines the traditional with the contemporary. More than just an aesthetic choice, it symbolises the memory of the past.
▼所在街道环境,surroundings


木材作为项目中的突出元素,呼应了传统葡萄牙旧建筑的布局。然而,其使用方式旨在创造一种轻微的视觉不和谐,既脱离了传统的常规,却又不破坏街道的整体和谐感。这种材料的应用,无论在结构还是内部细节上,都为空间带来了亲密与温馨的氛围。
The presence of wood, a prominent element in the project, refers to the traditional layout of old portuguese buildings. However, its use has been designed to create a slight visual dissonance, standing out from the usual tradition, but not breaking with the harmony of the street. This material, both in the structure and in the interior details, gives the space an intimate and cosy feel.
▼木材为空间带来亲密与温馨的氛围,
The presence of wood gives the space an intimate and cosy feel


▼餐厅及厨房,dining area and kitchen



住宅的另一个核心要素是庭院。这个重要的社交空间在功能上进行了重新定义。在原本的酒窖位置,现在被改造成了一个带有水池和极简景观设计的户外空间,为住户营造了更现代且更宜人的环境。
Another essential aspect of Casa Verde Gago is the patio. This important space for socialising has been transformed in terms of its use. Where there used to be a wine cellar, the space has been redefined with the creation of an outdoor space with a water tank and minimalist landscaping, creating a more modern and welcoming environment for the residents.
▼庭院作为住宅的另一个核心要素,Another essential aspect is the patio


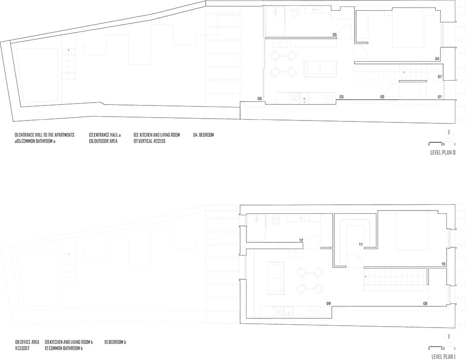
该项目分为两套一居室公寓,每层有一套公寓。每套公寓包括一个卧室、厨房、起居区、浴室,并且在一层还有一个办公室和衣帽间。核心筒是划分和定义两套公寓布局的关键元素。
▼平面图,plan

The project is divided into two one-bedroom apartments, each on one floor. Each apartment consists of a bedroom, kitchen, living area, bathroom and, on Plan Floor 1, an office and closet. The vertical access is the element that delimits and defines the distribution of the apartments.
▼楼梯间,staircase

▼卧室,bedroom


▼卫生间,bathroom



Project: 2023
Construction: 2024
Location: Rua Almirante Gago Coutinho, Ansião
Architecture:
Bruno Dias Arquitectura
Project team:
Bruno Dias; Tânia Matias; Cristiana Henriques; Ana Valente
Building company: Eliberto Construções, Lda
Carpentry: MCJADuarte, Lda
Aluminium: Jolusilva
Photography: Hugo Santos Silva














