杭州职业技术学院学生食堂,浙江/建筑
一个好的建筑所具有的特质必然是和其服务的人群特点相匹配的。大学生具有怎样的特点?大学生未来将要成长为怎样的人?单单一个学生食堂必然无法完全解答所有的问题,但是我们需要对这些问题做出积极正面的回应。我们认为,学生食堂应该超越就餐这个最基本的功能,拓展为集休息、交流、游戏为一体的社区化空间,以赋予生活区更多的意义和影响力。校园建筑应是功能性、人文性、生态性和艺术性的和谐统一,应为学生传达一种质朴、开放、包容和以人为本的社会价值观。
The characteristics of a good building must match the characteristics of the people it serves. What are the characteristics of college students? What kind of person will college students grow into in the future? A student canteen alone will certainly not be able to fully answer all the questions, but we need to make a positive response to these questions. We believe that the student canteen should go beyond the most basic function of dining and expand into a community-based space integrating rest, communication and games, so as to endow the living area with more significance and influence. Campus architecture should be a harmonious unity of functionality, humanism, ecology and artistry, and should convey a simple, open, inclusive and people-oriented social values for students.
▼从宿舍区看向食堂,From the dormitory area to the canteen

本项目学生食堂位于浙江省杭州市下沙学源街68号杭州职业技术学院东北角,用地面积约1.2公顷。项目以东为学校宿舍,以南、以西为学校实训基地和教学楼,北面为德胜快速路。设计的初衷是期望能激发校园食堂的开放精神和公共性潜质。
The student canteen of the project is located in the northeast corner of Hangzhou vocational and technical college, No. 68, Xueyuan street, Xiasha, Hangzhou, Zhejiang, covering an area of about 1.2 hectares. The east of the project is the school dormitory, the South and West are the school training base and teaching building, and the north is Desheng expressway. The original intention of the design is to stimulate the open spirit and public potential of the campus canteen.
▼左:概念,右:总平面图,Left: concept, right: general layout

▼食堂外观:开放性和公共性,Appearance of canteen: open and public

食堂主立面采用了双层柱廊的形式。柱廊通高至屋顶,并向外扩展形成灰色的秩序空间。双层柱廊改变了食堂一贯给人的嘈杂纷乱的形象,变身为优雅静谧的休闲空间。设计上利用柱廊产生的中介空间使食堂自然而然地融入广场,把原先封闭的食堂向学生们打开,吸引学生络绎不绝地前来。丰富的空间层次能够更好地容纳和承载学生生动的校园生活。纤细的柱廊和轻薄的屋面,不仅为我们带来视觉上的美感,还形成了一个遮风挡雨的过渡空间。
The main facade of the canteen adopts the form of double-layer colonnade. The colonnade is high to the roof and extends outward to form a gray order space. The double-layer colonnade has changed the noisy and chaotic image of the canteen into an elegant and quiet leisure space. In the design, the intermediary space generated by the colonnade makes the canteen naturally integrate into the square, opening the originally closed canteen to the students, attracting an endless stream of students. Rich spatial levels can better accommodate and carry students' vivid campus life. The slender colonnade and thin roof not only bring us visual beauty, but also form a transitional space to shelter us from wind and rain.
▼学生食堂立面,Elevation of student canteen

▼纤细的柱廊和轻薄的屋面,Slender colonnades and light roofs

在柱廊空间中我们加入了两部转折的直跑楼梯,节节向上、步步登高。楼梯仿佛吊挂于双层柱廊之间,打破了建筑原有柱廊体系严格的秩序感,丰富了建筑整体的艺术性。在用餐之余,学生们会自然而然地在楼梯上聊天、宣传、招新,形成一个活跃的富有亲和力的社交场。通透的柱廊空间和盘旋的楼梯空间能让人看清在食堂内发生的各种日常活动,有利于学生们沟通合作能力的锻炼和开放创新精神的培养。
In the colonnade space, we have added two turning straight stairs, rising step by step. The stairs seem to hang between the double-layer colonnades, breaking the strict sense of order of the original colonnade system of the building and enriching the overall artistry of the building. After dinner, students will naturally chat, promote and recruit new students on the stairs, forming an active and friendly social field. The transparent colonnade space and the spiral staircase space can make people see all kinds of daily activities in the canteen, which is conducive to the training of students' communication and cooperation ability and the cultivation of open and innovative spirit.
▼直跑楼梯丰富了人流流线,Straight running stairs enrich the flow of people

▼盘旋的楼梯空间,Spiral stair space

▼通透的柱廊空间,Transparent colonnade space


▼直跑楼梯为食堂带来社交场,Running straight up the stairs brings a social scene to the canteen

食堂位于宿舍区西侧,便于教学区和宿舍区的学生就餐。食堂和宿舍楼之间围合出小广场,这里是人流密集的场所,也是学生们进行社团活动和展示的区域;食堂和宿舍区的下沉庭院之间用一个风雨无阻的地下通道进行紧密连接,校园生活由此变得高效便捷。食堂东侧和南侧的广场以硬质铺装为主,其中,南侧广场我们设计了通往宿舍区的线形树阵。除了遮阴和保证宿舍区临广场一侧房间的相对私密这两点功能之外,树阵也增强了食堂广场和学生宿舍广场的空间连续性,起到引导人流、串联广场空间的作用。
The canteen is located in the west side of the dormitory area, which is convenient for students in the teaching area and the dormitory area to eat. A small square is enclosed between the canteen and the dormitory building, which is a place with a dense flow of people and an area for students to carry out community activities and display; The sunken courtyard of the canteen and the dormitory area is closely connected by an unimpeded underground passage, which makes campus life efficient and convenient. The squares on the East and south sides of the canteen are mainly paved with hard pavement. In the square on the south side, we designed a linear tree array leading to the dormitory area. In addition to the two functions of shading and ensuring the relative privacy of the rooms on the side near the square in the dormitory area, the tree array also enhances the spatial continuity of the canteen square and the student dormitory square, and plays a role in guiding the flow of people and connecting the square space.
▼食堂和学生宿舍之间的广场和下沉庭院,Square and sunken courtyard between canteen and student dormitory

建筑土建成本约为3000元/平方米。我们在低廉的造价制约下,剔除多余的立面装饰和冗杂的附加体系,让建筑做到简洁大气、朴素有力。“少就是多”的纯净主义设计哲学在本项目中得到了很好的体现。
The cost of building and civil engineering is about 3000 yuan / square meter. Under the restriction of low cost, we have eliminated redundant facade decoration and miscellaneous additional systems to make the building simple and powerful. The purist design philosophy of "less is more" has been well reflected in this project.
▼夜景,Night view

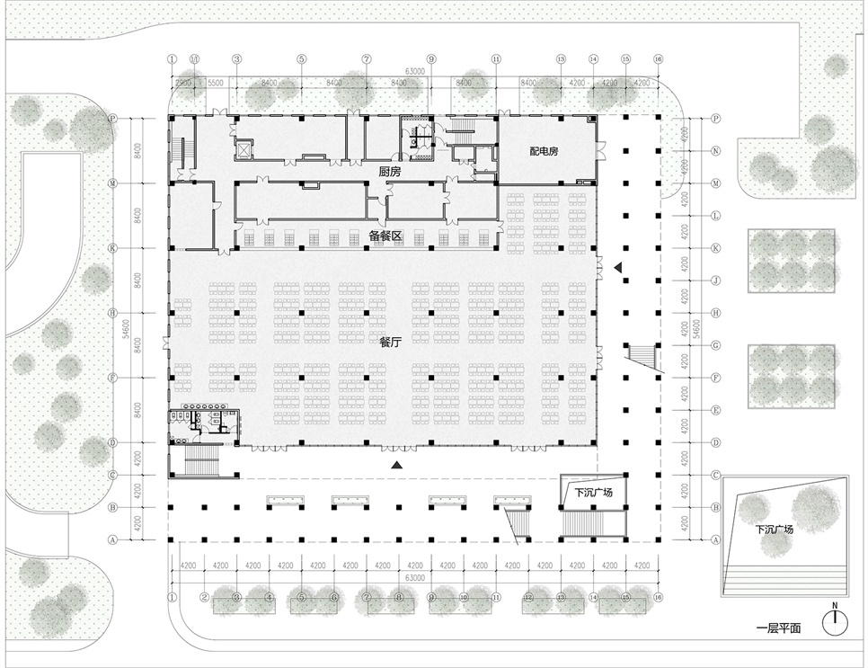
▼一层平面图,First floor plan

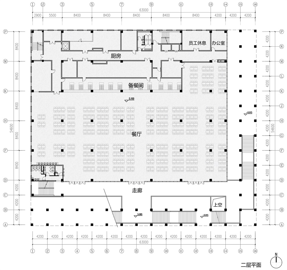
▼二层平面图,Second floor plan

▼立面图,Elevation

▼剖面图,Profile

项目信息
项目名称:杭州职业技术学院学生食堂
文章分类:建筑设计
设计公司:浙江大学建筑设计研究院有限公司
项目地址:浙江
项目规模:13277㎡
设计团队:杜佩君、黄震华、李思聪、吴晶晶
Project information
Project Name: student canteen of Hangzhou vocational and Technical College
Article category: Architectural Design
Design company: Zhejiang University architectural design and Research Institute Co., Ltd
Project address: Zhejiang
Project scale: 13277 ㎡
Design team: Du Peijun, Huang Zhenhua, Li Sicong, Wu Jingjing














