一喜设计工作室,阜阳 / 一喜设计
一喜设计工作室位于安徽阜阳,这是个写字楼里100平上下的方盒子,我们希望以建筑视角出发,构建属于使用者的有序生活场所。
Located in Fuyang, Anhui, Yixi Design Studio resides within a square “box” of approximately 100 square meters in an office building. We aim to construct an orderly living space that belongs to users from an architectural perspective.
▼项目概览,preview


“盒子体块” “Box volumes”
基于空间270度的采光视野及层高优势,我们考虑在局部空间架设夹层,置入两个不同大小的“盒子”体块,以丰富空间层次,增加使用面积。体块布局从基本的功能逻辑出发,恰到好处。
▼分析图,analysis diagram

Based on the 270-degree daylighting and the height advantage of the space, we decided to construct a mezzanine in certain areas, incorporating two “box” volumes of different sizes to enrich the spatial hierarchy and increase usable area. The layout of these volumes is logically derived from basic functional requirements, achieving perfect harmony.
▼不同大小的盒子体块,two box volumes of different sizes

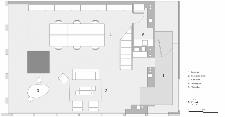
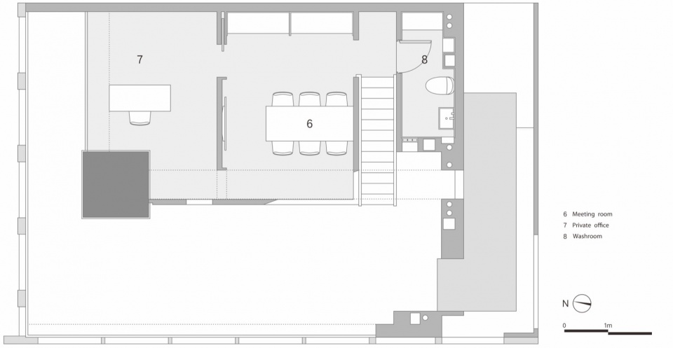
小体块靠近楼层管道竖向排布,上下设需要给排水的卫生间和茶水间。大体块沿中间主梁横向展开,左右设会议和独立办公室。
The smaller box is vertically arranged near the building pipes, accommodating the toilet and pantry which require water supply and drainage. The larger box spans horizontally along the central beam, with meeting room and individual office on either side.
▼大盒子体块,larger box

▼楼梯的构成关系,composition relationship of stair

▼会议区,meeting room

▼盒子内部空间,interior space of the box


▼独立办公室视野,view of individual office

作为空间的视觉焦点,大体块悬挑在一层上方,底部无落柱,根据结构巧妙设计与梁相接。楼梯和大小体块的构成关系,亦是空间秩序的表述。
As the visual focus of the space, the larger box overhangs above the ground floor, supported seamlessly by the beams without columns below, showcasing a craftily structural design. The relationship between the stairs and the box volumes further elaborates the spatial order.
▼从工作区望向茶水间,view to the pantry from the workspace

▼从工作区望向楼梯,view to the stair from the workspace

▼工作区细节,workspace detailed view

▼水吧台,water bar

“内外之间”“Between the interior and exterior”
于体块上雕凿出不同尺度的开窗,回应各功能区不同的采光和视野。不同的开窗位置和对体块的切分形式,实现了体块外部的节奏关系和内部的场域营造。
Windows of various scales are carved into the volumes, responding to the differing lighting and visual needs of each functional area. The positioning of these windows and the way they carve into the volumes create a rhythmic exterior and a nuanced interior space.
▼工作区,workspace

▼工作区,workspace

▼工作区视野,view of workspace

▼工作区细节,workspace detailed view


体块之下设公共办公和接待区,拥有开敞的氛围和视野。盒子空间与公共区域,内与外、静谧与开敞的共生与界限。
Below the volumes lies the open office and reception area, boasting an open ambiance and expansive views. The box space and the public area embody a symbiotic but distinct relationship between interior and exterior, silence and openness.
▼桦木板家具,birch wood furniture


▼室内细节,interior detailed view

“自然材料”“Natural Materials”
材料的使用远非解决功能,也是在构建一种情感。使用自然的材料,还原材料本质属性,谦虚、低调及时间赋予的变化。身处其中,可以看到和摸到由石粒涂料勾勒出的隔层表面,粗糙的质感与柔和的木质家具形成对比。
The use of materials transcends mere functionality; it is also about establishing an emotional connection. By employing natural materials and restoring their essential attributes, we aim for an aesthetic that is humble, understated, and responsive to the passage of time. Within this space, one can see and touch the rough texture of the mezzanine surfaces outlined by stone-grain paint, contrasting with the softness of wooden furniture.
▼入口,entrance

▼入口细节,entrance details

▼一层平面图,first floor plan

▼二层平面图,second floor plan

Project name: Yixi Design Office
Project type: Office Space
Design: Yixi Design
Contact e-mail: 214162684@qq.com
Completion Year: 2024.10
Leader designer & Team: Liu Tong、Li Yang
Project location: Fuyang,Anhui Province
Gross built area: 100㎡
Photo credit: ACT STUDIO
Materials: Adhensive stone,Birch multi-layer board,Wood floor














