Gilbert Klein音乐学院,法国 / GPAA architectures
项目区位Context
地理位置|Location
位于塞纳-圣但尼省,距离巴黎17公里的克利希-苏布瓦(Clichy-sous-Bois)历史上曾是一个朝圣和狩猎的地方,并在1950年至1980年代间经历了大规模住房开发的根本性转变。克利希-苏布瓦多年来呈现出零散的建设形式,缺乏真正的联系。1982年A87高速公路的废弃使其成为内城区最为孤立的城市之一。随着有轨电车的到来和未来大巴黎快线地铁的建设,这座城市承载了邻里病态的象征——自2015年骚乱以来,城市发展差距和某种程度的隔离感。
Located in the Seine-Saint-Denis department, 17 km from Paris, Clichy-sous-Bois is historically a place of pilgrimage and hunting that underwent a radical transformation from 1950 to the 80s with the construction of large housing estates. Clichy-sous-Bois has been built up in fragments over the years, with no real with no real connection. The abandonment of the A87 freeway route in 1982 made it one of the most isolated towns in the inner suburbs. A
rrival of the streetcar and the future Grand Paris Express metro line.
A symbol of neighborhood malaise – since the riots of 2015 – the city
development gaps and a certain isolation.
▼项目外观,exterior of the project

克利希-苏布瓦/蒙费尔梅伊尔(Montfermeil)城市更新项目旨在开辟该地区,改善生活环境并为这座城市注入新生气息。例如,建立“阿特利埃·梅迪西斯”(Ateliers Medicis)这一雄心勃勃的研究和艺术项目,便是其中的一个例证。作为这一全球性未来挑战的一部分,2018年,克利希-苏布瓦市启动了新音乐学院的建设,这是一个文化、共享与多样性的场所,也是克利希-苏布瓦文化认同更新与发展的标志性象征。
The Clichy-sous-Bois/Montfermeil urban renewal project
aims to open up the area, improve the living environment
and breathe new life into the town. A case in point,
for example, the ambitious project to set up a research and artistic
Ateliers Medicis.
As part of this global challenge for the future, the commune launched, in 2018,
the construction of a new conservatory, a place for culture, sharing and
sharing and diversity, and an emblematic symbol of the need to renew
and development of Clichy-sous- Bois’s cultural identity.
▼项目外观,exterior of the project

市中心的文化中心|
A cultural center in the heart of town
A cultural center in the heart of town
近年来,克利希-苏布瓦的城市更新工作伴随着市中心公共设施的重新部署,并得到了当地居民的积极支持。与位于市区外且日渐老化的旧音乐学院不同,新音乐学院位于市中心的心脏地带,靠近主要基础设施(如Espace 93、橘园大厅、图书馆、市政厅等)以及一片大草坪,这片草坪是克利希真正的公共广场,居民们可以在此休憩、打盹、会面和聚集。这个空间承载着大部分城市的节庆活动,成为了一个真正的文化枢纽,所有居民都可以看到并轻松进入。作为区域复兴的推动者,新音乐学院是城市和社会多样性的一个重要标志。
The urban renewal work undertaken in Clichy-sous-Bois over the past few years has been accompanied by the redeployment of public facilities in the town center and their appropriation by local residents. Unlike the old conservatory, which is out of the center of town and ageing, the new the new conservatory benefits from a location in the very heart of the town, close to major infrastructures (Espace 93, salle de l’Orangerie, library, town hall, etc.) and a large lawn, a veritable public square in Clichy, where people can rest, doze, meet and gather. This space, where most of the town’s festive activities take place, forms a genuine cultural hub that is visible and accessible to all residents. A player in the reclamation of the area, the new conservatory is a major marker of urban and social diversity.
▼成为真正的文化枢纽,forms a genuine cultural hub

克利希-苏布瓦的上城与下城交汇处|
Where upper and lower Clichy-sous-Bois meet
Where upper and lower Clichy-sous-Bois meet
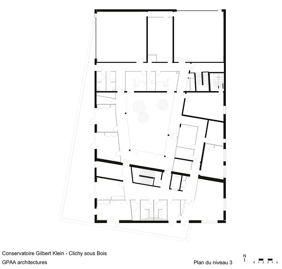
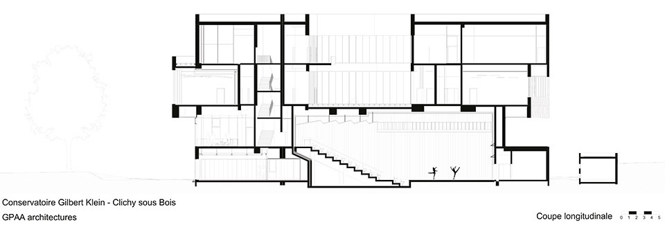
新音乐学院位于克利希-苏布瓦上下城区的交汇点,是一座真正的十字路口:建筑坐落于草坪和18世纪的橘园之间,沿着悬挂的费尔南·林代大道。第一层遵循大道的轴线,而上层与橘园对齐,创造出一种视野效果,并且有一个外部公共楼梯通往下方的广场。设计的挑战在于如何将建筑物在这两个平面之间进行协调。通过连接上层和下层的方式,建筑形成了动感的韵律。音乐学院的基座与其周围的区域紧密相连,呈现出人性化的尺度。它拔地而起,标志着这座城市的新印记,深深扎根于其所在地。
Located at the crossroads between the upper and lower parts of Clichy-sous-Bois, the new conservatory is a veritable crossroads: the building is set between the Pelouse and the 18th-century Orangerie, along the overhanging allée Fernand Lindet. While the first floor follows the axis of the avenue, the upper floor is aligned with the Orangerie to create a perspective and an external public staircase leading to the esplanade below. The challenge was to articulate the building between these two planes. Movement is achieved by linking the upper and lower levels. The base of the conservatory weaves close links with its immediate territory, on a human scale. It rises to the point of marking the city with a new imprint anchored in its site.
▼建筑形态,building form

拔地而起Insulation
尺度、信号、联系|
Scale, signal, link
Scale, signal, link
新音乐学院如同一组平衡的体块,既在景观中独立突出,又与周围环境融为一体。建筑由一层层叠加的结构组成,每一层都围绕着上一层旋转。设计的一个主要目标是保留视野,确保18世纪橘园的景观不受阻碍。建筑可以区分出两个序列:公共部分包括低层,围绕着音乐厅展开,确立了该建筑的城市形态;而更私密部分的第二层与橘园的方向保持一致,而第三层则俯瞰着第一层。
Like a set of balanced volumes, the new Clichy-sous-Bois conservatory stands out in the landscape while blending into its surroundings. The building is composed of successive strata, each pivoting on the other. One of the main objectives was to preserve an unobstructed view of the 18th-century Orangerie.
Two sequences can be distinguished:
The public volume includes the lower levels are articulated to establish the urban form in its site. And the
intimate volume: level 2 follows the orientation of the Orangerie, while level 3 overlooks the first floor.
▼建筑由一层层叠加的结构组成,The building is composed of successive strata

被看见和再次被看见|To be seen and to be seen again
被看见和再次被看见|
To be seen and to be seen again
新音乐学院共四层,由玻璃、混凝土和Corian实心面板材料构成,建筑的体块层层旋转,宛如一组平衡的结构。公共空间(底层和第一层)围绕音乐厅展开,通过大面积的玻璃窗与外面的广场和草坪相连。上方是更私密的部分(第二和第三层),用于各种实践活动,围绕着中央天井组织。立面上,面板组成的网格借鉴了橘园的图案,其弯曲的形态响应了双重挑战:一方面将音乐学院与周围环境连接,另一方面在更广阔的景观中作为地标。
▼一层平面,ground floor plan

Erected over 4 levels, the glass, concrete and Corian building is composed of strata that rotate one on top of the other, like a set of balanced volumes. A public volume (ground floor and first floor), articulated around the auditorium, opens onto an esplanade and the lawn through large glass sequences. Above, a more intimate volume (R+2 and 3), devoted to practices, is organized around the central patio.
On the façade, a Corian mesh repeats a motif borrowed from the Orangerie.
Its curvature responds to a dual challenge: to link the conservatory to its immediate surroundings and to set it as a signpost in the wider landscape.
▼建筑前广场,the plaza in front of the building

实体与空隙的重叠|Superimposition of full and empty
实体与空隙的重叠|
Superimposition of full and empty
设计方案基于一种双重结构的组合。底层和第一层围绕着音乐厅布局。第二和第三层,专用于实践空间,则从一个玻璃天井向外辐射。实心与空旷的空间交替重叠。上层向外敞开,提供宽阔的视野。
▼轴测图,axonometric

The program is based on a bipartite combination. The ground floor and first floor are arranged around the auditorium. Levels 2 and 3, dedicated to practice spaces, radiate out from a glazed patio.
Full and empty spaces overlap.
The upper levels are open to the outside, with wide views.
▼建筑形态,building form

功能布局
The program
The program
新建的吉尔贝尔·克莱因音乐学院,作为当地社区的一部分,涵盖了四大艺术学科:音乐艺术、表演艺术、舞蹈艺术以及塑料与数字艺术。项目的核心是音乐厅,它巧妙地融入了空间中。从底层直接进入,舞台位于第一层,而阶梯座位则巧妙地融入建筑形式,通往大厅。
The new Gilbert Klein conservatory, which is part of the local community, is home to four major disciplines:
Musical Arts;
Performing Arts;
Choreographic Arts and
Plastic and digital arts.
At the heart of the project, the auditorium is set into the space in a very subtle way. Directly accessible from the ground floor, the stage is anchored on the first floor, with the tiered seating sliding into the architectural form and leading to the foyer.
▼前厅,foyer

底层包含入口和公共空间。第一层为大厅。第二层包含音乐与戏剧空间。第三层为舞蹈与视觉艺术空间。音乐厅共有209个座位,巧妙融入空间。直接从底层进入,舞台位于第一层,阶梯座位顺着建筑形式布置。
The ground floor includes the entrance and public space. The first floor is the
foyer. The second floor includes the
music and drama space. The third floor includes the
dance and visual arts space.
At the heart of the project, the 209-seat auditorium is integrated into the space. Directly accessible from ground level, the stage is anchored to the first floor, with the tiered seating sliding into the architectural form.
▼音乐厅,auditorium

▼排练厅,rehearsal room


所有侧墙和天花板的形状与曲折对声音的传播起到了重要作用。大厅是音乐学院与公共空间的交互之处,是一个重要的公共空间,向整个城市开放。内部,“市民倡议厅”是一个共享空间,用于举办市民咖啡会和协会会议。室外的广场成为公众聚集的核心,可以用来举办音乐会、户外辩论和公共集会。
The shape and inflections of all the side walls and ceiling panels contribute to the room’s acoustic quality.
The foyer is the place where the conservatory and the public space interact.
It’s a major public space, open to the rest of the city. Inside, La salle des initiatives is a shared space for citizen cafés and association committees.
Outside, the esplanade is the focal point for the public. Like an agora, it can be used for concerts, outdoor debates and public gatherings on the steps.
The practice rooms have been designed with great attention to use.
▼排练教室,rehearsal room

▼教室,classroom

立面设计
The facade
The facade
从橘园的优雅建筑中提取的几何形状贯穿了二层和三层。这一几何图案的变化创造了一个联系,成为一种信号。这座单体白色混凝土建筑不仅通过体块的变换得以增强韵律,还通过图案在其表面的滑动效果增加了层次感。部分作为外墙覆盖,部分作为遮阳装置,这种外立面装饰在不同的光照下赋予了立面深度,随着时光流转,立面表现出不同的景象与反射。
From the Orangerie’s elegant architecture, we extract a geometric shape that runs through levels 2 and 3.
The shift of this motif creates a link, a signal.
The monolithic white concrete ensemble is enhanced not only by the movements infused into the volume, but also by the way the motif glides over it. Part cladding, part sunshade, this cladding gives depth to the façade, which comes to life as the hours of the day and the light change. A play of shadows and reflections is created.
▼立面图案,facade pattern

从室内来看,这一几何图案出现在开口处,在某些情况下,它还投影到地面或墙壁上,重新塑造了空间。宽阔的窗框从主题房间向外界景观开放。建筑主要使用三种材料:混凝土、玻璃和Corian实心面板。玻璃提供了宽敞的窗户视野,位于底层。混凝土是结构性和立面材料,具有一定的惰性。Corian实心面板则用于外立面“皮肤”的材质化,展现了图案。这种网格状的外饰层覆盖在混凝土墙面上,有时覆盖在立面开口上。
From the inside, the motif appears in front of openings, in some cases projecting onto the floor or walls, and redesigning the space.
Generous framings open up from the thematic rooms towards the wider landscape.
Three materials are favored: concrete, glass and Corian, the g
lass offers generous sequences of windows on the lower levels.
Concrete, with its inertia, is a structural and façade material.
Corian is used for the exterior “skin”, the materialization of the motif. This mesh runs in front of the concrete sails and sometimes in front of the facade openings.
▼傍晚景象,view at dusk

▼场地平面,site plan

▼二层平面,first floor plan

▼三层平面,second floor plan

▼四层平面,third floor plan

▼立面,elevation


▼剖面,section


Client: Municipality of Clichy-sous-Bois
Program: Conservatory for music, dance, plastic and dramatic arts, including a 209-seat auditorium
Cost: €14.20m excl.
Surface area: 3,950 m2
Environmental features: RT 2012 -30% / E3C1 / Qualitel profil A
Project management team
Lead architect
GPAA architectures
Design office TCE + CSSI + ECO + HQE + VRD
CET ingenierie
BET Acoustics and Lighting
CLARITY
Scenic designer
DUCKS Scénographe
Companies:
LEGENDRE : Extensive structural work :
PORTELEC: CFO, CFA:
TARDY: Plumbing, Heating, Ventilation
EIFFAGE Energie Système: Audiovisual and stage lighting
TAMBE: Locksmithing and stage machinery
J. LEFEBVRE IDF : VRD
Gaëtan Chevrier copyright : Photographs














